1. AnbieterArrow Icon
  2. FischerHausArrow Icon
  3. FischerHaus - Bauhaus 221
Slide 1
Slide 2
Slide 3
Slide 4
Slide 5
Slide 6
FischerHaus-Logo-2023.jpg
FischerHausFischerHaus - Bauhaus 221
homeKubushäuser im Bauhausstil
livingArea193 m²
energyStandardEffizienzhaus 40
Preis anfragen
Katalog bestellen

FischerHaus - Bauhaus 221

Moderne Architektur

Architektur:

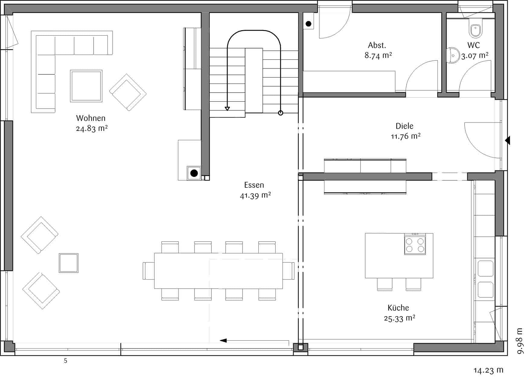
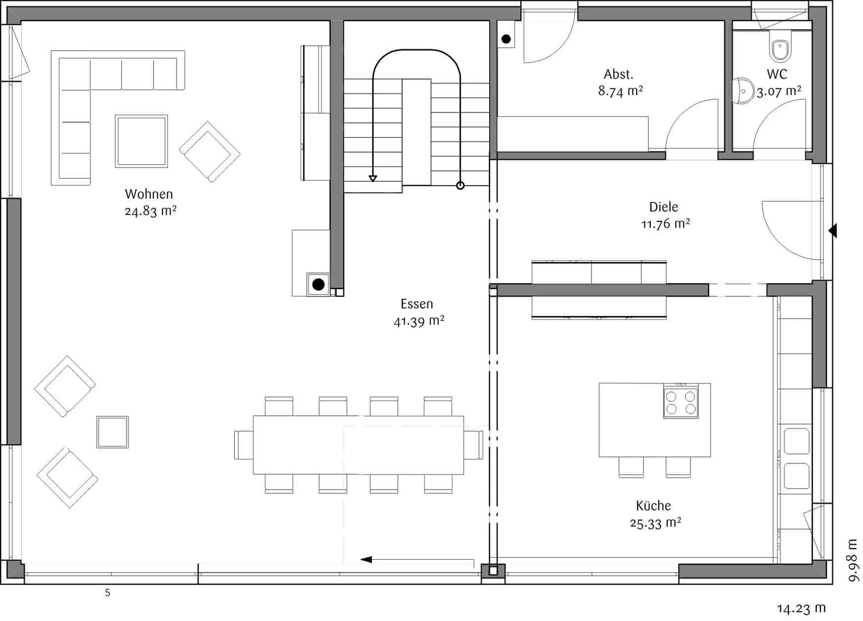
Im Erdgeschoss ist Küche, Esszimmer und das Wohnzimmer in einem großen Raum für die ganze Familie. Ebenfalls ebenerdig ist ein Gäste-WC mit Abstellraum untergebracht.

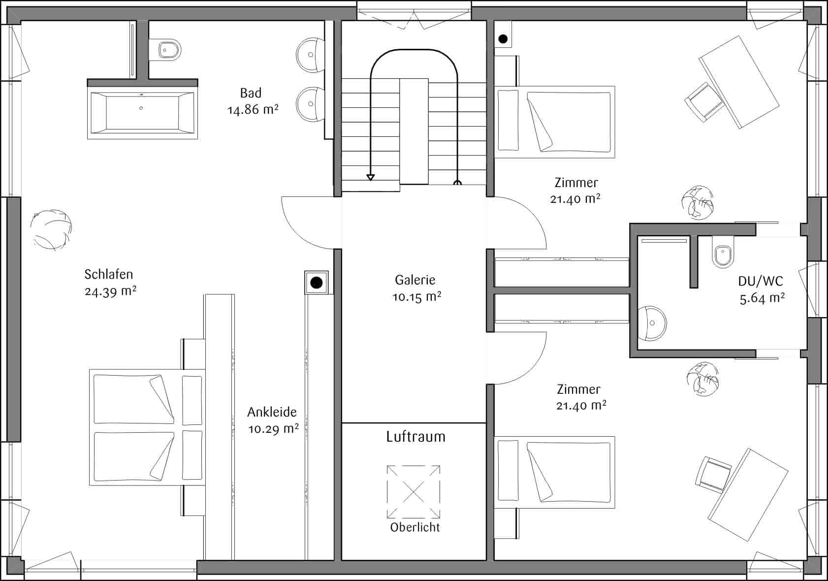
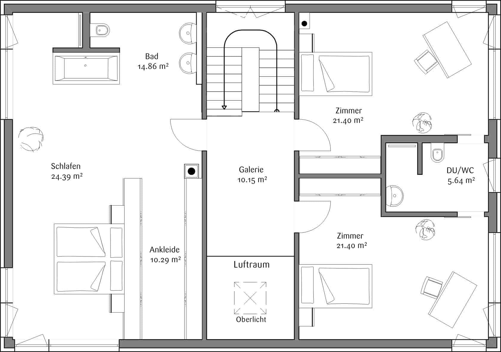
Über eine gewinkelte Treppe gelangt man ins Obergeschoss, das Reich der Kinder mit zwei Kinderzimmern, einem Bad mit Dusche sowie einem großzügigen Elternschlafzimmer mit integrierter Ankleide und Wohnbadezimmer für die Eltern.

Ökologie:

Bei der baulichen Hüllen machen wir es wie die Eisbären. So wenig wie möglich Energie an die Umwelt verlieren, so viel Energie wie möglich aus der Umwelt nutzen. Eisbären sind ja auch nicht nur einfach warm angezogen. Es ist eine Kombination mehrerer Effekte.

Für FischerHaus heißt das Eisbären-Prinzip analog: perfekt gegen die Umwelt gedämmt und gleichzeitig extrem an die Umwelt angepasst, indem wir effizient nutzen, was die Natur an Energie zu bieten hat. (Mit Wärmepumpe und Solaranlage)

Technik:

Das Effizienzhaus 40 heizt mit einer Wärmepumpe. Mit der Wärme aus der Umgebungsluft wird in der Wärmepumpe zunächst ein Kältemittel verdampft und dann unter Druck gesetzt. Dabei erhöht sich die Temperatur des komprimierten Gases so weit, dass wir damit Energie erzeugen können, die wir für die Bereitung von Heizungs- und Trinkwasser benötigen. Prinzipiell funktioniert die Wärme-pumpe wie ein Kühlschrank, nur umgekehrt.

Hausdaten

Hausart Icon
HausartEinfamilienhaus
Bauweise Icon
BauweiseHolz-Tafelbau
Baustil Icon
BaustilKubushäuser im Bauhausstil
Fassade Icon
FassadePutz
Außenmaße Icon
Außenmaße14.23 m x 9.98 m
Wohnfläche Icon
Wohnfläche193.45 m²
Dachform Icon
DachformFlachdach
Energiestandard Icon
EnergiestandardEffizienzhaus 40
Immobilientyp Icon
ImmobilientypKundenhaus
Hauseigenschaften Icon
HauseigenschaftenBalkon
Hausdämmstoff Icon
HausdämmstoffMineralfaser (Glaswolle, Steinwolle)
Heizungsart Icon
HeizungsartWärmepumpe (Luft, Wasser, oder beides)
Pfeil nach unten linksWir schaffen Platz für Ihre Träume

Grundriss

no description
FischerHaus - Bauhaus 221 Grundriss (EG)Wohnfläche EG: 98,54 m²
no description
FischerHaus - Bauhaus 221 Grundriss (OG)Wohnfläche OG: 94,91 m²

Kataloge

FischerHaus: Hauskatalog
FischerHaus

FischerHaus: Hauskatalog


House and TreeParksHouse and PinMusterhausHouse on HandAnbieter