1. AnbieterArrow Icon
  2. FischerHausArrow Icon
  3. Modern 156
Slide 1
Slide 2
Slide 3
Slide 4
Slide 5
Slide 6
Slide 7
Slide 8
FischerHaus-Logo-2023.jpg
FischerHausModern 156
homeKlassische Familienhäuser
livingArea151 m²
energyStandardEffizienzhaus 40
Preis anfragen
Katalog bestellen

Modern 156

Eintreten und Wohlfühlen lautet die Devise!

Das Haus bietet mit knapp 150 qm nicht nur viel Wohnraum, es überzeugt auch mit einer luftigen, frischen Architektur und modernen Akzenten.

Der Grundriss im Erdgeschoss ist offen und großzügig gestaltet. Lebensmittelpunkt ist das geräumige Wohn- und Esszimmer mit offener Küche und Zugang zur Terrasse. Die Wohnräume profitieren durch die vielen bodentiefen Fenster von viel Licht und einem freundlichen Ambiente. Im Obergeschoss bietet das Satteldach Haus viel Platz für zwei Kinderzimmer, ein Schlafzimmer mit Ankleide und ein Badezimmer.

Hausdaten

Hausart Icon
HausartEinfamilienhaus
Bauweise Icon
BauweiseHolz-Tafelbau
Baustil Icon
BaustilKlassische Familienhäuser
Fassade Icon
FassadePutz
Außenmaße Icon
Außenmaße10.52 m x 9.02 m
Wohnfläche Icon
Wohnfläche150.92 m²
Dachform Icon
DachformSattel-/Giebeldach
Etagen Icon
Etagen1.5
Energiestandard Icon
EnergiestandardEffizienzhaus 40
Immobilientyp Icon
ImmobilientypKundenhaus
Dachneigung Icon
Dachneigung22°
Hauseigenschaften Icon
HauseigenschaftenTerasse, Gästezimmer
Hausdämmstoff Icon
HausdämmstoffMineralfaser (Glaswolle, Steinwolle)
Heizungsart Icon
HeizungsartWärmepumpe (Luft, Wasser, oder beides)
Pfeil nach unten linksWir schaffen Platz für Ihre Träume

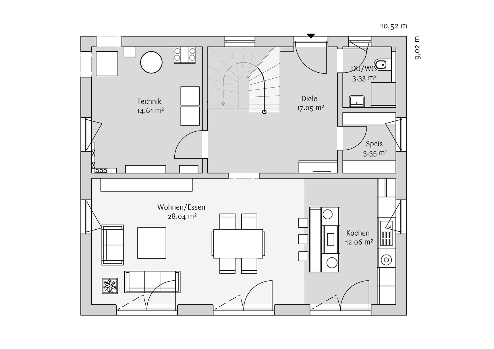
Grundriss

Grundriss_Modern157_EG_TrögerDaniel.png
Modern 156 Grundriss (EG)Wohnfläche EG: 78,44 m²
Grundriss_Modern157_OG_TrögerDaniel.png
Modern 156 Grundriss (DG)Wohnfläche DG: 72,48 m²

Kataloge

FischerHaus: Hauskatalog
FischerHaus

FischerHaus: Hauskatalog


House and TreeParksHouse and PinMusterhausHouse on HandAnbieter