1. AnbieterArrow Icon
  2. FischerHausArrow Icon
  3. Stadtvilla 220
Slide 1
Slide 2
Slide 3
Slide 4
Slide 5
Slide 6
Slide 7
FischerHaus-Logo-2023.jpg
FischerHausStadtvilla 220
homeStadtvillen
livingArea220 m²
energyStandardEffizienzhaus 40
Preis anfragen
Katalog bestellen

Stadtvilla 220

Villa im modernen Stil

Das optimal auf die Bedürfnisse unseres Baufamilie abgestimmte FischerHaus mit klassischem Walmdach überzeugt mit durchdachter Architektur und vielen Detaillösungen.

Mit seiner Wohnfläche von etwa 220 Quadratmetern inkl. Keller ermöglicht es großzügiges Wohnen bei kompakten Außenmaßen. Herzstück der kleinen Villa ist das großzügige Esszimmer im Erdgeschoss mit offener Küche Der geräumige Bereich ermöglicht den Blick in den Garten und trägt zu einer harmonischen Stimmung bei.

Besonders praktisch: ein zusätzlicher Raum im Schlafzimmer, der als Ankleide ausgeführt wurde.

Hausdaten

Hausart Icon
HausartEinfamilienhaus
Bauweise Icon
BauweiseHolz-Tafelbau
Baustil Icon
BaustilStadtvillen
Fassade Icon
FassadePutz
Außenmaße Icon
Außenmaße10.52 m x 9.02 m
Wohnfläche Icon
Wohnfläche220.38 m²
Dachform Icon
DachformWalm-/Zeltdach
Etagen Icon
Etagen2
Energiestandard Icon
EnergiestandardEffizienzhaus 40
Immobilientyp Icon
ImmobilientypKundenhaus
Dachneigung Icon
Dachneigung22°
Hauseigenschaften Icon
HauseigenschaftenTerasse
Hausdämmstoff Icon
HausdämmstoffMineralfaser (Glaswolle, Steinwolle)
Heizungsart Icon
HeizungsartWärmepumpe (Luft, Wasser, oder beides)
Pfeil nach unten linksWir schaffen Platz für Ihre Träume

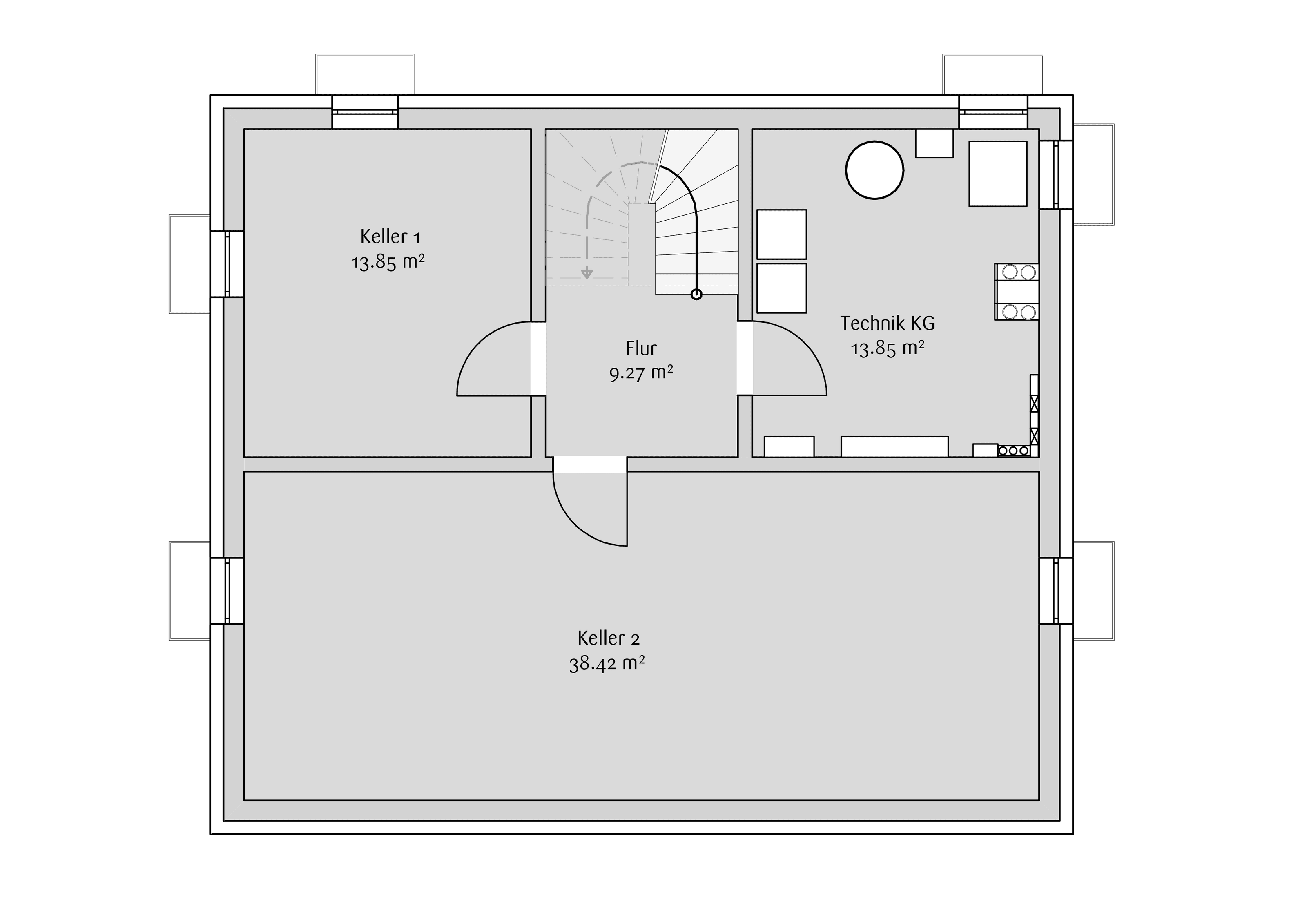
Grundriss

Grundriss_Stadtvilla220_KG_TrögerSiegfried.png
Stadtvilla 220 Grundriss (Keller)Wohnfläche KG: 75,39 m²
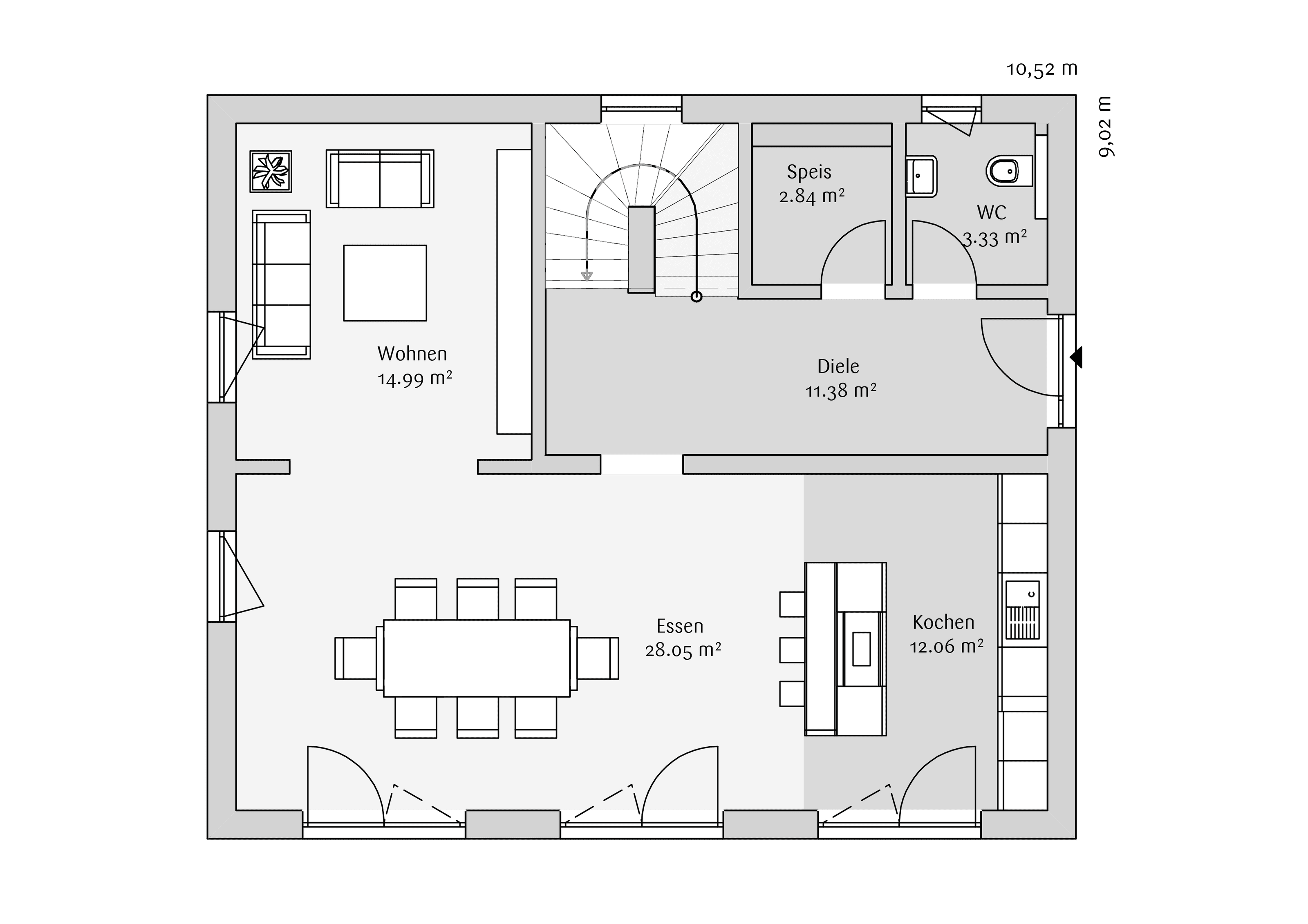
Grundriss_Stadtvilla220_EG_TrögerSiegfried.png
Stadtvilla 220 Grundriss (EG)Wohnfläche EG: 72,65 m²
Grundriss_Stadtvilla220_OG_TrögerSiegfried.png
Stadtvilla 220 Grundriss (OG)Wohnfläche OG: 72,34 m²

Kataloge

FischerHaus: Hauskatalog
FischerHaus

FischerHaus: Hauskatalog


House and TreeParksHouse and PinHäuser liveHouse on HandAnbieter