1. AnbieterArrow Icon
  2. FischerHausArrow Icon
  3. Modern 194
Slide 1
Slide 2
Slide 3
Slide 4
Slide 5
Slide 6
Slide 7
Slide 8
Slide 9
Slide 10
Slide 11
Slide 12
FischerHaus-Logo-2023.jpg
FischerHausModern 194
homeKlassische Familienhäuser
livingArea194 m²
energyStandardEffizienzhaus 40
Preis anfragen
Katalog bestellen

Modern 194

Anbau an Bestandsimmobilie

Hausdaten

Hausart Icon
HausartAufstockung
Bauweise Icon
BauweiseHolz-Tafelbau
Baustil Icon
BaustilKlassische Familienhäuser
Fassade Icon
FassadePutz
Außenmaße Icon
Außenmaße12.97 m x 13.45 m
Wohnfläche Icon
Wohnfläche194.3 m²
Dachform Icon
DachformSattel-/Giebeldach
Etagen Icon
Etagen1.5
Energiestandard Icon
EnergiestandardEffizienzhaus 40
Immobilientyp Icon
ImmobilientypKundenhaus
Dachneigung Icon
Dachneigung22°
Hauseigenschaften Icon
HauseigenschaftenViel Glas, Terasse, Gästezimmer, Balkon
Hausdämmstoff Icon
HausdämmstoffMineralfaser (Glaswolle, Steinwolle)
Heizungsart Icon
HeizungsartWärmepumpe (Luft, Wasser, oder beides)
Pfeil nach unten linksWir schaffen Platz für Ihre Träume

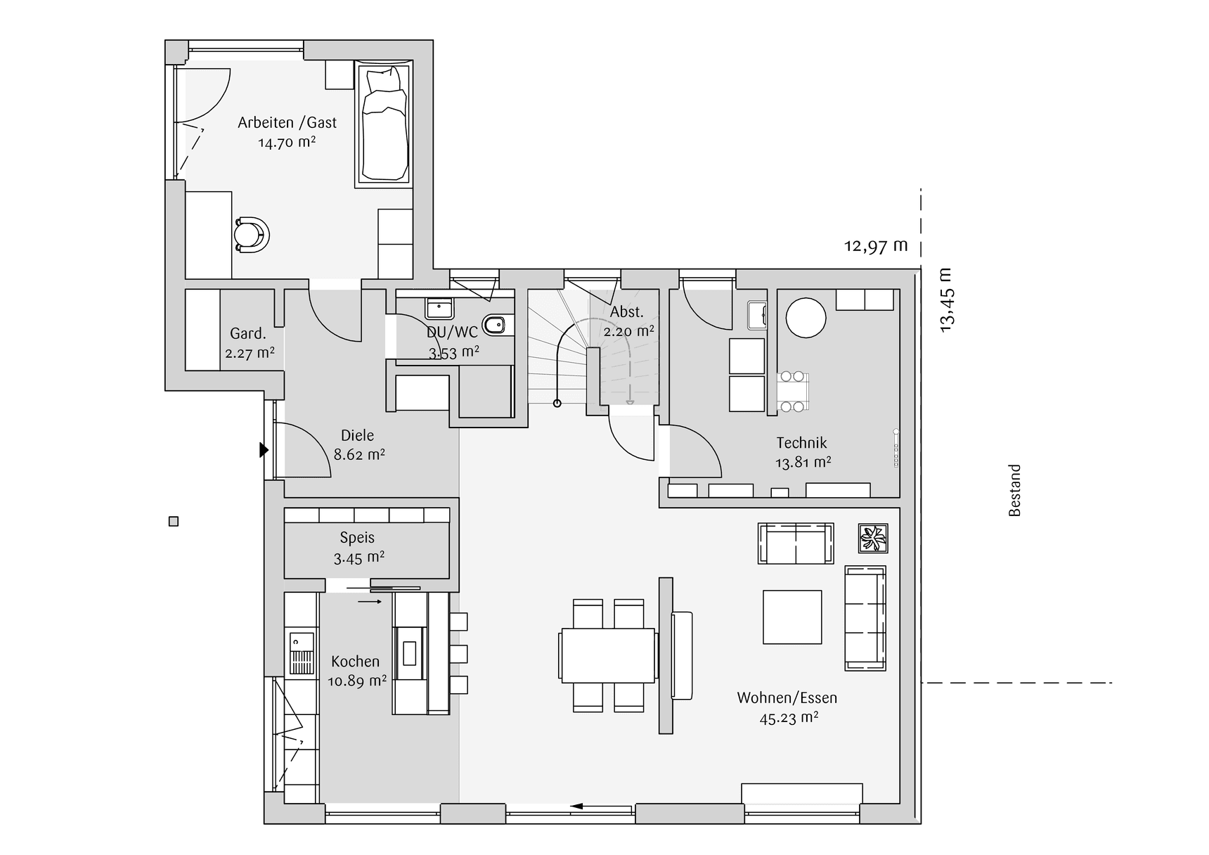
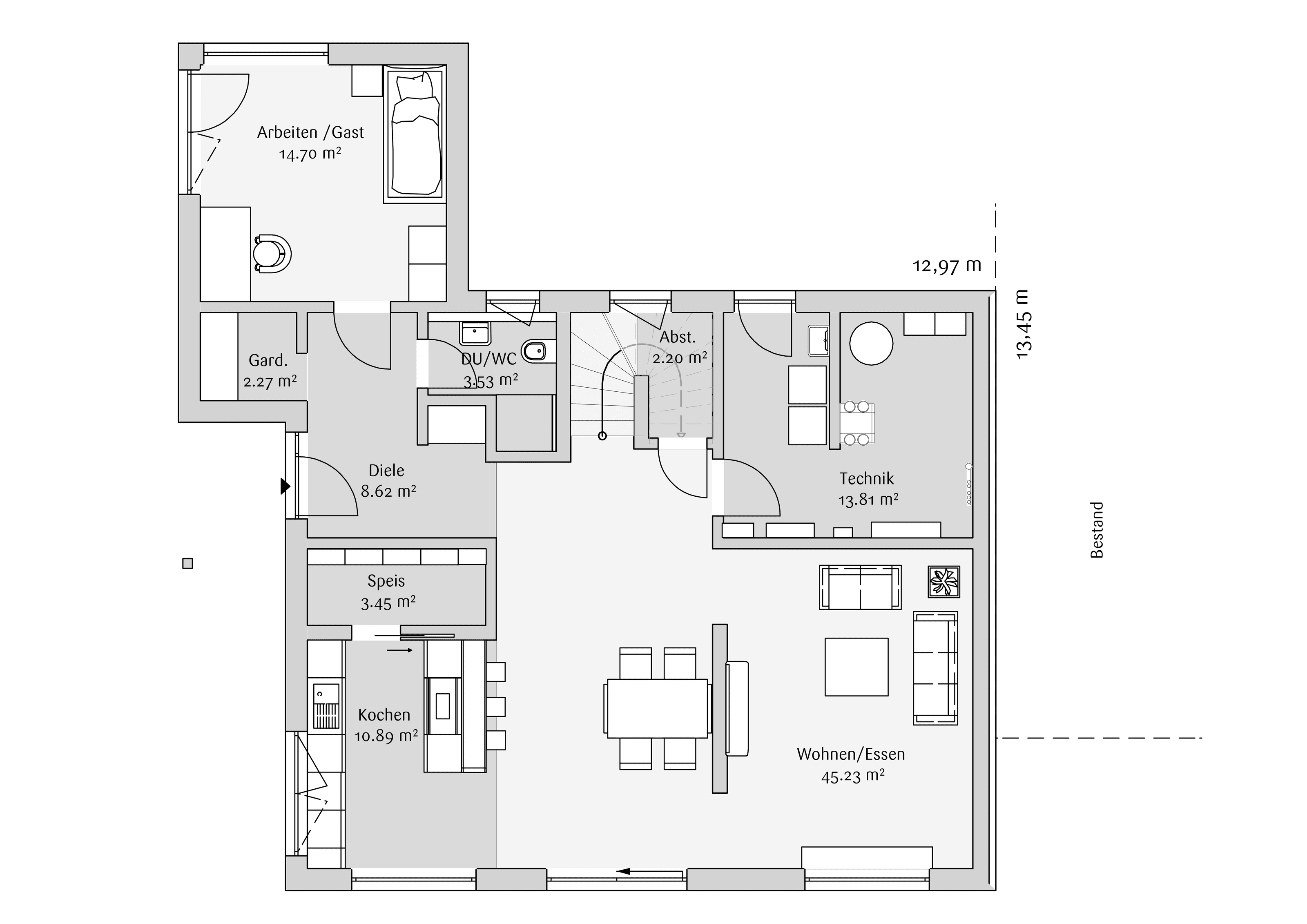
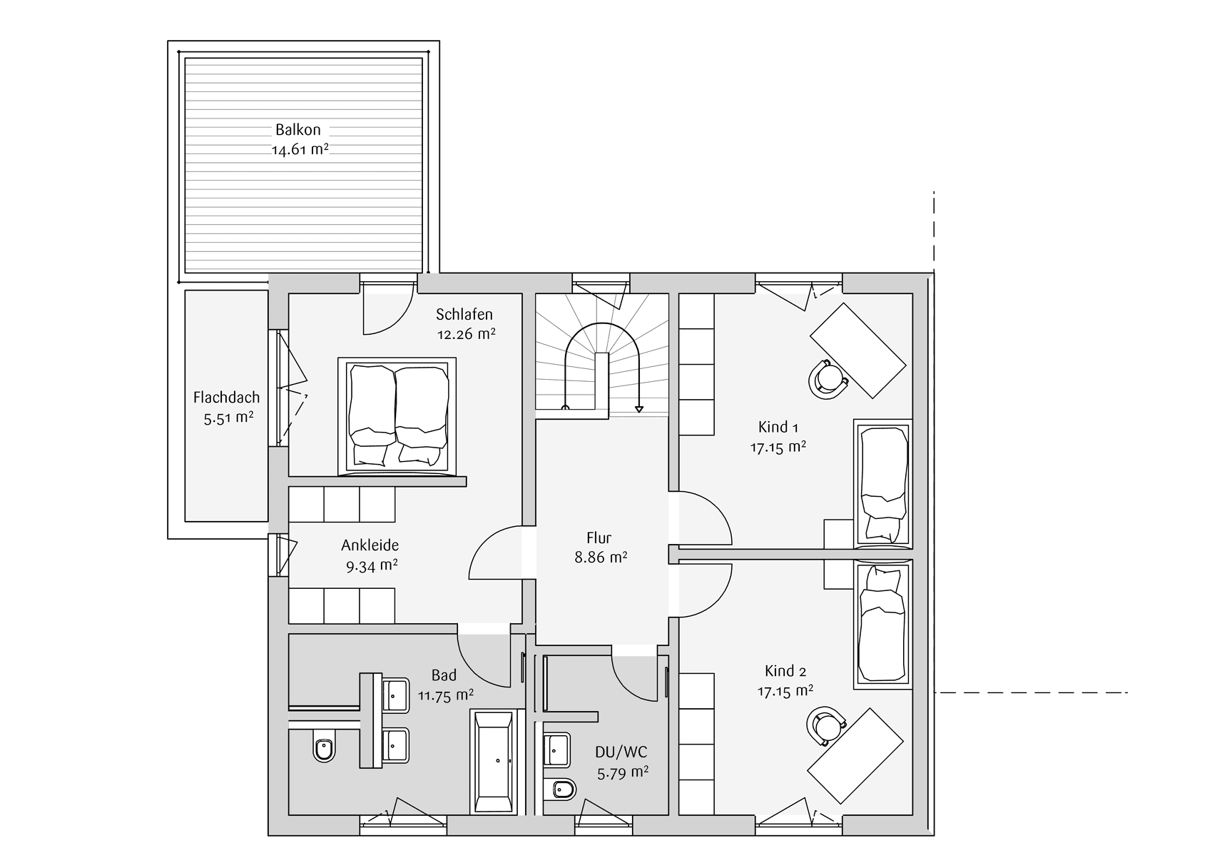
Grundriss

Grundriss_Modern194_EG.png
Modern 194 Grundriss (EG)Wohnfläche EG: 104,7 m²
Grundriss_Modern194_OG.png
Modern 194 Grundriss (OG)Wohnfläche OG: 89,6 m²

Kataloge

FischerHaus: Hauskatalog
FischerHaus

FischerHaus: Hauskatalog


House and TreeParksHouse and PinMusterhausHouse on HandAnbieter