1. AnbieterArrow Icon
  2. FischerHausArrow Icon
  3. Zweifamilienhaus 342
Slide 1
Slide 2
Slide 3
Slide 4
Slide 5
Slide 6
Slide 7
FischerHaus-Logo-2023.jpg
FischerHausZweifamilienhaus 342
homeLandhäuser
livingArea342 m²
energyStandardEffizienzhaus 40 Plus
Preis anfragen
Katalog bestellen

Zweifamilienhaus 342

Familiär - Doppeltes Wohnglück in einem Haus

Mit dem flachen Satteldach und dem hohen Kniestock ergibt das Zweifamilienhaus ein in sich stimmiges Bild. Spannung kommt durch die rotfarbenen Fenster ins Spiel. Das Haus bietet mit zwei übereinander liegenden Wohnungen das perfekte Zuhause für insgesamt zwei Familien.

Großzügige und lichtdurchflutete Wohn-/ Essbereiche mit Gartenblick bilden das Herzstück des Hauses. Eine zweiflüglige Türe führt hinaus auf die Terrasse bzw. den großen Balkon in warmen Holzfarben.

Hausdaten

Hausart Icon
HausartZweifamilienhaus
Bauweise Icon
BauweiseHolz-Tafelbau
Anzahl Räume Icon
Anzahl Räume9
Baustil Icon
BaustilLandhäuser
Fassade Icon
FassadePutz
Außenmaße Icon
Außenmaße11.3 m x 12.6 m
Wohnfläche Icon
Wohnfläche342.01 m²
Dachform Icon
DachformSattel-/Giebeldach
Etagen Icon
Etagen1.5
Energiestandard Icon
EnergiestandardEffizienzhaus 40 Plus
Immobilientyp Icon
ImmobilientypKundenhaus
Dachneigung Icon
Dachneigung22°
Mittlerer U-Wert Icon
Mittlerer U-Wert0.12 W/m²K
Hauseigenschaften Icon
HauseigenschaftenBalkon, Keller, Gästezimmer
Heizungsart Icon
HeizungsartWärmepumpe (Luft, Wasser, oder beides)
Pfeil nach unten linksWir schaffen Platz für Ihre Träume

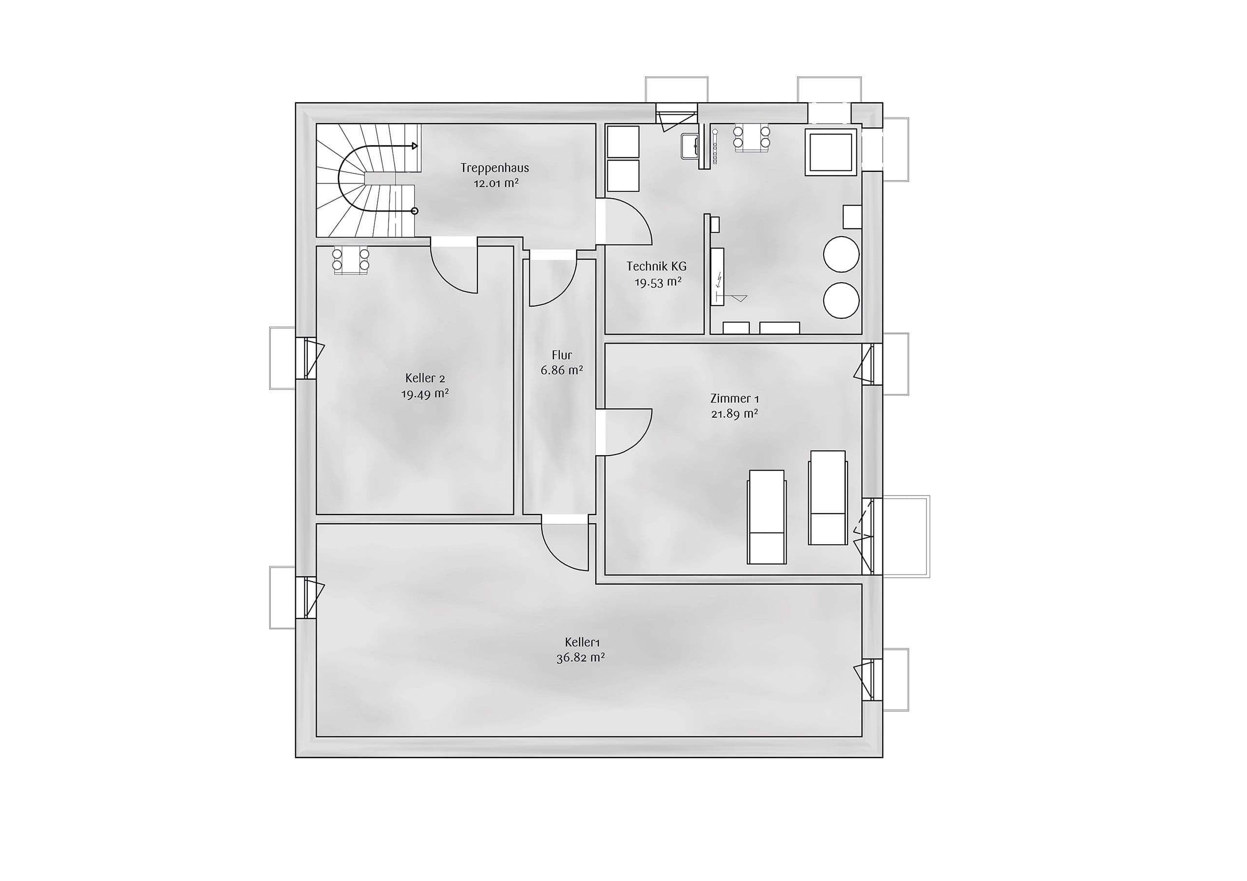
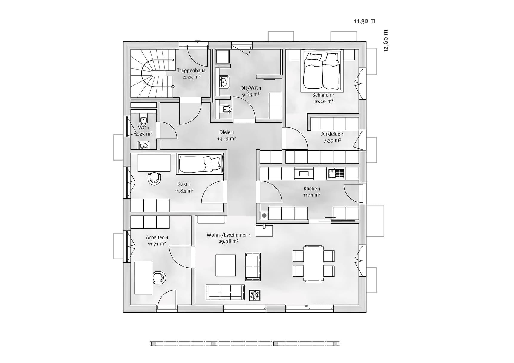
Grundriss

Grundriss_Zweifamilienhaus342_KG.jpg
Zweifamilienhaus 342 Grundriss (Keller)Wohnfläche KG: 116,6 m²
Grundriss_Zweifamilienhaus342_EG.jpg
Zweifamilienhaus 342 Grundriss (EG)Wohnfläche EG: 112,47 m²
Grundriss_Zweifamilienhaus342_OG.jpg
Zweifamilienhaus 342 Grundriss (DG)Wohnfläche DG: 112,94 m²

Kataloge

FischerHaus: Hauskatalog
FischerHaus

FischerHaus: Hauskatalog


House and TreeParksHouse and PinHäuser liveHouse on HandAnbieter