1. AnbieterArrow Icon
  2. FischerHausArrow Icon
  3. 11- Familienhaus 988
Slide 1
Slide 2
Slide 3
Slide 4
Slide 5
Slide 6
Slide 7
Slide 8
Slide 9
Slide 10
Slide 11
Slide 12
Slide 13
Slide 14
FischerHaus-Logo-2023.jpg
FischerHaus11- Familienhaus 988
homeKubushäuser im Bauhausstil
livingArea988 m²
energyStandardEffizienzhaus 40 Plus
Preis anfragen
Katalog bestellen

11- Familienhaus 988

Zukunft baut!

„Wenn Zukunft selbst entscheiden könnte, sie würde bauen. Denn Bauen schafft Immobilienwerte, inflationsgeschützt und krisenfest. Ein wesentlicher Baustein für einen soliden Vermögensaufbau mit kontinuierlicher Rendite. Also das was eine gesicherte Zukunft ausmacht.“

Das 11-Familienhaus ist unter Einhaltung der baurechtlichen Anforderungen an die Barrierefreiheit. Selbstbestimmt in ihren eigenen vier Wänden wohnen. Barrierefreiheit bedeutet, dass jede Wohneinheit von allen Menschen ohne fremde Hilfe und ohne jegliche Einschränkung genutzt werden kann. Z.b. der Aufzug im Haus, ebenso große Türen, Wohnräume und Eingangsbereiche sowie schwellenlose Übergänge. 

Jede Wohnung verfügt zudem über einen Balkon oder eine Loggia. Für jeden Mieter heißt das ein Stück Freiheit an der Sonne und der frischen Luft. 

Viel mehr als nur ein Fundament erfüllt das Untergeschoss viele notwendige Funktionen im Mehrfamilienhaus unserer Baufamilie. Die erforderlichen Flächen für PKW, Fahrräder und E-Ladestationen lassen sich kaum oberirdisch bereitstellen. Gut geplant und sauber ausgeführt bildet das vom Treppenhaus bzw. Aufzug zugängliche Untergeschoss einen spürbaren Mehrwert für jede einzelne Wohnung. Spürbar auch anhand der Mieterzufriedenheit. Komfort beginnt im Untergeschoss.

Hausdaten

Hausart Icon
HausartMehrfamilienhaus
Bauweise Icon
BauweiseHolz-Tafelbau
Baustil Icon
BaustilKubushäuser im Bauhausstil
Fassade Icon
FassadePutz
Außenmaße Icon
Außenmaße27.77 m x 19.83 m
Wohnfläche Icon
Wohnfläche988.15 m²
Dachform Icon
DachformFlachdach
Etagen Icon
Etagen3
Energiestandard Icon
EnergiestandardEffizienzhaus 40 Plus
Immobilientyp Icon
ImmobilientypKundenhaus
Hausdämmstoff Icon
HausdämmstoffMineralfaser (Glaswolle, Steinwolle)
Heizungsart Icon
HeizungsartWärmepumpe (Luft, Wasser, oder beides)
Pfeil nach unten linksWir schaffen Platz für Ihre Träume

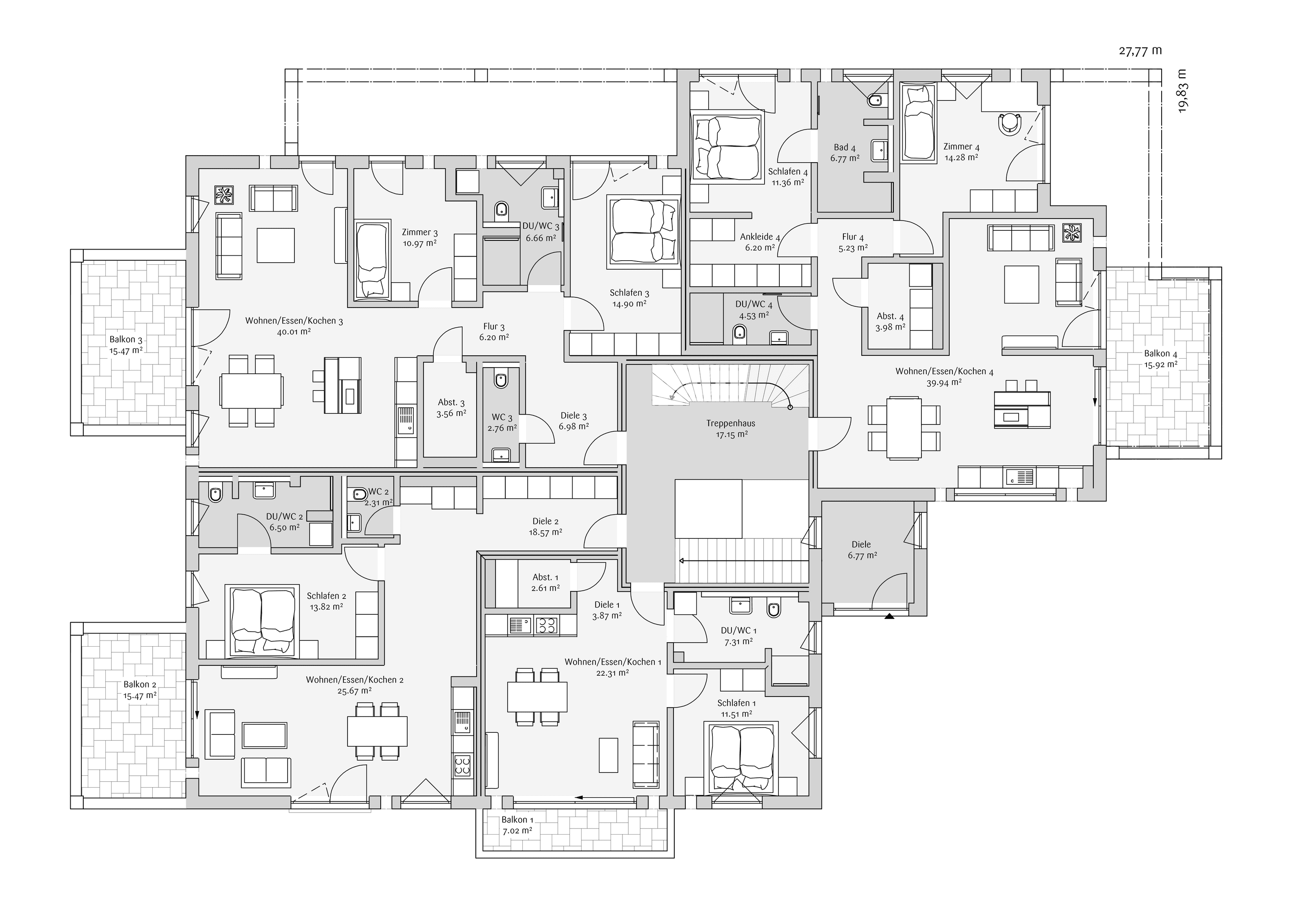
Grundriss

Grundriss_Elffamilienhaus988_EG.png
11- Familienhaus 988 Grundriss (EG)Wohnfläche EG: 349,68 m²
Grundriss_Elffamilienhaus988_OG1.png
11- Familienhaus 988 Grundriss (OG)Wohnfläche OG: 347,04 m²
Grundriss_Elffamilienhaus988_OG2.png
11- Familienhaus 988 Grundriss (DG)Wohnfläche DG: 291,43 m²

Kataloge

FischerHaus: Hauskatalog
FischerHaus

FischerHaus: Hauskatalog


House and TreeParksHouse and PinHäuser liveHouse on HandAnbieter