1. AnbieterArrow Icon
  2. FischerHausArrow Icon
  3. Modern 147
Slide 1
Slide 2
Slide 3
Slide 4
Slide 5
Slide 6
Slide 7
FischerHaus-Logo-2023.jpg
FischerHausModern 147
homeKlassische Familienhäuser
livingArea150 m²
energyStandardEffizienzhaus 40
Preis anfragen
Katalog bestellen

Modern 147

Bodenständiges, familiengerechtes Satteldachhaus

Unser Kundenhaus ist für Menschen, die Gemütlichkeit schätzen und trotzdem auf moderne Gestaltungselemente, wie z.B. bodentiefe Fenster, nicht verzichten möchten. 

Der Grundriss ist genau an die individuellen Ideen und Bedürfnisse unseres Baupaares angepasst.

Ein großzügiger Wohnbereich, ideal als kommunikativer Bereiche für die ganze Familie und Freunde geeignet, ausreichend Platz in der Küche, die Möglichkeit von zu Hause aus zu arbeiten sowie ein eigenes Zimmer zum Ankleiden, all das ist geboten. Den eindrucksvollsten Auftritt legt im Erdgeschoss jedoch der rießen Eingangsbereich mit knapp 20 qm hin.

Hausdaten

Hausart Icon
HausartEinfamilienhaus
Bauweise Icon
BauweiseHolz-Skelettbauweise
Baustil Icon
BaustilKlassische Familienhäuser
Fassade Icon
FassadePutz
Außenmaße Icon
Außenmaße10.52 m x 9.02 m
Wohnfläche Icon
Wohnfläche149.93 m²
Dachform Icon
DachformSattel-/Giebeldach
Etagen Icon
Etagen1.5
Energiestandard Icon
EnergiestandardEffizienzhaus 40
Immobilientyp Icon
ImmobilientypKundenhaus
Dachneigung Icon
Dachneigung22°
Hauseigenschaften Icon
HauseigenschaftenGästezimmer, Terasse, Integriertes Carport
Hausdämmstoff Icon
HausdämmstoffMineralfaser (Glaswolle, Steinwolle)
Heizungsart Icon
HeizungsartWärmepumpe (Luft, Wasser, oder beides)
Pfeil nach unten linksWir schaffen Platz für Ihre Träume

Grundriss

Grundriss_Modern147_EG.png
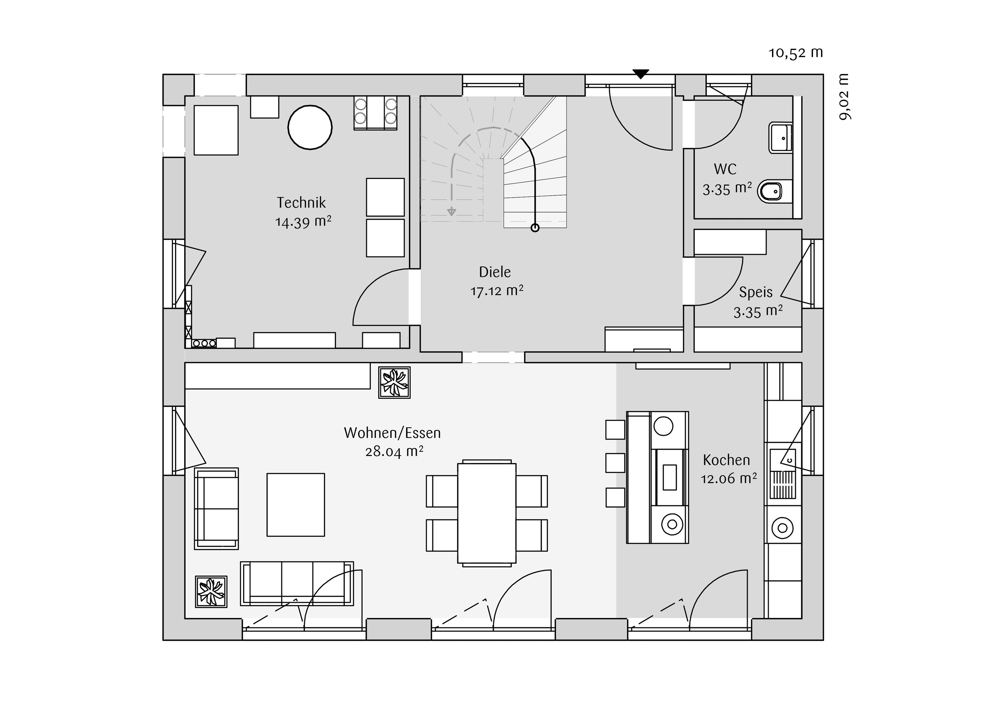
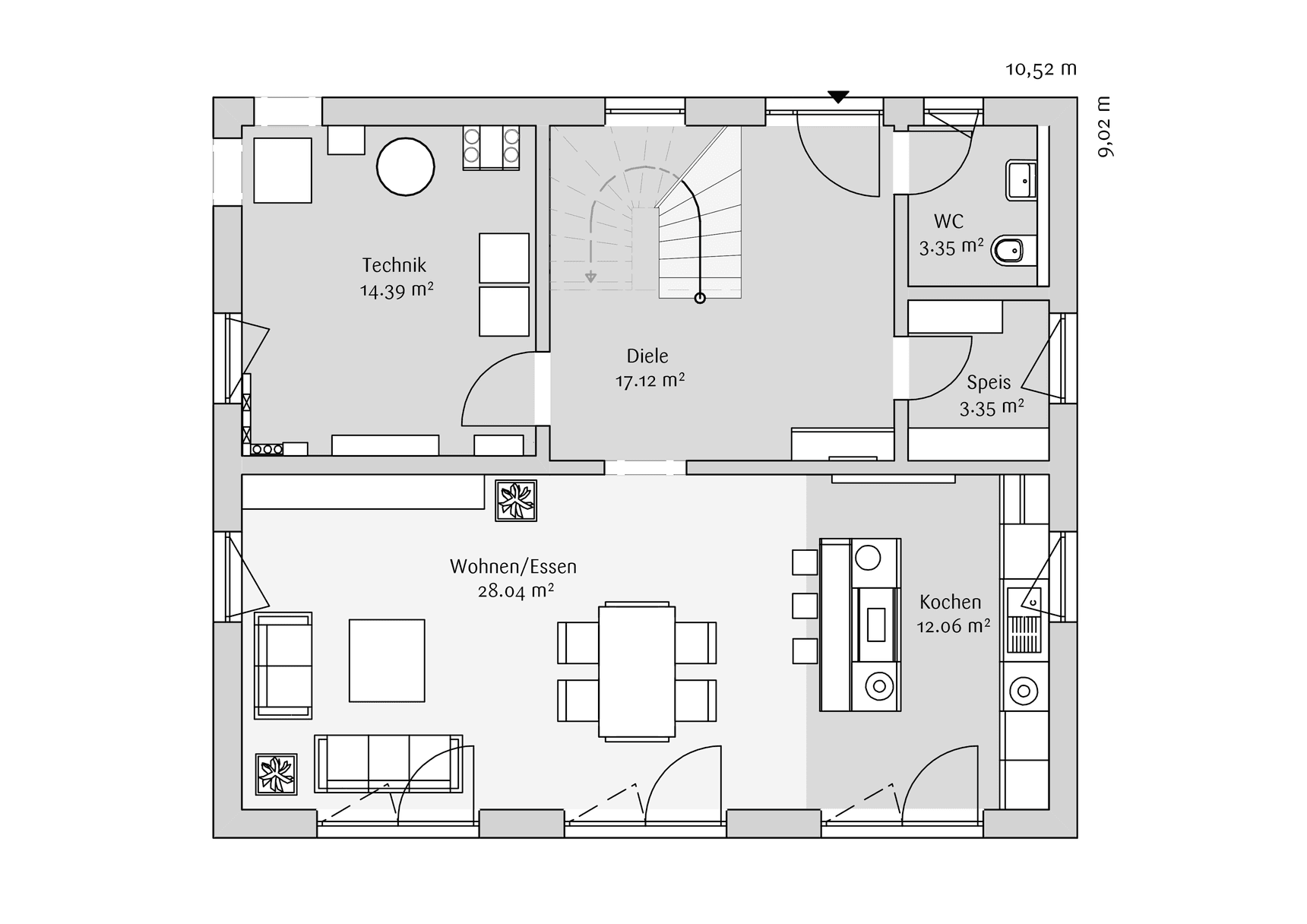
Modern 147 Grundriss (EG)Wohnfläche EG: 78,31 m²
Grundriss_Modern147_OG.png
Modern 147 Grundriss (DG)

Kataloge

FischerHaus: Hauskatalog
FischerHaus

FischerHaus: Hauskatalog


House and TreeParksHouse and PinMusterhausHouse on HandAnbieter