1. AnbieterArrow Icon
  2. FischerHausArrow Icon
  3. FischerHaus - Stadtvilla 212
Slide 1
Slide 2
Slide 3
Slide 4
Slide 5
Slide 6
FischerHaus-Logo-2023.jpg
FischerHausFischerHaus - Stadtvilla 212
homeStadtvillen
livingArea209 m²
energyStandardEffizienzhaus 40
Preis anfragen
Katalog bestellen

FischerHaus - Stadtvilla 212

Mehr Wohnraum für unsere Familie

Genügend Freiraum für alle
Schon bei der Planung war uns klar, dass 3 Kinderzimmer für unser neues Haus höchste Priorität haben. Unsere Kinder brauchen endlich alle ein eigenes Reich wo sie sich zurückziehen können. Besonders der Baustil der Stadtvilla überzeugte uns mit seinen vielen Vorzügen. Die fehlenden Schrägen im Dachgeschoss und somit mehr Platz für unsere 5 köpfige Familie auf allen Ebenen begeisterten uns. Die großen Kinderzimmer sowie das Familienbadezimmer und das separate Spielzimmer für unsere Kinder das sich im Erdgeschoss befindet sind für uns die Highlights des Hauses. Unsere Stadtvilla von FischerHaus wurde genau so umgesetzt wie wir es uns vorgestellt haben. Perfekt zugeschnitten auf unsere Familie.“

KfW-Effizienzhaus 40 mindert die Nebenkosten auf ein Minimum

Wie alle Fischer-Häuser ist auch der Neubau bei Ingolstadt ein KfW-Effizienzhaus 40. Als ein solches hat das Haus einen geringen Heizbedarf, um die Bewohner mit Warmwasser zu versorgen und die Räume angenehm zu temperieren. Somit reduzieren sich die Nebenkosten auf ein Minimum: Der durchschnittliche Endenergiebedarf eines Fischer-Hauses als Effizienzhaus beläuft sich auf ca.
12 kWh/m²a. Damit liegt es im A+-Bereich der Energieeffizienz-Klassifizierung.

Durch eine stetig verschärfte Energieeinsparverordnung steigen die Anforderungen an die Qualität von Neubauten kontinuierlich. Ihre zulässigen Energieverbrauchswerte wurden ab 2009 bereits um 30 % gesenkt und werden ab dem 1. Januar 2016 nochmals verringert werden: Der zulässige Jahres-Primärenergiebedarf wird um durchschnittlich 25 % und die Wärmedämmung der Gebäudehülle, der zulässige Wärmedurchgangskoeffizient, um durchschnittlich 20 % gekürzt. Das Ziel: Bis 2021 sollen alle Neubauten als Null-Energie-Häuser realisiert werden.

Für das Unternehmen FischerHaus geht diese schrittweise Verschärfung viel zu langsam. Schließlich baut der Haushersteller schon seit einigen Jahren im Bereich A+. Bauherren eines Fischer-Hauses haben also schon längst ihre ganz persönliche Energiewende eingeläutet.

Auf die Hülle kommt es an!

Diese hohe Energieeffizienz ist auf die besondere Bauweise von FischerHaus zurückzuführen: Für die bauliche Hülle haben sich die Fischer-Bauexperten die Eisbären zum Vorbild genommen. Das Prinzip aus der Natur: So wenig Energie wie möglich an die Umwelt verlieren, so viel Energie wie möglich aus der Umwelt nutzen. Eisbären sind nicht nur einfach warm angezogen, sondern nutzen eine Kombination mehrerer Effekte. Das dichte Fell dient zum Schutz gegen die Kälte. Jedes Haar ist von einem öligen Film umgeben, der das eiskalte Wasser beim Schwimmen abhält. Gleichzeitig schließen die dicht stehenden Fellhaare Luft ein und erzeugen so eine Isolierschicht. Da die Fellhaare innen hohl sind, leiten sie die wärmenden Sonnenstrahlen auf die schwarze Haut des Eisbären, die diese Wärme durch ihre dicke Fettschicht speichert.

Übertragen auf ein FischerHaus heißt das Eisbären-Prinzip: perfekt gegen die Umwelt gedämmt und gleichzeitig extrem an die Umwelt angepasst, indem effizient genutzt wird, was die Natur an Energie zu bieten hat. Ein Fischer-Haus ist sommerlicher Hitzeschutz und winterlicher Kälteschutz zugleich. Außerdem gehört eine sparsame Haustechnik mit Wärmepumpe und kontrollierter Lüftungsanlage zum Standard. Und schließlich müssen diese Systeme intelligent miteinander kommunizieren, damit die Energie richtig eingesetzt wird.

 

Hausdaten

Hausart Icon
HausartEinfamilienhaus
Bauweise Icon
BauweiseHolz-Tafelbau
Baustil Icon
BaustilStadtvillen
Fassade Icon
FassadePutz
Außenmaße Icon
Außenmaße13.4 m x 9.1 m
Wohnfläche Icon
Wohnfläche209.26 m²
Dachform Icon
DachformWalm-/Zeltdach
Energiestandard Icon
EnergiestandardEffizienzhaus 40
Immobilientyp Icon
ImmobilientypKundenhaus
Dachneigung Icon
Dachneigung22°
Hauseigenschaften Icon
HauseigenschaftenTerasse
Hausdämmstoff Icon
HausdämmstoffMineralfaser (Glaswolle, Steinwolle)
Heizungsart Icon
HeizungsartWärmepumpe (Luft, Wasser, oder beides)
Pfeil nach unten linksWir schaffen Platz für Ihre Träume

Grundriss

no description
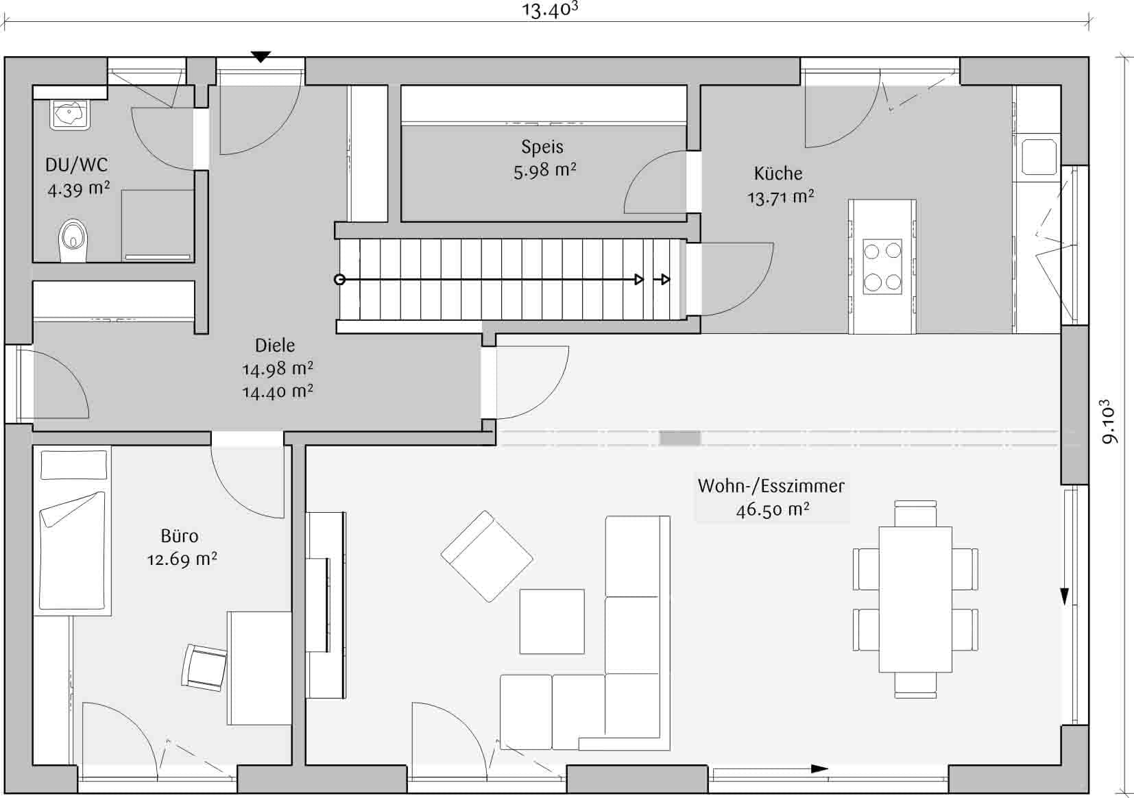
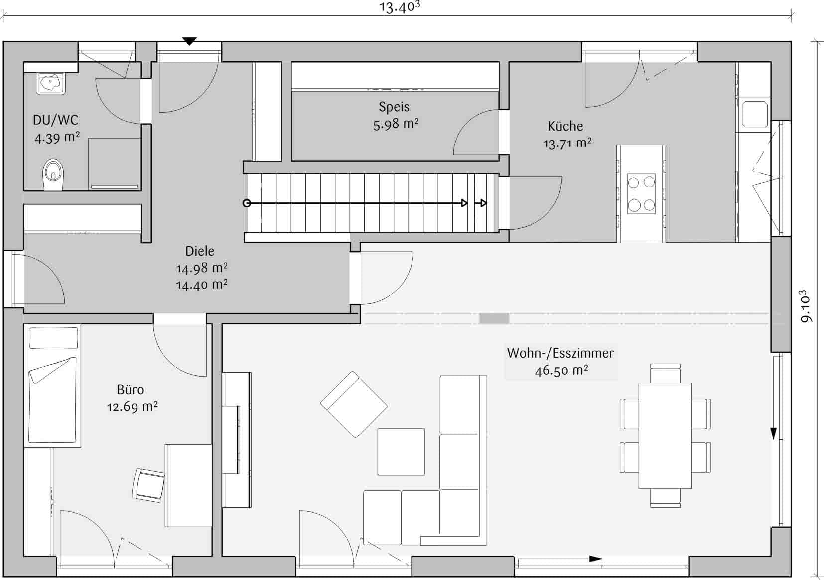
FischerHaus - Stadtvilla 212 Grundriss (EG)Wohnfläche EG: 112,65 m²
no description
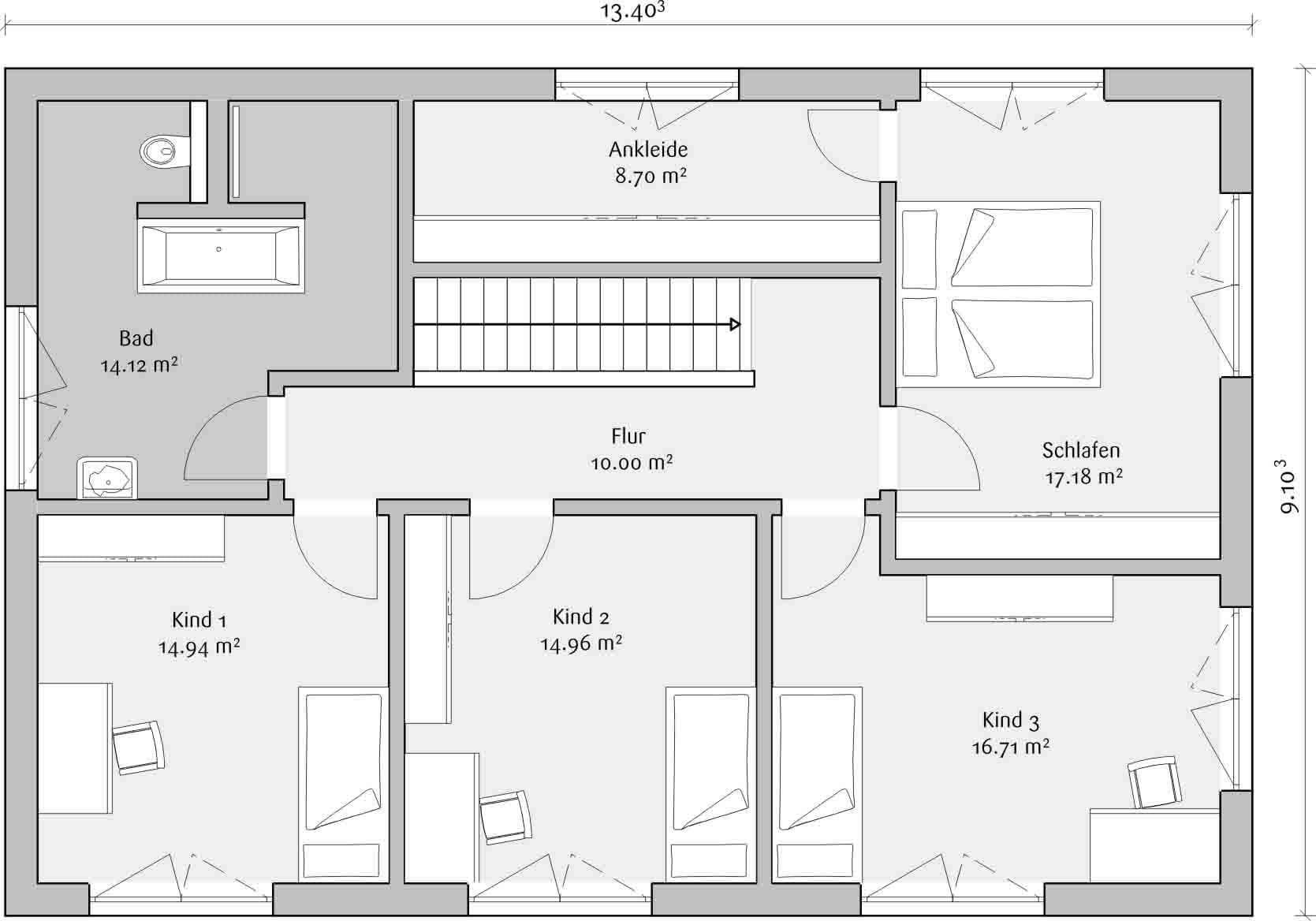
FischerHaus - Stadtvilla 212 Grundriss (OG)Wohnfläche OG: 96,61 m²

Kataloge

FischerHaus: Hauskatalog
FischerHaus

FischerHaus: Hauskatalog


House and TreeParksHouse and PinMusterhausHouse on HandAnbieter