1. AnbieterArrow Icon
  2. FischerHausArrow Icon
  3. FischerHaus - Stadtvilla 200
Slide 1
Slide 2
Slide 3
Slide 4
Slide 5
Slide 6
Slide 7
FischerHaus-Logo-2023.jpg
FischerHausFischerHaus - Stadtvilla 200
homeStadtvillen
livingArea201 m²
energyStandardEffizienzhaus 40 Plus
Preis anfragen
Katalog bestellen

FischerHaus - Stadtvilla 200

Ganz ohne Schrägen!

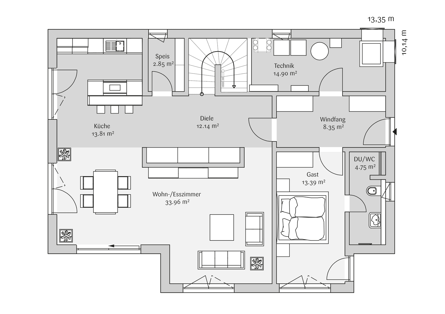
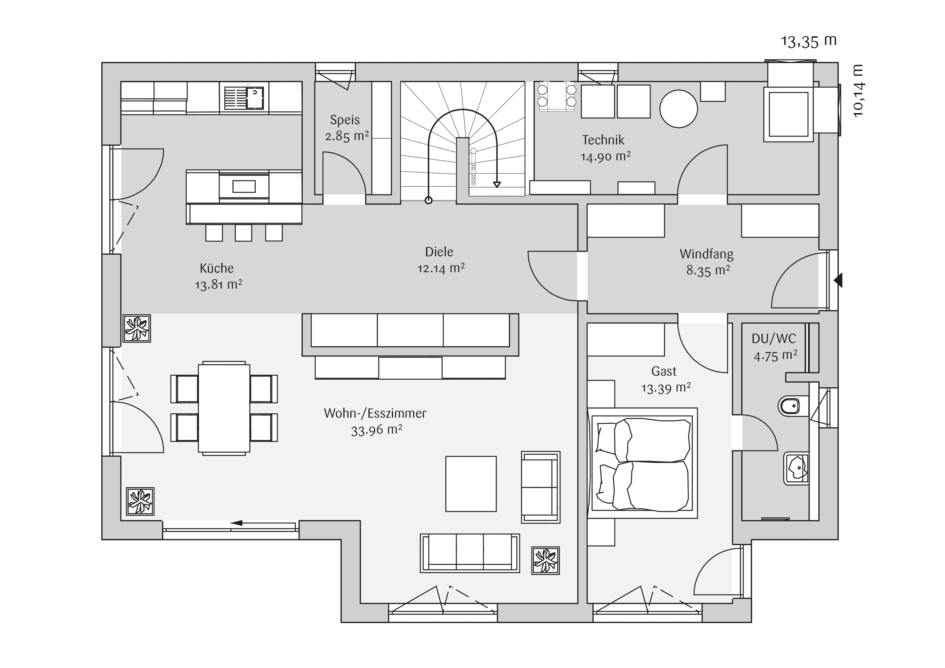
Eine Stadtvilla sollte es sein, großzügig, offen, hell und vor allem mit Räumen ohne Dachschrägen – das war der Wunsch. Das junge Paar wollte zudem eine offene Küche und ein kombiniertes Ess- und Wohnzimmer. Im Erdgeschoss werden die Bewohner von einem Windfang empfangen, der in eine repräsentative Diele mit Treppenaufgang führt. Die Privaträume der dreiköpfigen Familie befinden sich klassisch im Obergeschoss. Im großen Familienbadezimmer befindet sich sogar eine Sauna zum Entspannen.

Hausdaten

Hausart Icon
HausartEinfamilienhaus
Bauweise Icon
BauweiseHolz-Tafelbau
Anzahl Räume Icon
Anzahl Räume12
Baustil Icon
BaustilStadtvillen
Fassade Icon
FassadePutz
Außenmaße Icon
Außenmaße13.35 m x 10.14 m
Wohnfläche Icon
Wohnfläche200.83 m²
Dachform Icon
DachformWalm-/Zeltdach
Energiestandard Icon
EnergiestandardEffizienzhaus 40 Plus
Immobilientyp Icon
ImmobilientypKundenhaus
Dachneigung Icon
Dachneigung22°
Hauseigenschaften Icon
HauseigenschaftenGästezimmer
Heizungsart Icon
HeizungsartWärmepumpe (Luft, Wasser, oder beides)
Pfeil nach unten linksWir schaffen Platz für Ihre Träume

Grundriss

no description
FischerHaus - Stadtvilla 200 Grundriss (EG)Wohnfläche EG: 104,14 m²
no description
FischerHaus - Stadtvilla 200 Grundriss (OG)Wohnfläche OG: 96,69 m²

Kataloge

FischerHaus: Hauskatalog
FischerHaus

FischerHaus: Hauskatalog


House and TreeParksHouse and PinMusterhausHouse on HandAnbieter