1. AnbieterArrow Icon
  2. FischerHausArrow Icon
  3. FischerHaus - Stadtvilla 160
Slide 1
Slide 2
Slide 3
Slide 4
Slide 5
FischerHaus-Logo-2023.jpg
FischerHausFischerHaus - Stadtvilla 160
homeStadtvillen
livingArea170 m²
energyStandardEffizienzhaus 40 Plus
Preis anfragen
Katalog bestellen

FischerHaus - Stadtvilla 160

Individuell und energieeffizient

Das Baupaar berichtet!

„Nachdem wir uns einige Bestandsimmobilien angesehen haben, war klar, dass wir unsere eigenen Vorstellungen nur mit einem neuen Haus umsetzen können. Eine Stadtvilla soll es sein, großzügig, offen, hell und vor allem mit Räumen ohne Dachschrägen, das war unser Wunsch. Wir träumten von einer offenen Küche und einem kombinierten Ess- und Wohnzimmer. Daher wurde für uns der Grundriss entsprechend angepasst und eine Trennwand weggelassen. Bei jeder noch so kleinen Frage wurde uns geduldig und verständnisvoll alles bis ins Detail erklärt. In FischerHaus haben wir einen Baupartner gefunden, dem wir voll und ganz vertrauten."

KfW-Effizienzhaus 40 mindert die Nebenkosten auf ein Minimum

Wie alle Fischer-Häuser ist auch der Neubau bei Ingolstadt ein KfW-Effizienzhaus 40. Als ein solches hat das Haus einen geringen Heizbedarf, um die Bewohner mit Warmwasser zu versorgen und die Räume angenehm zu temperieren. Somit reduzieren sich die Nebenkosten auf ein Minimum: Der durchschnittliche Endenergiebedarf eines Fischer-Hauses als Effizienzhaus beläuft sich auf ca.
12 kWh/m²a. Damit liegt es im A+-Bereich der Energieeffizienz-Klassifizierung.

Durch eine stetig verschärfte Energieeinsparverordnung steigen die Anforderungen an die Qualität von Neubauten kontinuierlich. Ihre zulässigen Energieverbrauchswerte wurden ab 2009 bereits um 30 % gesenkt und werden ab dem 1. Januar 2016 nochmals verringert werden: Der zulässige Jahres-Primärenergiebedarf wird um durchschnittlich 25 % und die Wärmedämmung der Gebäudehülle, der zulässige Wärmedurchgangskoeffizient, um durchschnittlich 20 % gekürzt. Das Ziel: Bis 2021 sollen alle Neubauten als Null-Energie-Häuser realisiert werden.

Für das Unternehmen FischerHaus geht diese schrittweise Verschärfung viel zu langsam. Schließlich baut der Haushersteller schon seit einigen Jahren im Bereich A+. Bauherren eines Fischer-Hauses haben also schon längst ihre ganz persönliche Energiewende eingeläutet.

Hausdaten

Hausart Icon
HausartEinfamilienhaus
Bauweise Icon
BauweiseHolz-Tafelbau
Baustil Icon
BaustilStadtvillen
Fassade Icon
FassadePutz
Außenmaße Icon
Außenmaße11.48 m x 9.35 m
Wohnfläche Icon
Wohnfläche170.31 m²
Dachform Icon
DachformWalm-/Zeltdach
Energiestandard Icon
EnergiestandardEffizienzhaus 40 Plus
Immobilientyp Icon
ImmobilientypKundenhaus
Dachneigung Icon
Dachneigung22°
Hausdämmstoff Icon
HausdämmstoffMineralfaser (Glaswolle, Steinwolle)
Heizungsart Icon
HeizungsartWärmepumpe (Luft, Wasser, oder beides)
Pfeil nach unten linksWir schaffen Platz für Ihre Träume

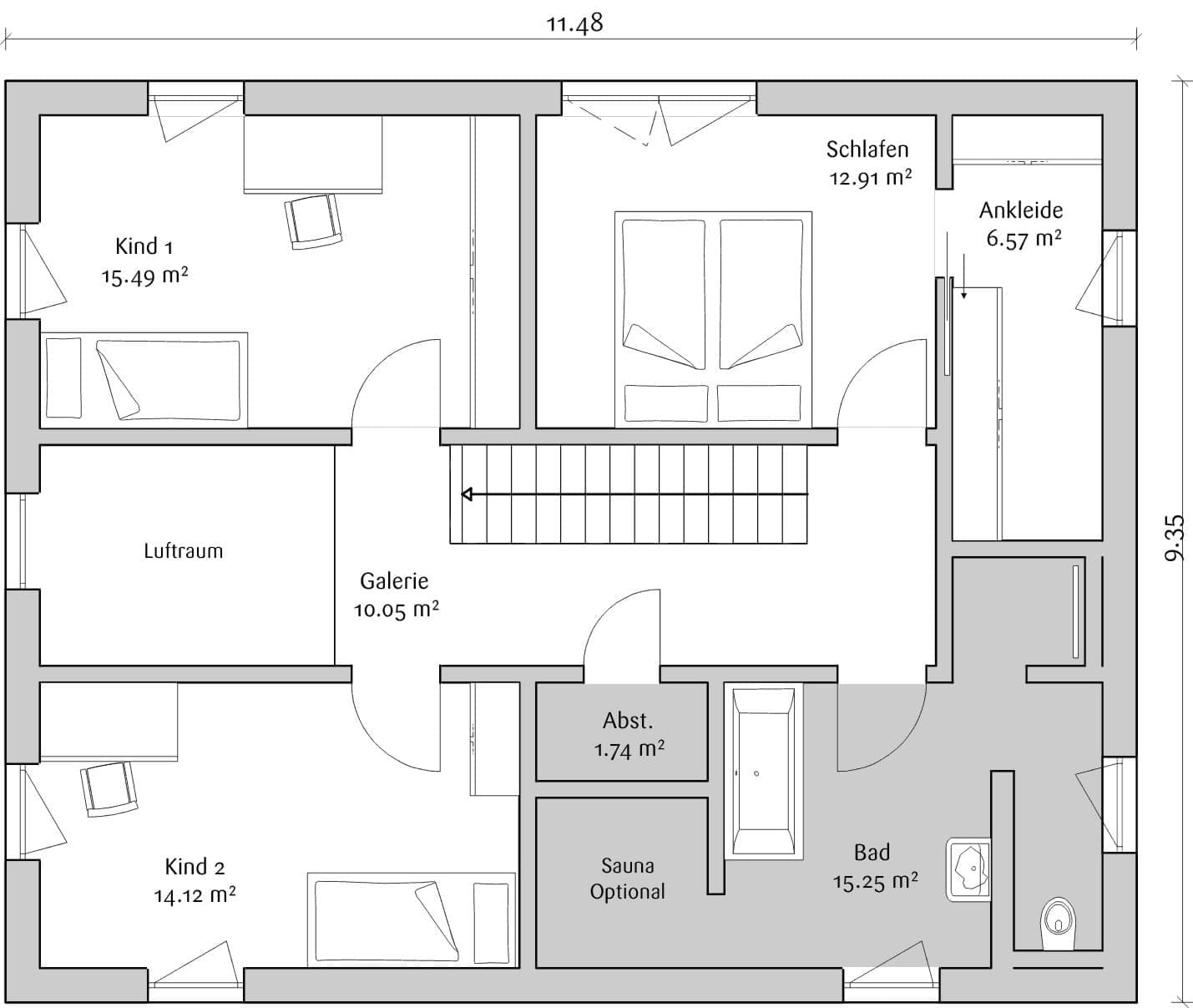
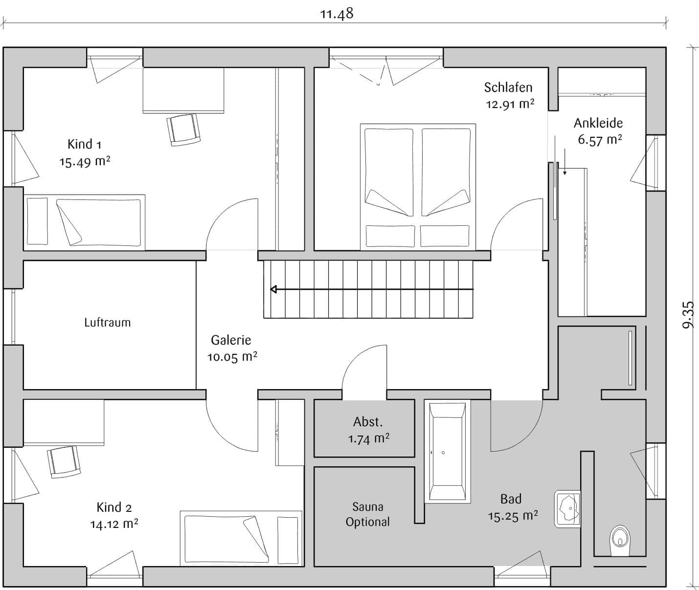
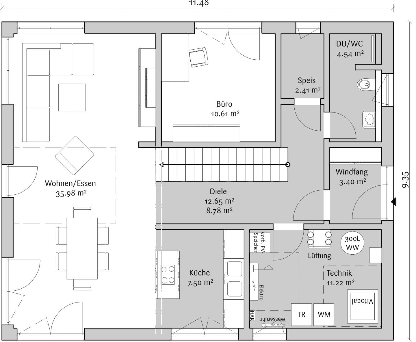
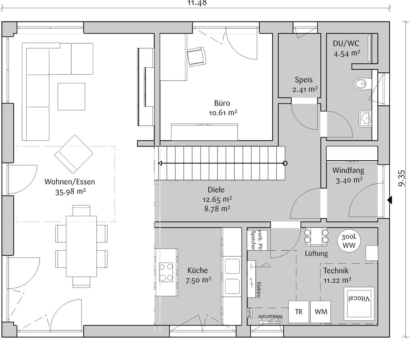
Grundriss

no description
FischerHaus - Stadtvilla 160 Grundriss (EG)Wohnfläche EG: 90,98 m²
no description
FischerHaus - Stadtvilla 160 Grundriss (OG)Wohnfläche OG: 79,33 m²

Kataloge

FischerHaus: Hauskatalog
FischerHaus

FischerHaus: Hauskatalog


House and TreeParksHouse and PinMusterhausHouse on HandAnbieter