1. AnbieterArrow Icon
  2. FischerHausArrow Icon
  3. FischerHaus - Modern 263
Slide 1
Slide 2
Slide 3
Slide 4
Slide 5
Slide 6
Slide 7
FischerHaus-Logo-2023.jpg
FischerHausFischerHaus - Modern 263
homeKlassische Familienhäuser
livingArea263 m²
energyStandardEffizienzhaus 40 Plus
Preis anfragen
Katalog bestellen

FischerHaus - Modern 263

Mit den Eltern ins Traumhaus

Die Zwei modernen Hauskörper die optisch über einen Zwischenbau miteinander verbunden sind, lassen maximalen Spielraum zur individuellen Gestaltung zu. Ein echter Blickfang in jedem Baugebiet.

Ein repräsentatives Zweifamilienhaus, dessen Fassade durch klare Linien überzeugt. Die geräumige Terrasse bietet Platz für viele Gäste. Ein besondere Highlight ist dabei die großzügige Dachterasse , die nicht nur praktisch ist, sondern auch ein mediterranes Lebensgefühl vermittelt. Der Grundriss ist offen und kommunikativ gestaltet, mit gut abgestimmten Proportionen und optimierten Laufwegen.

Hausdaten

Hausart Icon
HausartZweifamilienhaus
Bauweise Icon
BauweiseHolz-Tafelbau
Anzahl Räume Icon
Anzahl Räume16
Baustil Icon
BaustilKlassische Familienhäuser
Fassade Icon
FassadePutz
Außenmaße Icon
Außenmaße21.2 m x 13 m
Wohnfläche Icon
Wohnfläche263.26 m²
Dachform Icon
DachformFlachdach
Energiestandard Icon
EnergiestandardEffizienzhaus 40 Plus
Immobilientyp Icon
ImmobilientypKundenhaus
Hauseigenschaften Icon
HauseigenschaftenEinliegerwohnung
Heizungsart Icon
HeizungsartWärmepumpe (Luft, Wasser, oder beides)
Pfeil nach unten linksWir schaffen Platz für Ihre Träume

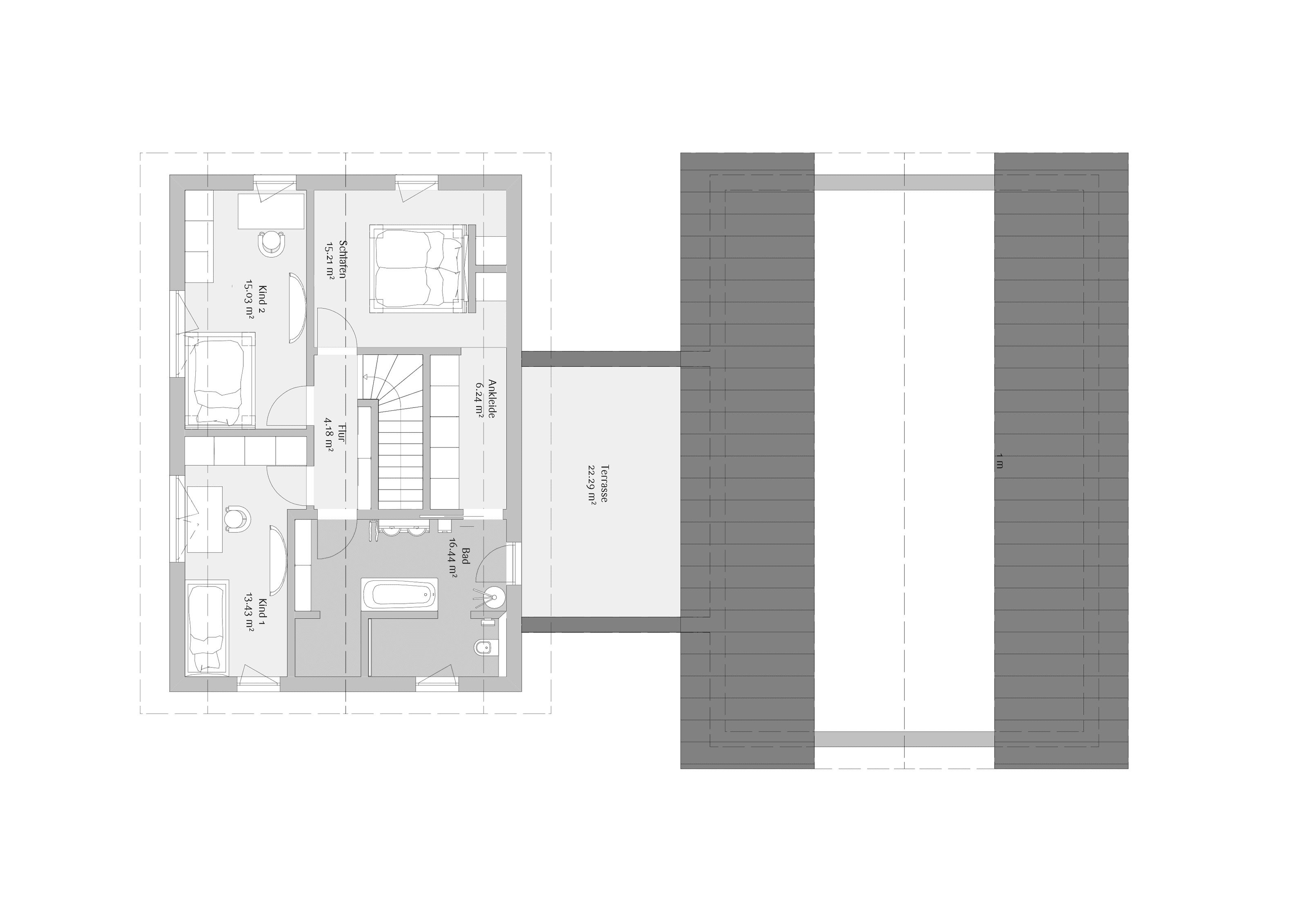
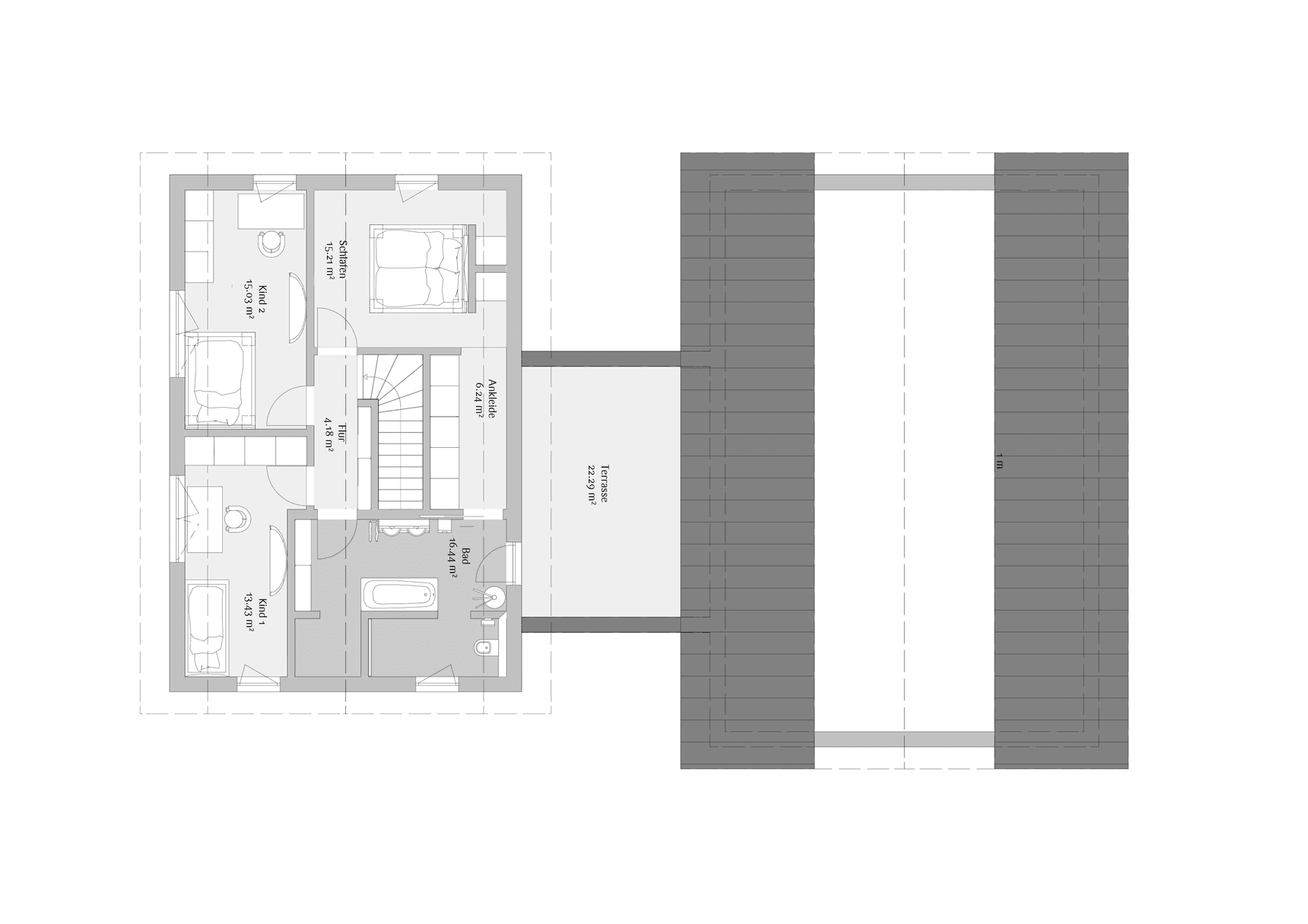
Grundriss

no description
FischerHaus - Modern 263 Grundriss (EG)Wohnfläche EG: 196,91 m²
no description
FischerHaus - Modern 263 Grundriss (OG)Wohnfläche OG: 66,35 m²

Kataloge

FischerHaus: Hauskatalog
FischerHaus

FischerHaus: Hauskatalog


House and TreeParksHouse and PinMusterhausHouse on HandAnbieter