1. AnbieterArrow Icon
  2. FischerHausArrow Icon
  3. FischerHaus - Modern 240
Slide 1
Slide 2
Slide 3
Slide 4
Slide 5
FischerHaus-Logo-2023.jpg
FischerHausFischerHaus - Modern 240
homeKlassische Familienhäuser
livingArea240 m²
energyStandardEffizienzhaus 40 Plus
Preis anfragen
Katalog bestellen

FischerHaus - Modern 240

Hausdaten

Hausart Icon
HausartEinfamilienhaus
Bauweise Icon
BauweiseHolz-Tafelbau
Baustil Icon
BaustilKlassische Familienhäuser
Fassade Icon
FassadePutz
Außenmaße Icon
Außenmaße14.93 m x 12.76 m
Wohnfläche Icon
Wohnfläche239.92 m²
Dachform Icon
DachformPultdach
Energiestandard Icon
EnergiestandardEffizienzhaus 40 Plus
Immobilientyp Icon
ImmobilientypKundenhaus
Hauseigenschaften Icon
HauseigenschaftenEinliegerwohnung
Heizungsart Icon
HeizungsartWärmepumpe (Luft, Wasser, oder beides)
Pfeil nach unten linksWir schaffen Platz für Ihre Träume

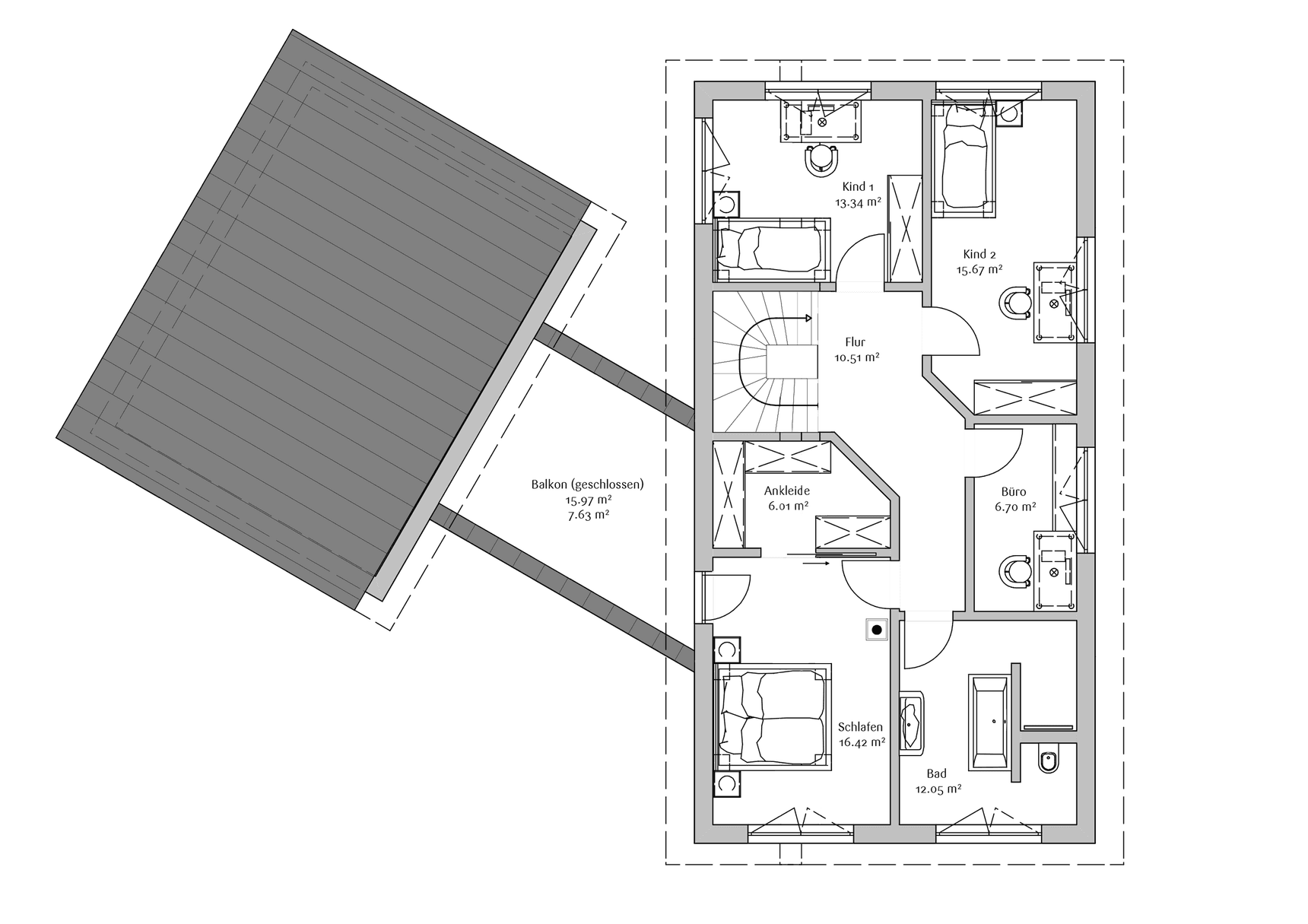
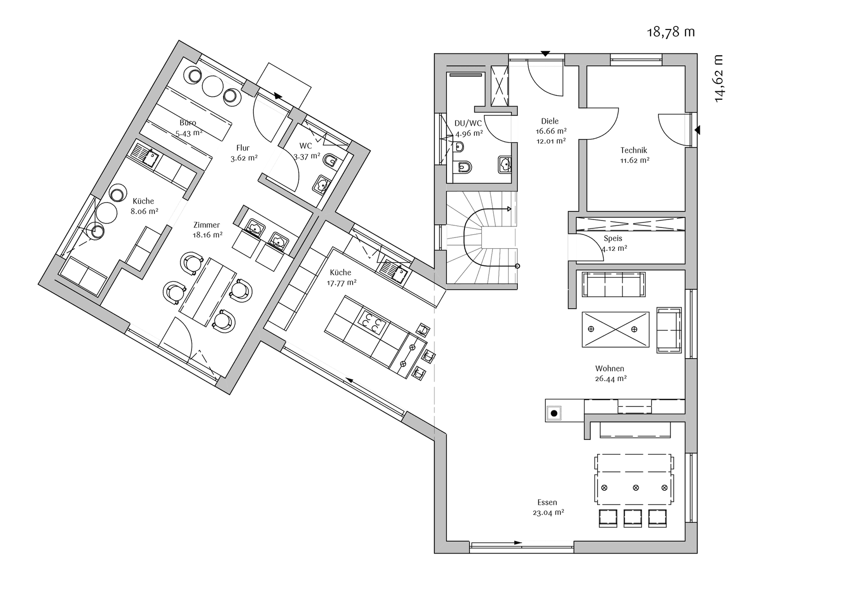
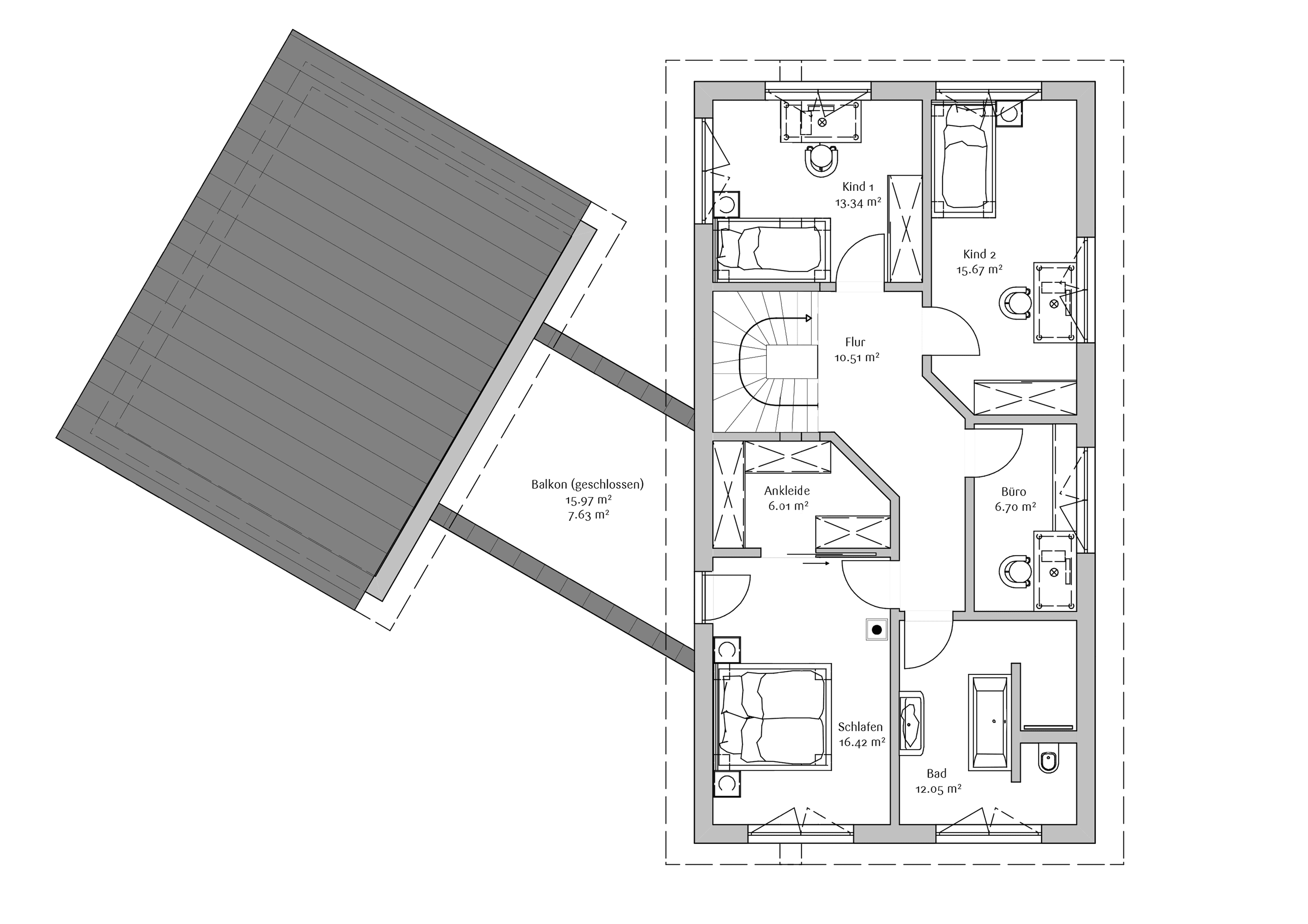
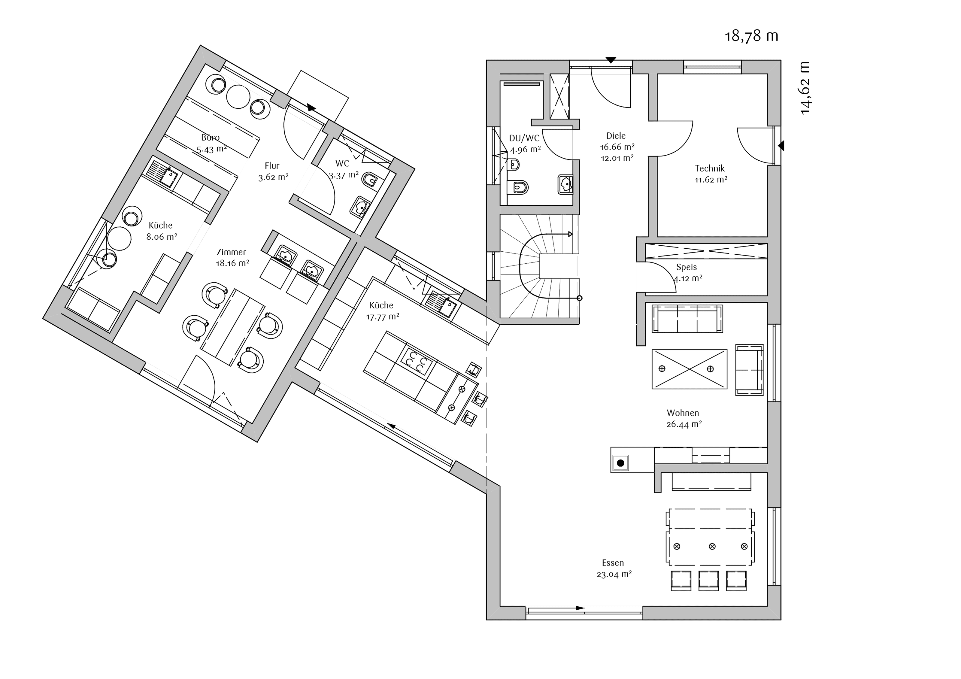
Grundriss

no description
FischerHaus - Modern 240 Grundriss (EG)Wohnfläche EG: 143,25 m²
no description
FischerHaus - Modern 240 Grundriss (OG)Wohnfläche OG: 96,67 m²

Kataloge

FischerHaus: Hauskatalog
FischerHaus

FischerHaus: Hauskatalog


House and TreeParksHouse and PinHäuser liveHouse on HandAnbieter