1. AnbieterArrow Icon
  2. FischerHausArrow Icon
  3. FischerHaus - Modern 239
Slide 1
Slide 2
Slide 3
Slide 4
Slide 5
Slide 6
Slide 7
Slide 8
Slide 9
Slide 10
FischerHaus-Logo-2023.jpg
FischerHausFischerHaus - Modern 239
homeKlassische Familienhäuser
livingArea240 m²
energyStandardEffizienzhaus 40 Plus
Preis anfragen
Katalog bestellen

FischerHaus - Modern 239

Gemeinsam leben, getrennt arbeiten

Der Entwurf Modern 239 von Fischerhaus mit Anbau ist eine freie Planung für eine junge Familie. Sie wünschte sich einerseits viel Platz zum Wohnen und Arbeiten und andererseits wenig Energiekosten. Erstaunliche knapp 240 Quadratmeter Wohnfläche sind auf den zwei Geschossen des Satteldachhauses und seinem Flachdach-Anbau untergebracht.

Vielseitig und anpassungsfähig

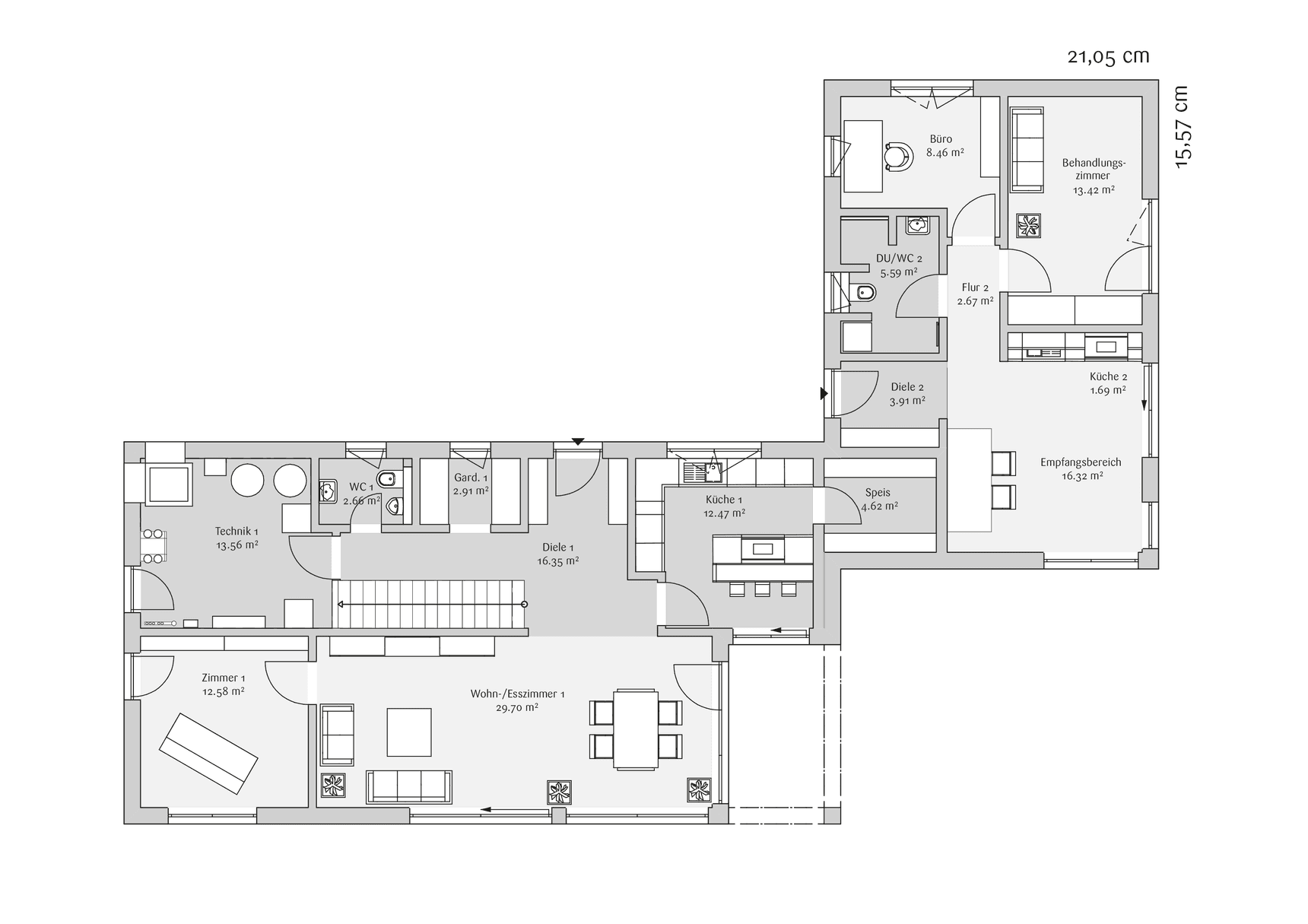
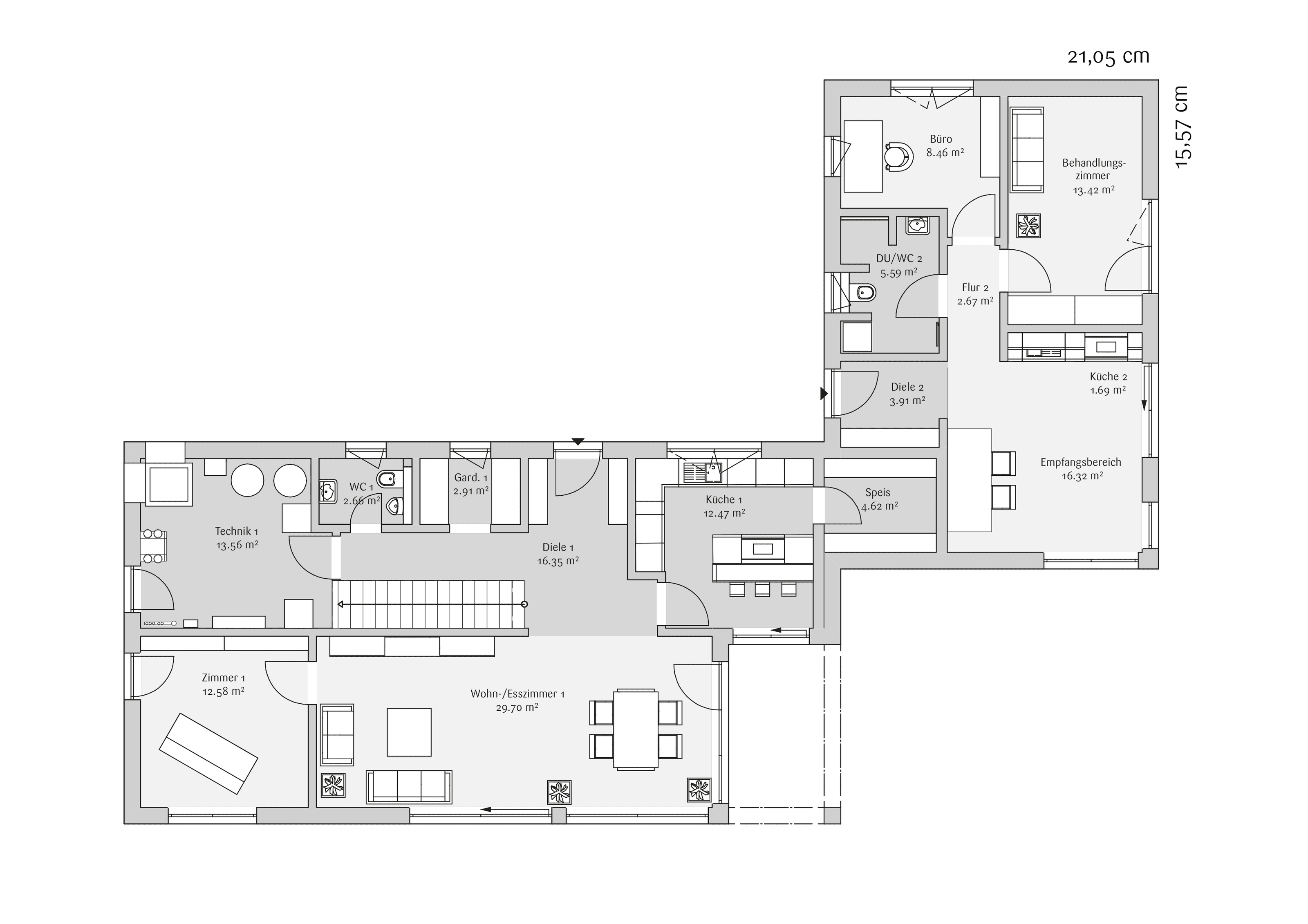
Durch den Anbau gewann das Baupaar ein sattes Plus an Stellfläche, Bewegungsfreiheit und Tageslicht. Er war dem Baupaar sehr wichtig. Fischerhaus hat diesen Wunsch respektiert und vor allem ansprechend realisiert. Der separat zu betretende Bau ist durch eine Wand von der Küche getrennt. Diese ist übrigens das Bindeglied zum Haupthaus. Im Anbau haben zurzeit ein Kosmetiksalon mit Büro, Behandlungszimmer, Küche, WC und großem Empfangsbereich Platz gefunden. Bodentiefen Fenster bieten einen unverstellten Ausblick in den Garten. Grundsätzlich kann der Anbau jedoch auch als Einliegerwohnung genutzt werden. Mit anderen Worten: Dieses Haus ist vielseitig und anpassungsfähig!

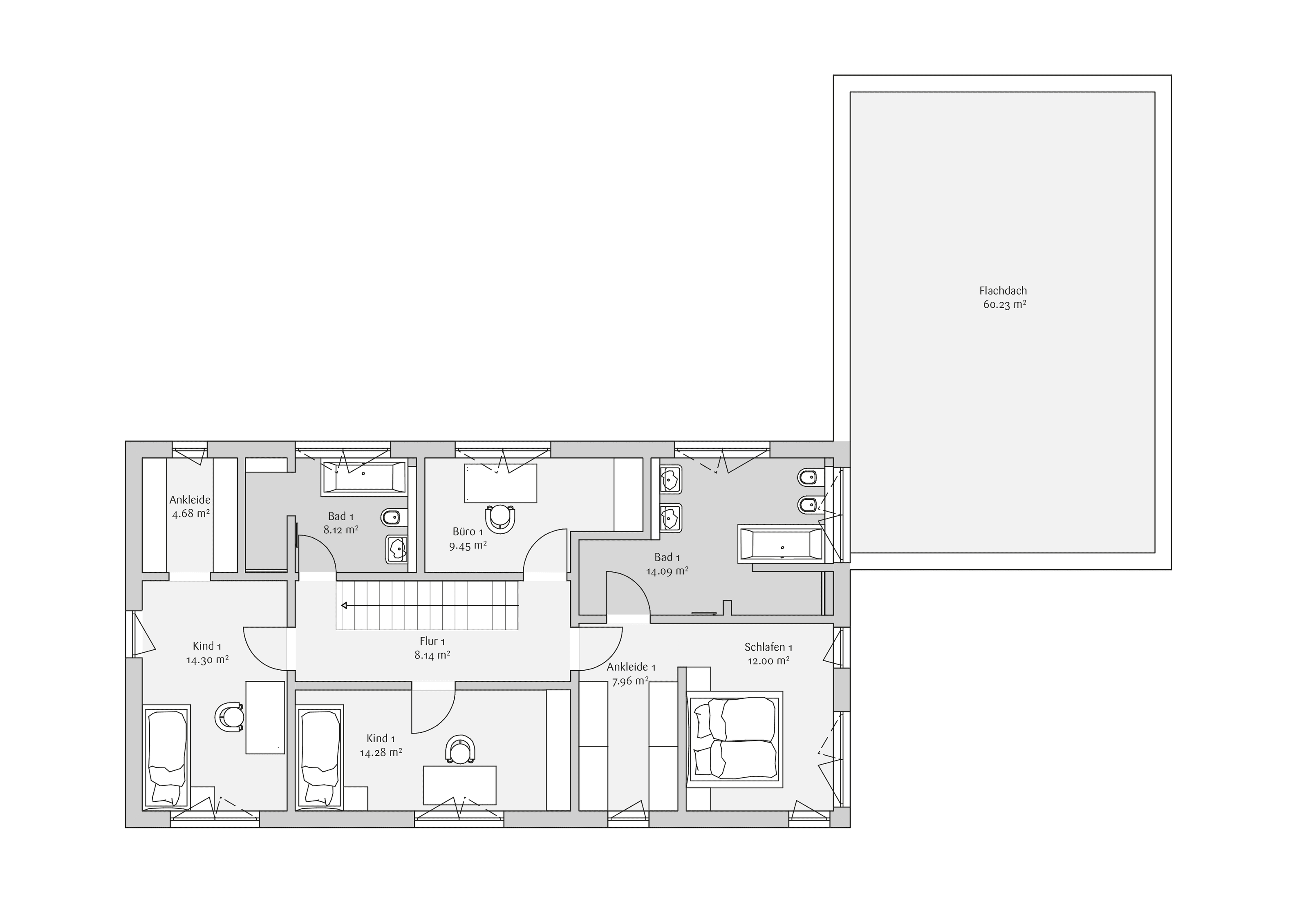
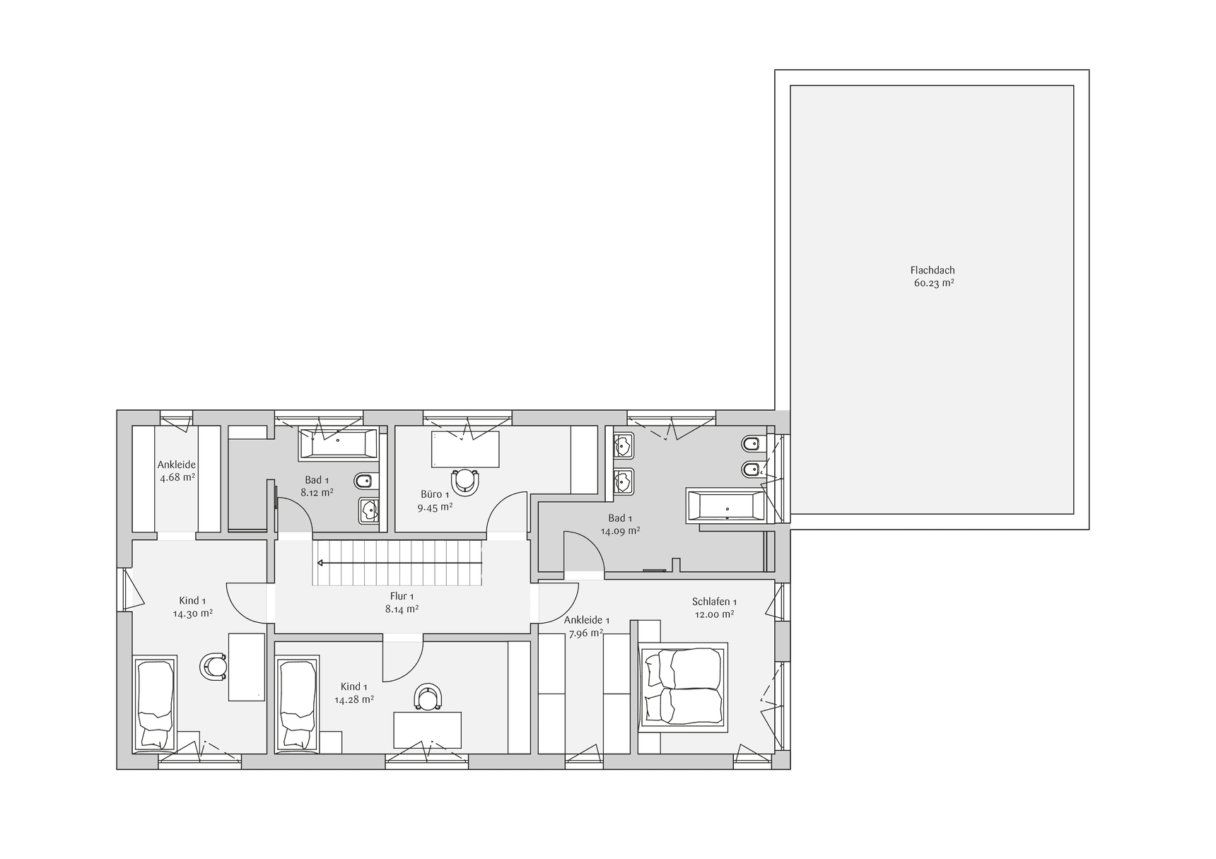
Das Ehepaar hat aber nicht nur für sich ein kuscheliges und praktisches Nest zum Wohnen und Arbeiten gebaut, sondern gleichfalls auch für den Nachwuchs. Im Obergeschoss des Haupthauses ist Platz für zwei geräumige Kinderzimmer, ein Arbeitszimmer, das Elternschlafzimmer mit Ankleide und ein großzügiges Familienbad. Das Erdgeschoss im Haupthaus wird indes zum großen Teil vom geräumigen Wohn- und Essbereich eingenommen. Nebenbei ist auch noch genügend Platz für den Technikraum, ein WC und die Speisekammer.

Effizient

Konstruktiv ist dieses Kundenhaus in Holzrahmenkonstruktion errichtet. Seine hervorragende Dämmung macht das Haus zudem zu einem Energiesparwunder. Eine Wärmepumpe sorgt für Wärmeenergie für Heizung und Trinkwasser. Die zentrale Lüftungsanlage überträgt schließlich die Wärme der verbrauchten Luft im Haus an die frisch angesaugte Zuluft von draußen. So ist für ständig frische Luft im Haus gesorgt.

Hausdaten

Hausart Icon
HausartEinfamilienhaus
Bauweise Icon
BauweiseHolz-Tafelbau
Baustil Icon
BaustilKlassische Familienhäuser
Fassade Icon
FassadePutz
Außenmaße Icon
Außenmaße20.05 m x 15.57 m
Wohnfläche Icon
Wohnfläche239.93 m²
Dachform Icon
DachformSattel-/Giebeldach
Energiestandard Icon
EnergiestandardEffizienzhaus 40 Plus
Immobilientyp Icon
ImmobilientypKundenhaus
Dachneigung Icon
Dachneigung22°
Hauseigenschaften Icon
HauseigenschaftenEinliegerwohnung
Heizungsart Icon
HeizungsartWärmepumpe (Luft, Wasser, oder beides)
Pfeil nach unten linksWir schaffen Platz für Ihre Träume

Grundriss

no description
FischerHaus - Modern 239 Grundriss (EG)Wohnfläche EG: 146,91 m²
no description
FischerHaus - Modern 239 Grundriss (OG)Wohnfläche OG: 93,02 m²

Kataloge

FischerHaus: Hauskatalog
FischerHaus

FischerHaus: Hauskatalog


House and TreeParksHouse and PinMusterhausHouse on HandAnbieter