1. AnbieterArrow Icon
  2. FischerHausArrow Icon
  3. FischerHaus - Modern 198
Slide 1
Slide 2
Slide 3
Slide 4
Slide 5
Slide 6
Slide 7
Slide 8
FischerHaus-Logo-2023.jpg
FischerHausFischerHaus - Modern 198
homeKlassische Familienhäuser
livingArea199 m²
energyStandardEffizienzhaus 40 Plus
Preis anfragen
Katalog bestellen

FischerHaus - Modern 198

Hausdaten

Hausart Icon
HausartEinfamilienhaus
Bauweise Icon
BauweiseHolz-Tafelbau
Anzahl Räume Icon
Anzahl Räume11
Baustil Icon
BaustilKlassische Familienhäuser
Fassade Icon
FassadePutz
Außenmaße Icon
Außenmaße12.27 m x 11.27 m
Wohnfläche Icon
Wohnfläche198.97 m²
Dachform Icon
DachformSattel-/Giebeldach
Energiestandard Icon
EnergiestandardEffizienzhaus 40 Plus
Immobilientyp Icon
ImmobilientypKundenhaus
Hausdämmstoff Icon
HausdämmstoffNachwachsende Dämmstoffe (Flachs, Hanf, Schafswolle)
Heizungsart Icon
HeizungsartWärmepumpe (Luft, Wasser, oder beides)
Pfeil nach unten linksWir schaffen Platz für Ihre Träume

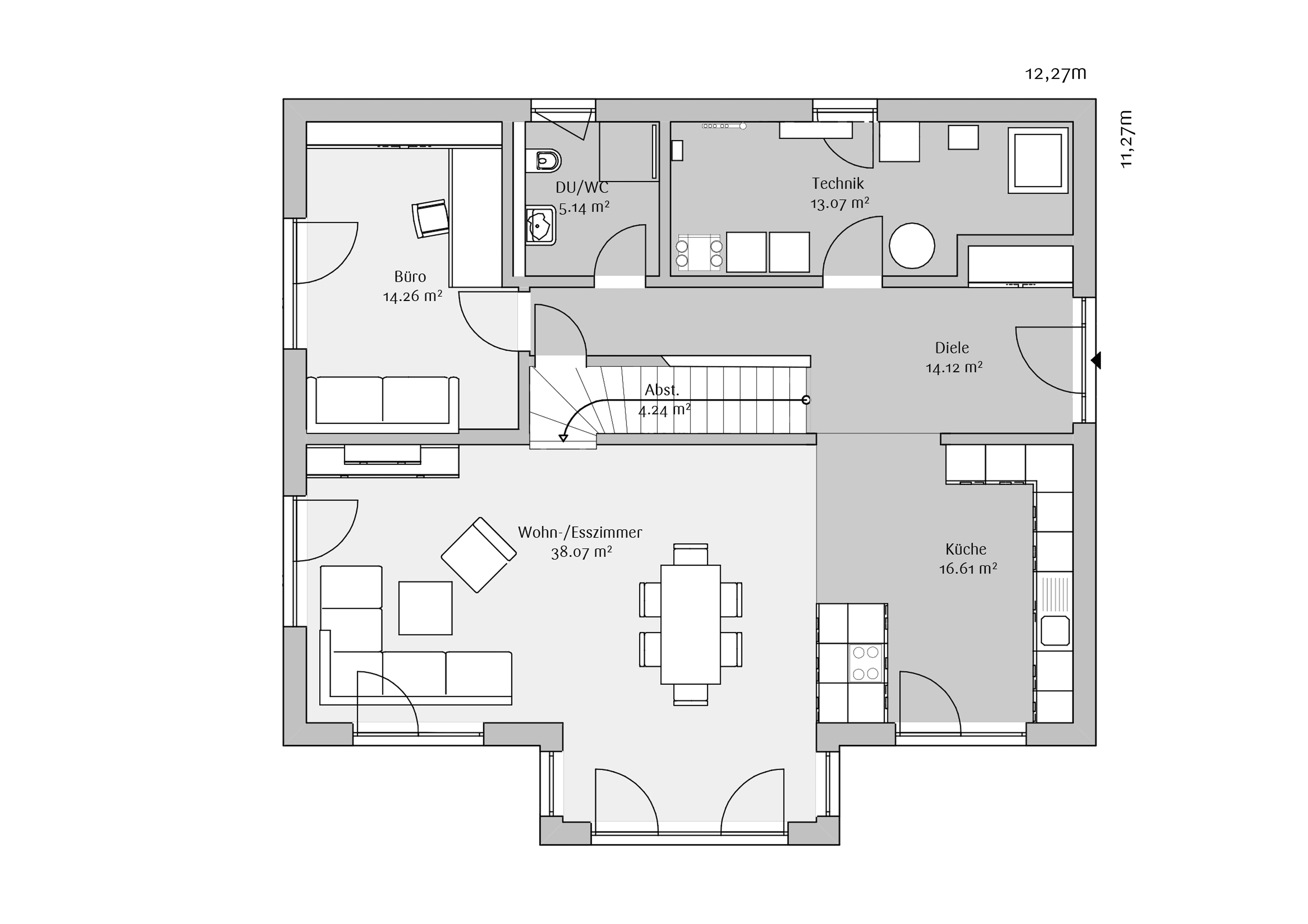
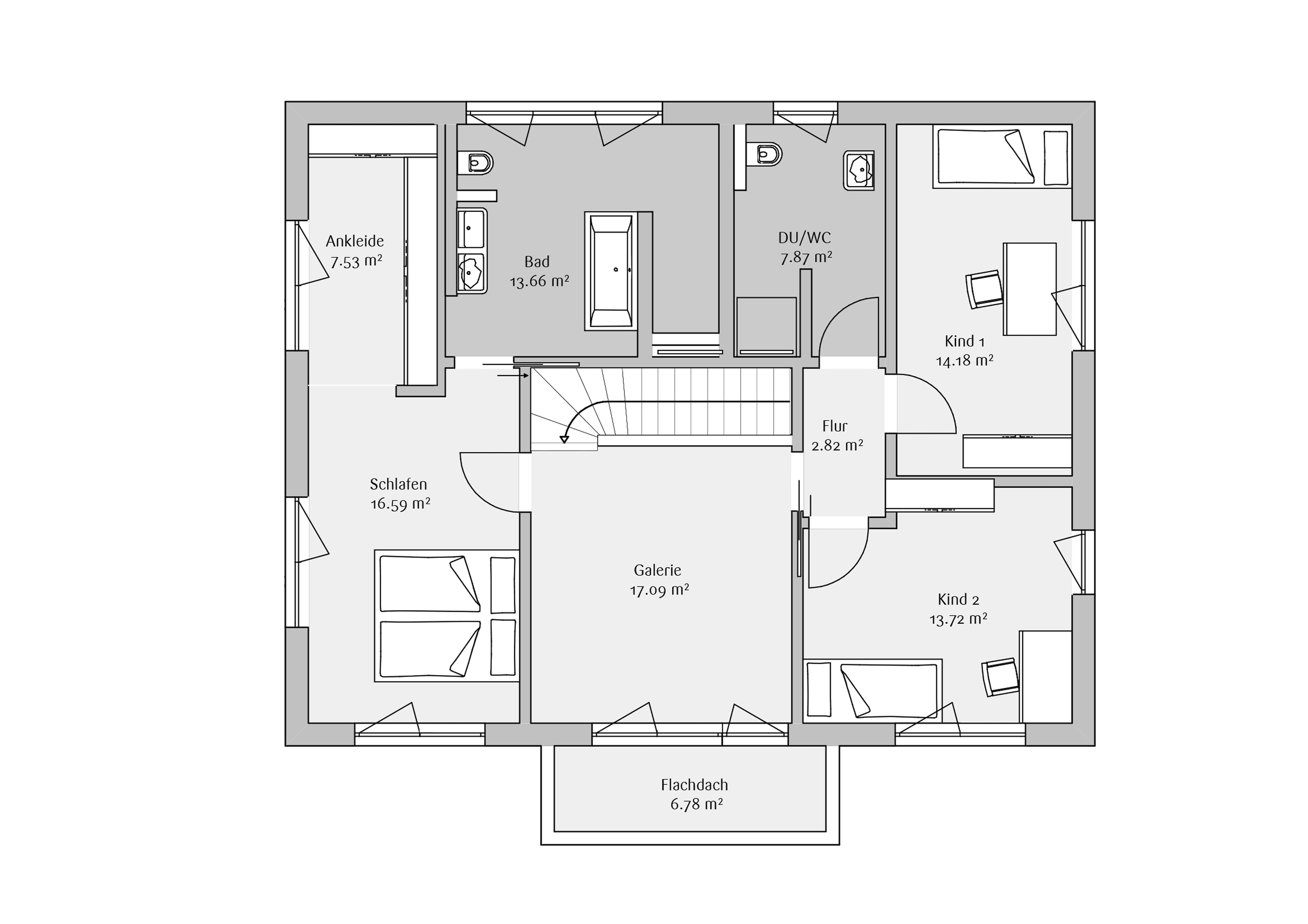
Grundriss

no description
FischerHaus - Modern 198 Grundriss (EG)Wohnfläche EG: 105,51 m²
no description
FischerHaus - Modern 198 Grundriss (OG)Wohnfläche OG: 93,46 m²

Kataloge

FischerHaus: Hauskatalog
FischerHaus

FischerHaus: Hauskatalog


House and TreeParksHouse and PinMusterhausHouse on HandAnbieter