1. AnbieterArrow Icon
  2. FischerHausArrow Icon
  3. FischerHaus - Modern 166
Slide 1
Slide 2
Slide 3
Slide 4
Slide 5
FischerHaus-Logo-2023.jpg
FischerHausFischerHaus - Modern 166
homeKlassische Familienhäuser
livingArea167 m²
energyStandardEffizienzhaus 40 Plus
Preis anfragen
Katalog bestellen

FischerHaus - Modern 166

Modernes Wohnkonzept – Wohlfühlklima inklusive

Hier sind klassische Architektur und zeitgemäße Innenraumgestaltung perfekt aufeinander abgestimmt. 166 Quadratmeter, verteilt auf zwei Etagen, bieten einen gehobenen Wohnkomfort. Durch den großzügigen Schnitt, den hohen Lichteinfall und die offene Bauweise entsteht ein einzigartiges Wohnambiente. 2 Kinder-/Gästezimmer, ein Schlafzimmer mit Ankleide und das große Bad runden das Raumangebot im Obergeschoss ab. Die halbgewendelte Treppe ist in den Wohnbereich integriert und öffnet die Etage räumlich und optisch.

Hausdaten

Hausart Icon
HausartEinfamilienhaus
Bauweise Icon
BauweiseHolz-Tafelbau
Baustil Icon
BaustilKlassische Familienhäuser
Fassade Icon
FassadePutz
Außenmaße Icon
Außenmaße19.52 m x 12.82 m
Wohnfläche Icon
Wohnfläche166.92 m²
Dachform Icon
DachformSattel-/Giebeldach
Energiestandard Icon
EnergiestandardEffizienzhaus 40 Plus
Immobilientyp Icon
ImmobilientypKundenhaus
Dachneigung Icon
Dachneigung18°
Hauseigenschaften Icon
HauseigenschaftenTerasse
Heizungsart Icon
HeizungsartWärmepumpe (Luft, Wasser, oder beides)
Pfeil nach unten linksWir schaffen Platz für Ihre Träume

Grundriss

no description
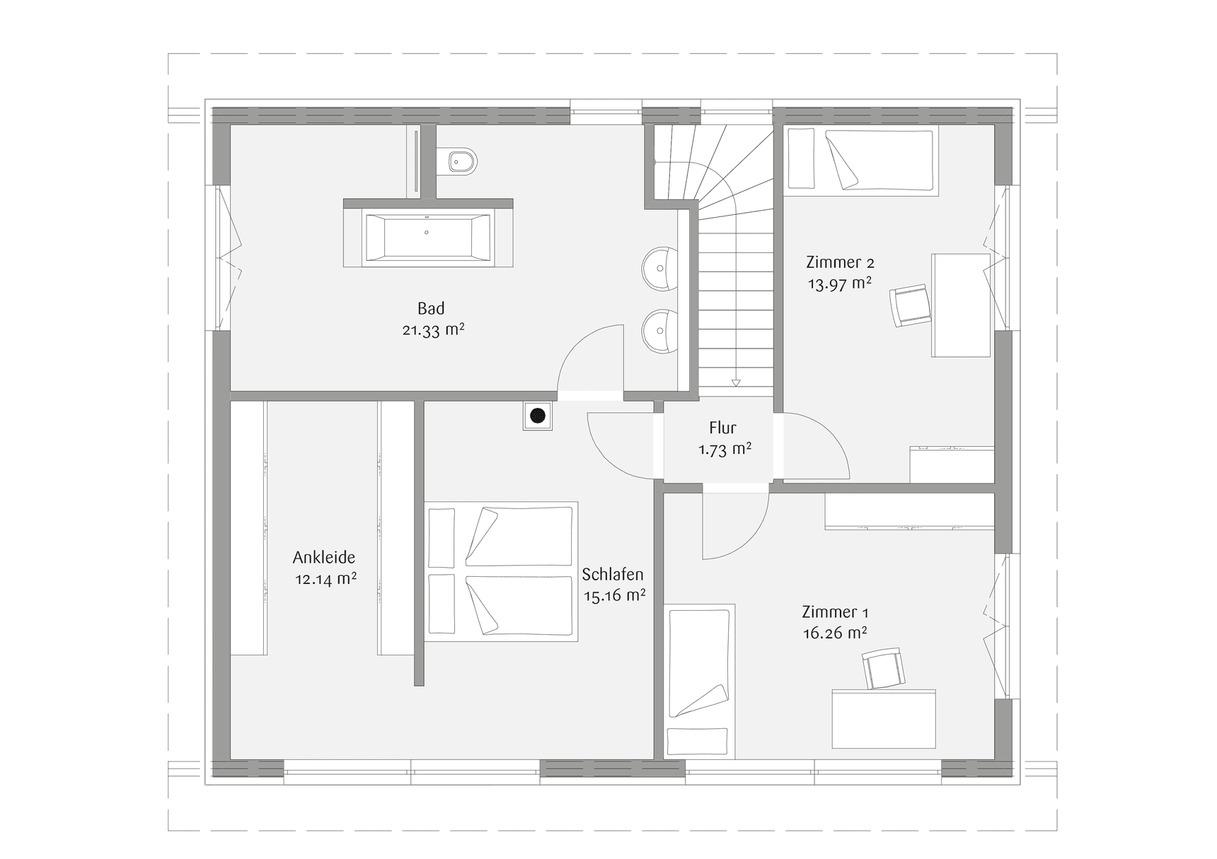
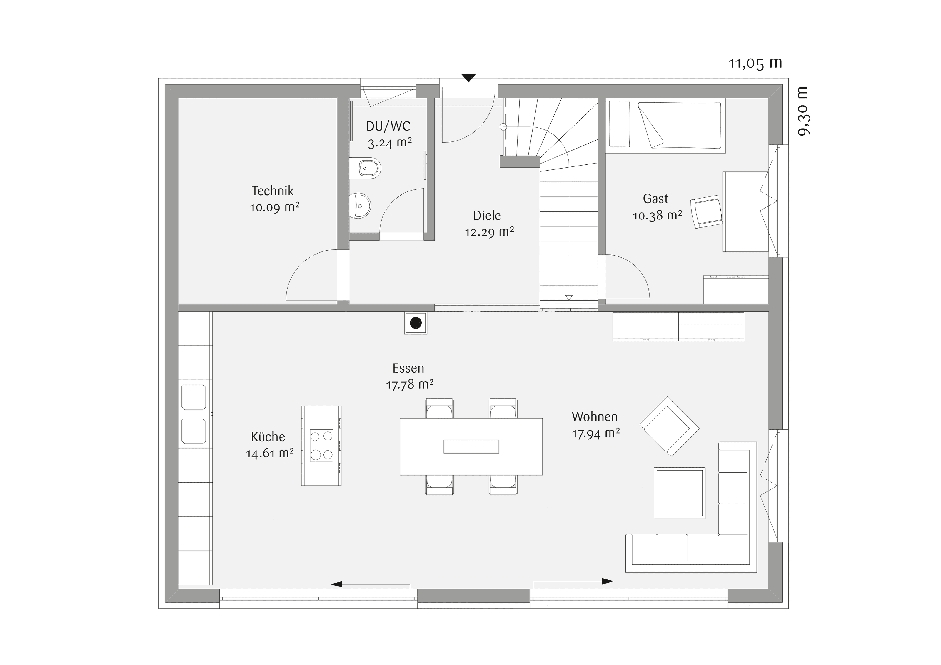
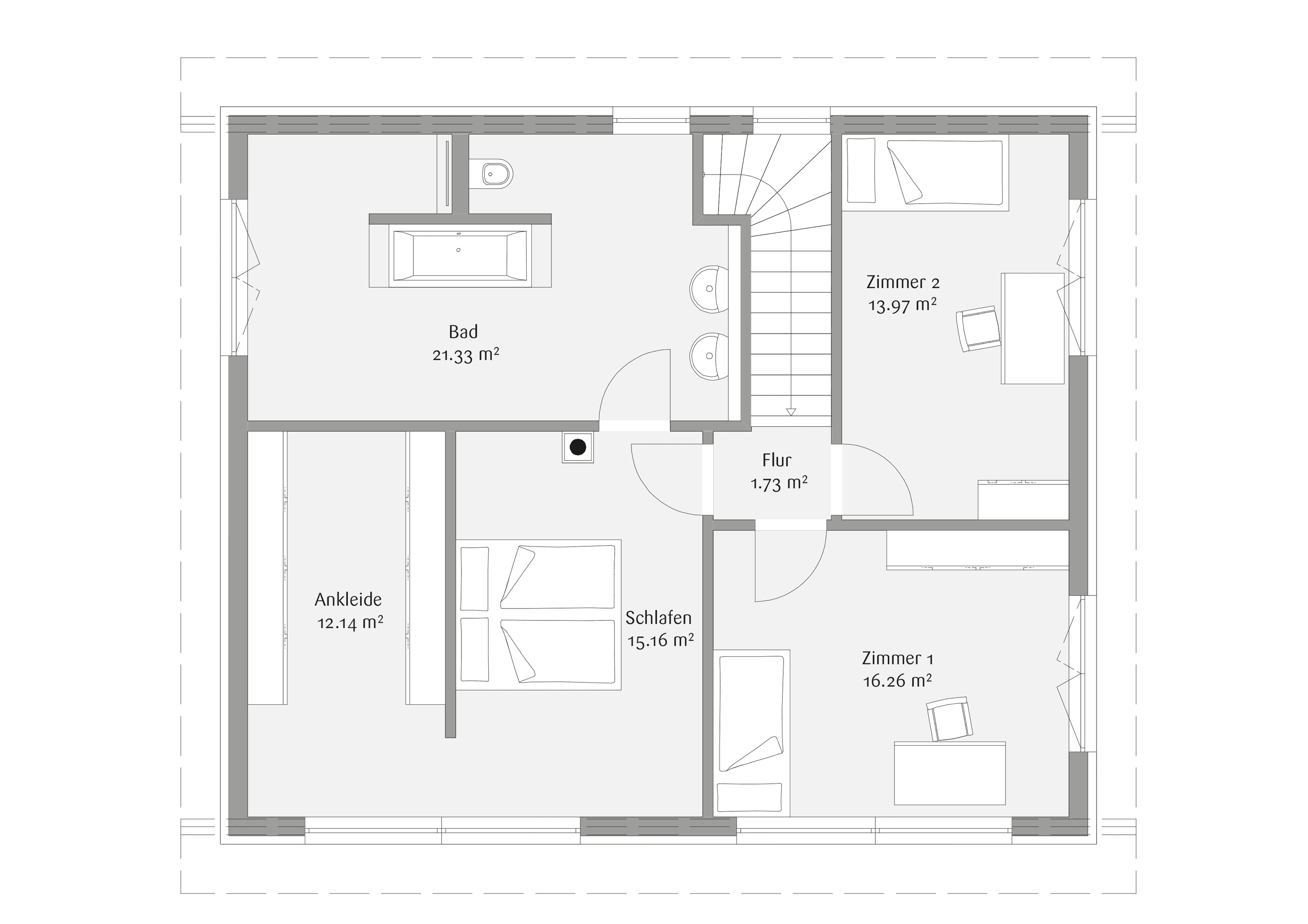
FischerHaus - Modern 166 Grundriss (EG)Wohnfläche EG: 86,33 m²
no description
FischerHaus - Modern 166 Grundriss (DG)Wohnfläche DG: 80,59 m²

Kataloge

FischerHaus: Hauskatalog
FischerHaus

FischerHaus: Hauskatalog


House and TreeParksHouse and PinMusterhausHouse on HandAnbieter