1. AnbieterArrow Icon
  2. FischerHausArrow Icon
  3. Modern 155
Slide 1
Slide 2
Slide 3
Slide 4
Slide 5
Slide 6
Slide 7
FischerHaus-Logo-2023.jpg
FischerHausModern 155
homeKlassische Familienhäuser
livingArea155 m²
energyStandardEffizienzhaus 40
Preis anfragen
Katalog bestellen

Modern 155

Fenster können echte Hingucker sein!

Das Kundenhaus ist ein modernes Einfamilienhaus mit flachem Satteldach, großem Balkon und praktischer Eingangsüberdachung. Die moderne Putz Fassade erscheint in Weiß roten Fensterrahmen. Farbige Fensterrahmen und Türen sind ein echter Hingucker für jede Fassade und prägen die Optik des Hauses.

Mit rund 122 qm Wohnfläche bietet das Satteldach Haus ausreichend Platz für insgesamt 4 Zimmer. Der Grundriss im Erdgeschoss zeigt sich offen. Das großzügige Wohn- und Esszimmer mit offener Küche dient als Lebensmittelpunkt für das Baupaar. Große Fenster schaffen helle und lichtdurchflutete Innenräume. Über die Wendel-Treppe werden die zwei Kinderzimmer, das Elternschlafzimmer mit Ankleide und Büro und das große Badezimmer im Obergeschoss erschlossen.

Hausdaten

Hausart Icon
HausartEinfamilienhaus
Bauweise Icon
BauweiseHolz-Tafelbau
Baustil Icon
BaustilKlassische Familienhäuser
Fassade Icon
FassadePutz
Außenmaße Icon
Außenmaße7.99 m x 11.99 m
Wohnfläche Icon
Wohnfläche155.08 m²
Dachform Icon
DachformSattel-/Giebeldach
Energiestandard Icon
EnergiestandardEffizienzhaus 40
Immobilientyp Icon
ImmobilientypKundenhaus
Dachneigung Icon
Dachneigung25°
Hauseigenschaften Icon
HauseigenschaftenTerasse
Heizungsart Icon
HeizungsartWärmepumpe (Luft, Wasser, oder beides)
Pfeil nach unten linksWir schaffen Platz für Ihre Träume

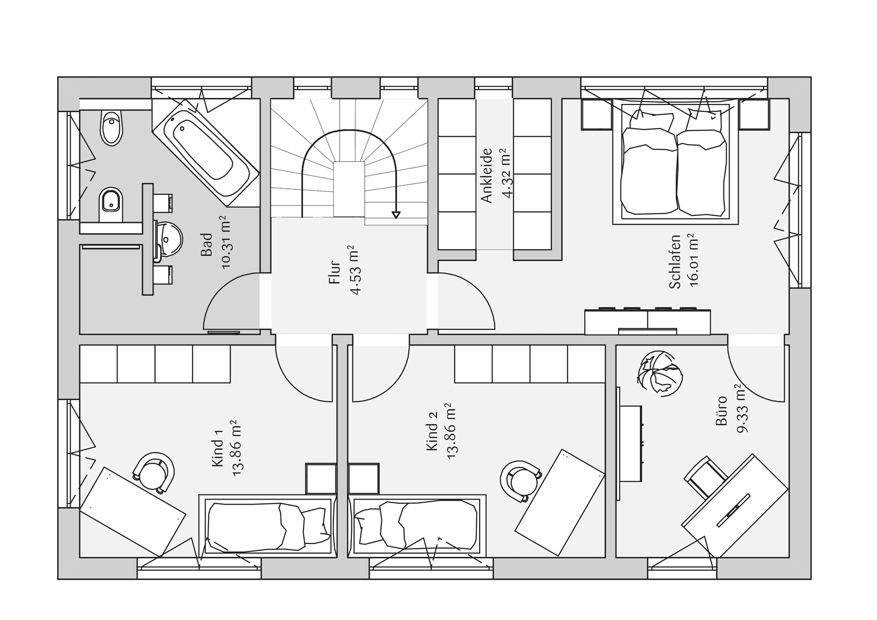
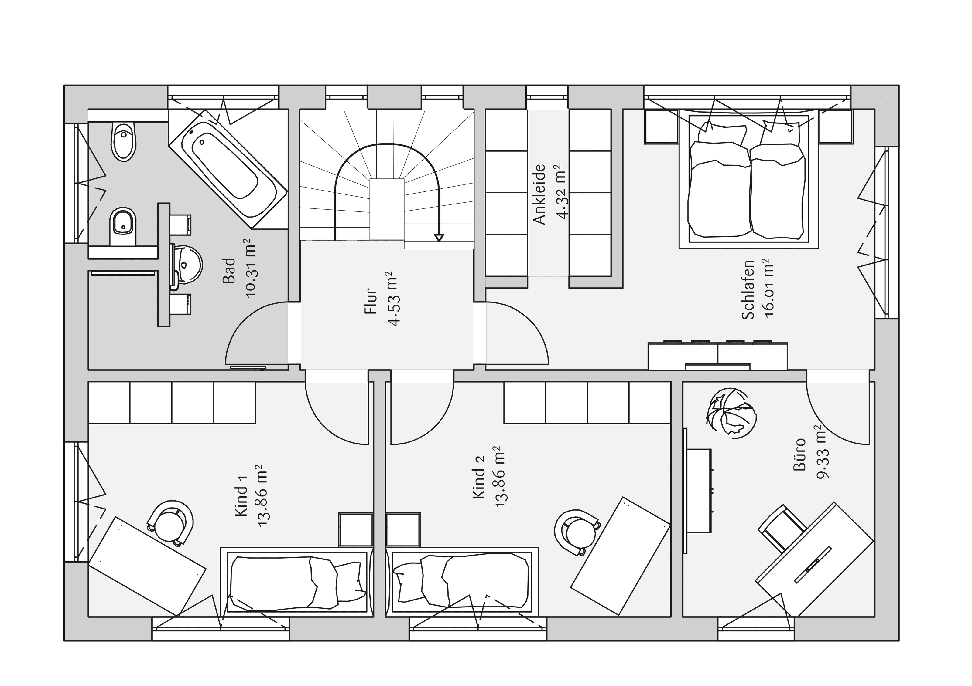
Grundriss

no description
Modern 155 Grundriss (EG)Wohnfläche EG: 77,86 m²
no description
Modern 155 Grundriss (OG)Wohnfläche OG: 77,22 m²

Kataloge

FischerHaus: Hauskatalog
FischerHaus

FischerHaus: Hauskatalog


House and TreeParksHouse and PinMusterhausHouse on HandAnbieter