1. AnbieterArrow Icon
  2. FischerHausArrow Icon
  3. FischerHaus - Modern 153
Slide 1
Slide 2
Slide 3
Slide 4
Slide 5
Slide 6
Slide 7
Slide 8
FischerHaus-Logo-2023.jpg
FischerHausFischerHaus - Modern 153
homeKlassische Familienhäuser
livingArea154 m²
energyStandardEffizienzhaus 40 Plus
Preis anfragen
Katalog bestellen

FischerHaus - Modern 153

Familienfreundliches modernes Pultdachhaus für einen komfortablen Alltag

Das Haus unseres Baupaares zeichnet sich mit seinem überaus modernen und hochwertigen Stil aus. Dies wird durch die innovative Dachform verstärkt. Ein derart moderner Eindruck entsteht auch im Innenraum. Das Obergeschoss verbindet alle Räume durch einen kleinen Flur und schafft eine übersichtliche Umgebung. Gleiches gilt für das Untergeschoss, welches mit lebendigen Räumen überzeugt und mit dem Garten verbunden ist.

Schon bei der Planung legte unser Baupaar viel Wert auf eine familienfreundliche Gestaltung des Grundrisses.

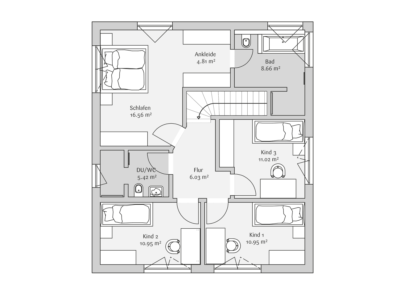
Sinnvolle Details, wie beispielsweise ein zusätzliches Bad für die Kinder im Obergeschoss, ein eigener Bereich zum ankleiden, ein Büro oder das Gäste-WC im Erdgeschoss, machen den Alltag komfortabler.

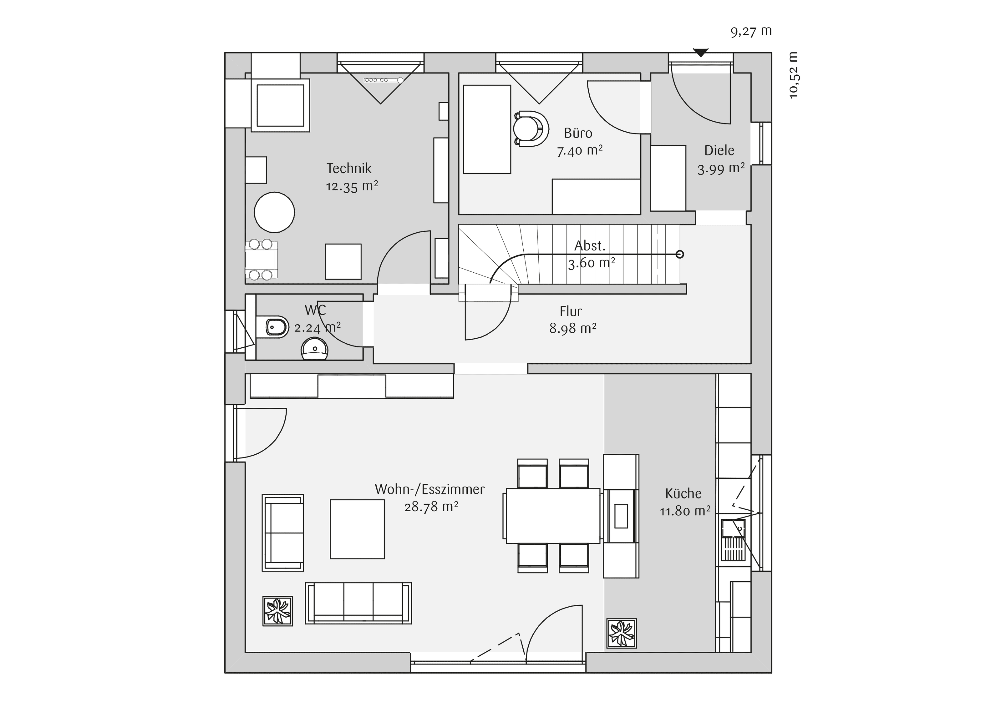
Im praktischen Hauswirtschaftsraum kann die Haus- und Heiztechnik untergebracht werden, so dass ein Keller nicht unbedingt notwendig ist.

Hausdaten

Hausart Icon
HausartEinfamilienhaus
Bauweise Icon
BauweiseHolz-Tafelbau
Baustil Icon
BaustilKlassische Familienhäuser
Fassade Icon
FassadePutz
Außenmaße Icon
Außenmaße9.27 m x 10.52 m
Wohnfläche Icon
Wohnfläche153.54 m²
Dachform Icon
DachformVersetztes Pultdach
Energiestandard Icon
EnergiestandardEffizienzhaus 40 Plus
Immobilientyp Icon
ImmobilientypKundenhaus
Dachneigung Icon
Dachneigung23°
Hauseigenschaften Icon
HauseigenschaftenGästezimmer
Heizungsart Icon
HeizungsartWärmepumpe (Luft, Wasser, oder beides)
Pfeil nach unten linksWir schaffen Platz für Ihre Träume

Grundriss

no description
FischerHaus - Modern 153 Grundriss (EG)Wohnfläche EG: 79,14 m²
no description
FischerHaus - Modern 153 Grundriss (OG)Wohnfläche OG: 74,4 m²

Kataloge

FischerHaus: Hauskatalog
FischerHaus

FischerHaus: Hauskatalog


House and TreeParksHouse and PinMusterhausHouse on HandAnbieter