1. AnbieterArrow Icon
  2. FischerHausArrow Icon
  3. FischerHaus - Modern 146
Slide 1
Slide 2
Slide 3
Slide 4
Slide 5
Slide 6
Slide 7
FischerHaus-Logo-2023.jpg
FischerHausFischerHaus - Modern 146
homeKlassische Familienhäuser
energyStandardEffizienzhaus 40
Preis anfragen
Katalog bestellen

FischerHaus - Modern 146

Arbeiten und Wohnen unter einem Dach!

Dieses schöne Einfamilienhaus im modernen Baustil ist mit seinen rund 145 m2 perfekt für eine junge Familie. Die beiden Kinderzimmer im Obergeschoss bieten bei der Familienplanung Platz nach oben. Das eigentliche Highlight liegt bei diesem FischerHaus allerdings im Keller! Dort wurde eine kleine Osteopathie-Praxis eingerichtet, die es der Familie ermöglicht Arbeit und Wohnen unter einem Dach zu ermögliche. Alternativ könnte diese Kellerfläche auch als Einliegerwohnung genutzt werden. Dank der Hanglage bekommt auch das Kellergeschoss volles Sonnenlicht durch die bodentiefen Fenster ab. Ein weiterer Raumvorteil sind die niedrige Dachneigung und der hohe Kniestock im Obergeschoss. Dadurch kann dort der Raum trotz Dachschräge hervorragend genutzt werden und man verliert nicht zu viel Raum und Staufläche.

Hausdaten

Hausart Icon
HausartEinfamilienhaus
Bauweise Icon
BauweiseHolz-Tafelbau
Baustil Icon
BaustilKlassische Familienhäuser
Fassade Icon
FassadePutz
Dachform Icon
DachformSattel-/Giebeldach
Energiestandard Icon
EnergiestandardEffizienzhaus 40
Immobilientyp Icon
ImmobilientypKundenhaus
Hauseigenschaften Icon
HauseigenschaftenEinliegerwohnung
Heizungsart Icon
HeizungsartWärmepumpe (Luft, Wasser, oder beides)
Pfeil nach unten linksWir schaffen Platz für Ihre Träume

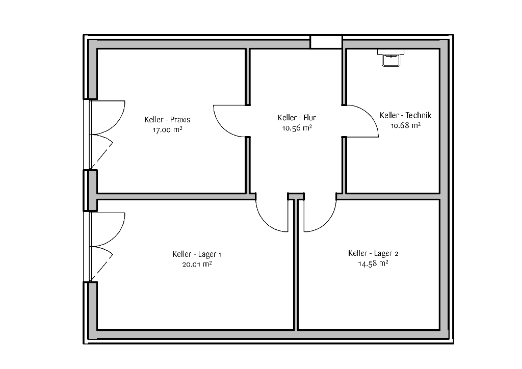
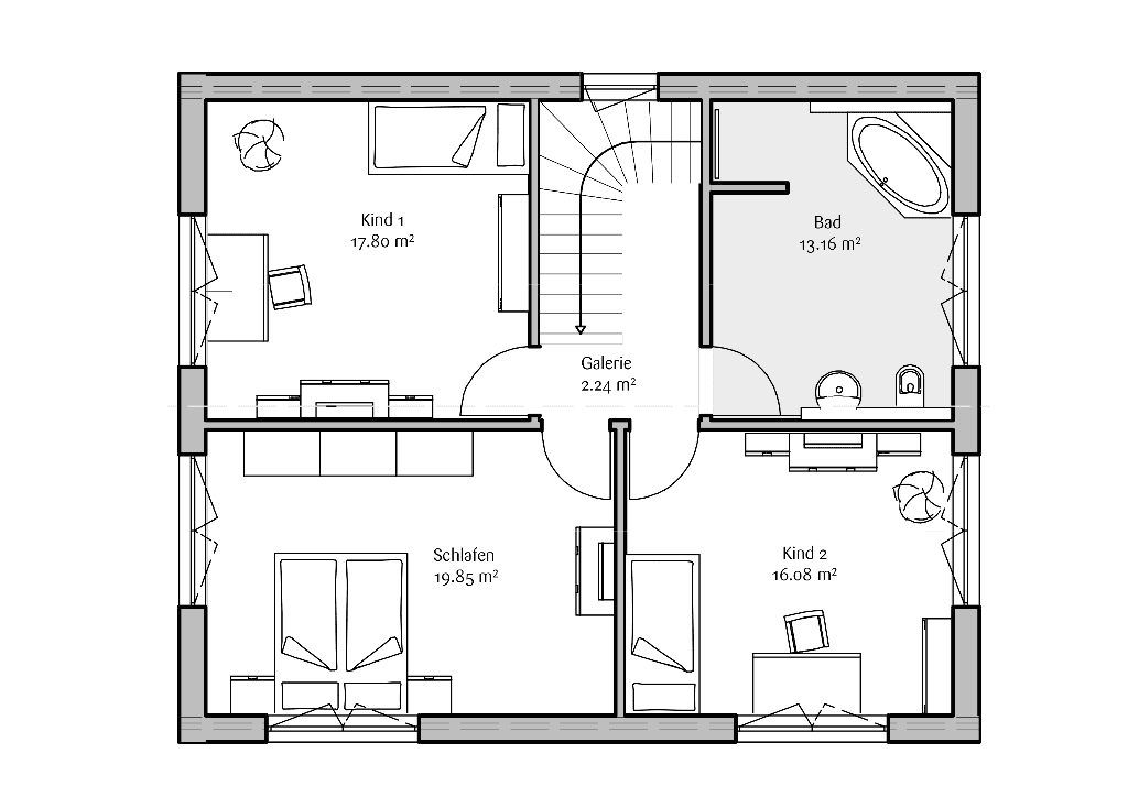
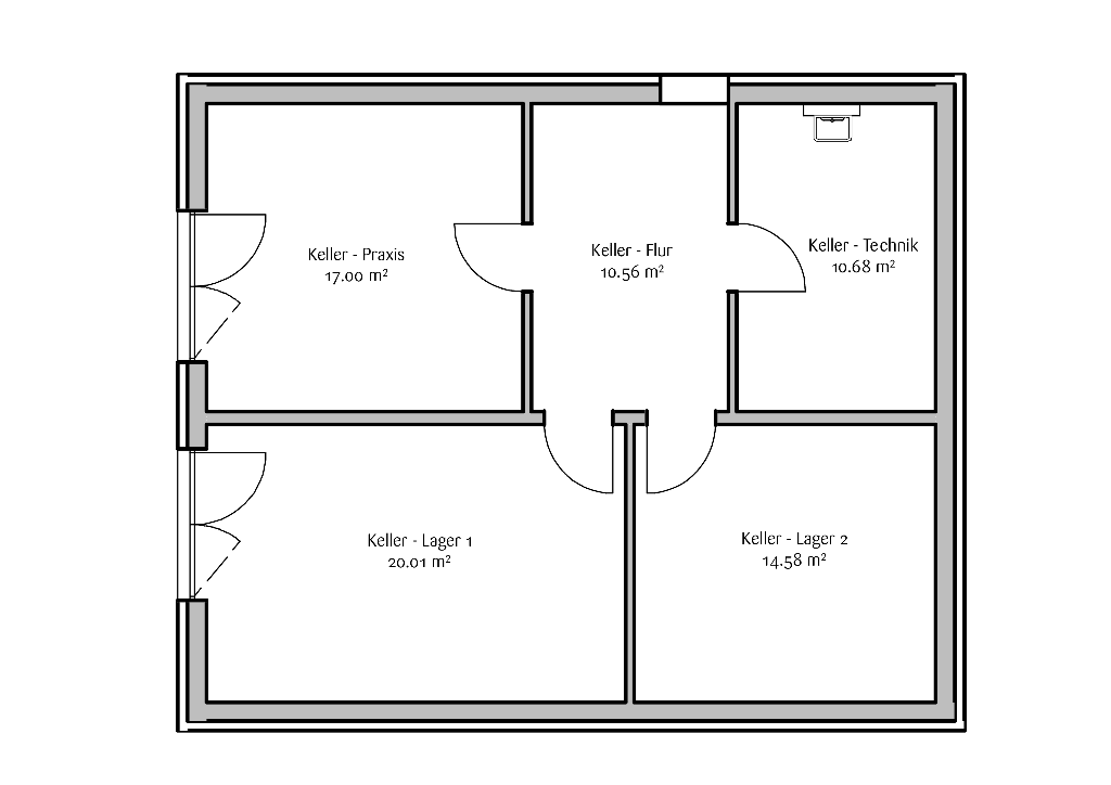
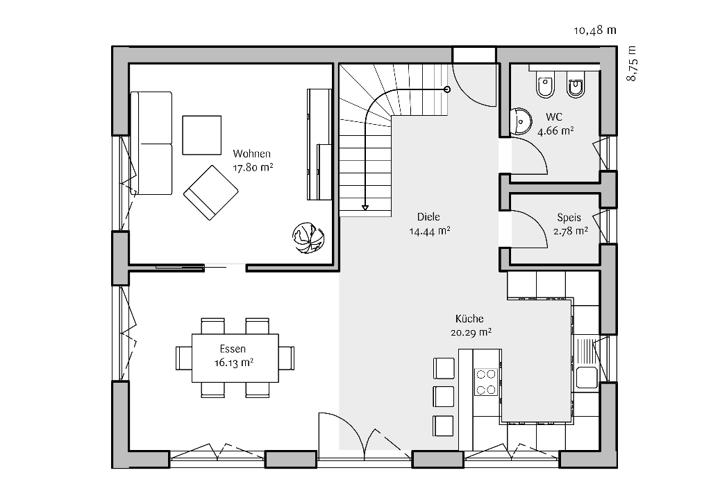
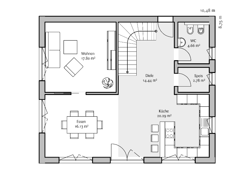
Grundriss

no description
FischerHaus - Modern 146 Grundriss (Keller)
no description
FischerHaus - Modern 146 Grundriss (EG)
no description
FischerHaus - Modern 146 Grundriss (DG)

Unser Team vor Ort

Matthäus AchatzFachberater*in bei FischerHaus
no description
Wir beraten Sie gerne!Arrow Icon

Kataloge

FischerHaus: Hauskatalog
FischerHaus

FischerHaus: Hauskatalog


House and TreeParksHouse and PinMusterhausHouse on HandAnbieter