1. AnbieterArrow Icon
  2. FischerHausArrow Icon
  3. FischerHaus - Klassisch 187
Slide 1
Slide 2
Slide 3
Slide 4
Slide 5
FischerHaus-Logo-2023.jpg
FischerHausFischerHaus - Klassisch 187
homeKlassische Familienhäuser
livingArea180 m²
energyStandardEffizienzhaus 40 Plus
Preis anfragen
Katalog bestellen

FischerHaus - Klassisch 187

Individuelle Architektur braucht gezielte Planung

Kundeninterview

Was macht Ihr FischerHaus so besonders?

Wir haben uns ein besonderes Haus für unsere Familie gewünscht: ein rollstuhlgerechtes!
Da unsere Tochter aufgrund einer Muskelerkrankung auf einen Rollstuhl angewiesen ist, wollten wir ein Haus, in dem Sophia möglichst selbständig sein kann und sich unsere gesamte Familie zuhause fühlt.  

Warum haben Sie sich für FischerHaus entschieden?

Für unser rollstuhlgerechtes Haus haben wir einen Partner gesucht, der in seiner Bauweise vollständig flexibel ist und auch ungewöhnliche Wünsche umsetzten kann. Und: Wir wollten ein energie-effizientes und ökologisches Haus bauen.

Wir haben die Entscheidung mit FischerHaus zu bauen nie bereut. Wenn man ein Haus baut, gibt es immer Probleme, das ist ganz normal. Mit FischerHaus haben wir einen Partner gefunden, der wirklich immer für uns da war – von der Planung des Hauses, über die Bodenplatte, den Innenausbau bis zur Fertigstellung unseres Gartens, hat er uns mit seinen Ideen, Tipps und Problemlösungen auf dem gesamten Weg begleitet. Jetzt ist Ihr FischerHaus fertig und Sie sind vor knapp einem Jahr umgezogen.

Wie wohnt es sich in Ihrem neuen Zuhause?

Unser Haus ist toll geworden! Es ist hell, großzügig und nicht nur komplett barrierefrei, sondern Sophia-gerecht. Endlich kann sie sich mit ihrem Rollstuhl frei im gesamten Erdgeschoß des Hauses und im Garten bewegen. Die Türen sind extra-breit, die Griffe und Lichtschalter in rollstuhlgerechter Höhe, im Bad sind das Waschbecken, das WC, die Badewanne und Dusche auf ihre Bedürfnisse ausgerichtet. Sie kann sich in ihr Zimmer zurückziehen, mit ihrer Schwester spielen, lernen und Freundinnen einladen. Unser Alltag ist um vieles einfacher geworden.

Unsere gesamte Familie fühlt sich sehr wohl in unserem Haus und auch Besuch ist immer wieder überrascht, wie einfach, praktisch und toll vieles geworden ist.

Es ist schade, dass sich Bauherren heute nicht mehr mit dem Thema Barrierefreiheit beschäftigen. Auch wir werden älter und es ist schön zu wissen, dass unser Haus es uns ermöglichen wird, möglichst lange darin zu wohnen.

Hausdaten

Hausart Icon
HausartEinfamilienhaus
Bauweise Icon
BauweiseHolz-Tafelbau
Baustil Icon
BaustilKlassische Familienhäuser
Fassade Icon
FassadePutz
Außenmaße Icon
Außenmaße10.55 m x 11.6 m
Wohnfläche Icon
Wohnfläche179.85 m²
Dachform Icon
DachformSattel-/Giebeldach
Energiestandard Icon
EnergiestandardEffizienzhaus 40 Plus
Immobilientyp Icon
ImmobilientypKundenhaus
Dachneigung Icon
Dachneigung45°
Kniestock Icon
Kniestock1 m
Hauseigenschaften Icon
HauseigenschaftenTerasse
Hausdämmstoff Icon
HausdämmstoffMineralfaser (Glaswolle, Steinwolle)
Heizungsart Icon
HeizungsartWärmepumpe (Luft, Wasser, oder beides)
Pfeil nach unten linksWir schaffen Platz für Ihre Träume

Grundriss

no description
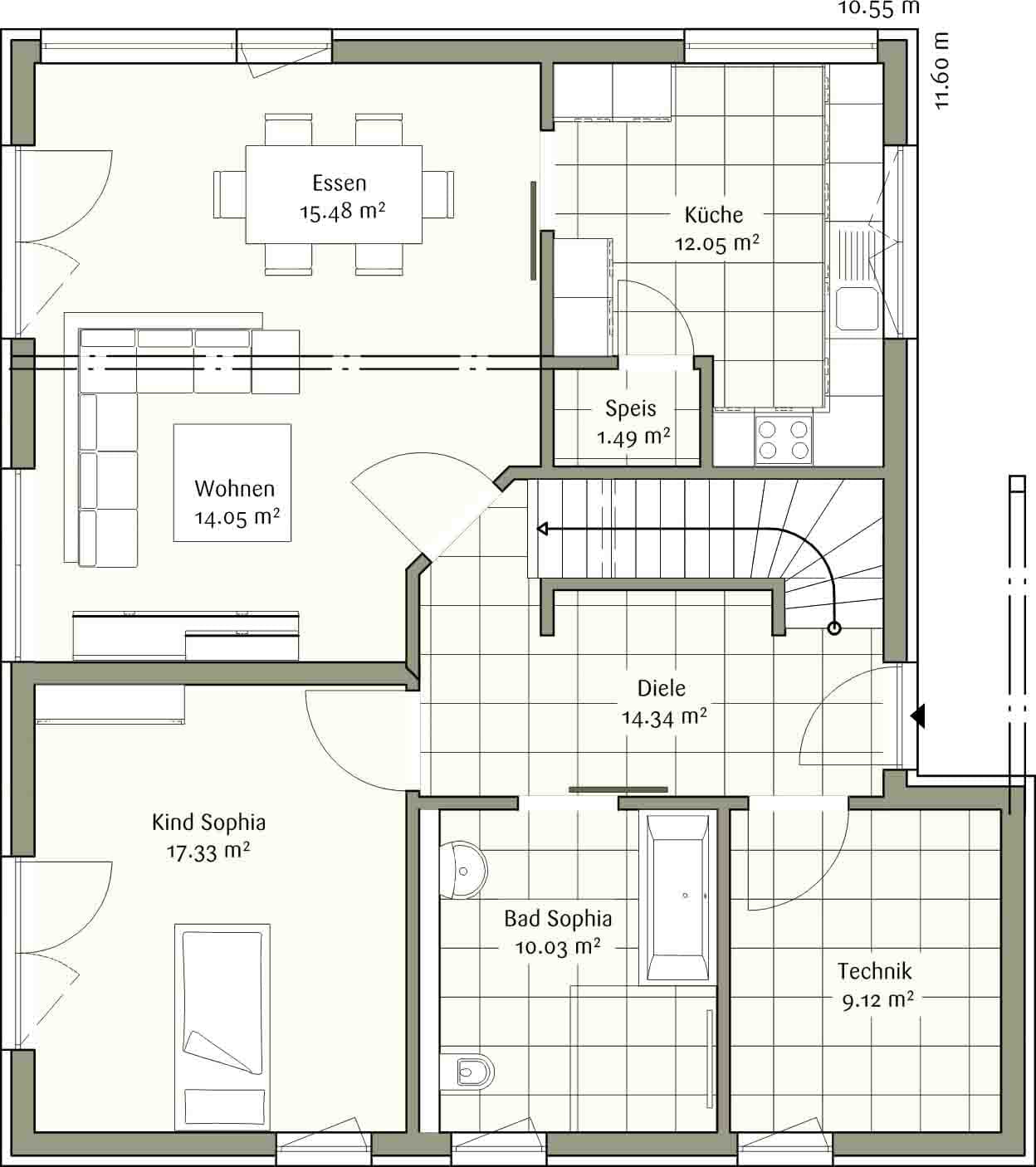
FischerHaus - Klassisch 187 Grundriss (EG)Wohnfläche EG: 93,89 m²
no description
FischerHaus - Klassisch 187 Grundriss (OG)Wohnfläche OG: 85,96 m²

Kataloge

FischerHaus: Hauskatalog
FischerHaus

FischerHaus: Hauskatalog


House and TreeParksHouse and PinMusterhausHouse on HandAnbieter