1. AnbieterArrow Icon
  2. FischerHausArrow Icon
  3. FischerHaus - Modern 191
Slide 1
Slide 2
Slide 3
Slide 4
Slide 5
Slide 6
FischerHaus-Logo-2023.jpg
FischerHausFischerHaus - Modern 191
homeKlassische Familienhäuser
livingArea191 m²
energyStandardEffizienzhaus 40
Preis anfragen
Katalog bestellen

FischerHaus - Modern 191

Ausreichend Platz für die ganze Familie

Mehrgenerationenhäuser werden immer mehr zum Trend

Alt und Jung unter einem Dach: Dank des demografischen und sozialen Wandels suchen immer mehr Menschen nach neuen Wohnformen und werden im Mehrgenerationenhaus fündig, weil hier die Vorzüge der ehemals weit verbreiteten Großfamilie auch in der heutigen Zeit genutzt werden können. So kann beispielsweise die junge Generation davon profitieren, dass die Senioren die Kinderbetreuung übernehmen. Im Gegenzug dürfen die älteren Bewohner auf Unterstützung beim Kochen oder Einkaufen zählen. Wichtig für ein harmonisches Miteinander ist, dass alle Bewohner ihre eigenen Räume besitzen und separat nutzen können. Die Senioren leben in der Regel barrierefrei ebenerdig. Die Jüngeren – Paare, Familien oder Singles – finden ihr Reich dafür eher in den oberen Etagen. Kein Wunder, dass diese Wohnform seit einigen Jahren stark im Kommen ist.

Es gibt aber auch noch weitere Gründe für die zunehmende Beliebtheit dieses Bautyps: In städtischen Regionen, in denen Baugrundstücke meist rar sind und somit auch sehr teuer, ist ein Mehrgenerationenhaus eine Möglichkeit, Baukosten zu sparen. Denn mit dieser Gebäudeart lässt sich auf geringerer Fläche als bei mehreren Einzelhäusern großzügiger Wohnraum für alle Bewohner schaffen. Und wenn der Nachwuchs flügge wird und das gemeinsame Haus verlässt, bietet sich den Eltern die Option, eine Wohnung zu vermieten und sich mit den Mieteinnahmen ihre Rente aufzubessern – ein willkommenes Zusatzgeld als Altersvorsorge.

Familienhaus mit Einliegerwohnung

Ein Beispiel für gelungenes, gelebtes Mehrgenerationen-Wohnen ist das FischerHaus der Familie Bozinovic-Nowak. Das Haus wurde als Zwei-Familienhaus gebaut, mit einer Einliegerwohnung im Erdgeschoss und einem Haupthaus für die Familie. Durch die Aufteilung in zwei Wohneinheiten konnten die Bauherren von einer doppelten Förderung der KfW-Bank profitieren, denn die staatliche Förderung in Form von günstigen Krediten und Tilgungszuschüssen gibt es für jede Wohnung separat. Da FischerHaus standardmäßig besonders sparsame Effizienzhäuser 40 baut, ist diese finanzielle Unterstützung jedem Bauherrn sicher.

Hausdaten

Hausart Icon
HausartEinfamilienhaus
Bauweise Icon
BauweiseHolz-Tafelbau
Baustil Icon
BaustilKlassische Familienhäuser
Fassade Icon
FassadeKlinker
Außenmaße Icon
Außenmaße17.16 m x 12 m
Wohnfläche Icon
Wohnfläche191.07 m²
Dachform Icon
DachformSattel-/Giebeldach
Energiestandard Icon
EnergiestandardEffizienzhaus 40
Immobilientyp Icon
ImmobilientypKundenhaus
Hauseigenschaften Icon
HauseigenschaftenEinliegerwohnung
Hausdämmstoff Icon
HausdämmstoffMineralfaser (Glaswolle, Steinwolle)
Heizungsart Icon
HeizungsartWärmepumpe (Luft, Wasser, oder beides)
Pfeil nach unten linksWir schaffen Platz für Ihre Träume

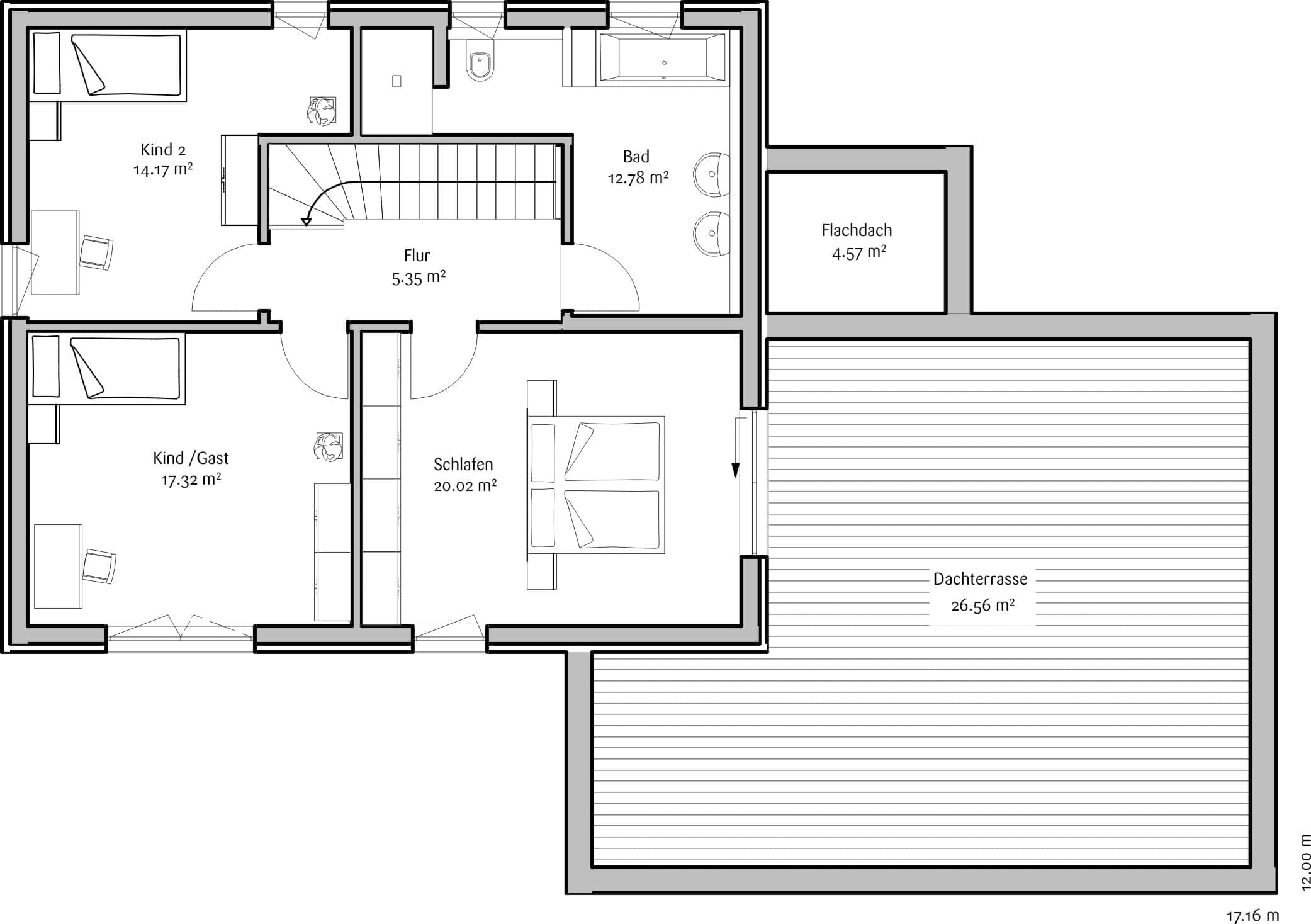
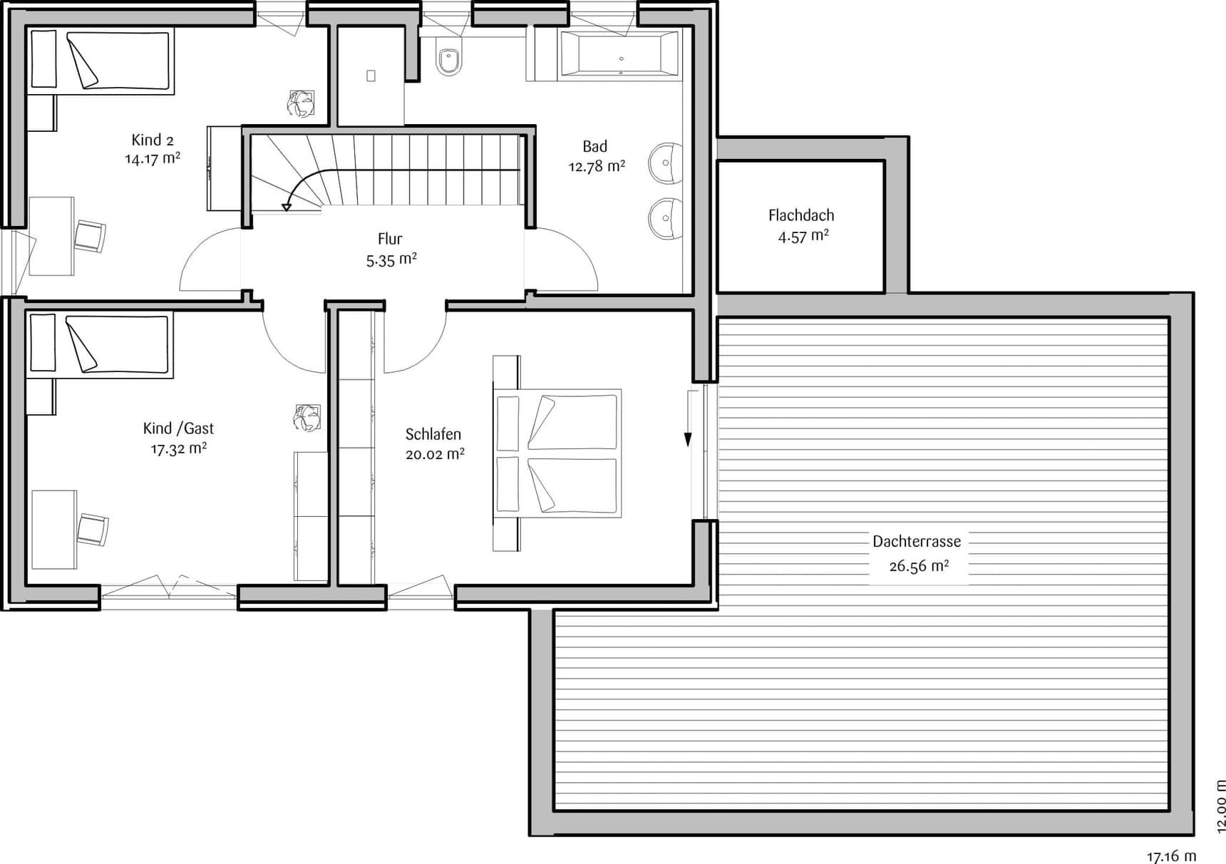
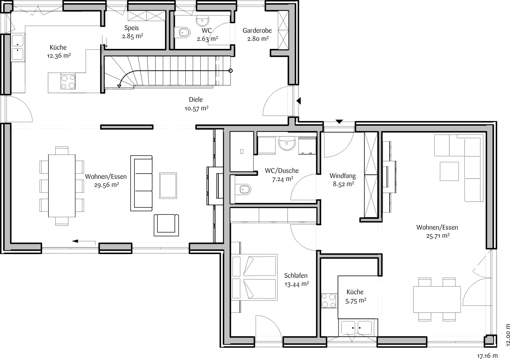
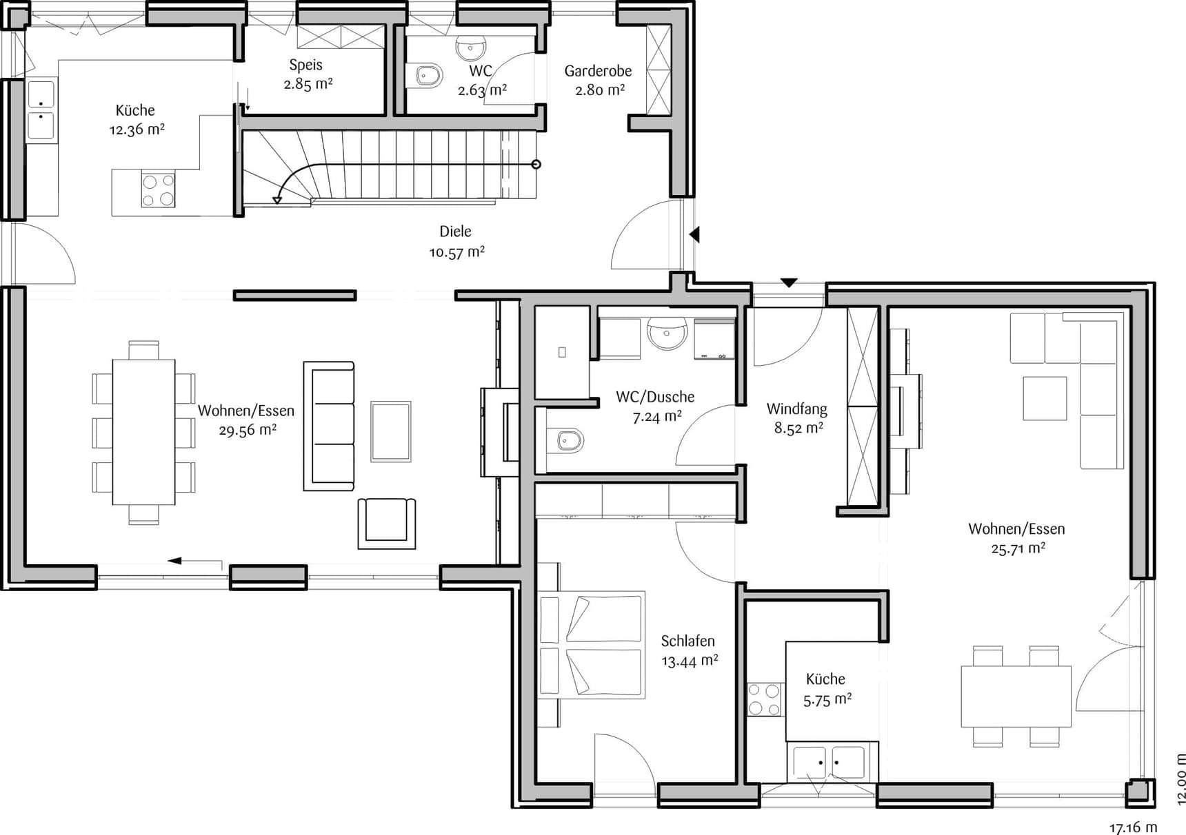
Grundriss

no description
FischerHaus - Modern 191 Grundriss (EG)Wohnfläche EG: 60,77 m²
no description
FischerHaus - Modern 191 Grundriss (OG)Wohnfläche OG: 69,64 m²

Kataloge

FischerHaus: Hauskatalog
FischerHaus

FischerHaus: Hauskatalog


House and TreeParksHouse and PinMusterhausHouse on HandAnbieter