1. AnbieterArrow Icon
  2. FischerHausArrow Icon
  3. FischerHaus - Klassisch 156
Slide 1
Slide 2
Slide 3
Slide 4
Slide 5
Slide 6
FischerHaus-Logo-2023.jpg
FischerHausFischerHaus - Klassisch 156
homeKlassische Familienhäuser
livingArea156 m²
energyStandardEffizienzhaus 40 Plus
Preis anfragen
Katalog bestellen

FischerHaus - Klassisch 156

FischerHaus macht Träume wahr

Bericht über den Hausbau

Zwar war das Grundstück in der Nähe von Regensburg schon längere Zeit im Besitz von Madlén Kahls-Kagerer und in Gedanken hatte sie ihr Traumhaus auch schon mit allen Details geplant, doch dauerte es dann doch eine ganze Weile, bis sie ihre Wohnwünsche in die Realität umsetzen konnte.

Den ersten Plan fürs Haus ließ Madlén Kahls-Kagerer von einem ortsansässigen Architekten ausarbeiten. Eine lange Bearbeitungszeit von zwei Jahren folgte und am Ende wurde der Antrag zur Baugenehmigung abgelehnt – ein frustrierendes Erlebnis. Doch Madlén Kahls-Kagerer gab nicht auf: Durch einen Zufall kam sie in Kontakt mit der Firma FischerHaus in Bodenwöhr. Das Konzept des individuellen Hausbaus, das das Unternehmen verfolgt, überzeugte sie schnell. Und siehe da: Gemeinsam mit dem FischerHaus-Architekten wurde das Haus innerhalb von sechs Wochen geplant und genehmigt – und der neue Hausplan sah genauso aus, wie es sich die Bauherrin immer vorgestellt hatte. Auch konnten alle Wünsche verwirklicht werden, wie das überdimensionale, längliche Dachflächenfenster im Bereich des Treppenaufgangs, das viel Tageslicht ins Haus holt.

Die Bauzeit war sehr aufregend: Mitten im Winter, kurz vor Weihnachten, wurde das Haus auf dem vorbereiteten Keller montiert. „Bei wildem Schneetreiben hat die FischerHaus-Mannschaft tolle Arbeit geleistet und das Haus innerhalb weniger Tage wind- und wetterfest errichtet“, so die glückliche Hauseigentümerin, deren Wohnträume nun Wirklichkeit wurden: eine klare, moderne Architektur mit großen Fensterflächen, die die idyllische Landschaft drumherum auch drinnen erlebbar machen.

KfW-Effizienzhaus 40 mindert die Nebenkosten auf ein Minimum

Wie alle Fischer-Häuser ist auch der Neubau bei Regensburg ein KfW-Effizienzhaus 40. Als ein solches hat das Haus einen geringen Heizbedarf, um die Bewohner mit Warmwasser zu versorgen und die Räume angenehm zu temperieren. Somit reduzieren sich die Nebenkosten auf ein Minimum: Der durchschnittliche Endenergiebedarf eines Fischer-Hauses als Effizienzhaus beläuft sich auf ca.
13 kWh/m²a. Damit liegt es im A+-Bereich der Energieeffizienz-Klassifizierung.

Durch eine stetig verschärfte Energieeinsparverordnung steigen die Anforderungen an die Qualität von Neubauten kontinuierlich. Ihre zulässigen Energieverbrauchswerte wurden ab 2009 bereits um 30 % gesenkt und sollen ab dem 1. Januar 2016 nochmals verringert werden: Der zulässige Jahres-Primärenergiebedarf wird um durchschnittlich 25 % und die Wärmedämmung der Gebäudehülle, der zulässige Wärmedurchgangskoeffizient, um durchschnittlich 20 % gekürzt. Das Ziel: Bis 2021 sollen alle Neubauten als Null-Energie-Häuser realisiert werden.

Für das Unternehmen FischerHaus geht diese schrittweise Verschärfung viel zu langsam. Schließlich baut der Haushersteller schon seit einigen Jahren im Bereich A+. Bauherren eines Fischer-Hauses haben also schon längst ihre ganz persönliche Energiewende eingeläutet.

Hausdaten

Hausart Icon
HausartEinfamilienhaus
Bauweise Icon
BauweiseHolz-Tafelbau
Baustil Icon
BaustilKlassische Familienhäuser
Fassade Icon
FassadePutz
Außenmaße Icon
Außenmaße11.49 m x 9.09 m
Wohnfläche Icon
Wohnfläche156.3 m²
Dachform Icon
DachformSattel-/Giebeldach
Energiestandard Icon
EnergiestandardEffizienzhaus 40 Plus
Immobilientyp Icon
ImmobilientypKundenhaus
Dachneigung Icon
Dachneigung20°
Kniestock Icon
Kniestock22 m
Hauseigenschaften Icon
HauseigenschaftenTerasse
Hausdämmstoff Icon
HausdämmstoffMineralfaser (Glaswolle, Steinwolle)
Heizungsart Icon
HeizungsartWärmepumpe (Luft, Wasser, oder beides)
Pfeil nach unten linksWir schaffen Platz für Ihre Träume

Grundriss

no description
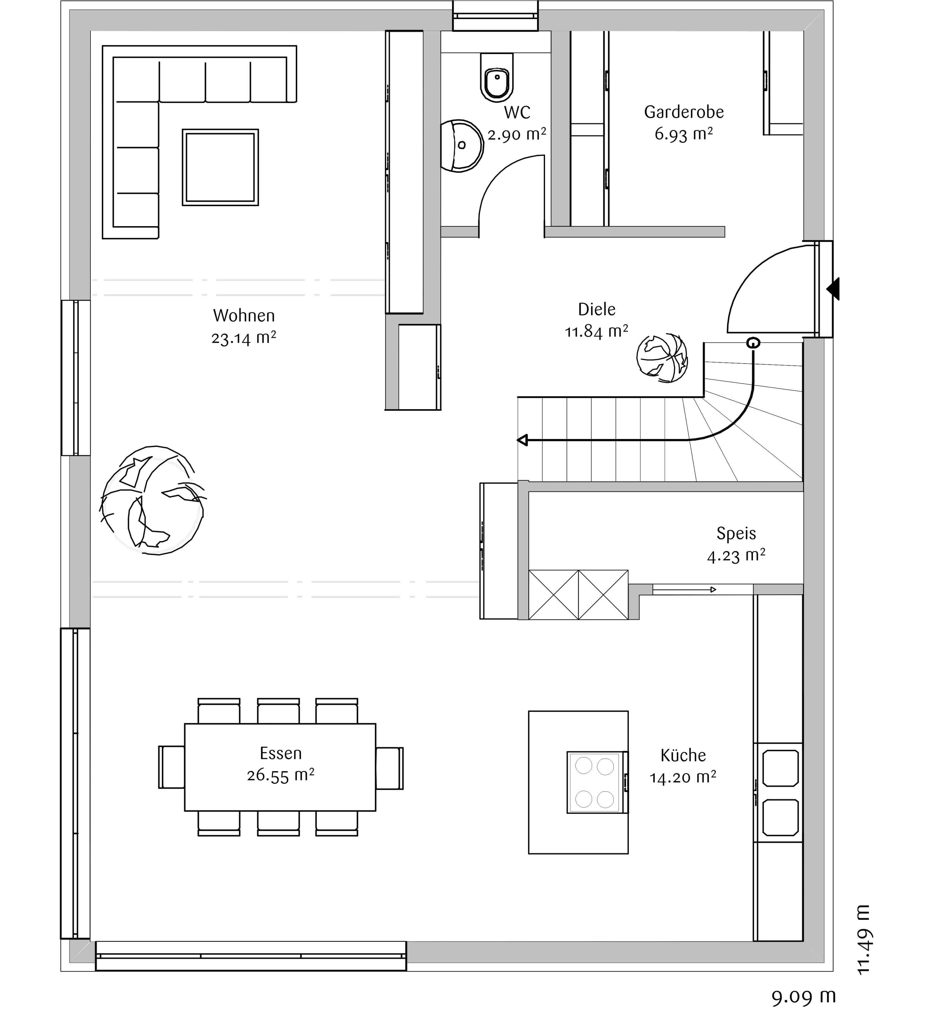
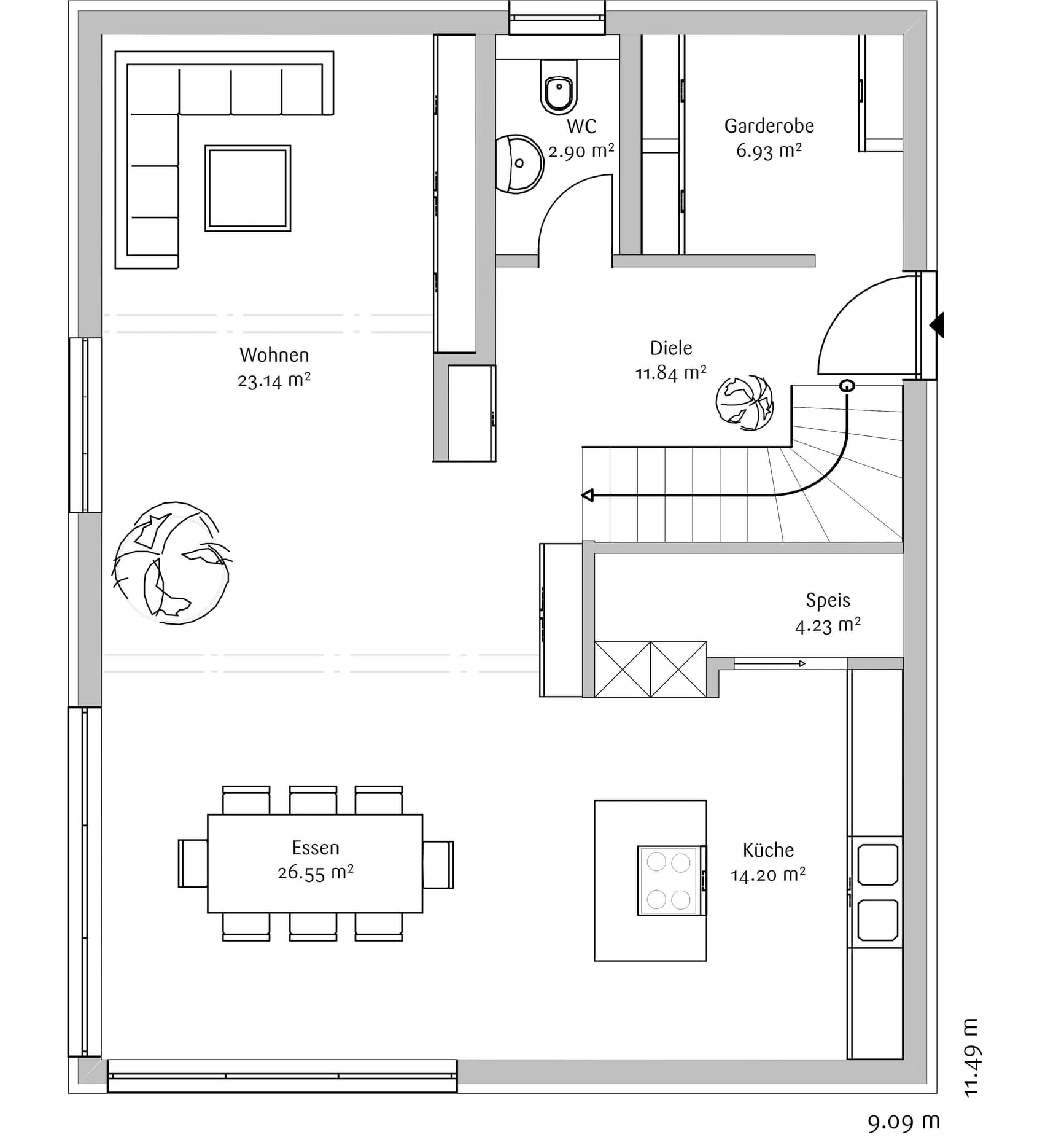
FischerHaus - Klassisch 156 Grundriss (EG)Wohnfläche EG: 89,79 m²
no description
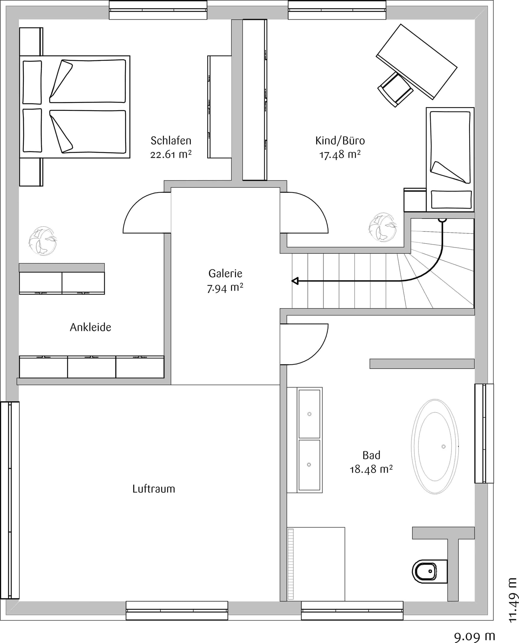
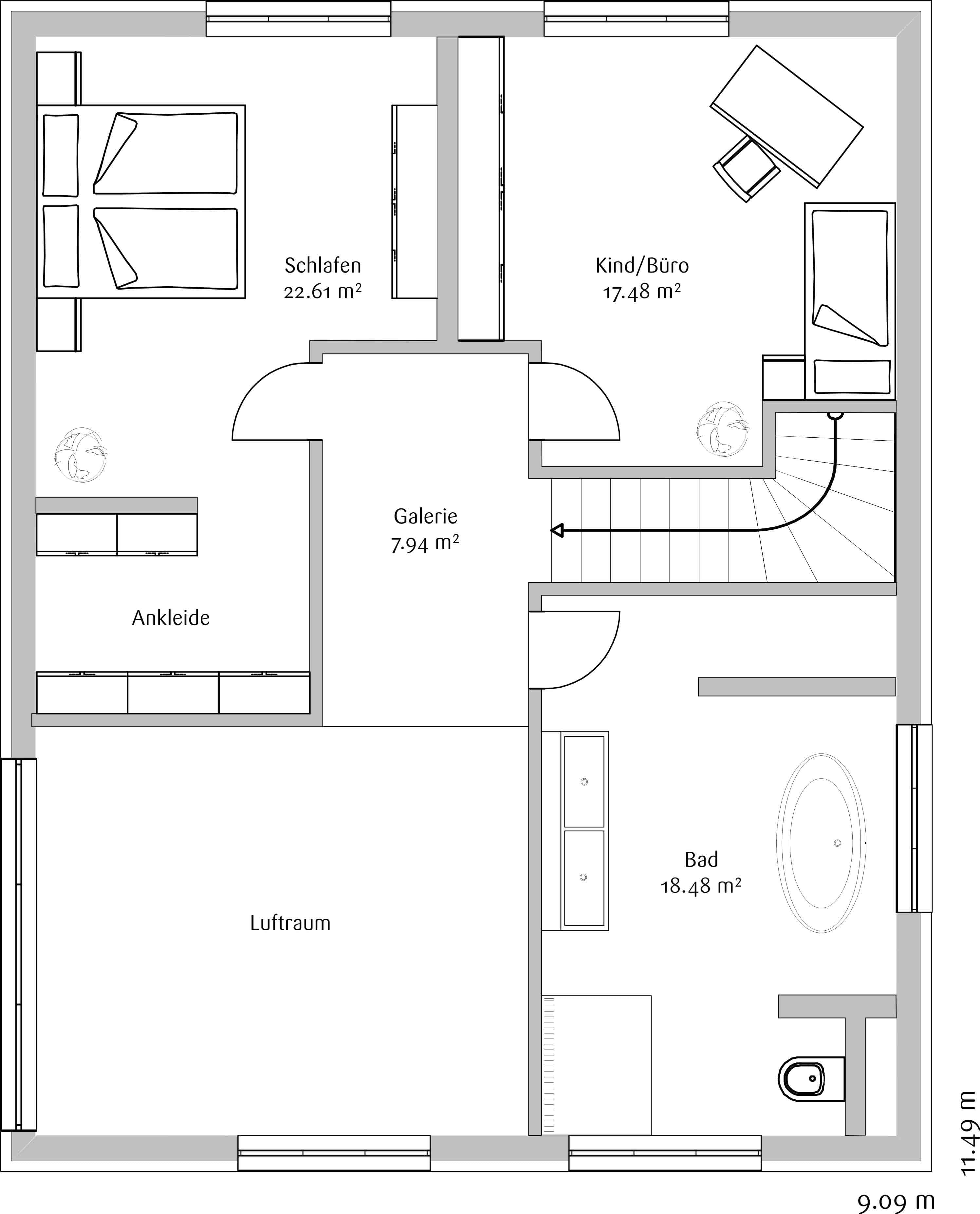
FischerHaus - Klassisch 156 Grundriss (OG)Wohnfläche OG: 66,51 m²

Kataloge

FischerHaus: Hauskatalog
FischerHaus

FischerHaus: Hauskatalog


House and TreeParksHouse and PinMusterhausHouse on HandAnbieter