1. AnbieterArrow Icon
  2. FischerHausArrow Icon
  3. FischerHaus - Bauhaus 175
Slide 1
Slide 2
Slide 3
Slide 4
Slide 5
Slide 6
Slide 7
FischerHaus-Logo-2023.jpg
FischerHausFischerHaus - Bauhaus 175
homeKubushäuser im Bauhausstil
livingArea176 m²
energyStandardEffizienzhaus 40 Plus
Preis anfragen
Katalog bestellen

FischerHaus - Bauhaus 175

Bauhaus für Stadt und Land

Der schlichte kubistische Baukörper mit seinen roten Putzfeldern zeigt mit seiner klaren Linienführung und reduzierten Materialwahl – angelehnt an die Bauhausarchitektur – wie ansprechend die kompromisslose Moderne sein kann. Die Komposition des Einfamilienhauses entfaltet sich ruhig und transparent auf drei Geschossen. Das oberste Geschoss umfasst neben einem Galeriezimmer eine Dachterrasse, als Rückzugsort für die ganze Familie. Vom Haus aus bietet sich ein Blick über die Dächer der Nachbargebäude und hat an schönen Tagen die Sonne bis in die späten Abendstunden.

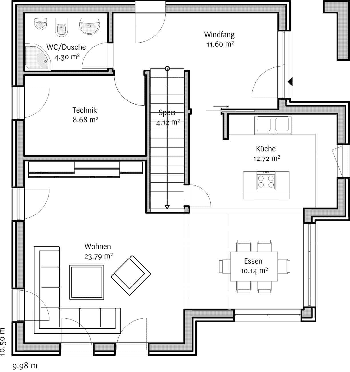
Die Architektur des Hauses sollte zeitlos erscheinen und die Aufteilung der Räume ist großzügig verteilt. Besucher werden dementsprechend in einer weitläufigen Diele mit integrierter Treppe empfangen. Linker Hand liegt der große Kochbereich mit angrenzendem Wohn- und Essbereich. Der Essbereich ist dank Galerie firsthoch offen und strahlt eine unglaubliche Helligkeit aus. Von hier aus kann man die Natur genießen und bei schönem Wetter die Sonnenstrahlen an der Haut kitzeln lassen. Weiter geht es ins Wohnzimmer, welches durch einen integrierten Kaminofen ein bisschen vom Essbereich getrennt ist. Ebenfalls von der Diele zugänglich ist der Technikraum mit der ausgeklügelten Haustechnik, einer Luft-Wasser-Wärmepumpe und einer kontrollierten Be- und Entlüftung mit Wärmerückgewinnung. Das Haus wurde auf Bodenplatte gebaut und bietet im Technikraum zusätzlich Raum für Waschmaschine und Trockner. Ein Duschbad findet ebenfalls im Erdgeschoss seinen Platz.

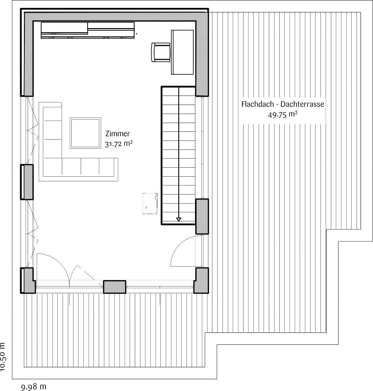
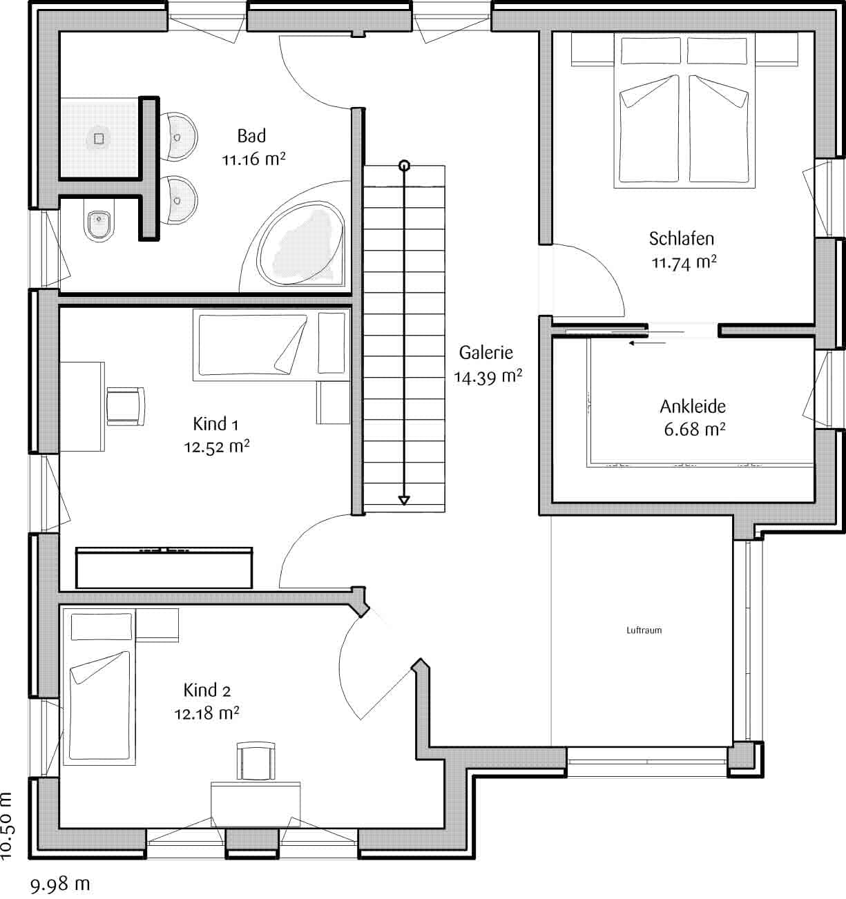
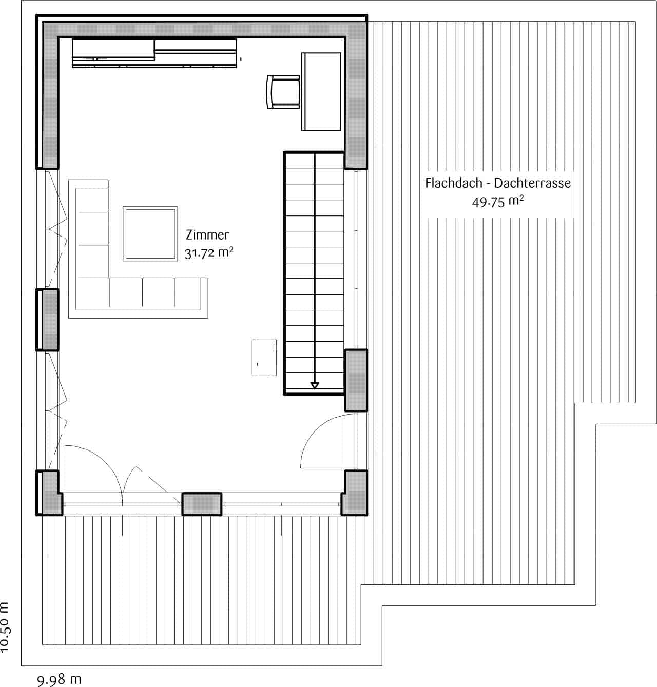
Über die geradlinige und helle Treppe gelangen Sie ins Obergeschoss, das ganz klassisch in zwei Kinderzimmern, einem Schlafzimmer mit angrenzender Ankleide und einem Elternbad aufgeteilt ist. Im Dachgeschoss des Hauses befindet sich ein großes Zimmer als zusätzlicher Raum für die Kinder als Spielplatz, als Arbeitszone für die Erwachsenen oder als Relaxmöglichkeit – natürlich mit angrenzender Dachterrasse.

 

Hausdaten

Hausart Icon
HausartEinfamilienhaus
Bauweise Icon
BauweiseHolz-Tafelbau
Baustil Icon
BaustilKubushäuser im Bauhausstil
Fassade Icon
FassadePutz
Außenmaße Icon
Außenmaße9.98 m x 10.5 m
Wohnfläche Icon
Wohnfläche175.74 m²
Dachform Icon
DachformFlachdach
Energiestandard Icon
EnergiestandardEffizienzhaus 40 Plus
Immobilientyp Icon
ImmobilientypKundenhaus
Hauseigenschaften Icon
HauseigenschaftenTerasse
Hausdämmstoff Icon
HausdämmstoffMineralfaser (Glaswolle, Steinwolle)
Heizungsart Icon
HeizungsartWärmepumpe (Luft, Wasser, oder beides)
Pfeil nach unten linksWir schaffen Platz für Ihre Träume

Grundriss

no description
FischerHaus - Bauhaus 175 Grundriss (EG)Wohnfläche EG: 75,35 m²
no description
FischerHaus - Bauhaus 175 Grundriss (OG)Wohnfläche OG: 68,67 m²
no description
FischerHaus - Bauhaus 175 Grundriss (DG)Wohnfläche DG: 31,72 m²

Kataloge

FischerHaus: Hauskatalog
FischerHaus

FischerHaus: Hauskatalog


House and TreeParksHouse and PinMusterhausHouse on HandAnbieter