1. AnbieterArrow Icon
  2. FischerHausArrow Icon
  3. FischerHaus - Klassisch 170
Slide 1
Slide 2
Slide 3
Slide 4
Slide 5
Slide 6
Slide 7
Slide 8
FischerHaus-Logo-2023.jpg
FischerHausFischerHaus - Klassisch 170
homeKlassische Familienhäuser
livingArea170 m²
energyStandardEffizienzhaus 40 Plus
Preis anfragen
Katalog bestellen

FischerHaus - Klassisch 170

Moderne trifft Landhausstil

Das knapp 170 m² Haus unseres Baupaares besticht durch sein ländliches Flair genauso wie durch seine zeitlose moderne Eleganz. Der im Erdgeschoss offen gehaltene großzügige Wohnbereich geht nahtlos in das Ess- und Kochareal über. Von jedem Platz aus kann der Blick in die Natur schweifen. Auch das Obergeschoss lässt diesen Wohlfühlcharakter spüren. Neben dem Schlafzimmer mit praktischer Ankleide hat das Baupaar auch an ein großes Familienbad und 2 Kinderzimmer gedacht.

Hausdaten

Hausart Icon
HausartEinfamilienhaus
Bauweise Icon
BauweiseHolz-Tafelbau
Baustil Icon
BaustilKlassische Familienhäuser
Fassade Icon
FassadePutz
Außenmaße Icon
Außenmaße10.9 m x 10.89 m
Wohnfläche Icon
Wohnfläche169.75 m²
Dachform Icon
DachformSattel-/Giebeldach
Energiestandard Icon
EnergiestandardEffizienzhaus 40 Plus
Immobilientyp Icon
ImmobilientypKundenhaus
Dachneigung Icon
Dachneigung38°
Hausdämmstoff Icon
HausdämmstoffMineralfaser (Glaswolle, Steinwolle)
Heizungsart Icon
HeizungsartWärmepumpe (Luft, Wasser, oder beides)
Pfeil nach unten linksWir schaffen Platz für Ihre Träume

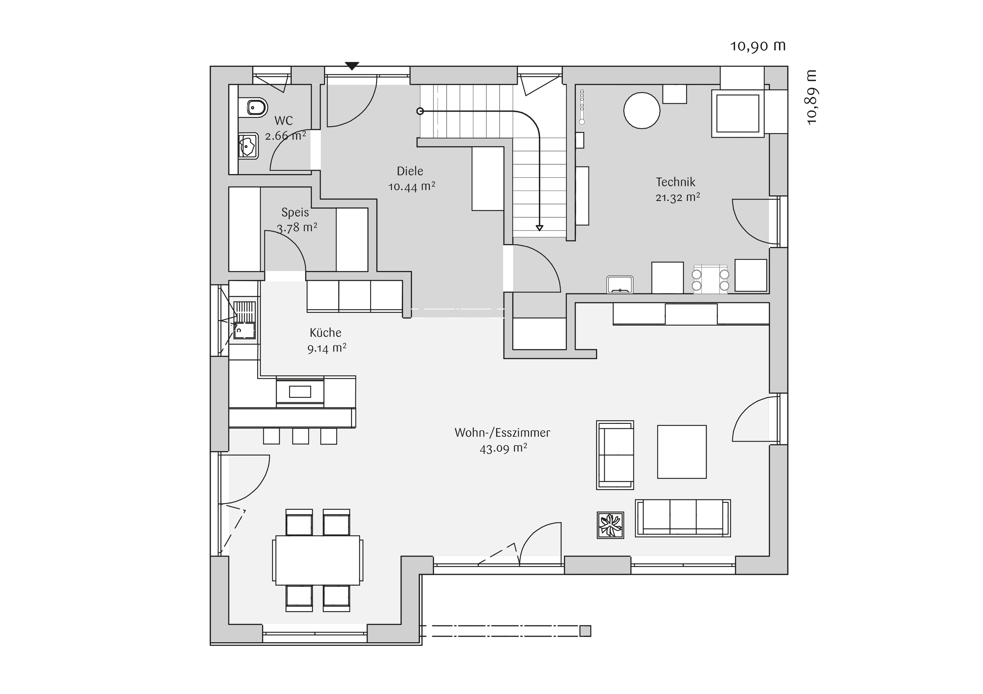
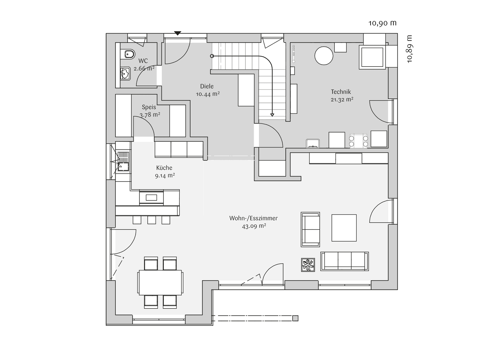
Grundriss

no description
FischerHaus - Klassisch 170 Grundriss (EG)Wohnfläche EG: 90,43 m²
no description
FischerHaus - Klassisch 170 Grundriss (DG)Wohnfläche DG: 79,32 m²

Kataloge

FischerHaus: Hauskatalog
FischerHaus

FischerHaus: Hauskatalog


House and TreeParksHouse and PinHäuser liveHouse on HandAnbieter