1. AnbieterArrow Icon
  2. FischerHausArrow Icon
  3. FischerHaus - Klassisch 131
Slide 1
Slide 2
FischerHaus-Logo-2023.jpg
FischerHausFischerHaus - Klassisch 131
homeKlassische Familienhäuser
livingArea131 m²
energyStandardEffizienzhaus 40 Plus
Preis anfragen
Katalog bestellen

FischerHaus - Klassisch 131

Kompaktes Einfamilienhaus

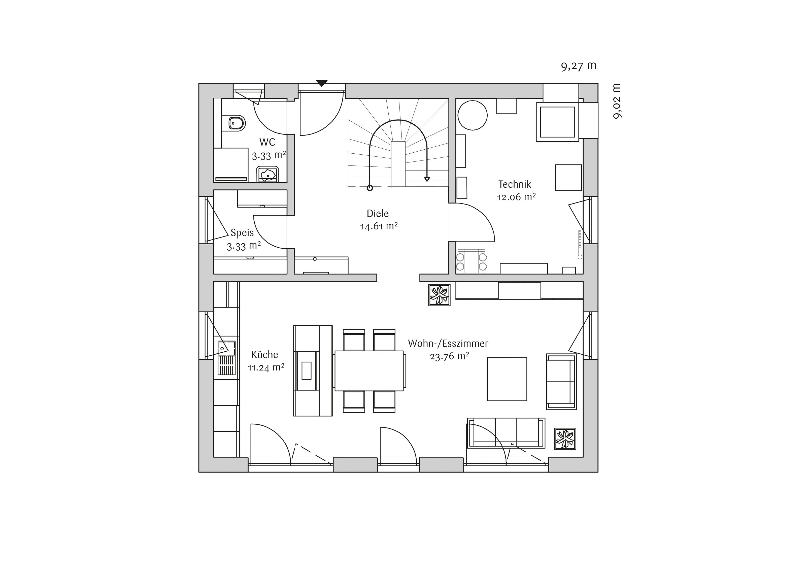
Das FischerHaus unserer Baufamilie umfasst zwar „nur“ rund 130 Quadratmeter Wohnfläche, setzt aber auch mit klassischem Satteldach einige moderne Akzente. Von der Diele aus erreichen Sie das WC sowie den offen gestalteten Wohn- und Essbereich mit angrenzender Küche. Der zentrale Raum des Familienhauses umfasst rund 35 Quadratmeter. Lichtdurchflutet wird der Raum durch bodentiefe Fensterelemente zum Garten. Komplettiert wird das Erdgeschoss durch den Hauswirtschaftsraum. Über eine u-förmige Treppe gelangen Sie in das Dachgeschoss. Vom Flur aus erreichen Sie die zwei Kinderzimmer, das Elternschlafzimmer sowie das Badezimmer mit Badewanne und Dusche.

Hausdaten

Hausart Icon
HausartEinfamilienhaus
Bauweise Icon
BauweiseHolz-Tafelbau
Anzahl Räume Icon
Anzahl Räume9
Baustil Icon
BaustilKlassische Familienhäuser
Fassade Icon
FassadePutz
Außenmaße Icon
Außenmaße9.27 m x 9.02 m
Wohnfläche Icon
Wohnfläche131.22 m²
Dachform Icon
DachformSattel-/Giebeldach
Energiestandard Icon
EnergiestandardEffizienzhaus 40 Plus
Immobilientyp Icon
ImmobilientypKundenhaus
Dachneigung Icon
Dachneigung42°
Hauseigenschaften Icon
HauseigenschaftenTerasse
Heizungsart Icon
HeizungsartWärmepumpe (Luft, Wasser, oder beides)
Pfeil nach unten linksWir schaffen Platz für Ihre Träume

Grundriss

no description
FischerHaus - Klassisch 131 Grundriss (EG)Wohnfläche EG: 68,33 m²
no description
FischerHaus - Klassisch 131 Grundriss (OG)Wohnfläche OG: 62,89 m²

Kataloge

FischerHaus: Hauskatalog
FischerHaus

FischerHaus: Hauskatalog


House and TreeParksHouse and PinMusterhausHouse on HandAnbieter