1. AnbieterArrow Icon
  2. FischerHausArrow Icon
  3. FischerHaus - Modern 173
Slide 1
Slide 2
Slide 3
Slide 4
Slide 5
Slide 6
FischerHaus-Logo-2023.jpg
FischerHausFischerHaus - Modern 173
homeStadtvillen
livingArea173 m²
energyStandardEffizienzhaus 40
Preis anfragen
Katalog bestellen

FischerHaus - Modern 173

Moderne Stadtvilla für die Münchner Innenstadt 

Seit einigen Jahren gibt es wieder einen deutlichen Trend zurück in die Stadt. Doch hier sind oft Grundstücke teuer und rar. Bei dem Neubau der Familie Troll/Hartl aus München war daher eine besondere Architektur nötig. Zusammen mit einem professionellen Architekten wurde diese besondere Stadtvilla geplant. „Ursprünglich wollten wir unser Haus ein bisschen anders bauen, aber die Stadt München ließ keine andere Dachneigung zu. Dann haben wir kurzerhand einfach ein Pultdach mit 5 Grad Dachneigung geplant.“ Die überbaute Fläche liegt nur bei 89 m², dafür aber mit stolzen 173 m² Wohnfläche und das bei einer Hausbreite von knapp acht Meter.

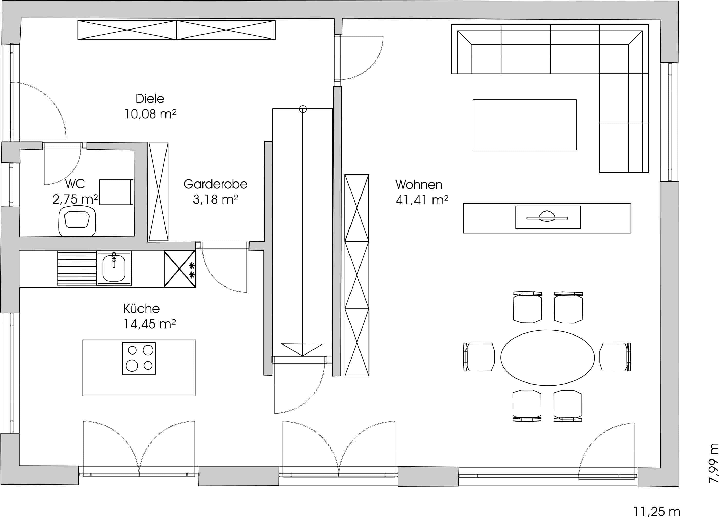
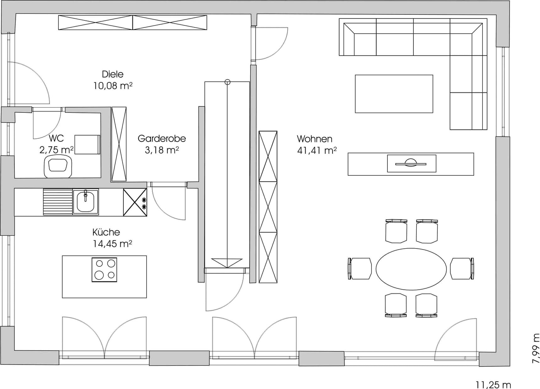
Beim Betreten des Hauses fällt der Blick sogleich auf die gerade Holztreppe und die geräumige Diele, mit integrierter Garderobe und einem Gäste-WC. Im Erdgeschoss gehen der offene Wohn- und Essbereich fließend ineinander über. Dank der großen Glasflächen hat man die Natur immer im Blick. Raumhohe Fensterelemente, die sich großzügig öffnen lassen, bieten weite Blicke und sorgen dank schwellenlosem Übergang zur Terrasse für die Erweiterung des Wohnraums. Der zentrale Blickpunkt im Wohnbereich ist der offene Kamin. Vom praktischen Ecksofa hat man einen herrlichen Blick auf das lodernde Feuer, hier lässt es sich entspannen und die Sorgen des Alltags vergessen. Der große Esstisch mit bequemen Polsterstühlen hat direkt im Anschluss seinen Platz, direkt vor der großen Fensterfläche, mit ausreichend Fläche für die vierköpfige Familie und Gäste. Wenn Birgit Hartl im etwas abgetrennten Kochbereich das Familienmenü zaubert, hat Sie immer einen guten Blick auf den Nachwuchs. „So habe ich meine zwei Jungs direkt im Blick, wenn Sie draußen im Garten rumtoben“, grinst Sie fröhlich in ihrer neuen Küche.

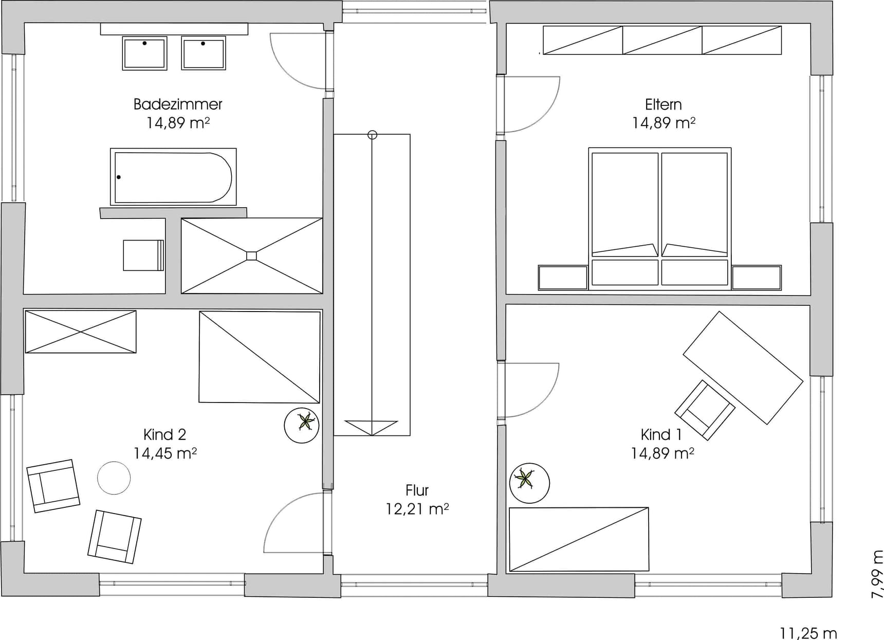
Auch das Obergeschoss bietet der vierköpfigen Familie alle nur erdenklichen Annehmlichkeiten. Die helle und weitläufige Diele erschließt zwei Kinderzimmer, das Familienbadezimmer sowie das geräumige Elternschlafzimmer. Die Kinderzimmer sind besonders hell und vorausschauend geplant. Eine große Fensterfront, die durch ein feststehendes Fensterelement und ein festes Unterlicht vor Absturz gesichert sind, lassen trotzdem genügend Licht zum spielen und toben ins Zimmer. Durch elektrische Raffstore wird das Haus komplett beschattet. „Momentan schlafen unsere zwei Jungs noch miteinander in einem Kinderzimmer, so haben Sie kurzerhand das zweite Zimmer als richtiges Spielzimmer umfunktioniert. Dann wird der ganze Tag mit Legosteinen und Spielzeug-Fahrzeugen gespielt.“

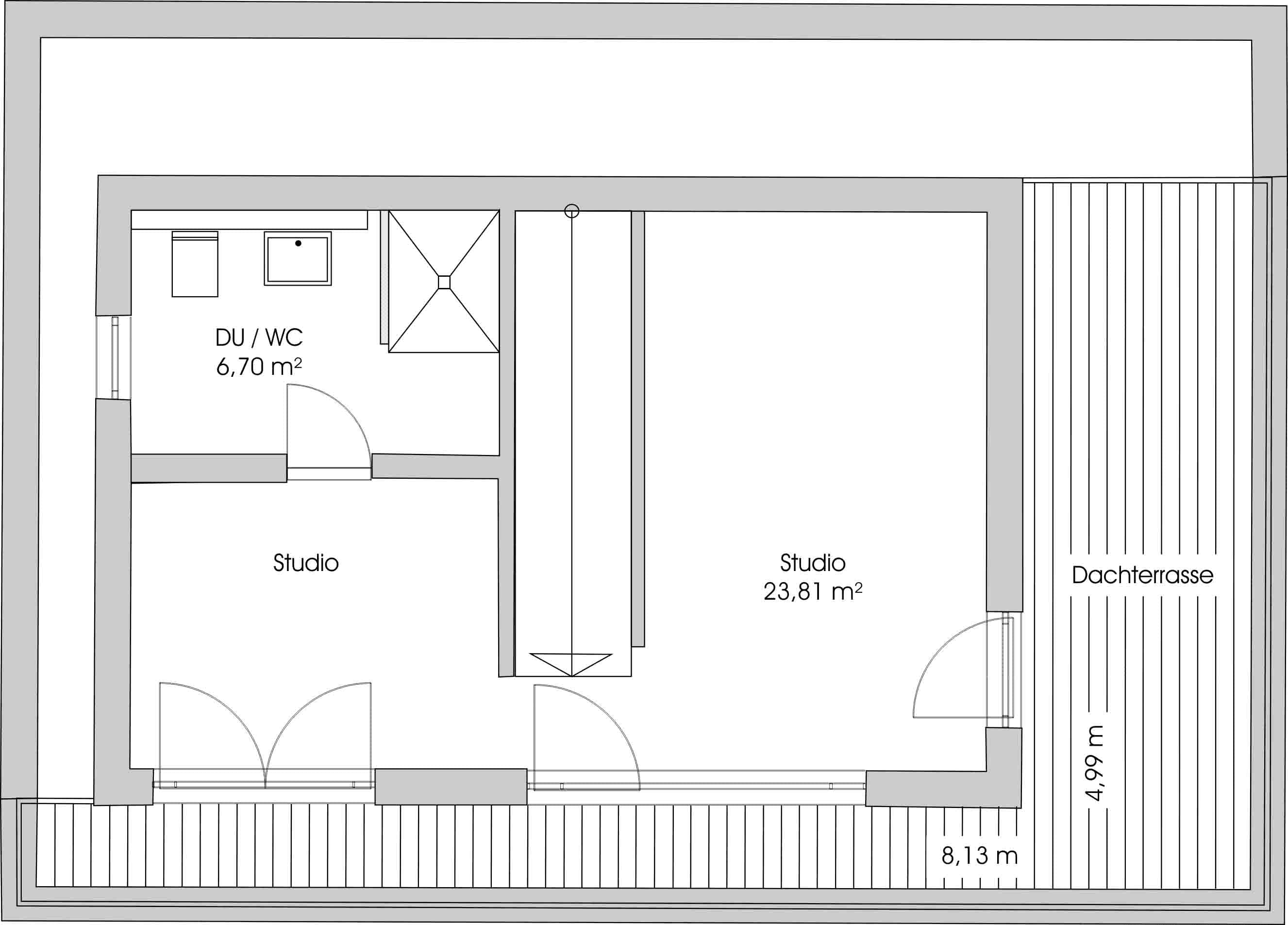
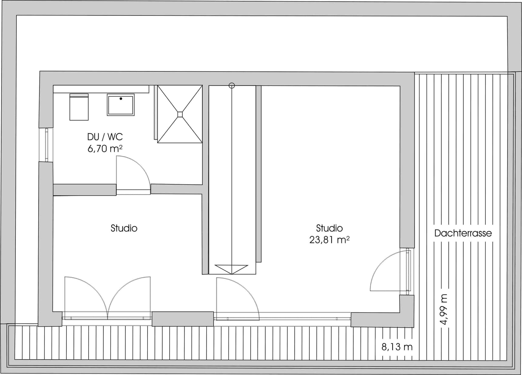
Das Einfamilienhaus erstreckt sich über drei Wohneinheiten: Die dritte mit einer sonnenverwöhnten Dachterrasse, konzipiert als Studio und Rückzugsort für die Eltern. „Jetzt haben wir einen Ruheraum, der nach einem anstrengenden Arbeitstag zum

 

Hausdaten

Hausart Icon
HausartEinfamilienhaus
Bauweise Icon
BauweiseHolz-Tafelbau
Baustil Icon
BaustilStadtvillen
Fassade Icon
FassadePutz
Außenmaße Icon
Außenmaße11.25 m x 7.99 m
Wohnfläche Icon
Wohnfläche173 m²
Dachform Icon
DachformPultdach
Energiestandard Icon
EnergiestandardEffizienzhaus 40
Immobilientyp Icon
ImmobilientypKundenhaus
Dachneigung Icon
Dachneigung
Hauseigenschaften Icon
HauseigenschaftenBalkon
Hausdämmstoff Icon
HausdämmstoffMineralfaser (Glaswolle, Steinwolle)
Heizungsart Icon
HeizungsartWärmepumpe (Luft, Wasser, oder beides)
Pfeil nach unten linksWir schaffen Platz für Ihre Träume

Grundriss

no description
FischerHaus - Modern 173 Grundriss (EG)Wohnfläche EG: 71,87 m²
no description
FischerHaus - Modern 173 Grundriss (OG)Wohnfläche OG: 70,62 m²
no description
FischerHaus - Modern 173 Grundriss (DG)Wohnfläche DG: 30,51 m²

Kataloge

FischerHaus: Hauskatalog
FischerHaus

FischerHaus: Hauskatalog


House and TreeParksHouse and PinMusterhausHouse on HandAnbieter