1. AnbieterArrow Icon
  2. FischerHausArrow Icon
  3. FischerHaus - Klassisch 144
Slide 1
Slide 2
Slide 3
Slide 4
Slide 5
Slide 6
FischerHaus-Logo-2023.jpg
FischerHausFischerHaus - Klassisch 144
homeKlassische Familienhäuser
livingArea141 m²
energyStandardEffizienzhaus 40
Preis anfragen
Katalog bestellen

FischerHaus - Klassisch 144

Mehrgenerationenhaus zum Anfassen

Mehrgenerationenhäuser werden immer mehr zum Trend

Alt und Jung unter einem Dach: Dank des demografischen und sozialen Wandels suchen immer mehr Menschen nach neuen Wohnformen und werden im Mehrgenerationenhaus fündig, weil hier die Vorzüge der ehemals weit verbreiteten Großfamilie auch in der heutigen Zeit genutzt werden können. So kann beispielsweise die junge Generation davon profitieren, dass die Senioren die Kinderbetreuung übernehmen. Im Gegenzug dürfen die älteren Bewohner auf Unterstützung beim Kochen oder Einkaufen zählen. Wichtig für ein harmonisches Miteinander ist, dass alle Bewohner ihre eigenen Räume besitzen und separat nutzen können. Die Senioren leben in der Regel barrierefrei ebenerdig. Die Jüngeren – Paare, Familien oder Singles – finden ihr Reich dafür eher in den oberen Etagen. Kein Wunder, dass diese Wohnform seit einigen Jahren stark im Kommen ist.

Es gibt aber auch noch weitere Gründe für die zunehmende Beliebtheit dieses Bautyps: In städtischen Regionen, in denen Baugrundstücke meist rar sind und somit auch sehr teuer, ist ein Mehrgenerationenhaus eine Möglichkeit, Baukosten zu sparen. Denn mit dieser Gebäudeart lässt sich auf geringerer Fläche als bei mehreren Einzelhäusern großzügiger Wohnraum für alle Bewohner schaffen. Und wenn der Nachwuchs flügge wird und das gemeinsame Haus verlässt, bietet sich den Eltern die Option, eine Wohnung zu vermieten und sich mit den Mieteinnahmen ihre Rente aufzubessern – ein willkommenes Zusatzgeld als Altersvorsorge.

Drei-Familienhaus als KfW-Effizienzhaus 40

Ein Beispiel für gelungenes, gelebtes Mehrgenerationen-Wohnen ist das FischerHaus „Allgäu“. Das Haus wurde als Drei-Familienhaus gebaut, mit zwei gleich großen Drei-Zimmer-Wohnungen im Erdgeschoss und Dachgeschoss sowie einer kleineren Einliegerwohnung im Keller. Durch die Aufteilung in drei Wohneinheiten konnten die Bauherren von einer mehrfachen Förderung der KfW-Bank profitieren, denn die staatliche Förderung in Form von günstigen Krediten und Tilgungszuschüssen gibt es für jede Wohnung separat. Da FischerHaus standardmäßig besonders sparsame Effizienzhäuser 40 baut, ist diese finanzielle Unterstützung jedem Bauherrn sicher.

Aufgrund des geringen Heizbedarfs, den das Haus benötigt, um seine Bewohner mit Warmwasser und Heizung zu versorgen, reduzieren sich auch die Nebenkosten auf ein Minimum.  Der durchschnittliche Endenergiebedarf eines FischerHauses als Effizienzhaus 40 beläuft sich auf ca. 13 kWh/m²a. Ein FischerHaus befindet sich somit im A+-Bereich der Energieeffizienz-Klassifizierung.

Der individuellen Grundriss-Gestaltung sind dabei generell keine Grenzen gesetzt. Beim diesem Haus wurde zum Beispiel die Terrasse im Kellergeschoss nach Nord-Westen gelegt, die Terrasse im Erdgeschoss ist nach Süden ausgerichtet und der Balkon im Obergeschoss zeigt direkt nach Westen. Dadurch kann jeder Bewohner des Hauses für sich, zu einer anderen Tageszeit, die Sonne genießen. Das Flachdach der Garage zieht sich bis zum Wohnhaus, sodass es einen überdachten Eingangsbereich bildet. Die Innenraumgestaltung ist klar und strukturiert sowie mit viel Liebe zum Detail gestaltet.

Hausdaten

Hausart Icon
HausartEinfamilienhaus
Bauweise Icon
BauweiseHolz-Tafelbau
Baustil Icon
BaustilKlassische Familienhäuser
Fassade Icon
FassadePutz
Außenmaße Icon
Außenmaße1143 m x 981 m
Wohnfläche Icon
Wohnfläche140.7 m²
Dachform Icon
DachformSattel-/Giebeldach
Energiestandard Icon
EnergiestandardEffizienzhaus 40
Immobilientyp Icon
ImmobilientypKundenhaus
Dachneigung Icon
Dachneigung27°
Hauseigenschaften Icon
HauseigenschaftenTerasse
Hausdämmstoff Icon
HausdämmstoffMineralfaser (Glaswolle, Steinwolle)
Heizungsart Icon
HeizungsartWärmepumpe (Luft, Wasser, oder beides)
Pfeil nach unten linksWir schaffen Platz für Ihre Träume

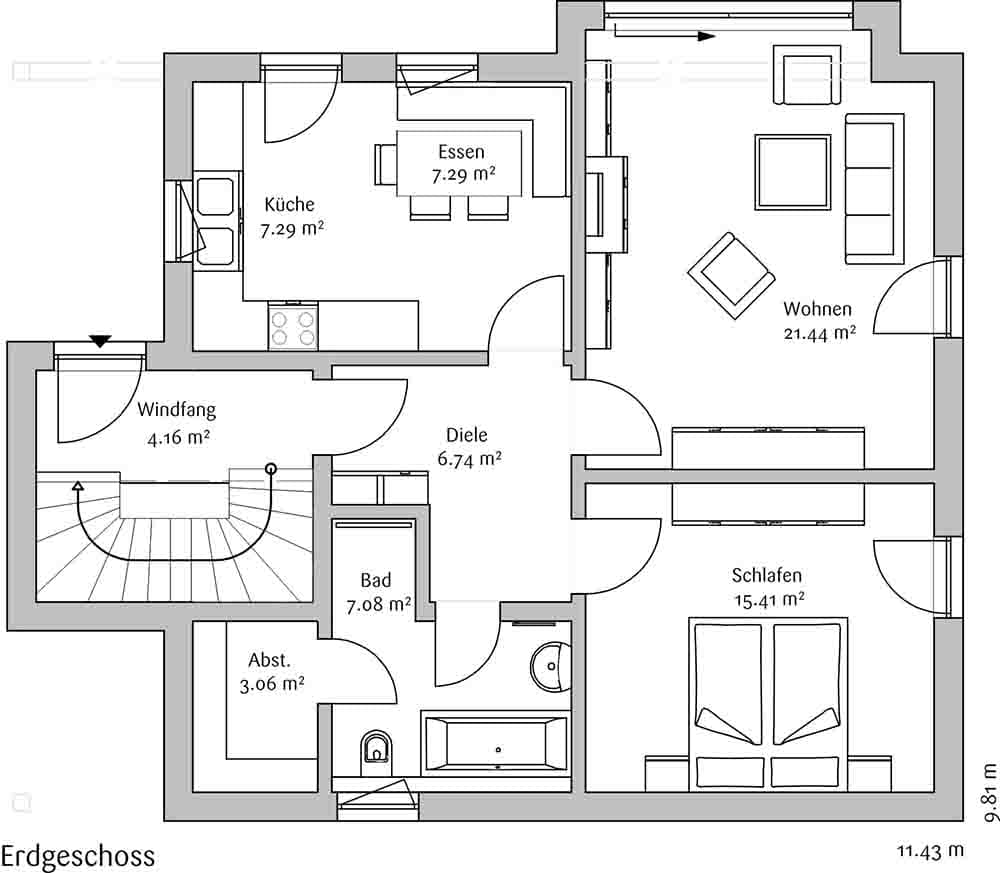
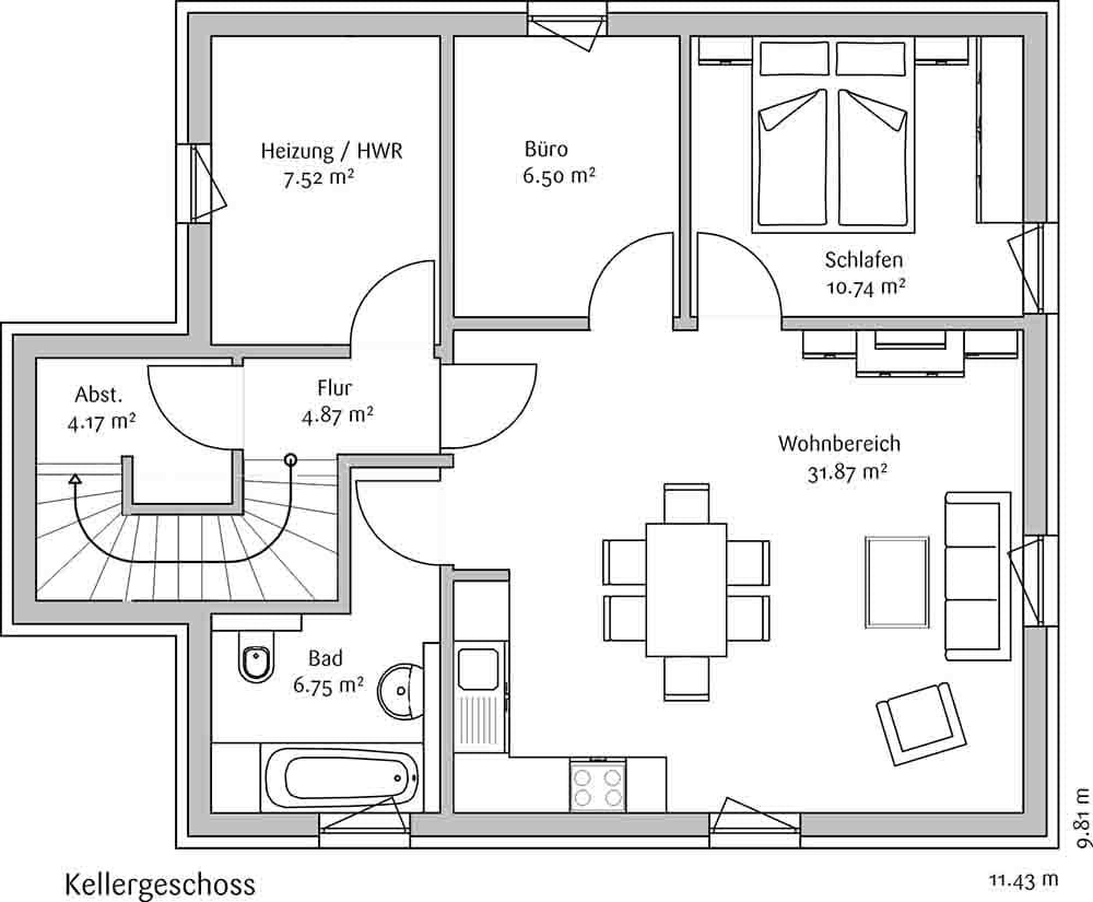
Grundriss

no description
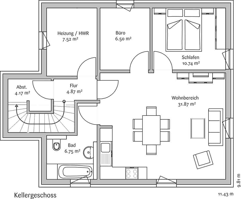
FischerHaus - Klassisch 144 Grundriss (Keller)
no description
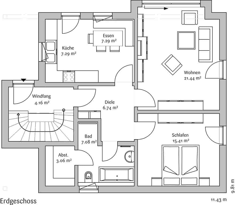
FischerHaus - Klassisch 144 Grundriss (EG)Wohnfläche EG: 72,47 m²
no description
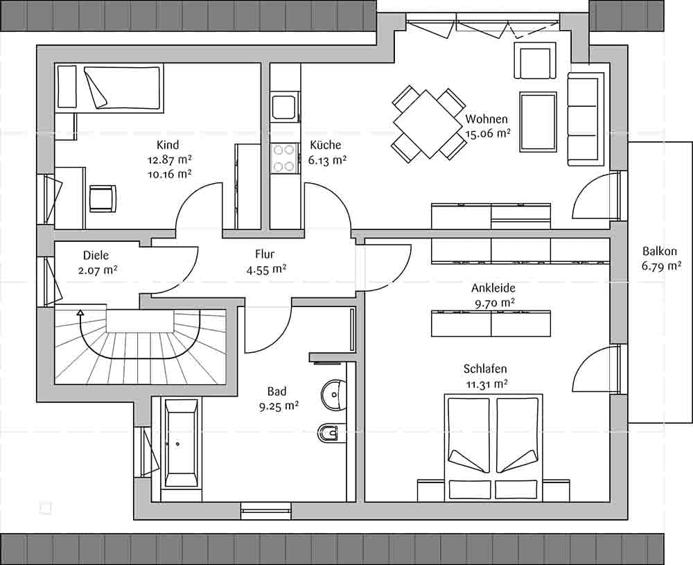
FischerHaus - Klassisch 144 Grundriss (DG)Wohnfläche DG: 68,23 m²

Kataloge

FischerHaus: Hauskatalog
FischerHaus

FischerHaus: Hauskatalog


House and TreeParksHouse and PinMusterhausHouse on HandAnbieter