1. AnbieterArrow Icon
  2. FischerHausArrow Icon
  3. FischerHaus - Dreifamilienhaus 230
Slide 1
Slide 2
Slide 3
Slide 4
Slide 5
FischerHaus-Logo-2023.jpg
FischerHausFischerHaus - Dreifamilienhaus 230
homeKlassische Familienhäuser
livingArea227 m²
energyStandardEffizienzhaus 55
Preis anfragen
Katalog bestellen

FischerHaus - Dreifamilienhaus 230

Drei-Familienhaus als KfW-Effizienzhaus 40

Ein Beispiel für gelungenes, gelebtes Mehrfamilien-Wohnen ist dieses FischerHaus. Das Haus wurde als Drei-Familienhaus gebaut, mit zwei gleich großen Sechs-Zimmer-Wohnungen im Erdgeschoss und Obergeschoss sowie einer kleineren Wohnung im Dachgeschoss. Durch die Aufteilung in drei Wohneinheiten konnten die Bauherren von einer mehrfachen Förderung der KfW-Bank profitieren, denn die staatliche Förderung in Form von günstigen Krediten und Tilgungszuschüssen gibt es für jede Wohnung separat. Da FischerHaus standardmäßig besonders sparsame Effizienzhäuser 40 baut, ist diese finanzielle Unterstützung jedem Bauherrn sicher.

Aufgrund des geringen Heizbedarfs, den das Haus benötigt, um seine Bewohner mit Warmwasser und Heizung zu versorgen, reduzieren sich auch die Nebenkosten auf ein Minimum.  Der durchschnittliche Endenergiebedarf eines FischerHauses als Effizienzhaus 40 beläuft sich auf ca. 13 kWh/m²a. Ein FischerHaus befindet sich somit im A+-Bereich der Energieeffizienz-Klassifizierung.

Der individuellen Grundriss-Gestaltung sind dabei generell keine Grenzen gesetzt.

Hausdaten

Bauweise Icon
BauweiseHolz-Tafelbau
Baustil Icon
BaustilKlassische Familienhäuser
Fassade Icon
FassadePutz
Außenmaße Icon
Außenmaße11.81 m x 10.6 m
Wohnfläche Icon
Wohnfläche227.15 m²
Dachform Icon
DachformFlachdach
Energiestandard Icon
EnergiestandardEffizienzhaus 55
Immobilientyp Icon
ImmobilientypKundenhaus
Hausdämmstoff Icon
HausdämmstoffNachwachsende Dämmstoffe (Flachs, Hanf, Schafswolle)
Heizungsart Icon
HeizungsartWärmepumpe (Luft, Wasser, oder beides)
Pfeil nach unten linksWir schaffen Platz für Ihre Träume

Grundriss

no description
FischerHaus - Dreifamilienhaus 230 Grundriss (EG)Wohnfläche EG: 0,8 m²
no description
FischerHaus - Dreifamilienhaus 230 Grundriss (OG)Wohnfläche OG: 92,71 m²
no description
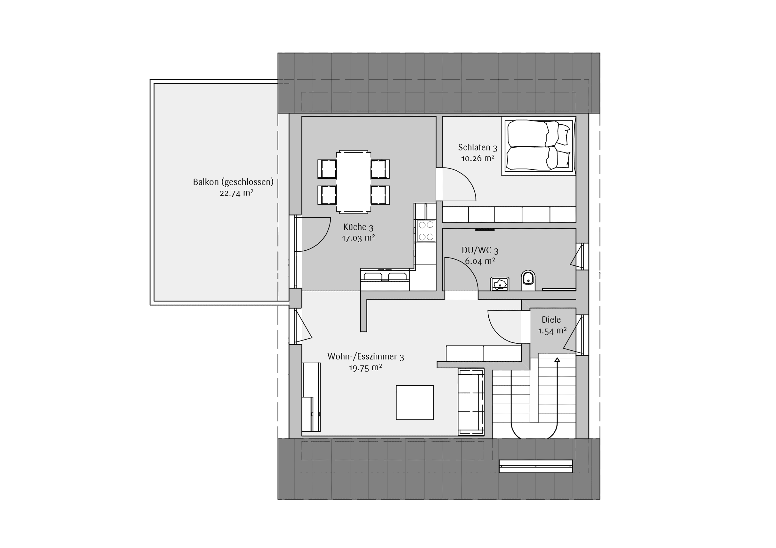
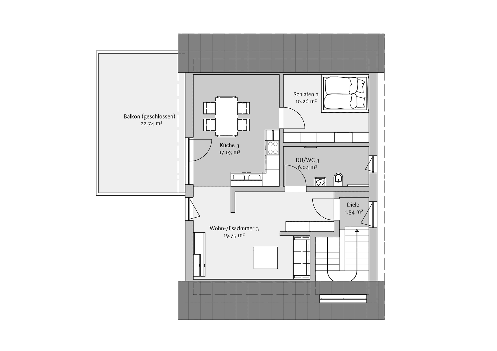
FischerHaus - Dreifamilienhaus 230 Grundriss (DG)Wohnfläche DG: 54,62 m²

Kataloge

FischerHaus: Hauskatalog
FischerHaus

FischerHaus: Hauskatalog


House and TreeParksHouse and PinMusterhausHouse on HandAnbieter