1. AnbieterArrow Icon
  2. FischerHausArrow Icon
  3. FischerHaus - Bürogebäude
Slide 1
Slide 2
Slide 3
Slide 4
Slide 5
Slide 6
FischerHaus-Logo-2023.jpg
FischerHausFischerHaus - Bürogebäude
homeKubushäuser im Bauhausstil
livingArea506 m²
energyStandardEffizienzhaus 40
Preis anfragen
Katalog bestellen

FischerHaus - Bürogebäude

So schnell geht Hausbauen und „Steuer(t)räume“ realisieren

Mitten im Zentrum Dachaus entstand ein gelungenes Bauprojekt, welches optimal an das vorhandene Grundstück angepasst wurde. Als individuell geplantes Effizienzhaus 55 besticht das Bürogebäude durch schlichte Eleganz und Komfort.

Die Bauplanung eines Bürogebäudes

„Im Vorfeld unserer Bauphase war unser Ziel, ein Bürogebäude in traditioneller Ziegelbauweise zu errichten. Während der Planungsphase wurden wir allerdings mit verschiedenen Problemen wie mangelnde Planbarkeit der Kosten und Errichtungszeit konfrontiert. Dies war für uns der Grund, über Alternativen nachzudenken. Mit einem Holzständerhaus konnten wir nun genau dies in den Griff bekommen. Als wir uns intensiver mit der Thematik auseinander gesetzt haben, waren weitere Aspekte wie Energieeffizienz  und innovative Ansätze ausschlaggebend für unseren Entschluss.“, so Stefan Fichtl und Heinz Sprödhuber, die Bauherren und Eigentümer der SFS Steuerberatungsgesellschaft mbH.

Das Besondere ist, dass dieses Haus nur für die eigene Steuerkanzlei gebaut wird. Das heißt, bei der Planung mussten keine Kompromisse wegen anderer Mieter eingegangen werden. Dieses Kanzleigebäude wird durch die Innovation in der Bauweise und des Energiekonzeptes eines Effizienzhauses 55 die eigene Innovation der Kanzlei nach außen tragen. Es ist ein einzigartiges Gebäude geworden, das perfekt zu den Mitarbeitern und Mandanten, die dort ein- und ausgehen, passt.

Von der Idee zum fertigen Projekt

„Fischerhaus schafft durch individuelle Lösungen ein Heim für Familien. In diesem besonderen Fall haben wir ein Geschäftshaus errichtet, welches einen klassisch modernen Baustil mit einer zukunftsweisenden Technik verbindet. Das Bürogebäude war für FischerHaus eine besondere Voraussetzung, alles geplant nach der aktuellen Arbeitsstätten Richtlinie. Wir haben eine außerordentliche Lichtplanung im Gebäude berücksichtigt und anhand einer Lüftungsanlage für die optimale Frischluft-Zufuhr durch einer Lüftungsanlage gesorgt.“ so FischerHaus-Geschäftsführerin Barbara Fuchs.

Elektroauto zum „Nulltarif“ obendrauf

Auf Grund der gesetzlichen Vorschriften ist bei jedem Neubau ein regenerativer Anteil im Heizkonzept vorzusehen. Im Wohnhausbereich wird dies üblicherweise in Verbindung mit Solarthermie erfüllt. „ Da in einem Bürogebäude der Warmwasserverbrauch jedoch sehr gering ist, führte dieser Ansatz bei uns zu keinem sinnvollen Ergebnis. Wir haben uns dann über andere Alternativen wie Grundwasserwärmepumpe, Hackschnitzelheizung und Blockheizkraftwerk Gedanken gemacht. Letztendlich haben wir jedoch gemeinsam mit den Stadtwerken Dachau in der Brennstoffzelle die für uns optimale Lösung gefunden. Die Brennstoffzelle wird mit Erdgas betrieben und erzeugt 24 Stunden am Tag Strom, welcher direkt als Eigenbedarf in unserer Kanzlei verwendet wird. Über die Abwärme der Stromerzeugung wird unser Objekt geheizt. Der Wirkungsgrad einer Brennstoffzelle ist noch besser als bei einem Blockheizkraftwerk und die Geräuschemissionen sind geringer. Da unser Strombedarf in der Nacht deutlich geringer ist, wird während dieser Zeit ein Elektroauto geladen, welches für Kanzleizwecke genutzt wird. Die Brennstoffzelle rundet also das Gesamtkonzept unseres Gebäudes ab und wird in der dezentralen Energieversorgung künftig eine entscheidende Rolle spielen.“, so die beiden Inhaber.

Hausdaten

Hausart Icon
HausartObjektbau
Bauweise Icon
BauweiseHolz-Tafelbau
Baustil Icon
BaustilKubushäuser im Bauhausstil
Fassade Icon
FassadePutz
Wohnfläche Icon
Wohnfläche505.68 m²
Dachform Icon
DachformFlachdach
Energiestandard Icon
EnergiestandardEffizienzhaus 40
Immobilientyp Icon
ImmobilientypKundenhaus
Hauseigenschaften Icon
HauseigenschaftenTerasse
Hausdämmstoff Icon
HausdämmstoffNachwachsende Dämmstoffe (Flachs, Hanf, Schafswolle)
Heizungsart Icon
HeizungsartWärmepumpe (Luft, Wasser, oder beides)
Pfeil nach unten linksWir schaffen Platz für Ihre Träume

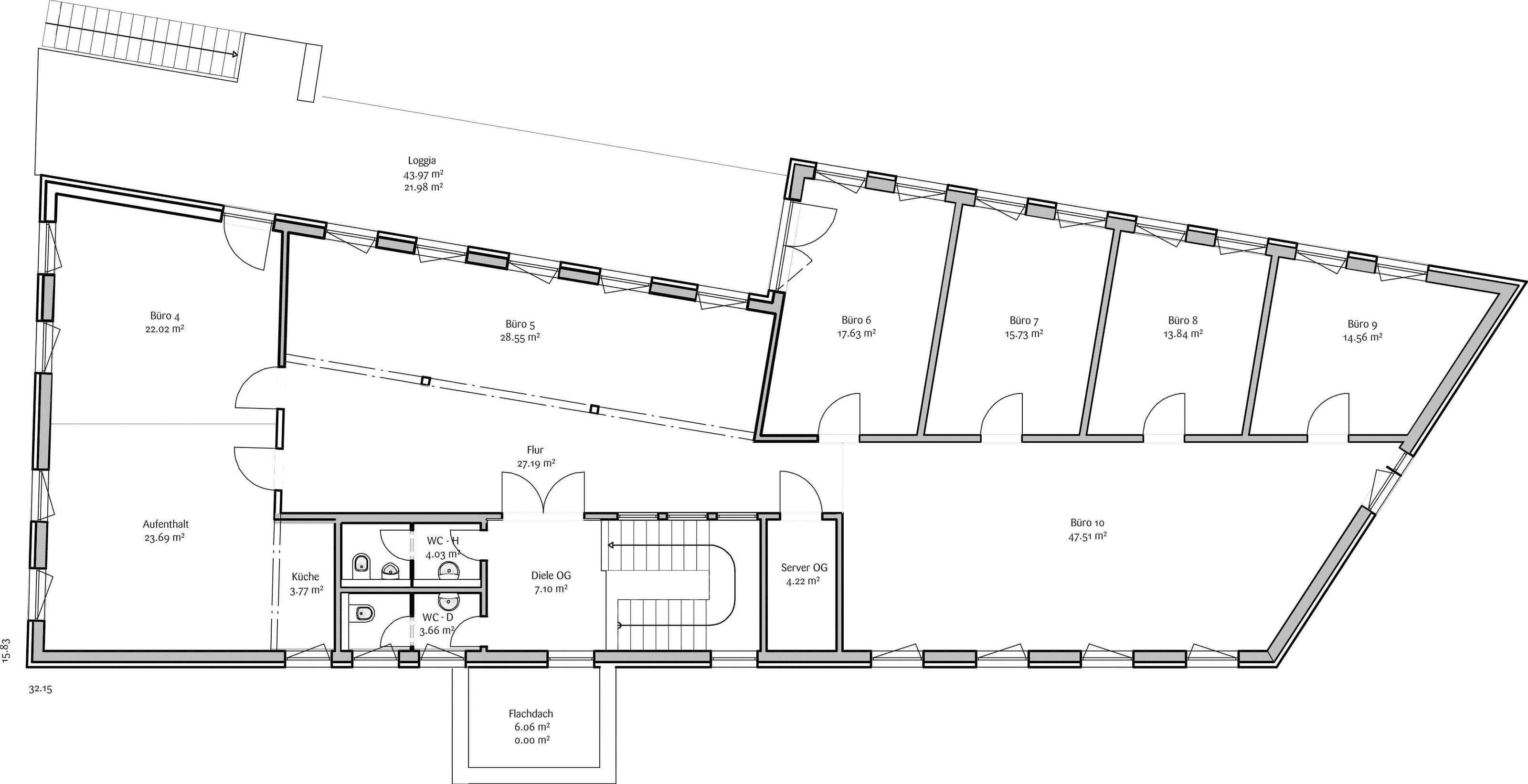
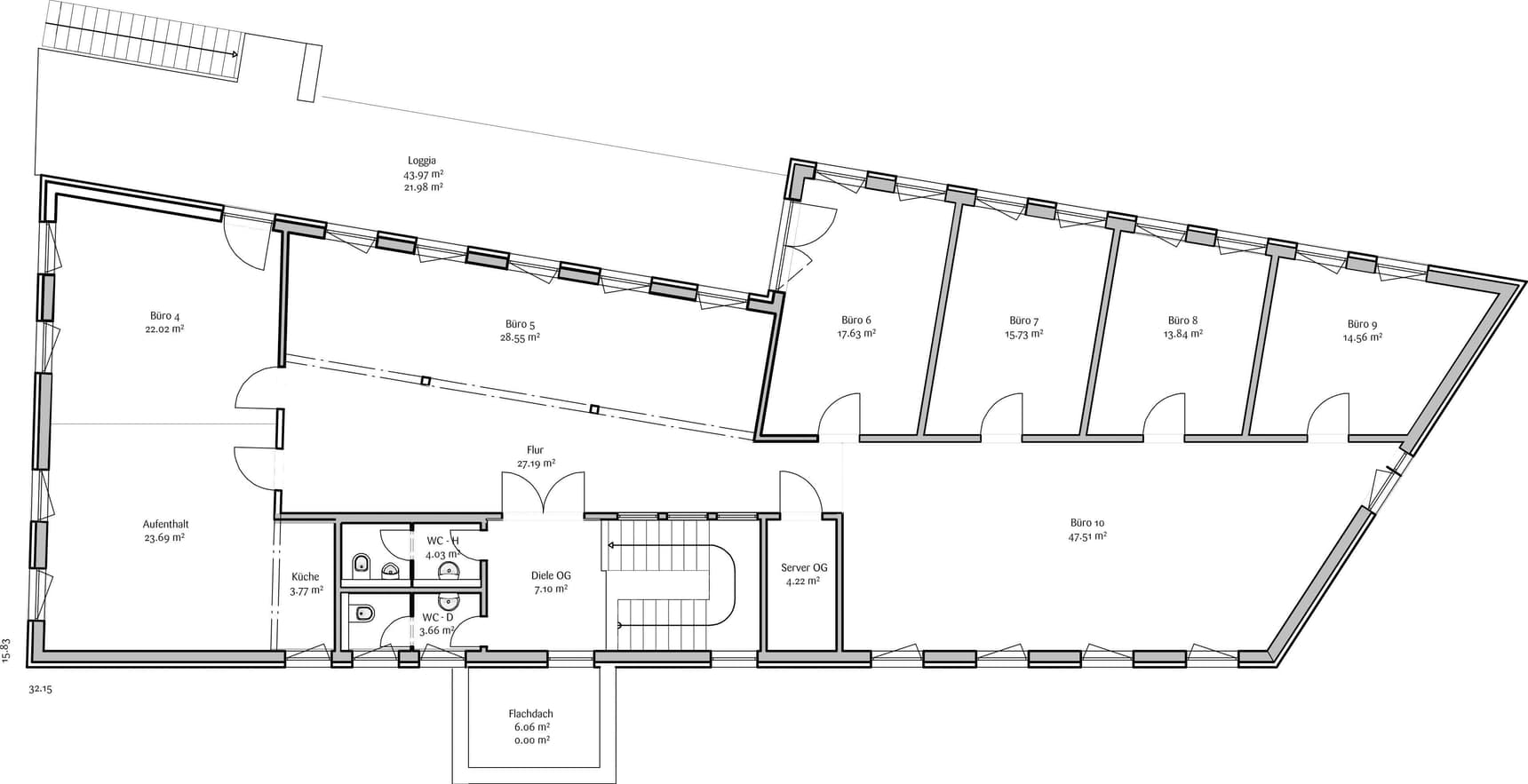
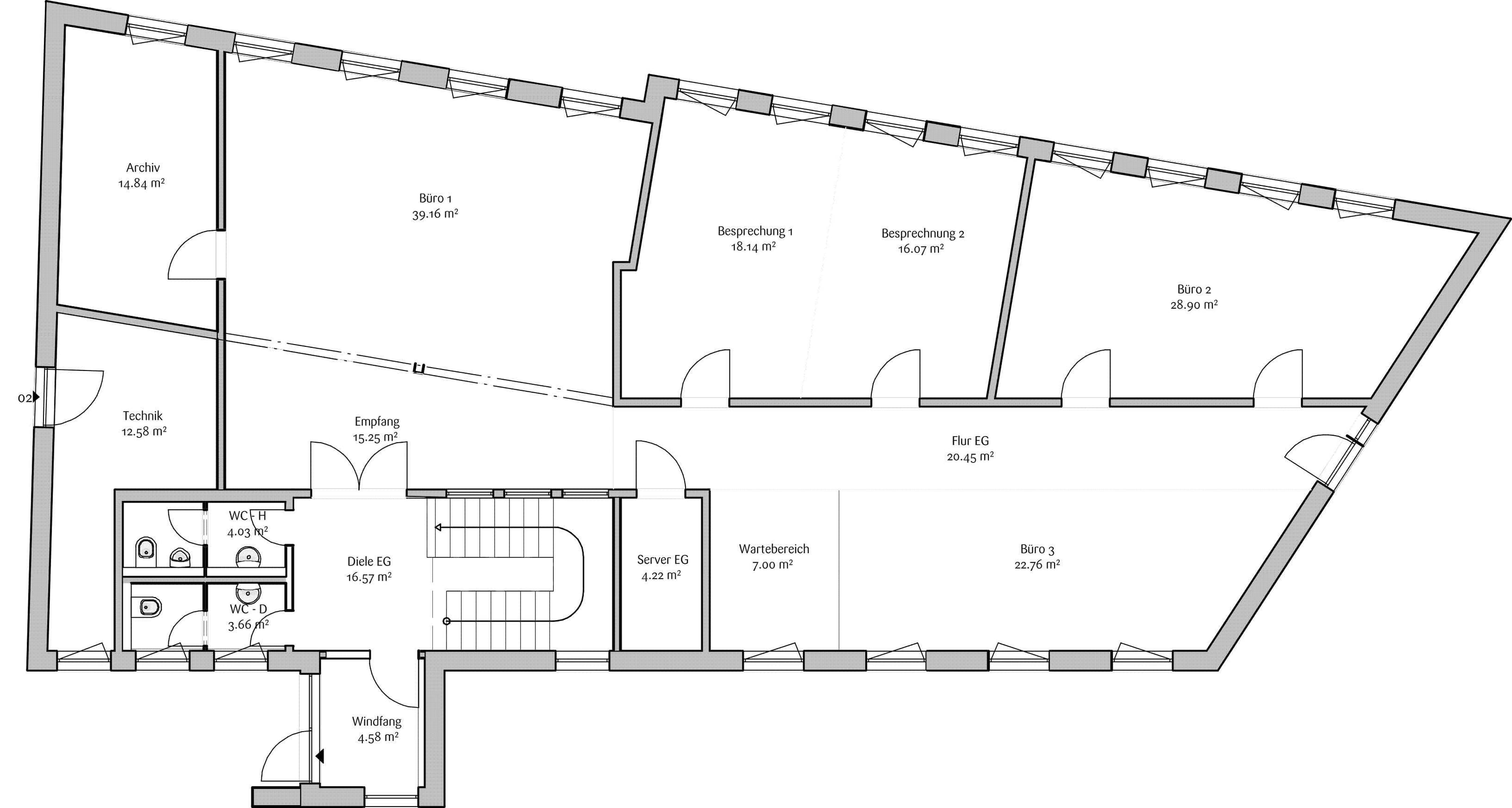
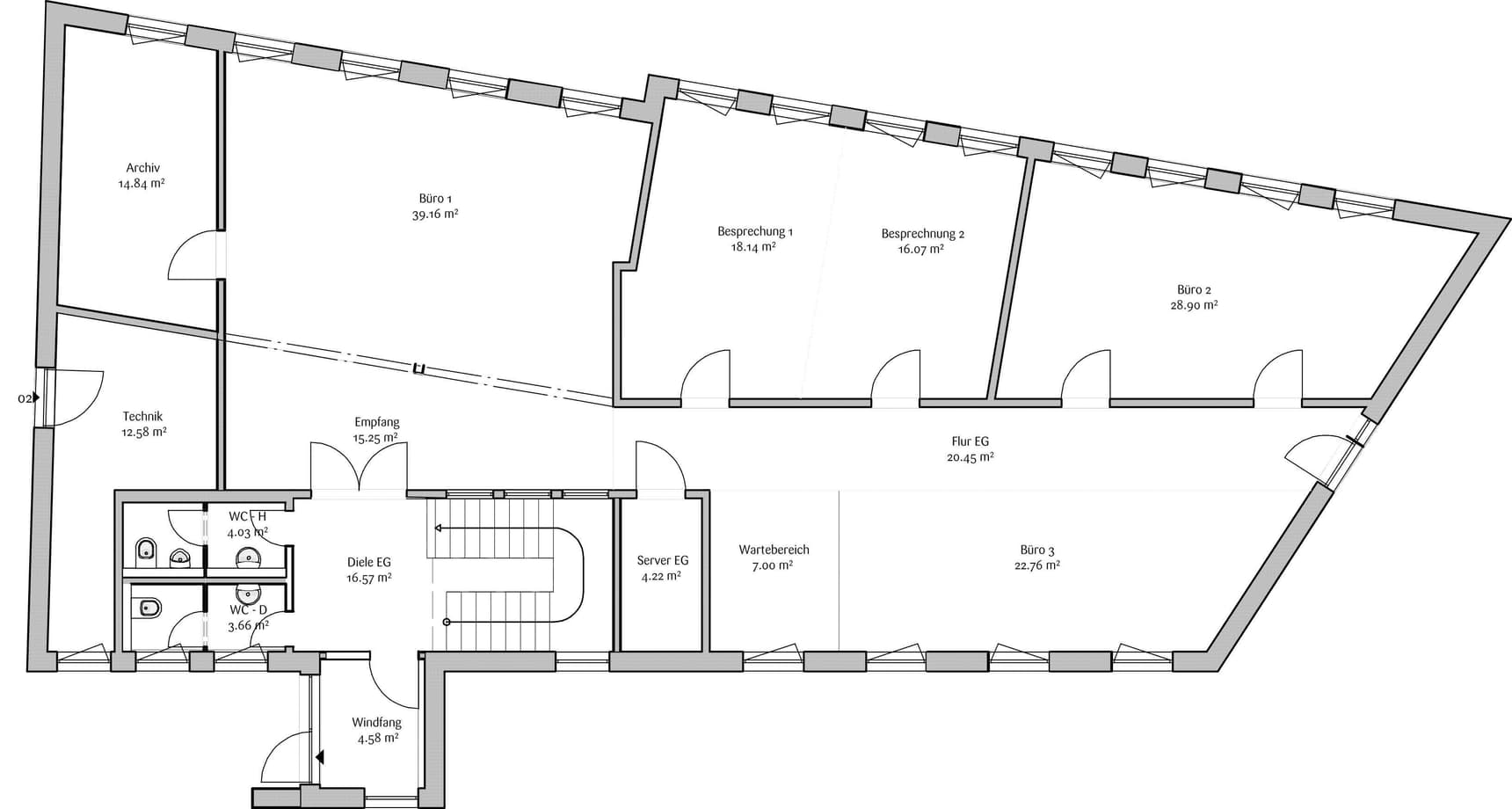
Grundriss

no description
FischerHaus - Bürogebäude Grundriss (EG)
no description
FischerHaus - Bürogebäude Grundriss (OG)

Kataloge

FischerHaus: Hauskatalog
FischerHaus

FischerHaus: Hauskatalog


House and TreeParksHouse and PinMusterhausHouse on HandAnbieter