1. AnbieterArrow Icon
  2. FischerHausArrow Icon
  3. FischerHaus - Bauhaus 190
Slide 1
Slide 2
Slide 3
Slide 4
Slide 5
Slide 6
Slide 7
Slide 8
FischerHaus-Logo-2023.jpg
FischerHausFischerHaus - Bauhaus 190
homeKubushäuser im Bauhausstil
livingArea191 m²
energyStandardEffizienzhaus 40 Plus
Preis anfragen
Katalog bestellen

FischerHaus - Bauhaus 190

Offenes Wohnen

Hausdaten

Hausart Icon
HausartEinfamilienhaus
Bauweise Icon
BauweiseHolz-Tafelbau
Anzahl Räume Icon
Anzahl Räume6
Baustil Icon
BaustilKubushäuser im Bauhausstil
Fassade Icon
FassadePutz
Außenmaße Icon
Außenmaße13 m x 10.75 m
Wohnfläche Icon
Wohnfläche191.47 m²
Dachform Icon
DachformFlachdach
Energiestandard Icon
EnergiestandardEffizienzhaus 40 Plus
Immobilientyp Icon
ImmobilientypKundenhaus
Hausdämmstoff Icon
HausdämmstoffNachwachsende Dämmstoffe (Flachs, Hanf, Schafswolle)
Heizungsart Icon
HeizungsartWärmepumpe (Luft, Wasser, oder beides)
Pfeil nach unten linksWir schaffen Platz für Ihre Träume

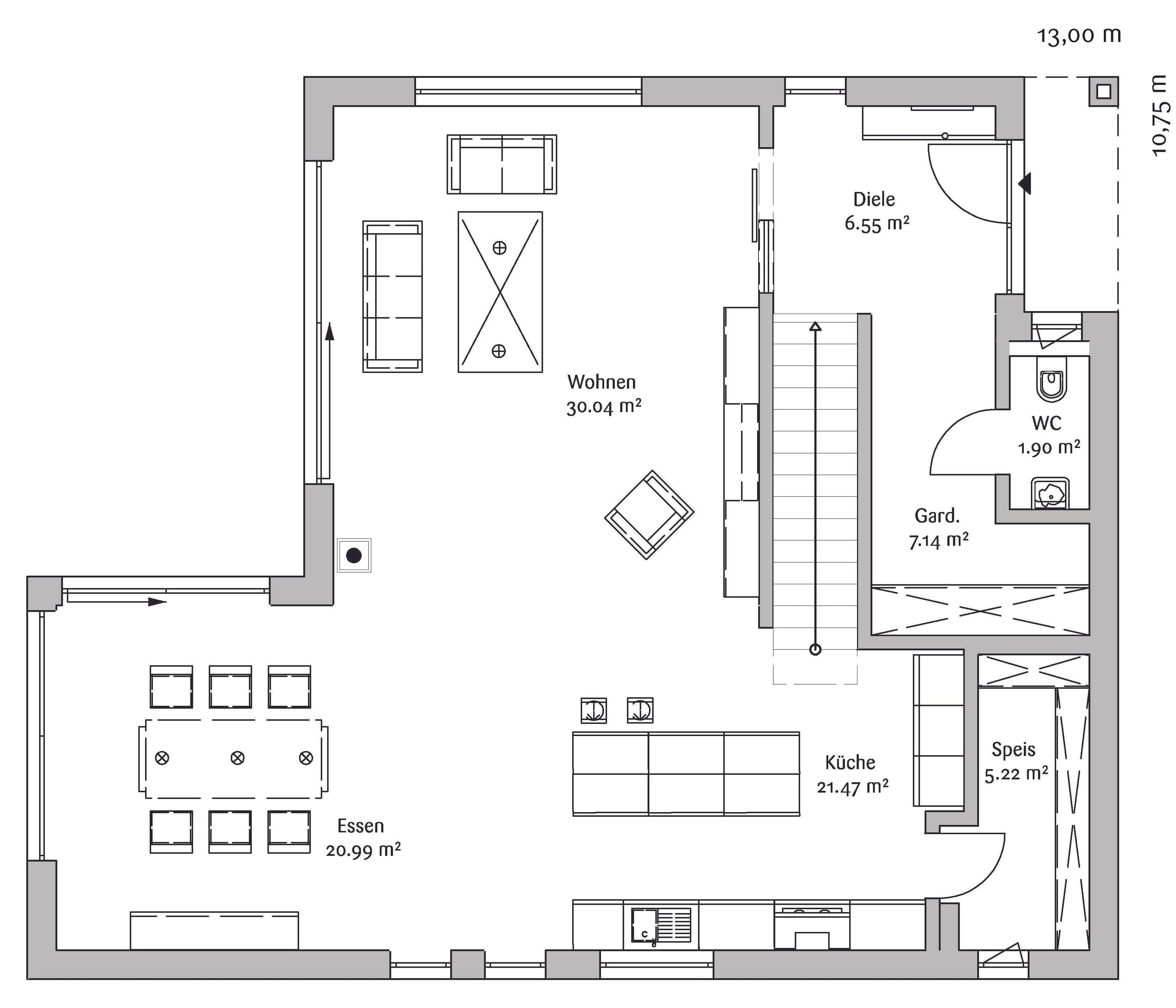
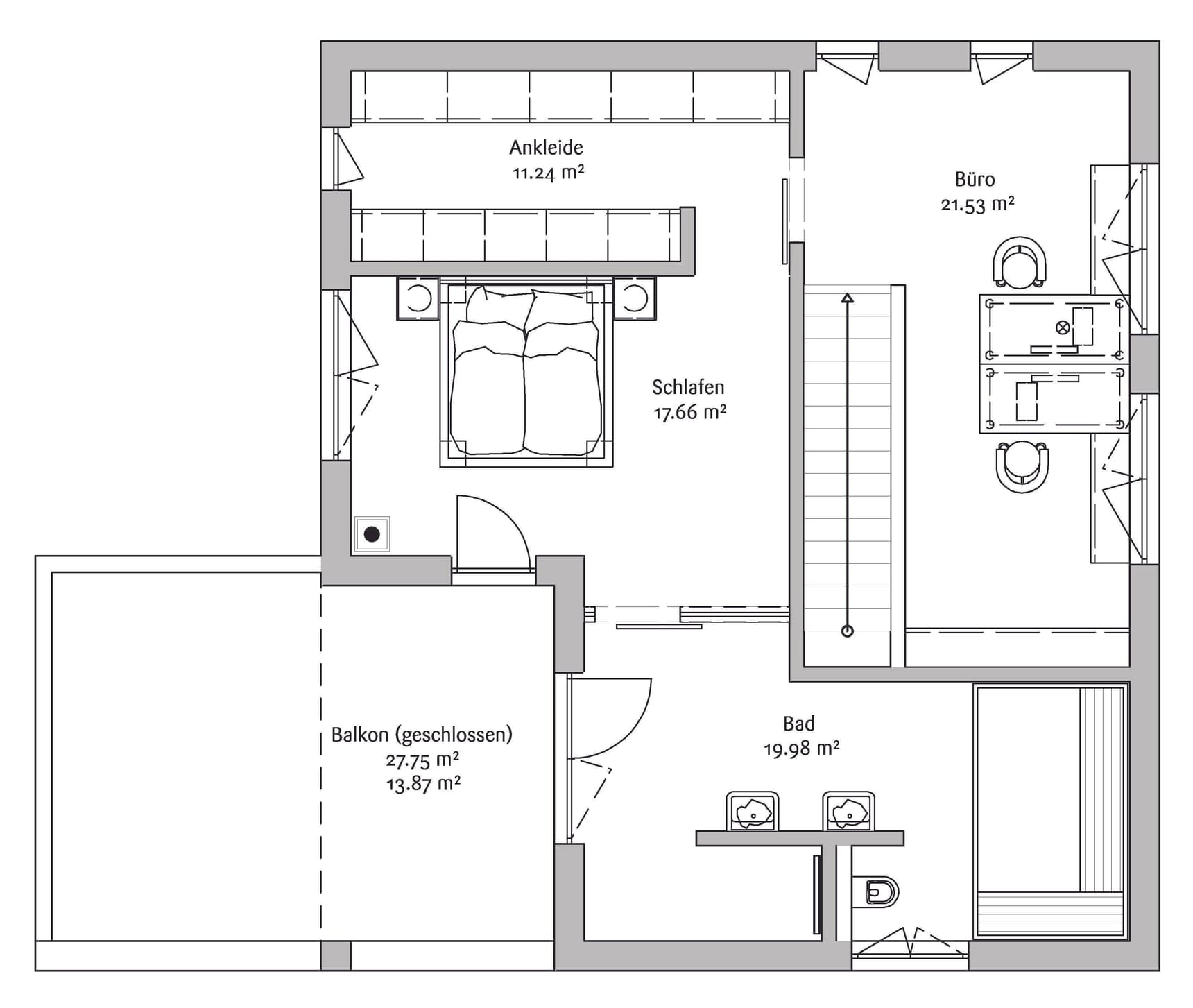
Grundriss

no description
FischerHaus - Bauhaus 190 Grundriss (EG)Wohnfläche EG: 93,31 m²
no description
FischerHaus - Bauhaus 190 Grundriss (OG)Wohnfläche OG: 98,16 m²

Kataloge

FischerHaus: Hauskatalog
FischerHaus

FischerHaus: Hauskatalog


House and TreeParksHouse and PinMusterhausHouse on HandAnbieter