1. AnbieterArrow Icon
  2. Regnauer HausbauArrow Icon
  3. Vitalhaus Gauting
Slide 1
Slide 2
Slide 3
Slide 4
Slide 5
Slide 6
no description
Regnauer HausbauVitalhaus Gauting
homeKlassische Familienhäuser
livingArea128 m²
energyStandardKFWG-Q
Preis anfragen
Katalog bestellen

Vitalhaus Gauting

Dass ein Familienheim für vier Personen auch auf 128 Quadratmetern Wohnfläche genügend individuellen Raum bietet, beweist das Vitalhaus Gauting. Auf einem Grundstück in grüner Ortsrandlage hat hier eine junge Familie mit zwei Kindern besonderen Wert auf eine ökologische Bauweise gelegt und sich bewusst für eine regionale Bauausführung entschieden. Das schmucke Eigenheim trägt als KfW-Effizienzhaus zum Energiesparen bei und unterstützt den verantwortungsvollen Umgang mit den vorhandenen Ressourcen.

Einladend und transparent – Die großflächige Verglasung des Erdgeschosses unterstreicht den einladenden Charakter des Familienhauses: Hier sind große und kleine Gäste willkommen! Geerdet mittels der aus Lärchenholz gefertigten Rhombusleisten wirkt der darüber liegende Teil des Obergeschosses. Passend zu diesen ausdrucksstarken Elementen ordnen sich die geradlinigen, schlicht weiß verputzten Gebäudeteile unter. Ein mit Tondachziegeln gedecktes, 25 Grad geneigtes Satteldach krönt den modernen Bau, der von einem Carport flankiert wird.

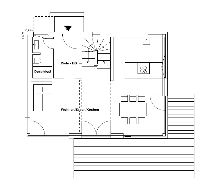
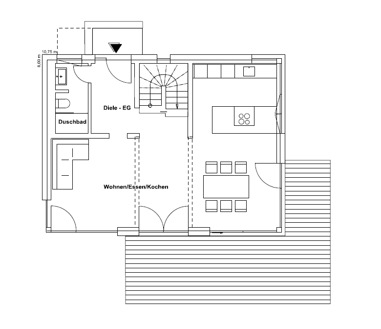
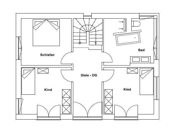
Kompakt und gemütlich – Das Erdgeschoss ist das Zentrum des Familienlebens: Im offenen Wohn-, Koch- und Essbereich mit zwei Ausgängen zur Terrasse stehen gemeinsame Aktivitäten im Mittelpunkt. Der lichtdurchflutete Raum erweitert sich zur auf zwei Hausseiten verlaufenden Terrasse. Zusätzlich finden ein Duschbad und eine Garderobe auf dieser Ebene ihren Platz. Die funktionale Raumaufteilung im Obergeschoss mit Elternschlafzimmer und zwei Kinderzimmern sowie einem großzügigen Bad gewährt hingegen jedem Familienmitglied seinen eigenen Rückzugsort. Auch hier wurde besonderer Wert auf viel Tageslicht gelegt. Komplettiert wird das kompakte Familienhaus mit einem ausgebauten Kellergeschoss: Hier sind der praktische Hauswirtschaftsraum, ein Arbeits- und ein Gästezimmer sowie der Lager- und Vorratsraum untergebracht.

Ökologisch und sparsam – Für die Heiztechnik kam das in Massivholz-Riegel-Konstruktion errichtete und mit Holzfasern gedämmte Familienhaus eine Sole-Wasserwärmepumpe zum Einsatz. Eine Photovoltaikanlage dient zur Energiegewinnung, eine zentrale Lüftungsanlage sorgt für optimales Raumklima zu jeder Jahreszeit. Der nachwachsende Rohstoff Holz als Baustoff der Zukunft, für den sich das Bauherrenpaar bewusst entschied, trägt zur Schonung der Ressourcen bei und sorgt für eine angenehme Atmosphäre mit einem gesunden Raumklima.

Mehr Infos auf regnauer.de.

Ausführung gemäß aktueller Regnauer Bauleistungs- und Ausstattungsbeschreibung. Weitere Informationen auf www.regnauer.de. Abbildungen können Sonderausstattung zeigen. Wir legen großen Wert darauf, Ihr Vitalhaus ganz nach Ihren persönlichen Wünschen zu gestalten. Gemäß Ihren Wünschen und Ihrer Grundstückssituation ergibt sich dann ein exakter Festpreis für Ihr Traumhaus. Daher beziehen sich die Preise auf eine Vitalausstattung ohne spezifische Sonderausstattung.

Voraussetzung   zur   Erlangung   der   Bundesförderung   für   Effiziente   Gebäude   ist   die Einhaltung   der  diesbezüglichen Förderrichtlinien. So wird hierfür unter anderem  die Ausführung einer förderfähigen Haustechnik sowie die entsprechende Ausführung der bauherrenseitigen Leistungen (z.B. Keller und -ausbau) vorausgesetzt. Die Förderrichtlinien sind  auch  Änderungen unterworfen, sodass die Förderfähigkeit jeweils im Einzelfall geprüft und objektspezifisch durch das Förderinstitut bestätigt werden muss. Auch können einzelne Programme ausgesetzt oder verändert werden. Die Regnauer Hausbau GmbH & Co KG kann keine Finanzierungs- oder Förderberatung durchführen.

Hausdaten

Hausart Icon
HausartEinfamilienhaus
Bauweise Icon
BauweiseHolz-Tafelbau
Anzahl Räume Icon
Anzahl Räume5
Baustil Icon
BaustilKlassische Familienhäuser
Fassade Icon
FassadePutz, Materialkombination, Holz
Außenmaße Icon
Außenmaße10.75 m x 8 m
Wohnfläche Icon
Wohnfläche128 m²
Dachform Icon
DachformSattel-/Giebeldach
Etagen Icon
Etagen2
Energiestandard Icon
EnergiestandardKFWG-Q
Immobilientyp Icon
ImmobilientypKundenhaus
Dachneigung Icon
Dachneigung25°
Kniestock Icon
Kniestock2.47 m
Mittlerer U-Wert Icon
Mittlerer U-Wert0.14 W/m²K
Hauseigenschaften Icon
HauseigenschaftenViel Glas, Terasse
Hausdämmstoff Icon
HausdämmstoffHolzfaser- und Zellulosedämmstoffe
Heizungsart Icon
HeizungsartWärmepumpe (Luft, Wasser, oder beides)
Pfeil nach unten linksWir schaffen Platz für Ihre Träume

Grundriss

no description
Vitalhaus Gauting Grundriss (EG)Wohnfläche EG: 65 m²
no description
Vitalhaus Gauting Grundriss (DG)Wohnfläche DG: 63 m²

Unser Team vor Ort

Regnauer HausbauFachberater*in bei Regnauer Hausbau
Default Avatar
Wir beraten Sie gerne!Arrow Icon

Kataloge

Regnauer: Hauskatalog
Regnauer Hausbau

Regnauer: Hauskatalog


House and TreeParksHouse and PinHäuser liveHouse on HandAnbieter