1. AnbieterArrow Icon
  2. Regnauer HausbauArrow Icon
  3. Vitalhaus Vita-Cube
Slide 1
Slide 2
Slide 3
Slide 4
Slide 5
Slide 6
no description
Regnauer HausbauVitalhaus Vita-Cube
homeKubushäuser im Bauhausstil
livingArea166 m²
energyStandardKFWG-Q
Preis anfragen
Katalog bestellen

Vitalhaus Vita-Cube

Der Entwurf Vita-Cube ist Bauhaus pur und verfolgt doch ein ganz eigenständiges Konzept.

Der Regnauer Vita-Cube ist die intelligente Verbindung anspruchsvoller Gestaltung der klassischen Moderne mit den inneren Werten des gesunden vitalen Bauens mit Holz. Pate stand der Kubus mit den ausgewogenen Proportionen des „Goldenen Schnitts“, entsprechend klar, konsequent schnörkellos ist die Linienführung. 

Durch den spannungsreichen Wechsel von geschlossenen und verglasten Flächen entsteht Lebensraum mit großzügig offener Raumaufteilung und gelungener Balance zwischen Transparenz und Rückzug. Die helle, freundliche Atmosphäre und viel natürliches Holz machen Vita-Cube zu einem geborgenen Zuhause, in dem Sie Energie für den Alltag tanken können. Dazu gehört auch das ganzheitliche Baukonzept mit diffusionsoffener, holzfasergedämmter "Vitalwand". 

Gesamtwohnfläche: 178 m2 
Wohnfläche EG: 79,45 m2 
Wohnfläche DG: 99,07 m2 

Weitere Infos auf regnauer.de.

Ausführung gemäß aktueller Regnauer Bauleistungs- und Ausstattungsbeschreibung. Weitere Informationen auf www.regnauer.de. Abbildungen können Sonderausstattung zeigen. Wir legen großen Wert darauf, Ihr Vitalhaus ganz nach Ihren persönlichen Wünschen zu gestalten. Gemäß Ihren Wünschen und Ihrer Grundstückssituation ergibt sich dann ein exakter Festpreis für Ihr Traumhaus. Daher beziehen sich die Preise auf eine Vitalausstattung ohne spezifische Sonderausstattung.

Voraussetzung   zur   Erlangung   der   Bundesförderung   für   Effiziente   Gebäude   ist   die Einhaltung   der  diesbezüglichen Förderrichtlinien. So wird hierfür unter anderem  die Ausführung einer förderfähigen Haustechnik sowie die entsprechende Ausführung der bauherrenseitigen Leistungen (z.B. Keller und -ausbau) vorausgesetzt. Die Förderrichtlinien sind  auch  Änderungen unterworfen, sodass die Förderfähigkeit jeweils im Einzelfall geprüft und objektspezifisch durch das Förderinstitut bestätigt werden muss. Auch können einzelne Programme ausgesetzt oder verändert werden. Die Regnauer Hausbau GmbH & Co KG kann keine Finanzierungs- oder Förderberatung durchführen.

Hausdaten

Hausart Icon
HausartEinfamilienhaus
Bauweise Icon
BauweiseHolz-Tafelbau
Baustil Icon
BaustilKubushäuser im Bauhausstil
Fassade Icon
FassadePutz, Materialkombination, Holz
Wohnfläche Icon
Wohnfläche166 m²
Dachform Icon
DachformFlachdach
Etagen Icon
Etagen2
Energiestandard Icon
EnergiestandardKFWG-Q
Immobilientyp Icon
ImmobilientypPlanungsidee
Mittlerer U-Wert Icon
Mittlerer U-Wert0.14 W/m²K
Hausdämmstoff Icon
HausdämmstoffHolzfaser- und Zellulosedämmstoffe
Heizungsart Icon
HeizungsartWärmepumpe (Luft, Wasser, oder beides)
Pfeil nach unten linksWir schaffen Platz für Ihre Träume

Grundriss

no description
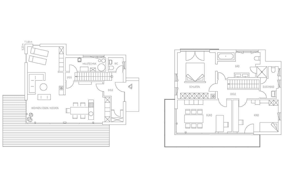
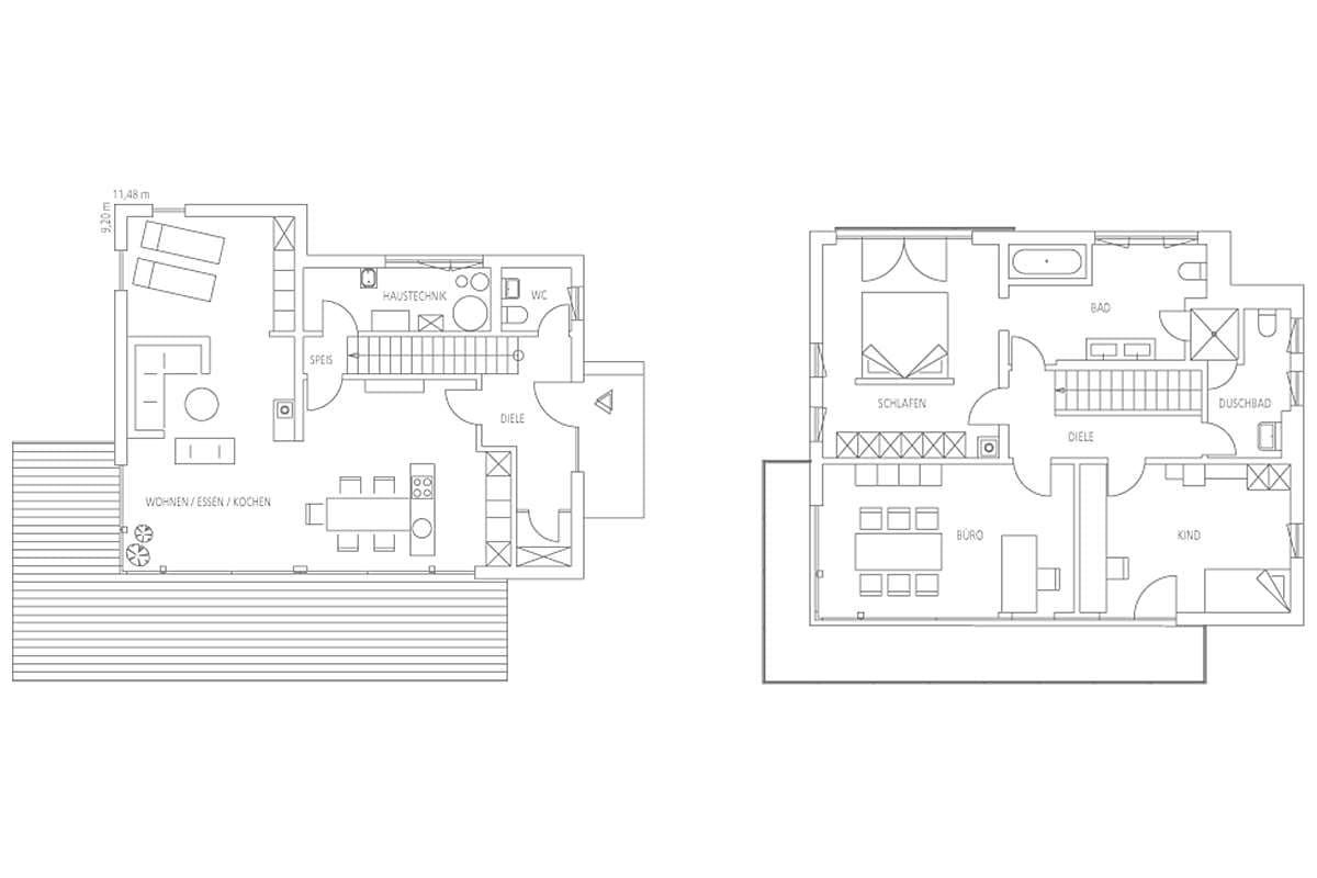
Vitalhaus Vita-Cube Grundriss (EG)Wohnfläche EG: 76 m²
no description
Vitalhaus Vita-Cube Grundriss (DG)Wohnfläche DG: 99 m²

Unser Team vor Ort

Regnauer HausbauFachberater*in bei Regnauer Hausbau
Default Avatar
Wir beraten Sie gerne!Arrow Icon

Kataloge

Regnauer: Hauskatalog
Regnauer Hausbau

Regnauer: Hauskatalog


House and TreeParksHouse and PinHäuser liveHouse on HandAnbieter