1. AnbieterArrow Icon
  2. Regnauer HausbauArrow Icon
  3. Vitalhaus Raubling
Slide 1
Slide 2
Slide 3
Slide 4
Slide 5
Slide 6
Slide 7
Slide 8
no description
Regnauer HausbauVitalhaus Raubling
homeBungalow
livingArea128 m²
energyStandardKFWG-Q
Preis anfragen
Katalog bestellen

Vitalhaus Raubling

Wohlfühloase voller Licht und praktischer Details 

Über lange Zeit war er als Haustyp völlig aus der Mode gekommen. Seit einem guten Jahrzehnt feiert der Bungalow seine Wiederentdeckung. Er ist der perfekte Wohnsitz für eine älter werdende Gesellschaft, da sich alle wichtigen Räume und Funktionen auf einer Ebene befinden. Seinen Traum hat sich damit auch das Ehepaar Margane-Reim mit seinen beiden Hunden im oberbayerischen Raubling erfüllt. Bei der Realisierung des Vitalhauses in Massivholz-Riegel-Konstruktion hat das Unternehmen Regnauer als Partner die zentrale Rolle gespielt. Klarheit, Eleganz, hohe Effizienz und Sinn für einen individuellen Stil prägen das Haus.

Dort, wo früher ein kleines Wäldchen war, hat sich das Paar inmitten einer Siedlung mit jungen Familien seinen Wunsch vom Altersruhesitz mit allem Komfort nach einem stressigen Berufsleben realisiert. Das Zentrum bildet ein großzügig gestalteter Wohlfühlbereich mit hellem und lichterfüllten Sichtdachstuhl mit Glaseinsatz und kombiniertem Wohn-Ess-Bereich. Blickfang ist der große Küchenblock in edler Schwarzweißoptik.

Ein sehr modern gestalteter Esstisch lädt zum genussvollen Speisen und zu guten Gesprächen ein. Der mit Stilmöbeln eingerichtete Wohnzimmerbereich öffnet sich über eine große Panorama-Fensterfront zum Garten hin. Die Fußbodenheizung unter dem Parkett in Steinoptik sorgt im Verbund mit einer perfekt integrierten Klimaanlage und der Vitalwand mit Holzfaserdämmung für wohlige Wärme. Dank der besonderen Wärmedämmeigenschaften heizt sich das Haus im Sommer nicht so schnell auf und kühlt im Winter nicht so schnell aus. Auf dem Satteldach mit Pfettendachstuhl unterstützt eine Photovoltaikanlage die Energieversorgung. Dank des geringen Energieverbrauchs ist der Bungalow damit auch in Zeiten knapper Ressourcen auf der Höhe der Zeit.

Mit einem besonderen Faible für Zweckmäßigkeit und Effizienz einerseits sowie für Farbe, Design und Einrichtungsdetails andererseits hat Ulrike Margane-Reim den Grundriss des Hauses und den Einrichtungsstil selbst entworfen. „Es war mir wichtig, dass die Anordnung der Räume und Funktionseinheiten kurze Wege ermöglichen und trotzdem viel Wohnqualität bieten“, sagt die frühere Versicherungsfachfrau. So gliedern sich Foyer mit Diele, Gäste-WC und Büroraum auf der einen Seite an den zentralen Wohnbereich. Auf der gegenüberliegenden Seite sind spiegelbildlich das Schlafzimmer, ein begehbarer Schrank und das Bad in einer Flucht untergebracht.

Die Experten von Regnauer Hausbau halfen dabei, die vom Bauherren vorgelegte Planung, die die Küche zum zentralen Begegnungs- und Erlebnisort macht, weiter zu optimieren und auch die technischen Details abzustimmen. Ein besonderes Highlight des Bungalows ist der direkt hinter der Schrankwand der Küchenzeile integrierte und durch eine Schiebetür zugängliche Speiseraum mit Platz für Vorräte und den Wirtschaftsbereich. Er sorgt für kurze Wege und ist ebenfalls vom Eingangsbereich her zugänglich.

Das Bad mit hochwertigen Oberflächen und Granitfußboden besticht durch große Glasfronten zum Garten hin und eine bodentiefe Dusche ohne begrenzende Glaselemente. Die passend hinter einem Wandvorsprung integrierte Waschmaschine und der Trockner lassen den Sinn für Praktikabilität und kurze Wege erkennen. Eine helle Arbeitsatmosphäre und geschmackvolle Möblierung prägen den Bürobereich.

„Auch im Außenbereich von unserem Garten und der Terrasse war es uns wichtig, die Wohlfühlatmosphäre mit Ausblick in die Alpen mit dem Sinn fürs Praktische zu verbinden“, erklärt Ulrike Margane-Reim. Und so lässt sich der Bungalow dank breiter Dachvorsprünge auch bei Regenwetter trockenen Fußes umrunden. Der Carport und ein Dachvorsprung bieten den Fahrzeugen des Paars Schutz bei Regenfluten, Schnee und Hagel.

Ein großer, elektrisch ausfahrbarer Markisenschirm sorgt an schwülen Sommertagen für ausreichend Schatten. Und sogar an später haben die beiden Hausbesitzer gedacht. Im Keller ist aktuell eine separate Werkstatt sowie eine Wohneinheit mit Küchenzeile, Schlafzimmer und Sauna/Bad untergebracht. Sie bietet ausreichend Platz zur Unterbringung einer eigenen Pflegekraft.

Zur Entscheidung, den Auftrag an das Familienunternehmen Regnauer Hausbau aus Seebruck zu vergeben, erklärt Bauherrin Ulrike Margane-Reim: „Wir haben uns bei allen Planungen, der Abstimmung der Einrichtungsdetails und dem großen Servicepaket sehr gut beraten gefühlt. Ebenso bietet die perfekte Dokumentation einen schnellen Überblick.“ Einen besonderen Vorteil bot auch die schnelle Realisierbarkeit des Bungalows dank der innovativen Bauweise mit vorgefertigten Holzbauteilen.

Ausführung gemäß aktueller Regnauer Bauleistungs- und Ausstattungsbeschreibung. Weitere Informationen auf www.regnauer.de. Abbildungen können Sonderausstattung zeigen. Wir legen großen Wert darauf, Ihr Vitalhaus ganz nach Ihren persönlichen Wünschen zu gestalten. Gemäß Ihren Wünschen und Ihrer Grundstückssituation ergibt sich dann ein exakter Festpreis für Ihr Traumhaus. Daher beziehen sich die Preise auf eine Vitalausstattung ohne spezifische Sonderausstattung.

Voraussetzung   zur   Erlangung   der   Bundesförderung   für   Effiziente   Gebäude   ist   die Einhaltung   der  diesbezüglichen Förderrichtlinien. So wird hierfür unter anderem  die Ausführung einer förderfähigen Haustechnik sowie die entsprechende Ausführung der bauherrenseitigen Leistungen (z.B. Keller und -ausbau) vorausgesetzt. Die Förderrichtlinien sind  auch  Änderungen unterworfen, sodass die Förderfähigkeit jeweils im Einzelfall geprüft und objektspezifisch durch das Förderinstitut bestätigt werden muss. Auch können einzelne Programme ausgesetzt oder verändert werden. Die Regnauer Hausbau GmbH & Co KG kann keine Finanzierungs- oder Förderberatung durchführen.

Hausdaten

Hausart Icon
HausartEinfamilienhaus
Bauweise Icon
BauweiseHolz-Tafelbau
Anzahl Räume Icon
Anzahl Räume3
Baustil Icon
BaustilBungalow
Fassade Icon
FassadePutz
Außenmaße Icon
Außenmaße11.8 m x 13.3 m
Wohnfläche Icon
Wohnfläche128 m²
Dachform Icon
DachformSattel-/Giebeldach
Etagen Icon
Etagen1
Energiestandard Icon
EnergiestandardKFWG-Q
Immobilientyp Icon
ImmobilientypKundenhaus
Dachneigung Icon
Dachneigung18°
Kniestock Icon
Kniestock2.67 m
Mittlerer U-Wert Icon
Mittlerer U-Wert0.14 W/m²K
Hauseigenschaften Icon
HauseigenschaftenIntegriertes Carport, Terasse, Viel Glas
Hausdämmstoff Icon
HausdämmstoffHolzfaser- und Zellulosedämmstoffe
Heizungsart Icon
HeizungsartWärmepumpe (Luft, Wasser, oder beides)
Pfeil nach unten linksWir schaffen Platz für Ihre Träume

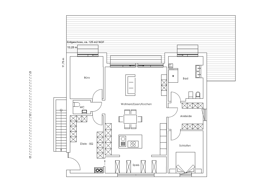
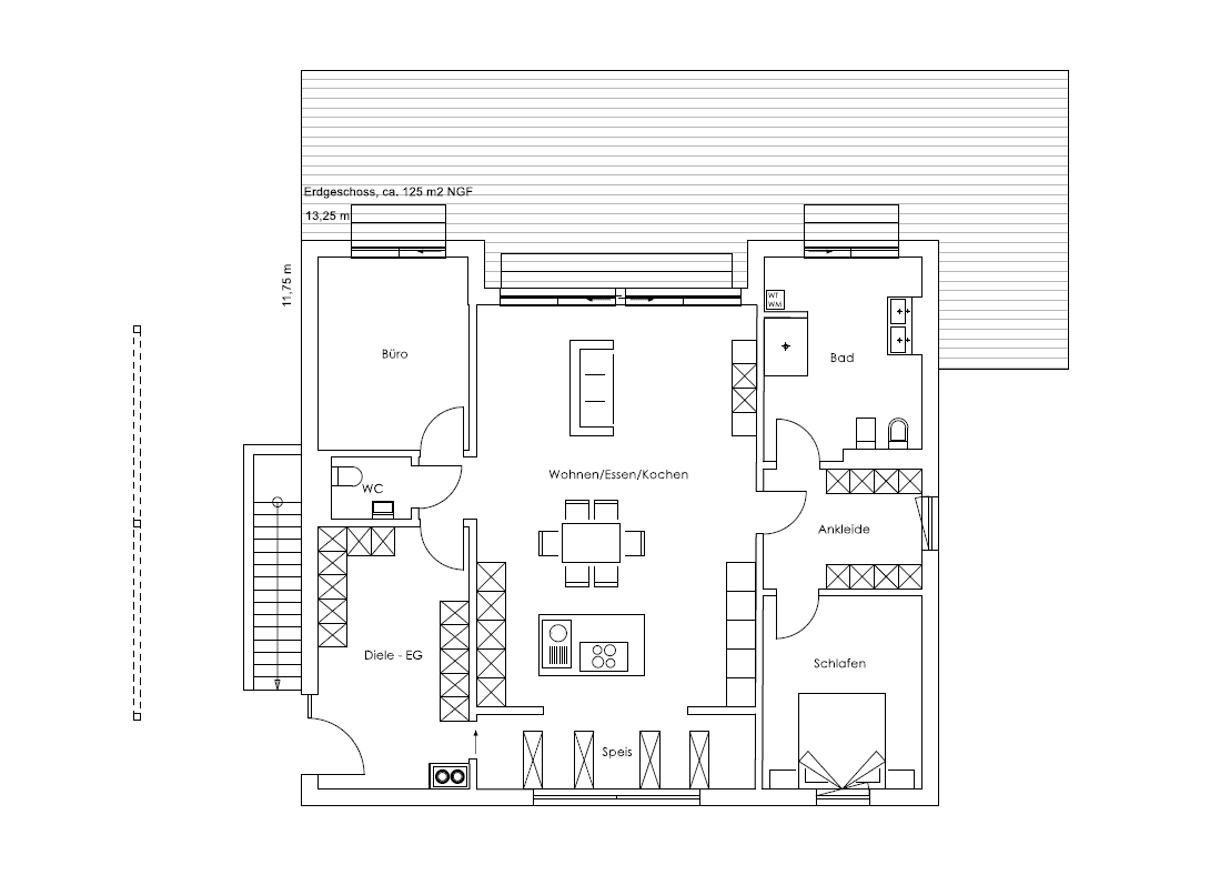
Grundriss

no description
Vitalhaus Raubling Grundriss (EG)Wohnfläche EG: 128 m²

Unser Team vor Ort

Regnauer HausbauFachberater*in bei Regnauer Hausbau
Default Avatar
Wir beraten Sie gerne!Arrow Icon

Kataloge

Regnauer: Hauskatalog
Regnauer Hausbau

Regnauer: Hauskatalog


House and TreeParksHouse and PinMusterhausHouse on HandAnbieter