1. AnbieterArrow Icon
  2. Regnauer HausbauArrow Icon
  3. Vitalhaus Wendelstein
Slide 1
Slide 2
Slide 3
Slide 4
Slide 5
Slide 6
Slide 7
Slide 8
Slide 9
no description
Regnauer HausbauVitalhaus Wendelstein
homeLandhäuser
livingArea119 m²
energyStandardKFWG-Q
Preis anfragen
Katalog bestellen

Vitalhaus Wendelstein

Gesund leben mit der Regnauer Vitalbauweise

Klein, aber oho: Holzfertighaus für einen allein

Wiesen, Felder und auch noch Alpenblick: Das Wohnhaus, das sich eine Münchnerin für Wochenend- und Arbeitsaufenthalte in einem Kurort im Inntal bauen ließ, bringt Urlaubsflair in den Alltag der studierten Pharmareferentin und Heilpraktikerin hinein. Und entspricht zudem ihrem Wunsch, in einer gesunden Umgebung zu leben. Die im Lauf der Zeit natürlich vergrauende Lärchenholzfassade des Neubaus passt sich der heimatverbundenen Architektur des Voralpenlandes optimal an und ist zudem pflegeleicht. Das weit auskragende Dach und der loggienartig zurückversetzte Eingangsbereich wirken einladend und bieten darüber hinaus ganzjährigen Schutz vor Regen, Wind und Schnee. In Verbindung mit anthrazitfarbenen, teils bodentiefen Fenstern und einem ruhigen Holzbalkon kombiniert das Gebäude so alpenländische Gemütlichkeit mit modernen Details zu einer individuellen Lösung mit hoher architektonischer Qualität.

Holzfertighaus, individuell geplant

Das von Regnauer Hausbau erstellte Holzfertighaus ersetzt eine alte Bauarbeiterhütte, die Bauherrin Ortrud Frank-Dietrich zusammen mit dem trichterförmigen Grundstück vor einigen Jahren erworben hatte. Während die Hütte zu klein und zu schlecht erhalten war, um weiter darin zu leben, war das Grundstück zu schwierig geschnitten, um ein Standardhaus darauf zu platzieren.

Umso glücklicher war dessen neue Besitzerin, als sie im Bauherrenzentrum Poing mit dem Musterhaus Heidi nicht nur ein Gebäude kennenlernte, das ihr rundum gefiel, sondern auch einen Holzbauspezialisten, der ihr die Möglichkeit bot, ihr Traumhaus auf ihr trichterartiges Grundstück maßzuschneidern. Nach der Planung von Architekt Ralf Arld entstand so auf Basis der Regnauer Vitalbauweise ein 117 m2 großes Wohngebäude. Dieses hält auf dem kompliziert geschnittenen Gelände nicht nur die vorgegebenen Abstandsflächen ein, sondern fügt sich auch noch perfekt in den Hang ein.

Wohnen mit Aussicht

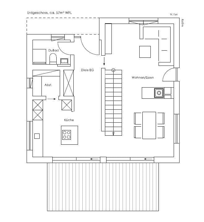
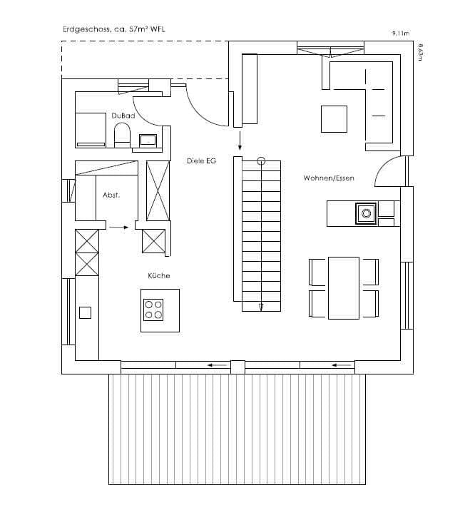
Wer das Haus über die großzügige Diele betritt, blickt vom Eingang durch eine Glastür direkt in die Küche hinein und weiter in die Natur hinaus. Neben der Diele sind die Garderobe und das Gäste-WC sowie eine vom Kochbereich zugängliche Speisekammer geschickt ineinander verschachtelt und belegen so zusammen mit der Küche eine Hälfte des Erdgeschosses. Die zweite Hälfte nimmt ein Wohnraum ein, den ein großer Grundofen in einen Ess- und einen Wohnbereich unterteilt.

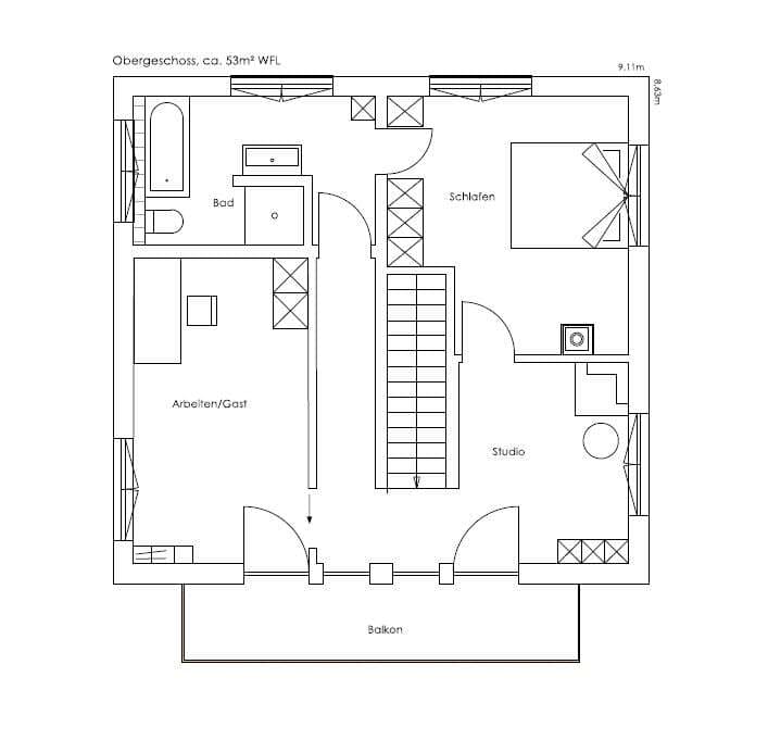
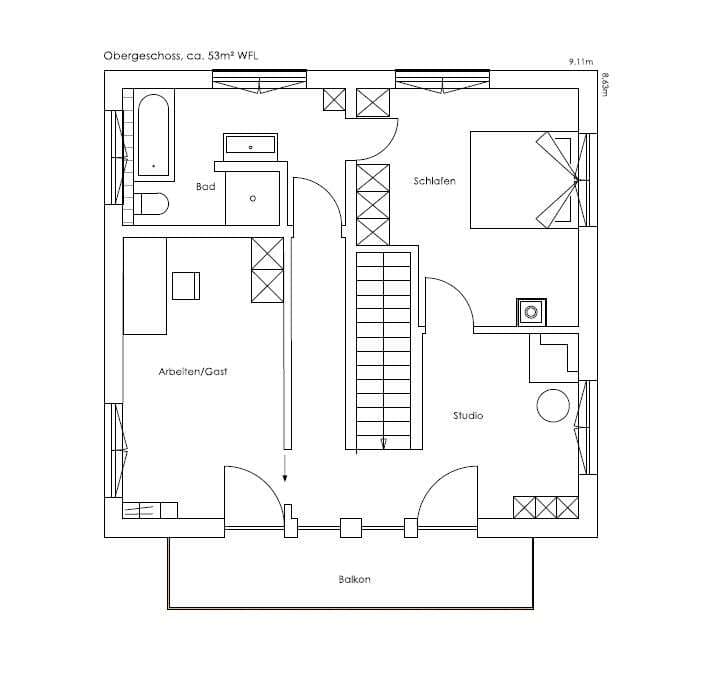
Von hier aus führt auch eine mit einer Glaswand vom Raum getrennte Kragarmtreppe in das Dachgeschoss, in dem die Bauherrin ein Studio, ein Schlafzimmer, ein Büro und ein Badezimmer integrieren ließ. Für den Aufenthalt im Freien bieten sich ein Balkon und eine dem Wohnbereich vorgelagerte Terrasse an. Zwei große Glasschiebefronten machen es darüber hinaus möglich, an sonnigen Tagen rund zwei Drittel der zur Terrasse ausgerichteten Fassade gänzlich zu öffnen, sodass die Natur quasi im Haus beginnt.

Nachhaltig, energieeffizient und wohngesund

„Der Bezug zur Natur und die Themen Nachhaltigkeit und Gesundheit waren für mich wichtige Entscheidungskriterien für die Wahl des Hausanbieters“, erklärt Frank-Dietrich. Insbesondere das gesunde Raumklima, das die mit Holzfasern gedämmten Vitalwände gewährleisten, überzeugte sie. „Im Sommer ist es angenehm kühl, im Winter gemütlich warm.“ Eine Luft-Wasser-Wärmepumpe in Kombination mit einer Lüftungsanlage mit integrierter Wärmerückgewinnung reichen vollkommen aus, um das KfW-55 Haus zu temperieren.

Besonders angenehm fand Frank-Dietrich als Naturkundlerin die extrastarke Beplankung aus dem Naturbaustoff Gips. Sie garantiert einen angenehmen Temperatur- und Feuchtigkeitsausgleich. Und die Photovoltaikanlage auf dem Dach versorgt die Hauseigentümerin zudem mit Strom und macht sie quasi unabhängig vom örtlichen Netz.

„Genau das, was ich gewollt habe“, zieht Frank-Dietrich Bilanz „Wenn ich draußen bin, sehe ich fast nur Wiesen, Felder und die Berge. Wenn ich ins Haus reingehe, riecht es immer frisch und angenehm nach Holz. Und wenn ich dann drinnen bin, bin ich dank der geschickten Planung einerseits vor Einblicken geschützt und kann andererseits von jedem Raum aus direkt ins Grüne schauen, mitten in die Natur.“

Ausführung gemäß aktueller Regnauer Bauleistungs- und Ausstattungsbeschreibung. Weitere Informationen auf www.regnauer.de. Abbildungen können Sonderausstattung zeigen. Wir legen großen Wert darauf, Ihr Vitalhaus ganz nach Ihren persönlichen Wünschen zu gestalten. Gemäß Ihren Wünschen und Ihrer Grundstückssituation ergibt sich dann ein exakter Festpreis für Ihr Traumhaus. Daher beziehen sich die Preise auf eine Vitalausstattung ohne spezifische Sonderausstattung.

Voraussetzung   zur   Erlangung   der   Bundesförderung   für   Effiziente   Gebäude   ist   die Einhaltung   der  diesbezüglichen Förderrichtlinien. So wird hierfür unter anderem  die Ausführung einer förderfähigen Haustechnik sowie die entsprechende Ausführung der bauherrenseitigen Leistungen (z.B. Keller und -ausbau) vorausgesetzt. Die Förderrichtlinien sind  auch  Änderungen unterworfen, sodass die Förderfähigkeit jeweils im Einzelfall geprüft und objektspezifisch durch das Förderinstitut bestätigt werden muss. Auch können einzelne Programme ausgesetzt oder verändert werden. Die Regnauer Hausbau GmbH & Co KG kann keine Finanzierungs- oder Förderberatung durchführen.

Hausdaten

Hausart Icon
HausartEinfamilienhaus
Bauweise Icon
BauweiseHolz-Tafelbau
Anzahl Räume Icon
Anzahl Räume6
Baustil Icon
BaustilLandhäuser
Fassade Icon
FassadeHolz
Wohnfläche Icon
Wohnfläche119 m²
Dachform Icon
DachformSattel-/Giebeldach
Etagen Icon
Etagen2
Energiestandard Icon
EnergiestandardKFWG-Q
Immobilientyp Icon
ImmobilientypKundenhaus
Dachneigung Icon
Dachneigung18°
Kniestock Icon
Kniestock1.8 m
Mittlerer U-Wert Icon
Mittlerer U-Wert0.15 W/m²K
Hauseigenschaften Icon
HauseigenschaftenTerasse, Gästezimmer, Balkon
Hausdämmstoff Icon
HausdämmstoffHolzfaser- und Zellulosedämmstoffe
Heizungsart Icon
HeizungsartWärmepumpe (Luft, Wasser, oder beides)
Pfeil nach unten linksWir schaffen Platz für Ihre Träume

Grundriss

no description
Vitalhaus Wendelstein Grundriss (EG)Wohnfläche EG: 63 m²
no description
Vitalhaus Wendelstein Grundriss (OG)Wohnfläche OG: 56 m²

Unser Team vor Ort

Regnauer HausbauFachberater*in bei Regnauer Hausbau
Default Avatar
Wir beraten Sie gerne!Arrow Icon

Kataloge

Regnauer: Hauskatalog
Regnauer Hausbau

Regnauer: Hauskatalog


House and TreeParksHouse and PinMusterhausHouse on HandAnbieter