1. AnbieterArrow Icon
  2. Regnauer HausbauArrow Icon
  3. Vitalhaus Wildmoos
Slide 1
Slide 2
Slide 3
Slide 4
Slide 5
Slide 6
Slide 7
Slide 8
Slide 9
Slide 10
Slide 11
Slide 12
Slide 13
Slide 14
Slide 15
no description
Regnauer HausbauVitalhaus Wildmoos
homeKlassische Familienhäuser
livingArea130 m²
energyStandardKFWG-Q
Preis anfragen
Katalog bestellen

Vitalhaus Wildmoos

Feriendomizil mit Wohlfühlgarantie

Einen Alterswohnsitz, der so schön ist, dass jeder darin Urlaub machen möchte: Diesen Wunsch hatte Familie Sturm-Zippe in St. Martin bei Lofer. Die Besitzer einer Skischule realisierten ihn mit Regnauer Hausbau kurzerhand selbst – und vermieten ihren Vitalhaustraum seither an Gäste, die im Ort Urlaub machen.

„Dieses Haus ist wunderschön. Dürfen wir mal sehen, wie es innen aussieht?“ Spätestens, als Familie Sturm-Zippe diesen Satz zum zigsten Mal von vorbeigehenden Passanten gehört hatte, war ihr klar, dass sie bei der Wahl ihres Regnauer Vitalhauses das richtige Los gezogen hatte. Das Ehepaar, das in Lofer eine Skischule besitzt, hatte in der Umgebung lange nach einem Altersruhesitz für die Eltern von Marie Sturm-Zippe gesucht. Weil aber kein passendes Gebäude zu finden war, entschlossen sich die beiden kurzerhand, diesen Haustraum selbst zu realisieren – und das „Haus Wildmoos“ getaufte Chalet zunächst auch als Ferienhaus zu vermieten.

Und nachdem Regnauer bereits einen Firmensitz für die Eltern der Bauherrin gebaut hatte, war klar, dass der Regnauer Hausbau auch den Auftrag für das Einfamilienhaus erhalten sollte: ein in Vitalbauweise realisierter Holzfertigbau, der dank Holzfaserdämmung ein einzigartiges Raumklima bietet. Im Sommer ist es drinnen angenehm kühl, im Winter wird das Gebäude mollig warm – also die perfekte Umgebung für jeden Tag.

Vorbild Heidi

Platz für den Neubau war auf dem Grundstück neben dem Eigenheim der Bauherren genug. Auch das passende Vorbild fand sich schnell: In einem Prospekt entdeckte die Bauherrin das Musterhaus Heidi, ein ebenso elegantes, wie heimatverbundenes Chalet, das Urlaubsgefühle mit dem Wissen verbindet, zuhause angekommen zu sein.

Die Fassade kombiniert grauen Putz im Erdgeschoss mit Lärchenholz im Obergeschoss und anthrazitfarbenen Fenster- und Türrahmen ringsherum. Über allem thront ein Thermo Vitaldach mit schlanken anthrazitfarbenen Dachziegeln, das sich außerhalb des Gebäudes verjüngt und auf der Unterseite mit Lärchen-Mehrschichtplatten beplankt ist.

Der Carport läuft oberhalb der Haustür als Vordach weiter und schützt so den Eingangsbereich vor Regen und Schnee. Auf der gegenüberliegenden Holzerrasse bietet eine Pergola an heißen Tagen Schatten und lädt auch bei schlechterem Wetter zum draußen sitzen ein.

Altersgerecht und dabei zeitlos schön

Drinnen empfängt die Besucher und Bewohner ein großzügiger Eingangsbereich nebst Garderobe und großzügigem Duschbad nebenan. Darüber hinaus sind im Parterre noch zwei Schlafzimmer untergebracht – ideal für die geplante Nutzung als Alterswohnsitz. Den Hauptteil dieses Geschosses nimmt der mit einer gemütlichen Kochinsel ausgestattete Wohn-Essbereich ein, der sich mit großen Glastüren zur Terrasse hin öffnen lässt. Vom Wohnzimmer aus führt eine Treppe auf die als Fernseh- und Leseecke eingerichtete offene Galerie, von der aus noch ein weiteres Schlafzimmer mit eigenem Bad abgeht.

Ein Panoramafenster mit integrierter Sitznische im Wohnzimmer, Holzdielen im gesamten Haus, luxuriöse Bäder. Dazu Wände und Brüstungen in Holz bzw. Altholzoptik – die das angenehme Klima des Holzfertigbaus auch drinnen weiterführen – und nicht zuletzt die von der Hausherrin liebevoll ausgewählte Einrichtung machen das Gebäude so besonders, dass die Familie es nicht nur alleine nutzt.

Urlaub zuhause

„Ich habe vier Geschwister“, verrät Marie Sturm-Zippe. Wenn die uns mit ihren Familien besuchen, wohnen sie immer im Neubau.“ Darüber haben die Bauherren auch immer wieder Gäste, die in dem beliebten Ferienort St. Martin bei Lofer ihren Urlaub verbringen und dabei gerne den Komfort eines wohngesunden Holzhauses genießen.

„Und wir selbst?“, schmunzelt die Bauherrin: „Nun, wir wohnen zwar weiterhin in unserem Familiendomizil, aber meinen Geburtstag habe ich mit Freundinnen im Urlaub gefeiert. Im Vitalhaus Wildmoos nebenan.

Ausführung gemäß aktueller Regnauer Bauleistungs- und Ausstattungsbeschreibung. Weitere Informationen auf www.regnauer.de. Abbildungen können Sonderausstattung zeigen. Wir legen großen Wert darauf, Ihr Vitalhaus ganz nach Ihren persönlichen Wünschen zu gestalten. Gemäß Ihren Wünschen und Ihrer Grundstückssituation ergibt sich dann ein exakter Festpreis für Ihr Traumhaus. Daher beziehen sich die Preise auf eine Vitalausstattung ohne spezifische Sonderausstattung.

Voraussetzung   zur   Erlangung   der   Bundesförderung   für   Effiziente   Gebäude   ist   die Einhaltung   der  diesbezüglichen Förderrichtlinien. So wird hierfür unter anderem  die Ausführung einer förderfähigen Haustechnik sowie die entsprechende Ausführung der bauherrenseitigen Leistungen (z.B. Keller und -ausbau) vorausgesetzt. Die Förderrichtlinien sind  auch  Änderungen unterworfen, sodass die Förderfähigkeit jeweils im Einzelfall geprüft und objektspezifisch durch das Förderinstitut bestätigt werden muss. Auch können einzelne Programme ausgesetzt oder verändert werden. Die Regnauer Hausbau GmbH & Co KG kann keine Finanzierungs- oder Förderberatung durchführen.

Hausdaten

Hausart Icon
HausartEinfamilienhaus
Bauweise Icon
BauweiseHolz-Tafelbau
Anzahl Räume Icon
Anzahl Räume5
Baustil Icon
BaustilKlassische Familienhäuser
Fassade Icon
FassadePutz, Holz, Materialkombination
Außenmaße Icon
Außenmaße12.3 m x 8.7 m
Wohnfläche Icon
Wohnfläche130 m²
Dachform Icon
DachformSattel-/Giebeldach
Etagen Icon
Etagen2
Energiestandard Icon
EnergiestandardKFWG-Q
Immobilientyp Icon
ImmobilientypKundenhaus
Dachneigung Icon
Dachneigung20°
Kniestock Icon
Kniestock1.33 m
Mittlerer U-Wert Icon
Mittlerer U-Wert0.14 W/m²K
Hauseigenschaften Icon
HauseigenschaftenGästezimmer, Integriertes Carport, Terasse
Hausdämmstoff Icon
HausdämmstoffHolzfaser- und Zellulosedämmstoffe
Heizungsart Icon
HeizungsartWärmepumpe (Luft, Wasser, oder beides)
Pfeil nach unten linksWir schaffen Platz für Ihre Träume

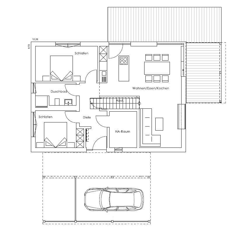
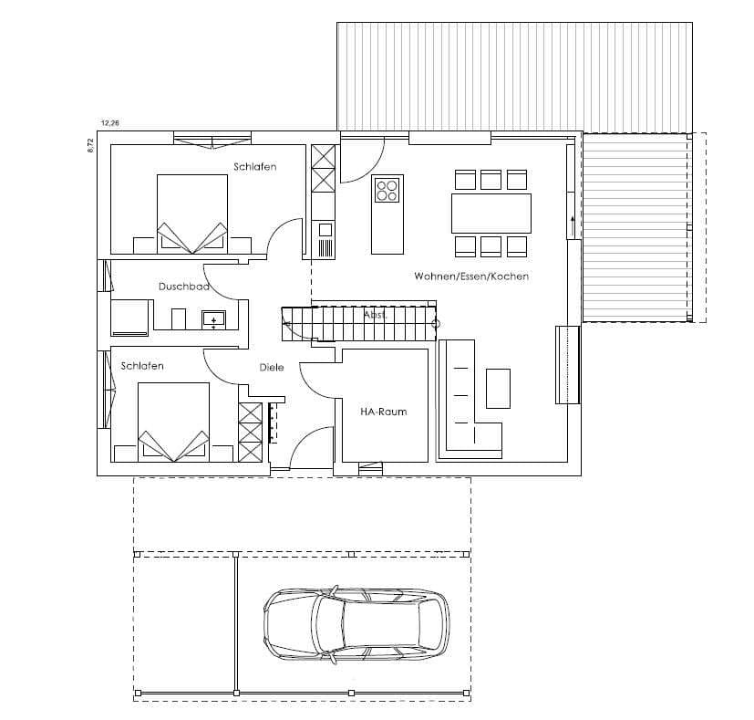
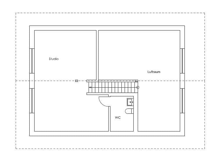
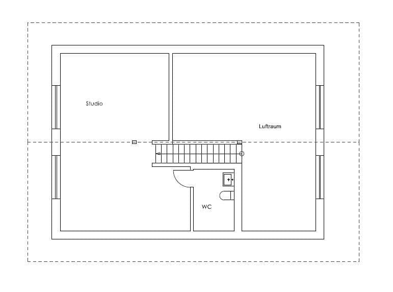
Grundriss

no description
Vitalhaus Wildmoos Grundriss (EG)Wohnfläche EG: 95 m²
no description
Vitalhaus Wildmoos Grundriss (DG)Wohnfläche DG: 35 m²

Unser Team vor Ort

Regnauer HausbauFachberater*in bei Regnauer Hausbau
Default Avatar
Wir beraten Sie gerne!Arrow Icon

Kataloge

Regnauer: Hauskatalog
Regnauer Hausbau

Regnauer: Hauskatalog


House and TreeParksHouse and PinMusterhausHouse on HandAnbieter