1. AnbieterArrow Icon
  2. Regnauer HausbauArrow Icon
  3. Musterhaus Klara
Slide 1
Location Icon
Slide 2
Location Icon
Slide 3
Location Icon
Slide 4
Location Icon
Slide 5
Location Icon
Slide 6
Location Icon
Slide 7
Location Icon
Slide 8
Location Icon
Slide 9
Location Icon
Slide 10
Location Icon
no description
Regnauer HausbauMusterhaus Klara
homeKlassische Familienhäuser
livingArea169 m²
energyStandardKFWG-Q
Preis anfragen

Musterhaus Klara

Neues Wohngefühl für eine nachhaltige Zukunft

Fellbach / Seebruck – Mit der Eröffnung des neuen Musterhauses „Klara“ in Fellbach in Baden-Württemberg setzt das Familienunternehmen Regnauer Hausbau aus dem oberbayerischen Seebruck den Erfolgsweg seiner regionstypischen Vitalhäuser fort. Allein das Musterhaus „Liesl“ erhielt bereits vier Auszeichnungen: Es errang unter anderem den Deutschen Musterhauspreis und den Hausbau Design Award 2019 sowie den 2. Platz beim Fertighaus-„Oskar“ Golden Cube 2020.

Das bundesweit positive Echo gerade auch von Bauherrenseite her hat die Experten für Holzfertighäuser vom Chiemsee auch bei dem neuen Projekt angespornt. „Die Verbindung von regionaltypischem Architekturstil mit modernem Design sowie zahlreichen Wohlfühlelementen, Energieeffizienz und innovativer Haustechnik kommt sehr gut an“, resümiert Geschäftsführer Michael Regnauer. Zusammen mit seiner Frau Silvia, Tochter Klara, die als Namenspatin fungierte, und Verkaufsleiter Gerd Holzschuh weihte er im Beisein beteiligter Partnerunternehmen das neue Musterhaus „Klara“ im Musterhauspark Fellbach bei Stuttgart ein.

Im Unterschied zum oberbayerisch geprägten Musterhaus „Liesl“ bindet „Klara“ die Architektursprache der Weinregionen in Baden-Württemberg mit ein. Die Größe ist auf 170 Quadratmeter ausgelegt. In dem markanten Baukörper mit puristischem Architekturstil interpretierten die Holzbauspezialisten das Thema Satteldachhaus neu.

Der Minimalismus außen sorgt für Klarheit und ein Gefühl von Ruhe und Kontemplation. Die Wände mit der räumlich zurücktreten-den Giebelfassade signalisieren Bodenständigkeit und Standfestigkeit. Zugleich entstehen so auf intelligente Weise geschützte Bereiche für Terrasse und Balkon. Für Licht und Transparenz sorgt die bis zum Boden reichende Glasfront samt aufgeglastem Giebel. Beides öffnet den Innenraum für einen befreiten Blick in die Natur. So entsteht Wohnatmosphäre.

Zu Weingenuss und Gemütlichkeit lädt wiederum eine überdachte Nebenterrasse bzw. Pergola mit Laubencharakter und Holzverschalung ein. Der wachsenden Vorliebe für den Baustoff Holz trägt Regnauer auch mit strukturierten Elementen aus sibirischer Lärche Rechnung: Diese prägen die markante Eingangsfront und die Nordseite des neuen Musterhauses. Spannende Designnoten setzen wiederum die Fenster- und Rollladenkästen in tiefschwarz.

Gibt sich Musterhaus „Klara“ nach außen hin eher schlicht, so stehen im Innenraum emotionale Wohnerlebnisse, ein individueller „Bohemian“-Stil sowie Wohngesundheit und hoher Wohnkomfort mit überraschenden Noten im Vordergrund. Der Mix aus edlen Holzelementen, Glas, schwarzem Stahl und dunklen, haptischen Oberflächen setzt im Ausstattungs-Design klassisch-moderne Akzente. Ein „Solarium“-Sitzfenster und der Kaminofen mit Holzlege sorgen im Wohnzimmer für kuschlige Atmosphäre und entspannte Abende.

Geselligkeit ist in der geräumigen und offenen Wohnküche mitsamt der angegliederten Speis angesagt. Als Hingucker sorgt der unter der geradläufigen Treppe in Eiche-Stahl-Optik integrierte „Weinkeller“ für Gesprächsstoff. Glasabtrennung und Lichtspots setzen ein optisches Highlight.

Im Obergeschoß lässt die durchgängig verbundene Privatzone der Eltern mit Schlafen, Ankleide und Wellness-Bad samt integrierter Holzsauna ein pfiffiges Raumwunder voll Wohnatmosphäre entstehen. In den Kinderzimmern unterstreichen unkonventionelle Ideen für Bett, Schrank und Schreibtisch ein altersgemäßes Wohngefühl. Nicht fehlen darf natürlich ein helles, großzügig abgeschlossenes Büro als Homeoffice für die „neue Zeit“.

Als „State of the Art“ erweist sich das Musterhaus „Klara“ auch in punkto Haustechnik, Klimaschutz, Wohngesundheit und Nachhaltigkeit. Als erster Hersteller bietet Regnauer Hausbau mit der Kombination von Proxon-Frischluftwärmetechnik und rahmenlosen Infrarot-Wandheizkörpern eine zukunftsweisende Technik an. Letztere sorgen für eine punktuell angenehm Strahlungswärme auf der Haut. Die Frischluftwärmetechnik beinhaltet auch eine Kühl- und Entfeuchtungsfunktion sowie CO2-Regelung.

Zusammen mit selbstproduziertem Photovoltaikstrom zeigt Regnauer besonders mit dem umweltfreundlichen und wartungsfreien Salzwasser-Batteriespeicher innovative Wege zu ökologischem und energieeffizientem Wohnkomfort auf. So kommt der Batteriespeicher ganz ohne den Einsatz problematischer Stoffe und seltener Metalle aus. Passend dazu erfüllt „Klara“ zusammen mit der neuen Vitalwand hohe Anforderungen für eine Förderung. In der Kombination von klimaoptimierter, holzfasergedämmter Fassade als Hitzeschutz und Frischluftwärmetechnik mit Kühlfunktion geht Regnauer auch mit Blick auf künftige Klimaherausforderungen innovative Wege.

Komfort und Sicherheit verbindet ergänzend die anwenderfreundliche Smart-Home-Steuerung per App. Mit ihr lassen sich Rollläden, Alarmsysteme, Licht, Musik, Wärme und viele weitere Anwendungen zentral steuern.
Mit dem neuen Musterhaus “Klara“ präsentiert sich Regnauer Hausbau als innovationsfreudiges Unternehmen und setzt erneut einen Meilenstein im Bereich regionstypischer Ökohäuser aus Holz. Es kombiniert auf intelligente Weise klare Architektursprache, ein Maximum an Wohnkomfort und Wohngesundheit, höchste Energieeffizienz und innovative Haustechnik.

Ausführung gemäß aktueller Regnauer Bauleistungs- und Ausstattungsbeschreibung. Weitere Informationen auf www.regnauer.de. Abbildungen können Sonderausstattung zeigen. Wir legen großen Wert darauf, Ihr Vitalhaus ganz nach Ihren persönlichen Wünschen zu gestalten. Gemäß Ihren Wünschen und Ihrer Grundstückssituation ergibt sich dann ein exakter Festpreis für Ihr Traumhaus. Daher beziehen sich die Preise auf eine Vitalausstattung ohne spezifische Sonderausstattung.

Voraussetzung   zur   Erlangung   der   Bundesförderung   für   Effiziente   Gebäude   ist   die Einhaltung   der  diesbezüglichen Förderrichtlinien. So wird hierfür unter anderem  die Ausführung einer förderfähigen Haustechnik sowie die entsprechende Ausführung der bauherrenseitigen Leistungen (z.B. Keller und -ausbau) vorausgesetzt. Die Förderrichtlinien sind  auch  Änderungen unterworfen, sodass die Förderfähigkeit jeweils im Einzelfall geprüft und objektspezifisch durch das Förderinstitut bestätigt werden muss. Auch können einzelne Programme ausgesetzt oder verändert werden. Die Regnauer Hausbau GmbH & Co KG kann keine Finanzierungs- oder Förderberatung durchführen.

Hausdaten

Hausart Icon
HausartEinfamilienhaus
Bauweise Icon
BauweiseHolz-Tafelbau
Anzahl Räume Icon
Anzahl Räume7
Baustil Icon
BaustilKlassische Familienhäuser
Fassade Icon
FassadePutz
Außenmaße Icon
Außenmaße15.84 m x 9.5 m
Wohnfläche Icon
Wohnfläche169 m²
Dachform Icon
DachformSattel-/Giebeldach
Etagen Icon
Etagen2
Energiestandard Icon
EnergiestandardKFWG-Q
Immobilientyp Icon
ImmobilientypMusterhaus
Dachneigung Icon
Dachneigung38°
Kniestock Icon
Kniestock1.5 m
Mittlerer U-Wert Icon
Mittlerer U-Wert0.14 W/m²K
Hauseigenschaften Icon
HauseigenschaftenGästezimmer
Hausdämmstoff Icon
HausdämmstoffHolzfaser- und Zellulosedämmstoffe
Heizungsart Icon
HeizungsartWärmepumpe (Luft, Wasser, oder beides)
Pfeil nach unten linksWir schaffen Platz für Ihre Träume

Grundriss

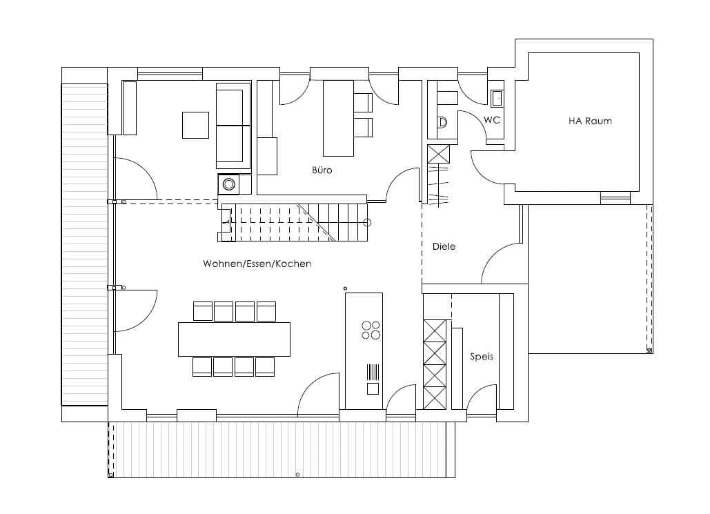
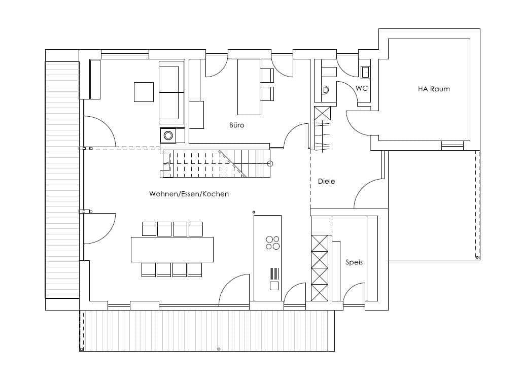
no description
Musterhaus Klara Grundriss (EG)Wohnfläche EG: 91 m²
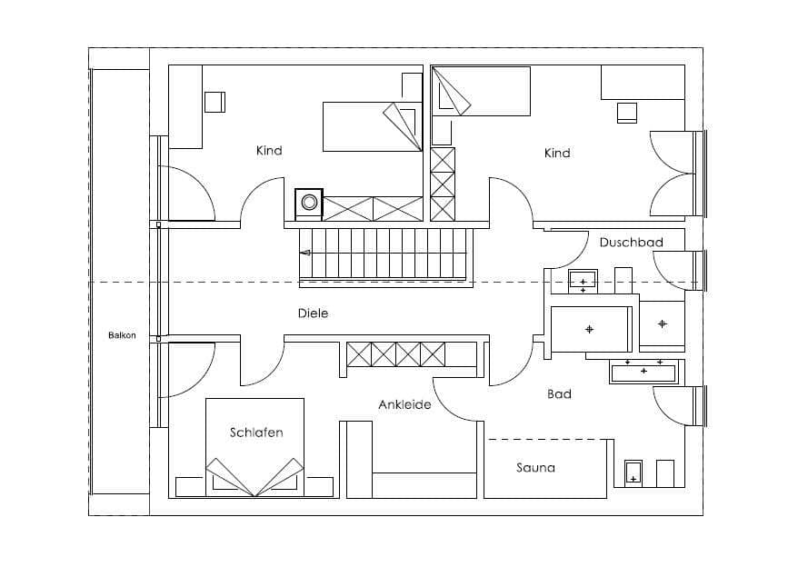
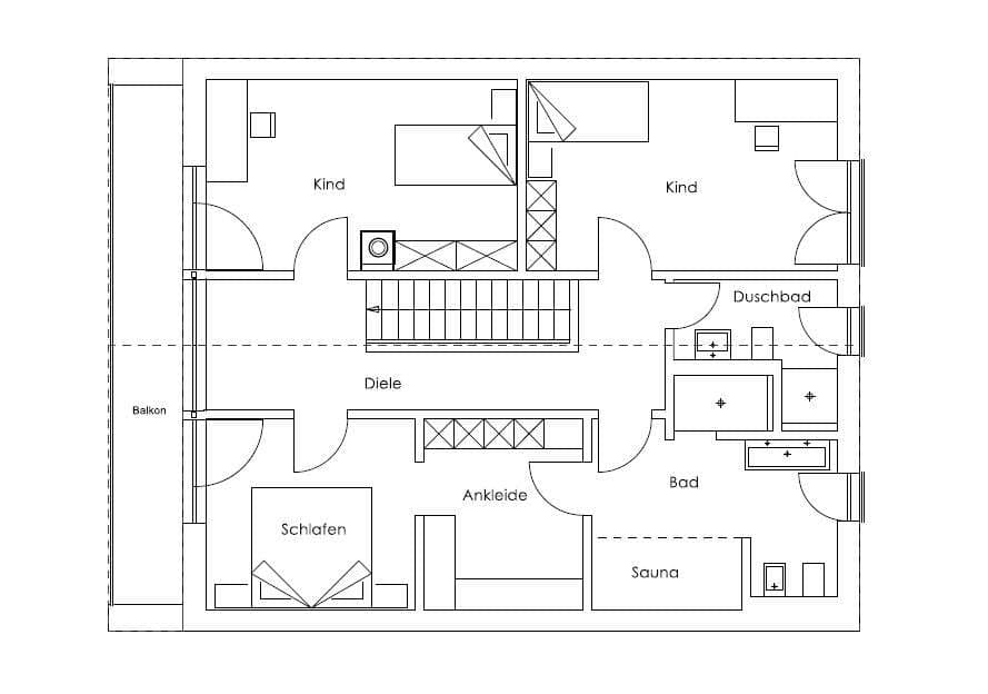
no description
Musterhaus Klara Grundriss (OG)Wohnfläche OG: 78 m²

Unser Team vor Ort

Regnauer HausbauFachberater*in bei Regnauer Hausbau
Default Avatar
Wir beraten Sie gerne!Arrow Icon
House and TreeParksHouse and PinHäuser liveHouse on HandAnbieter