1. AnbieterArrow Icon
  2. Regnauer HausbauArrow Icon
  3. Vitalhaus Eva
Slide 1
Slide 2
Slide 3
Slide 4
Slide 5
Slide 6
Slide 7
Slide 8
no description
Regnauer HausbauVitalhaus Eva
homeSchwedenhäuser
livingArea169 m²
energyStandardKFWG-Q
Preis anfragen
Katalog bestellen

Vitalhaus Eva

Feuerrote Holzfassade, blütenweiße Sprossenfenster, breiter Dachüberstand: Das Wohnhaus der Familie K. zeigt die Vorliebe der Bauherren für Skandinavien und drückt gleichzeitig die Verbundenheit zum ländlich geprägten Chiemgau aus. Dass diese architektonische Herausforderung sehr stimmig gelungen ist, hat der Bauherr dem Holzfertigbauspezialisten Regnauer aus Seebruck am Chiemsee zu verdanken. Das Unternehmen setzte die nicht alltäglichen Wünsche des pensionierten Lehrers und seiner Ehefrau perfekt um.

Bauen gegen das Fernweh

Den Fernweh geplagten Bauherren ließ der Gedanke, ein Stück des Landes der Fjorde und endlosen Weiten in die Heimat zu holen, nicht los. Doch auch der ländlichen Bauweise des Chiemgaus fühlt sich der Bauherr verbunden. Deshalb lautete die Vorgabe an Regnauer: Ein Haus zu realisieren, das sich einerseits in den benachbarten Altbestand und die Architektur des Voralpenlandes einfügt und andererseits einige Elemente skandinavischer Landhäuser berücksichtigt.

Markant und symmetrisch

Um diese Vorstellungen realisieren zu können, entschied sich der Bauherr zusammen mit Regnauer für die Symmetrie alter Bauernhöfe: Fenster und Türen sind spiegelbildlich angeordnet. Diese klare Gliederung beruhigt das Auge des Betrachters und schafft Freiraum für architektonische Besonderheiten wie den großen Dachüberstand und den ungewöhnlichen Anstrich. Schlicht und ausgefallen zugleich wirkt das unterkellerte Holzhaus mit seinen über 150 Quadratmetern Wohnfläche, das architektonisches Understatement mit einer Leidenschaft für das Besondere verbindet.

Stammhaus stand Pate

Wie in einem bayerischen Bauernhaus bildet die Diele mit Holztreppenaufgang zum Obergeschoss den Kern des Gebäudes. Offen und großzügig sind Wohnküche, Ess- und Wohnzimmer geplant. Große Flügeltüren öffnen das Erdgeschoss nach außen in die Natur. Eine großzügige Holzterrasse, die fast das ganze Haus umrandet, schafft den Übergang zu einer weitläufigen Rasenfläche und einem Obstbaumgarten. Viel Platz bietet das Erdgeschoss auch für einen Arbeitsraum. Im Obergeschoss zweigen von der Diele zwei Kinderzimmer, das Elternschlafzimmer und ein großzügiges, modernes Bad ab. Das 24 Grad geneigte Satteldach, eingedeckt mit Betondachsteinen, ist weit heruntergezogen worden: Die blütenweiß gestrichene Holzverkleidung bildet einen gelungenen Kontrast zur roten Außenfassade. Die schlichte Schalung dient als Wand für Kunsthandwerk, das der Bauherr sammelt und liebevoll restauriert. Leiter und Wagenräder an der Hauswand zeigen die Liebe der Bewohner für die ländliche Kultur.

Gesunder Baustoff Holz

Dass der Betrachter bei allem Bekenntnis des Bauherren zum Baustil des Chiemgaus das Gefühl erhält, gleichzeitig auch an Skandinavien erinnert wird, liegt am mutigen Anstrich der Holzfassade im typischen, kräftigen Rot schwedischer Landhäuser. Auch die schmale Haustür, gestrichen in strahlendem Weiß, ist ein Tribut an die Heimat Astrid-Lindgrens. Dass sich in diesem Ambiente die beiden Kinder der Familie sehr wohl fühlen, liegt auf der Hand. Zur Atmosphäre des Hauses, das eine Oase im turbulenten Alltag der vierköpfigen Familie darstellt, trägt außerdem der Baustoff Holz bei. Er garantiert ebenso wie die ökologische Holzfaserdämmung ein gesundes Raumklima.

Mehr Infos auf regnauer.de.

Ausführung gemäß aktueller Regnauer Bauleistungs- und Ausstattungsbeschreibung. Weitere Informationen auf www.regnauer.de. Abbildungen können Sonderausstattung zeigen. Wir legen großen Wert darauf, Ihr Vitalhaus ganz nach Ihren persönlichen Wünschen zu gestalten. Gemäß Ihren Wünschen und Ihrer Grundstückssituation ergibt sich dann ein exakter Festpreis für Ihr Traumhaus. Daher beziehen sich die Preise auf eine Vitalausstattung ohne spezifische Sonderausstattung.

Voraussetzung   zur   Erlangung   der   Bundesförderung   für   Effiziente   Gebäude   ist   die Einhaltung   der  diesbezüglichen Förderrichtlinien. So wird hierfür unter anderem  die Ausführung einer förderfähigen Haustechnik sowie die entsprechende Ausführung der bauherrenseitigen Leistungen (z.B. Keller und -ausbau) vorausgesetzt. Die Förderrichtlinien sind  auch  Änderungen unterworfen, sodass die Förderfähigkeit jeweils im Einzelfall geprüft und objektspezifisch durch das Förderinstitut bestätigt werden muss. Auch können einzelne Programme ausgesetzt oder verändert werden. Die Regnauer Hausbau GmbH & Co KG kann keine Finanzierungs- oder Förderberatung durchführen.

Hausdaten

Hausart Icon
HausartEinfamilienhaus
Bauweise Icon
BauweiseHolz-Tafelbau
Anzahl Räume Icon
Anzahl Räume5
Baustil Icon
BaustilSchwedenhäuser
Fassade Icon
FassadeHolz
Außenmaße Icon
Außenmaße10.66 m x 9.66 m
Wohnfläche Icon
Wohnfläche169 m²
Dachform Icon
DachformSattel-/Giebeldach
Etagen Icon
Etagen2
Energiestandard Icon
EnergiestandardKFWG-Q
Immobilientyp Icon
ImmobilientypKundenhaus
Dachneigung Icon
Dachneigung24°
Kniestock Icon
Kniestock1.48 m
Mittlerer U-Wert Icon
Mittlerer U-Wert0.15 W/m²K
Hauseigenschaften Icon
HauseigenschaftenTerasse
Hausdämmstoff Icon
HausdämmstoffHolzfaser- und Zellulosedämmstoffe
Heizungsart Icon
HeizungsartWärmepumpe (Luft, Wasser, oder beides)
Pfeil nach unten linksWir schaffen Platz für Ihre Träume

Grundriss

eg_eva.png
Vitalhaus Eva Grundriss (EG)Wohnfläche EG: 86 m²
og_eva.png
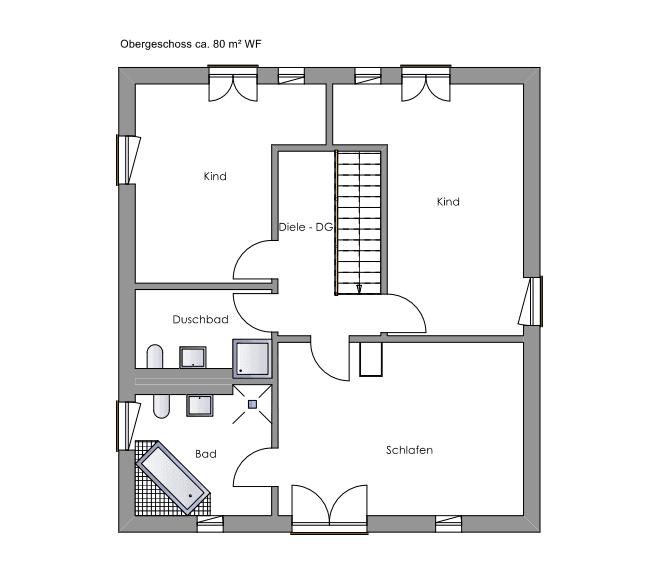
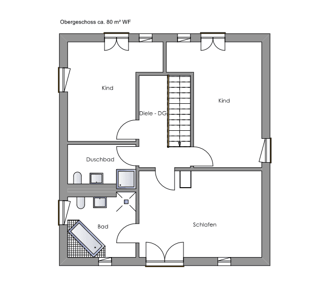
Vitalhaus Eva Grundriss (OG)Wohnfläche OG: 83 m²

Unser Team vor Ort

Regnauer HausbauFachberater*in bei Regnauer Hausbau
Default Avatar
Wir beraten Sie gerne!Arrow Icon

Kataloge

Regnauer: Hauskatalog
Regnauer Hausbau

Regnauer: Hauskatalog


House and TreeParksHouse and PinMusterhausHouse on HandAnbieter