1. AnbieterArrow Icon
  2. Regnauer HausbauArrow Icon
  3. Vitalhaus Breitenstein
Slide 1
Slide 2
Slide 3
Slide 4
Slide 5
Slide 6
Slide 7
no description
Regnauer HausbauVitalhaus Breitenstein
homeKlassische Familienhäuser
livingArea179 m²
energyStandardKFWG-Q
Preis anfragen
Katalog bestellen

Vitalhaus Breitenstein

Traumhaus im Wunschtraumort.

Eine junge Familie suchte eine Lösung, um den Berufsalltag mit dem Privatleben in Einklang zu bringen. Geworden ist daraus ein ökologisches 3-Liter Haus, das die beiden auf die persönlichen Wünsche maßschneidern ließen.

Wer Familie und Karriere vereinen möchte, muss kreativ denken – und bereit sein, neue Wege einzuschlagen. So wie Petra M. und Florian E. Als bei dem Paar Nachwuchs anstand, waren sich die beiden schnell einig darüber, dass sie umziehen sollten: in ein neues Zuhause, größer, schöner, ökologischer, am besten ein eigenes Haus. Und in einen neuen Ort, möglichst in der Nähe von Opa und Oma. Am besten nach Glonn, einen kleinen Markt auf halbem Weg zwischen den Arbeitsstellen in München und dem Wohnsitz der Großeltern im Münchner Südosten.

Und obwohl es als fast unmöglich galt, in dieser Gemeinde Baugrund zu erwerben, informierten die beiden auf gut Glück die dortigen Behörden über ihr Gesuch. Nur sechs Wochen später erhielten sie durch einen Makler ein Angebot für ein gerade erschlossenes Hanggrundstücks am Ortsrand von Glonn – den idealen Platz für den Beginn eines neuen Lebensabschnitts.

Regionale Handwerker gewünscht
Helle Räume mit viel Glas, gemütliches Holz, optimales Raumklima und nicht zuletzt äußerst geringe Energiekosten: Wo früher Wiese war, ist inzwischen das Traumhaus der jungen Eltern entstanden. Es steht weit weg von der Hektik Münchens und ist doch nah genug, um in einer knappen Dreiviertelstunde die jeweiligen Arbeitsplätze zu erreichen. Zudem vereint es die Vorteile der Systembauweise mit der Möglichkeit der individuellen Anpassung an die eigenen Wohnwünsche so harmonisch, dass M. und E. den Hausbau bequem neben Beruf und Familie stemmen konnten.

„Mein Mann wollte möglichst mit einer regionalen Firma bauen, mit regionalen Handwerkern und regionalen Materialien“, erinnert sich die Hausherrin. Beide stellten sich ein Fertighaus vor, das sie so individuell gestalten konnten wie sonst nur bei einem Individualbau möglich. „Florian träumte zudem von der Geborgenheit einer Almhütte aus Holz, ich von einem nüchternen Glasbau“, schmunzelt M.

Gegensätzliche Wünsche – eine optimale Lösung
Geworden ist daraus ein im Erdgeschoss verputzter, im Obergeschoss mit Lärchenholz verschalter moderner Kubus mit großflächigen Fenstern, die weite Ausblicke in die Natur ermöglichen. Den Giebel schmückt ein auf Holzstützen aufgeständerter Balkon unter einem weit vorgezogenen Vordach, der sowohl auf der Holzveranda im Erdgeschoss als auch im Obergeschoss bei jedem Wetter zum draußen sitzen einlädt. Anstelle eines Wintergartens ganz aus Glas wählten die beiden einen verglasten Erker mit Flachdach, vor dessen geschlossenen Wandbereichen ausreichend Platz ist, um Mobiliar aufzustellen.

Gebaut hat das Familienheim Regnauer Hausbau. Bei der Entscheidung für den Chiemgauer Familienbetrieb spielte insbesondere die Möglichkeit der Individualisierung der angebotenen Fertighäuser eine Rolle. „Wir wollten ein maßgeschneidertes Haus, und sind glücklich, dass die Berater von Regnauer Hausbau auf all unsere Ideen und Wünsche eingegangen sind und unsere vielen Änderungen geduldig mitgemacht haben“, lächelt die Bauherrin. „Die Verkäufer haben immer gesagt, dass das Haus ja uns gefallen solle und wir uns darin glücklich fühlen sollten. Und sie haben sogar noch nachgerechnet, damit wir unser Budget auf keinen Fall überziehen.“

Abschauen erlaubt
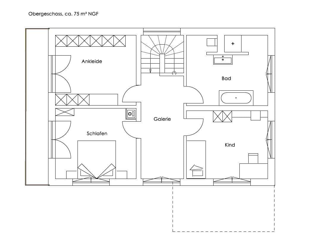
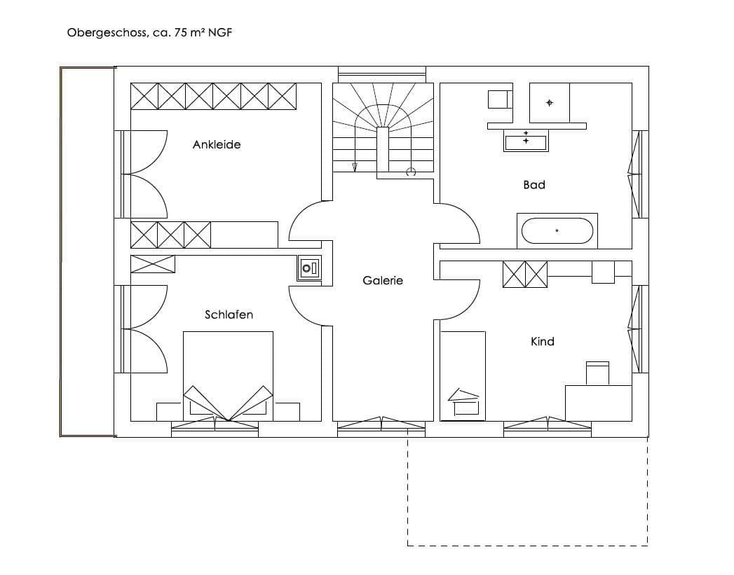
Um Anregungen für das künftige Zuhause zu sammeln, nahmen die Bauherren vor Baubeginn mehrfach an organisierten Hausbesichtigungen von Regnauer Hausbau teil. „Auf diese Weise haben wir uns einige nützliche Dinge abgeschaut, zum Beispiel das große Lichtfenster auf der Galerie im Obergeschoss“, vor dem Töchterchen Leni besonders gerne Kinderbücher schmökert. Dank des 2 m hohen Kniestocks ist im Obergeschoss noch Raum für ein großes Elternschlafzimmer und zwei Kinderzimmer sowie ein Familienbad.
Die Entscheidung für einen eher klassischen Grundriss mit gleich großen Räumen in dieser ersten Etage traf die Familie ganz bewusst. „Wir haben daran gedacht, dass wir das Haus bei einer klassischen Einteilung besser wiederverkaufen können – falls wir einmal umziehen müssen“, erklärt die Bauherrin.

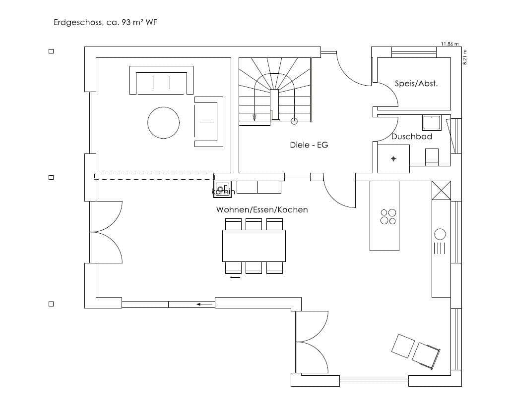
Das Erdgeschoss hingegen ist explizit auf die Bedürfnisse der Bewohner maßgeschneitert. So wünschte sich Münchehofe direkt neben dem Eingang ein kleines Büro. „Es ist wirklich winzig“, lächelt sie, „aber groß genug, um die Aktentasche und Büroordner abzustellen. Und genau dafür brauche ich es.“ Eine gemütliche Garderobe mit Platz, um sich im Sitzen die Schuhe anzuziehen, ein Gästebad und die halb gewendelte Treppe, die das Parterre mit dem Ober- und dem Untergeschoss verbindet, lassen sich ebenfalls von der Eingangsdiele aus erschließen.

Den größten Raum aber nimmt der Wohn- und Essbereich mit der angrenzenden Küche ein. Bodentiefe Fenstertüren machen es möglich, von hier aus direkt in den Garten zu gehen – den Hauptaufenthaltsort im Sommer. In der kühlen Jahreszeit zieht sich die Familie lieber zurück und genießt die kuschelige Wärme, die der offene Kamin im Zentrum des Wohnraums spendet. Auch der sei nicht alltäglich, betont die Hausherrin. „Durch den Rücksprung im Fußbereich scheint er fast zu schweben.“

Und wenn Gäste kommen? Auch die fühlen sich in der Nische im Obergeschoss wohl. Parallel dazu hat die junge Familie im Untergeschoss ein gemütliches Schlafzimmer eingerichtet. Direkt neben dem stylischen Hobbyraum, in dem der Hausherr und begeisterter Sportler seine Fahrradsammlung aufbewahrt und trainiert. Die Ausstattung für die beiden Räume im Untergeschoss stammt aus dem Standardprogramm des Regnauer Partners für den Kellerbereich – und wurde lediglich ein wenig nachbehandelt, um wohnlicher zu wirken. „Wir haben einfach die Betonwände abschleifen lassen und versiegeln und den Boden mit Latexfarbe streichen. Das war alles“, erläutert M.

Überhaupt komme ein Großteil der Ausstattung aus dem Standardprogramm des Fertighausanbieters, fügt die Hausherrin hinzu. „Wir hatten eigentlich damit gerechnet, viele Dinge als Sonderwünsche zukaufen zu müssen. Aber wir haben festgestellt, dass der angebotene Standard – den wir schon vor der Vertragsunterschrift begutachten durften – auch unsere
gehobenen Ansprüche zufrieden stellt“, freut sie sich. Etwa die offene Balkenuntersicht im Erdgeschoss, oder auch der hochwertige Parkett in den Wohnräumen.

Ausführung gemäß aktueller Regnauer Bauleistungs- und Ausstattungsbeschreibung. Weitere Informationen auf www.regnauer.de. Abbildungen können Sonderausstattung zeigen. Wir legen großen Wert darauf, Ihr Vitalhaus ganz nach Ihren persönlichen Wünschen zu gestalten. Gemäß Ihren Wünschen und Ihrer Grundstückssituation ergibt sich dann ein exakter Festpreis für Ihr Traumhaus. Daher beziehen sich die Preise auf eine Vitalausstattung ohne spezifische Sonderausstattung.

Voraussetzung   zur   Erlangung   der   Bundesförderung   für   Effiziente   Gebäude   ist   die Einhaltung   der  diesbezüglichen Förderrichtlinien. So wird hierfür unter anderem  die Ausführung einer förderfähigen Haustechnik sowie die entsprechende Ausführung der bauherrenseitigen Leistungen (z.B. Keller und -ausbau) vorausgesetzt. Die Förderrichtlinien sind  auch  Änderungen unterworfen, sodass die Förderfähigkeit jeweils im Einzelfall geprüft und objektspezifisch durch das Förderinstitut bestätigt werden muss. Auch können einzelne Programme ausgesetzt oder verändert werden. Die Regnauer Hausbau GmbH & Co KG kann keine Finanzierungs- oder Förderberatung durchführen.

Hausdaten

Hausart Icon
HausartEinfamilienhaus
Bauweise Icon
BauweiseHolz-Tafelbau
Anzahl Räume Icon
Anzahl Räume7
Baustil Icon
BaustilKlassische Familienhäuser
Fassade Icon
FassadePutz, Holz, Materialkombination
Außenmaße Icon
Außenmaße13 m x 8.2 m
Wohnfläche Icon
Wohnfläche179 m²
Dachform Icon
DachformSattel-/Giebeldach
Etagen Icon
Etagen2
Energiestandard Icon
EnergiestandardKFWG-Q
Immobilientyp Icon
ImmobilientypKundenhaus
Dachneigung Icon
Dachneigung18°
Kniestock Icon
Kniestock1.98 m
Mittlerer U-Wert Icon
Mittlerer U-Wert0.14 W/m²K
Hauseigenschaften Icon
HauseigenschaftenTerasse, Balkon, Integriertes Carport
Hausdämmstoff Icon
HausdämmstoffHolzfaser- und Zellulosedämmstoffe
Heizungsart Icon
HeizungsartWärmepumpe (Luft, Wasser, oder beides)
Pfeil nach unten linksWir schaffen Platz für Ihre Träume

Grundriss

no description
Vitalhaus Breitenstein Grundriss (EG)Wohnfläche EG: 104 m²
no description
Vitalhaus Breitenstein Grundriss (OG)Wohnfläche OG: 75 m²

Unser Team vor Ort

Regnauer HausbauFachberater*in bei Regnauer Hausbau
Default Avatar
Wir beraten Sie gerne!Arrow Icon

Kataloge

Regnauer: Hauskatalog
Regnauer Hausbau

Regnauer: Hauskatalog


House and TreeParksHouse and PinMusterhausHouse on HandAnbieter