1. AnbieterArrow Icon
  2. Regnauer HausbauArrow Icon
  3. Vitalhaus Bad Reichenhall
Slide 1
Slide 2
Slide 3
Slide 4
Slide 5
Slide 6
no description
Regnauer HausbauVitalhaus Bad Reichenhall
homeKlassische Familienhäuser
livingArea135 m²
energyStandardKFWG-Q
Preis anfragen
Katalog bestellen

Vitalhaus Bad Reichenhall

Oase im Grünen

Die Leitung eines Familienbetriebes kostet viel Zeit und Kraft. Das eigene Haus stellt deshalb für beruflich besonders angespannte Bauherren mehr als nur ein Dach über dem Kopf dar, es ist der Ort zum Erholen und Energietanken. Eine solche Oase wünschte sich eine oberbayerische Bauherrenfamilie, die in Bad Reichenhall ein Kompostierwerk mit Garten- und Tiefbaufirma betreibt. Sie vergab den Bau ihres Hauses an den Holzhaushersteller Regnauer, Spezialist für architektonisch anspruchsvolle Häuser, die ihre Vitalität spendende Wirkung im Namen tragen. Die Regnauer-Architekten setzten nicht nur den Wunsch der Bauherren nach einem Wohlfühlhaus in die Tat um, sie ermöglichten auch einen sorgenfreien schlüsselfertigen Bau zum Festtermin.

Ein Traumgrundstück in Ortsrandlage setzt natürlich Maßstäbe beim Bauen. Zum einen soll sich das Haus in die Landschaft einfügen. Gleichzeitig sollte das Haus die Landschaft einbeziehen und sich in diese integrieren.

Natürlich bauen mit Holz

Natürlich bauen: Darin besitzt das Familienunternehmen Regnauer eine jahrzehntelange Erfahrung. Der Baustoff Holz ist ein nachwachsendes Produkt aus der Natur. Ihm ordnet sich auch die Architektur der Vitalhäuser unter. Sie werden durch eine klassische Eleganz geprägt, die auch das Holzständerhaus der Bauherren kennzeichnet. Der Baukörper besitzt eine klare, symmetrische Aufteilung mit einem vorgestellten Quergiebel in der Mitte. Das Satteldach behütet ein Dachgeschoss, wo durch eine 24-Grad-Neigung hohe Räume mit Sichtdachstuhl entstanden sind. Die Fassade ist durch eine waagerechte Holzschalung im Erdgeschoss gegliedert. Holz und die Farbe Weiß auch bei der Wahl der wartungsfreien, serienmäßig eingebauten Holz-Alu-Fenster und bei den Türen geben den Ton an.

Zur Straßenseite schirmen schmale Fenster das Wohnhaus ab, nach Süden öffnet sich das Gebäude mit großen Glasflächen in die Landschaft. Von der Terrasse und vom Balkon des Quergiebels genießen die Hausherren einen traumhaften Blick auf das Alpenpanorama und eine Bergwiese. Ihre Garage schließt sich an einen offenen Carport am Haus an, sodass die doppelten Stellmöglichkeiten nicht massiv wirken. Filigran erscheint auch die Überdachung eines Teils der Terrasse mit einem weißen Sonnensegel. Diese Transparenz wird im Innern des Neubaus im Erdgeschoss durch einen offenen Wohn- und Essbereich mit Küche unterstrichen. Die Außenanlagen sind bewusst nicht gegliedert worden. Das weite Grün beruhigt das Auge, hier gibt es außerdem viel Platz zum Toben für den jüngsten Bewohner des Hauses. Als wohltuend empfinden die Bauherren auch das gesunde Raumklima, das durch den Baustoff Holz entsteht. Er garantiert in Kombination mit dem spezifischen Regnauer-Wandaufbau hohe Energieeffizienz und einen hervorragenden sommerlichen Hitzeschutz.

Ausführung gemäß aktueller Regnauer Bauleistungs- und Ausstattungsbeschreibung. Weitere Informationen auf www.regnauer.de. Abbildungen können Sonderausstattung zeigen. Wir legen großen Wert darauf, Ihr Vitalhaus ganz nach Ihren persönlichen Wünschen zu gestalten. Gemäß Ihren Wünschen und Ihrer Grundstückssituation ergibt sich dann ein exakter Festpreis für Ihr Traumhaus. Daher beziehen sich die Preise auf eine Vitalausstattung ohne spezifische Sonderausstattung.

Voraussetzung   zur   Erlangung   der   Bundesförderung   für   Effiziente   Gebäude   ist   die Einhaltung   der  diesbezüglichen Förderrichtlinien. So wird hierfür unter anderem  die Ausführung einer förderfähigen Haustechnik sowie die entsprechende Ausführung der bauherrenseitigen Leistungen (z.B. Keller und -ausbau) vorausgesetzt. Die Förderrichtlinien sind  auch  Änderungen unterworfen, sodass die Förderfähigkeit jeweils im Einzelfall geprüft und objektspezifisch durch das Förderinstitut bestätigt werden muss. Auch können einzelne Programme ausgesetzt oder verändert werden. Die Regnauer Hausbau GmbH & Co KG kann keine Finanzierungs- oder Förderberatung durchführen.

Hausdaten

Hausart Icon
HausartEinfamilienhaus
Bauweise Icon
BauweiseHolz-Tafelbau
Anzahl Räume Icon
Anzahl Räume5
Baustil Icon
BaustilKlassische Familienhäuser
Fassade Icon
FassadePutz, Materialkombination, Holz
Außenmaße Icon
Außenmaße11 m x 7.8 m
Wohnfläche Icon
Wohnfläche135 m²
Dachform Icon
DachformSattel-/Giebeldach
Etagen Icon
Etagen2
Energiestandard Icon
EnergiestandardKFWG-Q
Immobilientyp Icon
ImmobilientypKundenhaus
Dachneigung Icon
Dachneigung24°
Kniestock Icon
Kniestock1.67 m
Mittlerer U-Wert Icon
Mittlerer U-Wert0.14 W/m²K
Hauseigenschaften Icon
HauseigenschaftenTerasse, Dritter Giebel
Hausdämmstoff Icon
HausdämmstoffHolzfaser- und Zellulosedämmstoffe
Heizungsart Icon
HeizungsartWärmepumpe (Luft, Wasser, oder beides)
Pfeil nach unten linksWir schaffen Platz für Ihre Träume

Grundriss

no description
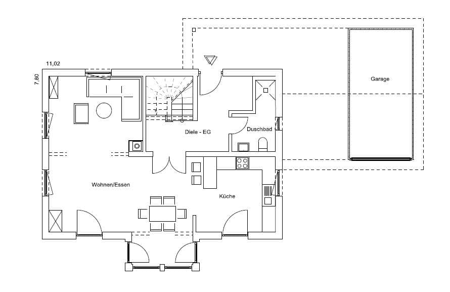
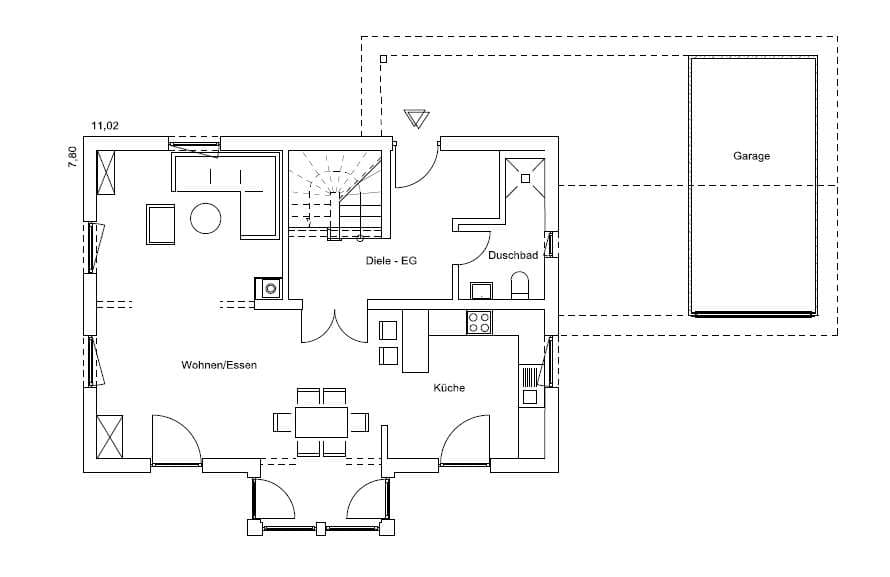
Vitalhaus Bad Reichenhall Grundriss (EG)Wohnfläche EG: 70 m²
no description
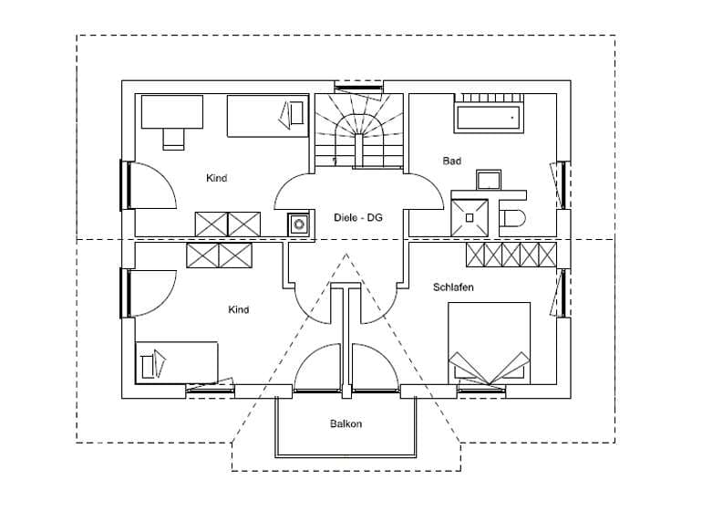
Vitalhaus Bad Reichenhall Grundriss (DG)Wohnfläche DG: 65 m²

Unser Team vor Ort

Regnauer HausbauFachberater*in bei Regnauer Hausbau
Default Avatar
Wir beraten Sie gerne!Arrow Icon

Kataloge

Regnauer: Hauskatalog
Regnauer Hausbau

Regnauer: Hauskatalog


House and TreeParksHouse and PinMusterhausHouse on HandAnbieter