1. AnbieterArrow Icon
  2. Regnauer HausbauArrow Icon
  3. Vitalhaus Söchtenau
Slide 1
Slide 2
Slide 3
Slide 4
Slide 5
Slide 6
Slide 7
Slide 8
Slide 9
Slide 10
no description
Regnauer HausbauVitalhaus Söchtenau
homeKlassische Familienhäuser
livingArea161 m²
energyStandardKFWG-Q
Preis anfragen
Katalog bestellen

Vitalhaus Söchtenau

Aus eins mach zwei

Bauen für die Zukunft erfordert zukunftsgerechte Planung. Ein Ehepaar in Söchtenau setzte dabei auf energetisch hochwertige Bauweise und die Möglichkeit, aus einem Haus zwei Wohnungen zu machen.

Fünf ganze Jahre dauerte es, bis Walter und Helga Wust in Söchtenau ein Grundstück fanden, auf dem sie ihr Zuhause errichten wollten. Es waren fünf lange Jahre, in denen die beiden Tag für Tag zwischen der neuen Arbeitsstelle in Rosenheim und ihrem bisherigen Haus in München pendelten – und daneben immer wieder nach dem idealen Platz für ihr künftiges Heim suchten. Der Hausbau selbst nahm nur wenige Monate in Anspruch. Kurze, spannende Monate, in denen das Ehepaar jeden einzelnen Planungs- und Montageschritt voller Begeisterung mitverfolgte, um den neuen Besitz am Ende glücklich in Empfang zu nehmen.

Wer so lange auf das perfekte Zuhause wartet, überlässt nichts dem Zufall. Nicht den Ort, eine idyllische Lage am Rande eines kleinen Dörfchens, weit weg von der hektischen Großstadt, die die beiden gewohnt waren. Und auch nicht die Auswahl des Unternehmens, mit dem das Paar bauen wollte. „Wir haben uns sogar die Mühe eines Ausschreibungsverfahrens gemacht, in dem wir die Ziegelbauweise mit der Holzbauweise verglichen haben“, lächelt Bauherr Walter Wust. „Als wir uns sicher waren, dass wir künftig in einem Holzhaus leben und die klimatischen Vorteile dieser Bauweise genießen wollten, haben wir genaue Vergleiche zwischen neun verschiedenen Fertighausherstellern von Holzhäusern angestellt. Und dann haben wir bei Banken noch Auskünfte über die Finanzierungsqualität der Hersteller eingeholt“, fährt er fort.

Die Entscheidung fiel schließlich auf einen Haustypen von Regnauer Hausbau. „Wir haben es Haus Schwabering genannt, genau so wie den Ortsteil, in dem wir leben“, schmunzelt Wust. Es ist ein ruhiges Haus, groß, schlicht, mit Satteldach und partieller Lärchenholz-Rhombusschalung. Nebenan steht als kleineres Pendant die Garage mit dem Carport davor, ebenso schlicht, ebenso strukturiert und ebenso mit einer partiellen Holzschalung bekleidet wie das Haus selbst. Wenn dessen Bewohner sich nach links wenden, sehen sie das Grundstück der Nachbarn und das angrenzende Dorf. Auf der anderen Seite blicken sie auf freies Land, Wiesen und Äcker, soweit das Auge reicht.

Dazwischen also ragt jener Neubau empor, für den das Ehepaar Wust zum zweiten Mal im Leben in die Rolle der Bauherren schlüpfte. Natürlich dachten die beiden dabei auch an später. „Unser Haus ist so geplant, dass wir es bei Bedarf in zwei Wohnungen gliedern können. Falls einer von uns einmal alleine bleiben sollte, kann er gegebenenfalls eine Etage vermieten oder einem unserer Kinder zur Verfügung stellen“, erklärt Wust. Direkt hinter dem Eingang des 170 Quadratmeter Wohnfläche bietenden Anwesens grenzt daher eine große Glastür den unteren Wohntrakt mit der darin integrierten Küche und dem Essplatz vom Treppenhaus ab. Auch für ein geräumiges Bad mit begehbarer Dusche ist im Erdgeschoss noch Platz sowie für ein Büro, das als Schlafzimmer umgenutzt werden könnte, und für einen kleinen Technikraum. Der nimmt sämtliche Geräte auf, die für den Betrieb des Gebäudes notwendig sind, sodass der Keller entfallen durfte.

Im ersten Stock öffnet eine zweite Glastür den Weg zu den privaten Räumen: einem großen und einem kleinen Schlafzimmer sowie einem Bad mit einer barrierefrei erreichbaren, großzügigen Wellness-Dusche. Im Nachbarzimmer ist eine gemütliche Wohn-Küche vorinstalliert, „sodass wir nur die Glastüren durch Eingangstüren ersetzen müssten, um aus unserem Haus zwei separate Wohnungen zu machen“, erzählt das Ehepaar. Dass die in punkto Energieeffizienz ebenso zukunftsweisend sind wie das Hauskonzept, versteht sich bei einer derart durchdachten Planung fast von selbst. So kommt das als KfW-Effizienzhaus konzipierte Gebäude mit knapp 50 Euro Energie- und Warmwasserkosten im Monat aus. Möglich machen dies die hohe Dämmqualität der Hülle, die dreifach verglasten Fenster, die energetisch optimierte Luft-Wasser-Wärmepumpe als Heizquelle und die kontrollierte Wohnraumbelüftung mit Wärmerückgewinnung.

Um ein derart schlüssiges Hauskonzept zu realisieren, sind viele Schritte nötig, „und wir haben jeden einzelnen davon genauestens verfolgt und genossen“, schmunzelt Familie Wust: Angefangen von der Regnauer Abendveranstaltung über Finanzierungsmöglichkeiten, bei der die zwei ihren künftigen Baupartner erstmals kennenlernten, und einem zweiten Abendevent, der seitens der Fachhochschule Rosenheim Bautechniken in Holz gewidmet war, und dem der Entschluss folgte, mit Regnauer zu bauen. Auch die Gespräche mit dem Vertriebsberater, Termine mit dem zuständigen Architekten und dem Fachmann für die Ausstattung und die Detaillierung des Hauses, hat Wust positiv in Erinnerung. „Zuletzt durften wir sogar zusehen, wie unser Gebäude Balken für Balken gebaut wurde, wie lange Wände zusammengesetzt wurden, mit Fenstern bestückt und schließlich für den Transport vorbereitet wurde“, denkt der Bauherr zurück. „Wir haben Bescheid bekommen, wann produziert wird, und haben uns mehrfach die Zeit genommen, an unserem Hausbau persönlich teilzuhaben. Im Werk und im Anschluss auf der Baustelle.“

Das besondere Wohlfühlklima, das die Holzbauweise verspricht, hat Familie Wust von Anfang an genossen. „Unsere Erwartungen sind tatsächlich zu hundert Prozent erfüllt worden“, zieht Wust Bilanz, „zumal das Gebäude zwei Jahre nach dem Einzug noch immer aussieht wie neu“, fährt er fort. Nach der Hektik der Großstadt und der Pendelei ist er zur Ruhe gekommen. Am Rande von Söchtenau. Im Dorf mit den netten Nachbarn und den vielen Vereinen, in denen das Ehepaar gleich Anschluss gefunden hat. Und im eigenen Holzhaus mit der partiellen Verschalung, ruhig, unaufgeregt und bereit für die Zukunft.  

Ausführung gemäß aktueller Regnauer Bauleistungs- und Ausstattungsbeschreibung. Weitere Informationen auf www.regnauer.de. Abbildungen können Sonderausstattung zeigen. Wir legen großen Wert darauf, Ihr Vitalhaus ganz nach Ihren persönlichen Wünschen zu gestalten. Gemäß Ihren Wünschen und Ihrer Grundstückssituation ergibt sich dann ein exakter Festpreis für Ihr Traumhaus. Daher beziehen sich die Preise auf eine Vitalausstattung ohne spezifische Sonderausstattung.

Voraussetzung   zur   Erlangung   der   Bundesförderung   für   Effiziente   Gebäude   ist   die Einhaltung   der  diesbezüglichen Förderrichtlinien. So wird hierfür unter anderem  die Ausführung einer förderfähigen Haustechnik sowie die entsprechende Ausführung der bauherrenseitigen Leistungen (z.B. Keller und -ausbau) vorausgesetzt. Die Förderrichtlinien sind  auch  Änderungen unterworfen, sodass die Förderfähigkeit jeweils im Einzelfall geprüft und objektspezifisch durch das Förderinstitut bestätigt werden muss. Auch können einzelne Programme ausgesetzt oder verändert werden. Die Regnauer Hausbau GmbH & Co KG kann keine Finanzierungs- oder Förderberatung durchführen.

Hausdaten

Hausart Icon
HausartEinfamilienhaus
Bauweise Icon
BauweiseHolz-Tafelbau
Anzahl Räume Icon
Anzahl Räume8
Baustil Icon
BaustilKlassische Familienhäuser
Fassade Icon
FassadePutz, Materialkombination, Holz
Außenmaße Icon
Außenmaße11 m x 9.3 m
Wohnfläche Icon
Wohnfläche161 m²
Dachform Icon
DachformSattel-/Giebeldach
Etagen Icon
Etagen2
Energiestandard Icon
EnergiestandardKFWG-Q
Immobilientyp Icon
ImmobilientypKundenhaus
Dachneigung Icon
Dachneigung25°
Kniestock Icon
Kniestock2.5 m
Mittlerer U-Wert Icon
Mittlerer U-Wert0.14 W/m²K
Hauseigenschaften Icon
HauseigenschaftenTerasse, Einliegerwohnung
Hausdämmstoff Icon
HausdämmstoffHolzfaser- und Zellulosedämmstoffe
Heizungsart Icon
HeizungsartWärmepumpe (Luft, Wasser, oder beides)
Pfeil nach unten linksWir schaffen Platz für Ihre Träume

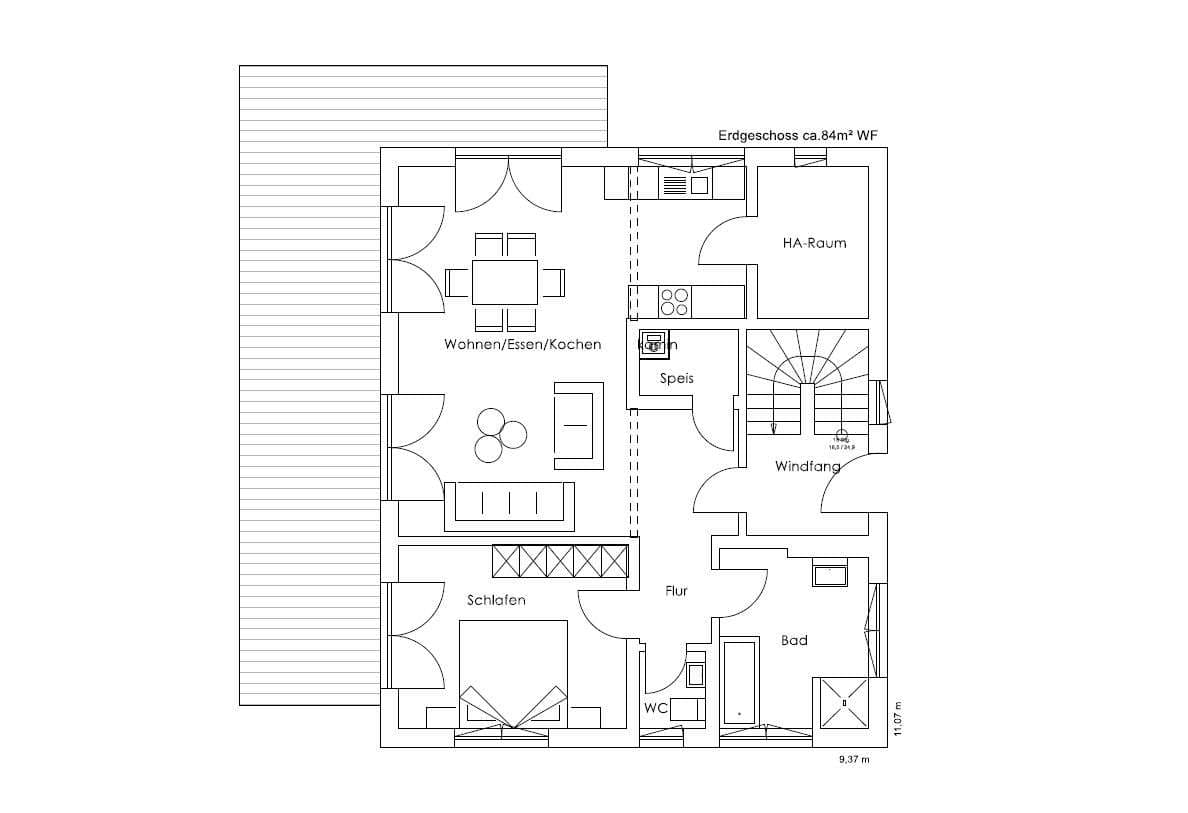
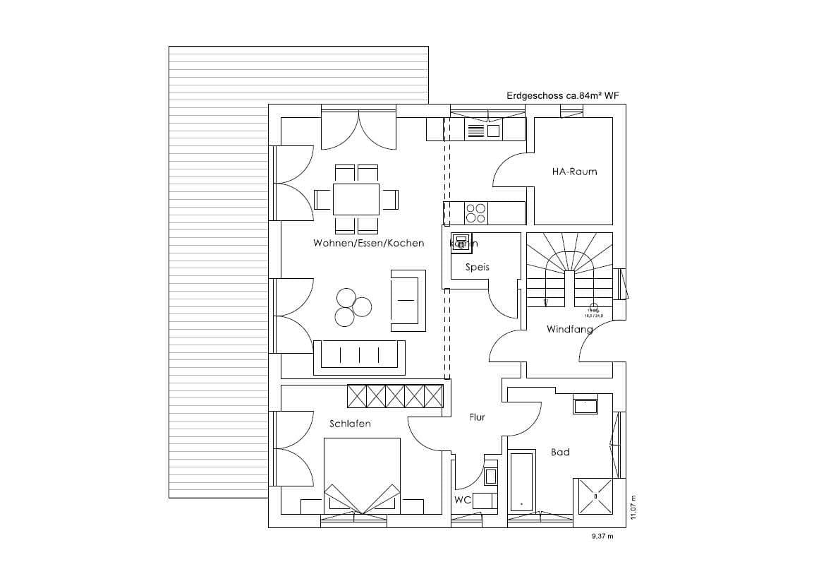
Grundriss

no description
Vitalhaus Söchtenau Grundriss (EG)Wohnfläche EG: 82 m²
no description
Vitalhaus Söchtenau Grundriss (OG)Wohnfläche OG: 79 m²

Unser Team vor Ort

Regnauer HausbauFachberater*in bei Regnauer Hausbau
Default Avatar
Wir beraten Sie gerne!Arrow Icon

Kataloge

Regnauer: Hauskatalog
Regnauer Hausbau

Regnauer: Hauskatalog


House and TreeParksHouse and PinMusterhausHouse on HandAnbieter