1. AnbieterArrow Icon
  2. Regnauer HausbauArrow Icon
  3. Vitalhaus Wolkersdorf
Slide 1
Slide 2
Slide 3
Slide 4
Slide 5
Slide 6
Slide 7
Slide 8
no description
Regnauer HausbauVitalhaus Wolkersdorf
homeStadtvillen
livingArea187 m²
energyStandardKFWG-Q
Preis anfragen
Katalog bestellen

Vitalhaus Wolkersdorf

Ein Blickfang inmitten der Natur ist das Vitalhaus Wolkersdorf.

Hinter der schlichten weißen Fassade versteckt sich ein überraschend großzügiges Haus mit viel Raum für eine aktive Familie. Gleichzeitig bleibt noch genügend Platz für die individuellen Rückzugsbereiche der einzelnen Familienmitglieder. Die hellen, lichtdurchfluteten Räume geben viel Atmosphäre, die bewährte Massivholz-Riegel-Konstruktion mit Holzfaser-Wärmedämmung vereint moderne Architektur mit den Vorteilen des nachwachsenden Rohstoffs Holz.

Geradlinig - Symmetrisch schlicht strahlt die weiß verputzte Fassade und offenbart den Wunsch der Bewohner nach Licht und Helligkeit. Der Holzhaushersteller Regnauer hat diesen Wunsch in zahlreichen interessanten Details realisiert: Die großzügige Eckverglasung im Erdgeschoss gibt den Blick frei auf Terrasse und Garten und holt dank der Süd-West-Ausrichtung das Sonnenlicht bis in den späten Abend ins Haus. Transparent und hell präsentiert sich auch der Essbereich mit Luftraum und durchgängiger Fensterfront, der mit dem dort verlegten Holzboden optisch ein Stück Terrasse ins Haus holt.

Geräumig und gemütlich - Das Erdgeschoss ist das Zentrum des Familienlebens: Im großzügigen Wohn-, Ess- und Kochbereich trifft sich die gesamte Familie und genießt das Beisammensein. Der luftige Essbereich direkt neben der offenen Küche garantiert kurze Wege, die bodentiefe Vollverglasung holt die Natur gleichsam ins Hausinnere. Der Arbeitsraum neben der Eingangstür lässt sich individuell als Hauswirtschaftsraum oder als Büro nutzen, besonders praktisch ist auch der direkte Zugang zur Garage.

Kompakte Raumaufteilung - Im Obergeschoss findet jedes Familienmitglied seinen Rückzugsort: Das Elternschlafzimmer verfügt über eine separate Ankleide und einen eigenen Zugang zum großzügigen Badezimmer. Zwei lichtdurchflutete Kinder- und ein Gästezimmer, sowie das helle Studio komplettieren das rund 87 Quadratmeter große Obergeschoss, das mit seinen großflächigen Fensterfronten einen spektakulären Blick in die umliegende Natur gewährt. Das Kellergeschoss komplettiert das Raumangebot: Heizungs- und Hobbyraum sowie zwei weitere Zimmer zur individuellen Nutzung geben zusätzlichen Platz.

Naturnahes Wohnen  - Für ihr neues Haus legten die Bauherren nicht nur Wert auf die Lage: die Entscheidung für ein Vitalhaus von Regnauer sichert auch die Vorteile eines wohngesunden Raumklimas, bei dem die Luftfeuchtigkeit durch die diffusionsoffene Bauweise reguliert wird. Die Verwendung des nachwachsenden Rohstoffs Holz leistet gleichzeitig einen wichtigen Beitrag zum schonenden Umgang mit unseren Ressourcen. Durch die enge Zusammenarbeit mit verschiedenen Wissensträgern der Region steht Regnauer zudem für eine konsequente Weiterentwicklung und Optimierung bei den Hauskonzepten.

Ausführung gemäß aktueller Regnauer Bauleistungs- und Ausstattungsbeschreibung. Weitere Informationen auf www.regnauer.de. Abbildungen können Sonderausstattung zeigen. Wir legen großen Wert darauf, Ihr Vitalhaus ganz nach Ihren persönlichen Wünschen zu gestalten. Gemäß Ihren Wünschen und Ihrer Grundstückssituation ergibt sich dann ein exakter Festpreis für Ihr Traumhaus. Daher beziehen sich die Preise auf eine Vitalausstattung ohne spezifische Sonderausstattung.

Voraussetzung   zur   Erlangung   der   Bundesförderung   für   Effiziente   Gebäude   ist   die Einhaltung   der  diesbezüglichen Förderrichtlinien. So wird hierfür unter anderem  die Ausführung einer förderfähigen Haustechnik sowie die entsprechende Ausführung der bauherrenseitigen Leistungen (z.B. Keller und -ausbau) vorausgesetzt. Die Förderrichtlinien sind  auch  Änderungen unterworfen, sodass die Förderfähigkeit jeweils im Einzelfall geprüft und objektspezifisch durch das Förderinstitut bestätigt werden muss. Auch können einzelne Programme ausgesetzt oder verändert werden. Die Regnauer Hausbau GmbH & Co KG kann keine Finanzierungs- oder Förderberatung durchführen.

Hausdaten

Hausart Icon
HausartEinfamilienhaus
Bauweise Icon
BauweiseHolz-Tafelbau
Anzahl Räume Icon
Anzahl Räume4
Baustil Icon
BaustilStadtvillen
Fassade Icon
FassadePutz
Außenmaße Icon
Außenmaße10.8 m x 10.8 m
Wohnfläche Icon
Wohnfläche187 m²
Dachform Icon
DachformWalm-/Zeltdach
Etagen Icon
Etagen2
Energiestandard Icon
EnergiestandardKFWG-Q
Immobilientyp Icon
ImmobilientypKundenhaus
Dachneigung Icon
Dachneigung20°
Kniestock Icon
Kniestock2.47 m
Mittlerer U-Wert Icon
Mittlerer U-Wert0.14 W/m²K
Hauseigenschaften Icon
HauseigenschaftenTerasse, Viel Glas
Hausdämmstoff Icon
HausdämmstoffHolzfaser- und Zellulosedämmstoffe
Heizungsart Icon
HeizungsartWärmepumpe (Luft, Wasser, oder beides)
Pfeil nach unten linksWir schaffen Platz für Ihre Träume

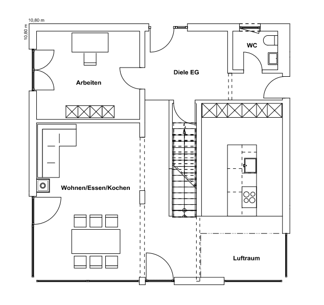
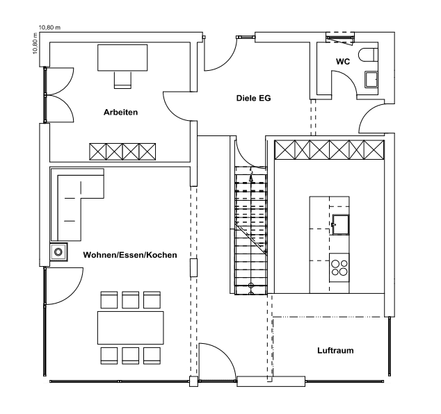
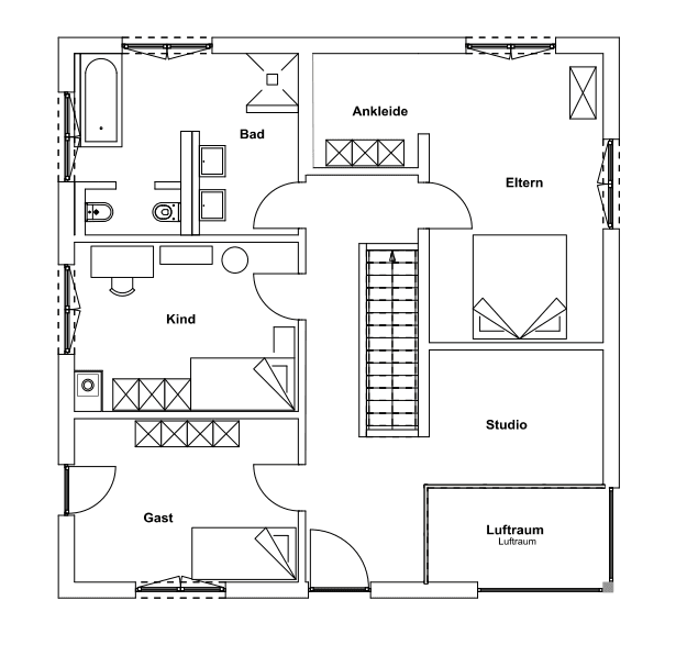
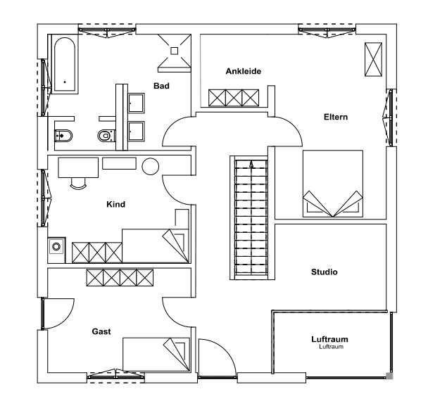
Grundriss

no description
Vitalhaus Wolkersdorf Grundriss (EG)Wohnfläche EG: 99 m²
no description
Vitalhaus Wolkersdorf Grundriss (OG)Wohnfläche OG: 88 m²

Unser Team vor Ort

Regnauer HausbauFachberater*in bei Regnauer Hausbau
Default Avatar
Wir beraten Sie gerne!Arrow Icon

Kataloge

Regnauer: Hauskatalog
Regnauer Hausbau

Regnauer: Hauskatalog


House and TreeParksHouse and PinMusterhausHouse on HandAnbieter