1. AnbieterArrow Icon
  2. Regnauer HausbauArrow Icon
  3. Vitalhaus Starnberg
Slide 1
Slide 2
Slide 3
Slide 4
Slide 5
Slide 6
Slide 7
no description
Regnauer HausbauVitalhaus Starnberg
homeKlassische Familienhäuser
livingArea239 m²
energyStandardKFWG-Q
Preis anfragen
Katalog bestellen

Vitalhaus Starnberg

Drei Generationen in einem Haus: An die Zukunft gedacht.

Ein Drei-Generationen-Haus, in dem Mutter, Vater, die Kinder und auch noch die Oma Platz finden: Der Auftrag von Familie Hopfensperger an Regnauer Hausbau war anspruchsvoll und höchst individuell. Die Antwort darauf ist L-förmig, ein Holzfertighaus und wunderbar vital. 

Mit mehreren Generationen zusammenwohnen und doch separat; großzügig leben und doch so, dass das eigene Haus im Alter problemlos in mehrere Wohnungen aufgeteilt werden kann; ein Holzfertighaus bauen und dabei absolut individuell – inklusive Sauna und Büro: So lautete der Wunschzettel, nach dem Architektin Eleonora Cardella-Goroll für Georg und Katharina Hopfensperger, ihre beiden Kinder und deren Großmutter ein Haus für drei Generationen konzipierte.

Während die Seniorin eine separate Wohnung mit eigenem Eingang und Gartenzugang im Erdgeschoss erhielt, zog ihr Sohn mit seiner Familie nach nebenan. Gemeinsam bewohnen sie dort einen Flügel des L-förmigen Holzfertighauses von Regnauer Hausbau im Erdgeschoss und haben zudem das komplette Obergeschoss – und das in den Hang gegrabene Untergeschoss ganz für sich.

Altersgerecht, pflegeleicht und flexibel

Mit 50plus hatte das Bauherrenpaar schon eine Weile den Wunsch gehabt, seine Heimat in einem nur 100 Meter vom Georg Hopfenspergers Elternhaus entfernten 60er-Jahre-Bau gegen etwas Neues zu tauschen. „Wir wünschten uns ein Zuhause, das wir zugunsten unserer Kinder später in mehrere Einheiten aufteilen können“, verrät der Bauherr seine hinter den Umzugsgedanken stehende Intention.

Gleichzeitig wollte die Mutter von Georg Hopfensperger ihr großes, in die Jahre gekommenes Einfamilienhaus gern gegen etwas Kleineres umtauschen, etwas, das altersgerecht war und pflegeleicht. Als ihr Sohn daher die Möglichkeit erhielt, das Grundstück direkt neben ihrem Anwesen zu erwerben, gaben die drei Generationen ihren Wünschen eine Chance – und setzten sie zusammen mit Regnauer Hausbau in die Realität um.

Ein Holzfertighaus, individuell geplant

Dass es ein Holzfertighaus werden würde, stand von Anfang an fest. Schließlich brauchte die Seniorin nach dem Abriss ihres bisherigen Wohnhauses möglichst schnell wieder ein neues Heim. Und so führte die Suche nach dem passenden Baupartner die Bauherren zunächst in verschiedene Bauherrenzentren – und schließlich direkt zum Musterhaus Heidi, das Regnauer Hausbau in Poing bei München zeigt. „Hier stimmte alles, die Architektur, die Beratung, die Kompetenz und auch die Gebäudestruktur“, zogen die beiden Eheleute damals Bilanz.

Für die individuelle Planung ihres Traumobjekts brachte Regnauer Familie Hopfensperger mit Architektin Cardella-Goroll zusammen, die mit dem Chiemgauer Familienbetrieb individuelle Häuser für individuelle Kunden plant. Sie kanalisierte die Wünsche der drei Generationen und verwandelte sie im Anschluss in eine ausgetüftelte Grundrissidee.

55 m2 für die Oma, einen privaten Garten dazu

Weil sie das Grundstück optimal ausnutzen wollte und weil Frau Hopfensperger kein viereckiges Gebäude wollte, packte die Planerin die beiden Wohneinheiten stattdessen in eine L-Form. So erhielten beide Parteien Zugang zu einem privaten Gartenanteil im Süden bzw. Westen und jeder hat genügend Platz.

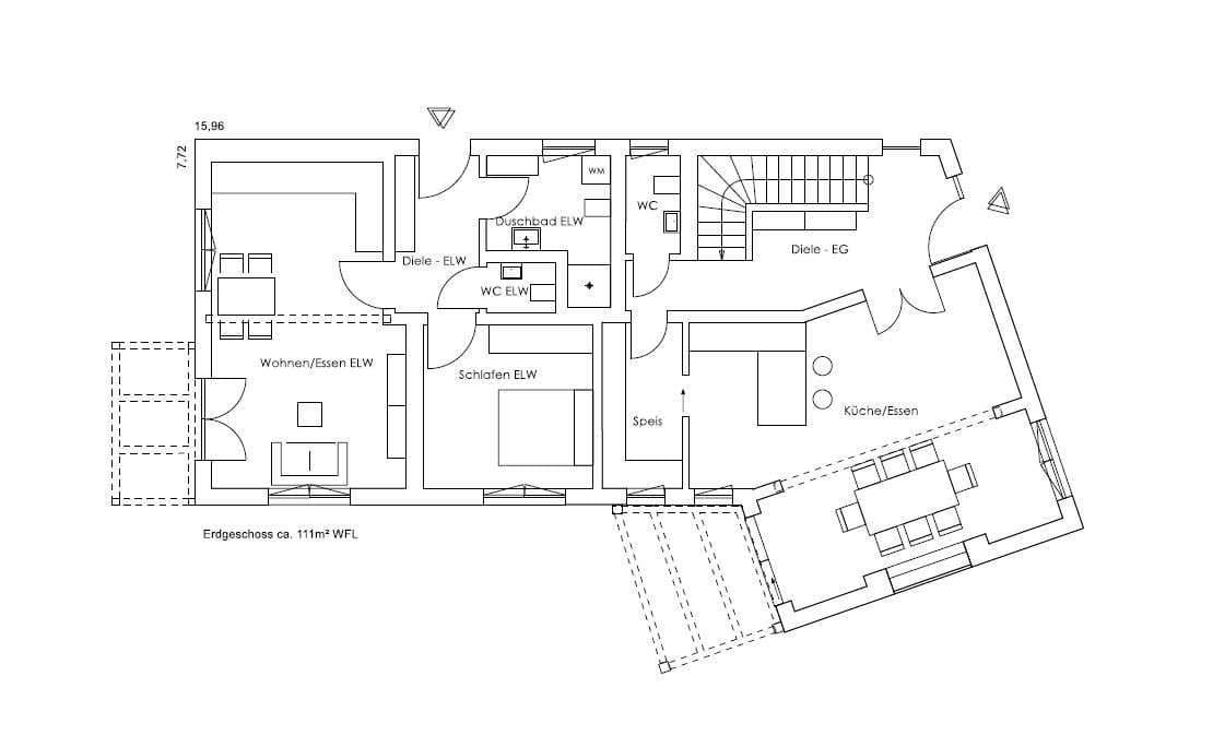
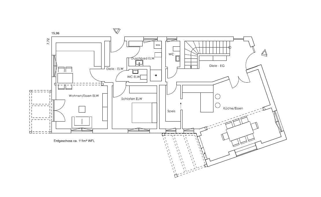
Einen Großteil des Erdgeschosses belegt das neue Zuhause von Georg Hopfenspergers Mutter. Cardella-Goroll wies Ihr den langen Schenkel des Gebäudes zu und richtete dort eine knapp 55 m2 große Wohnung mit Diele, Bad, Abstellraum, Schlafzimmer und Koch-Ess- und Wohnzimmer ein.

Die gute Stube für Familie, Gäste & Co.

Die vierköpfige Familie des Sohns quartierte sie im kurzen Schenkel des Anwesens ein. Hier fand sich im Erdgeschoss Platz für eine Diele mit Gäste-WC und Garderobe sowie eine 43 m2 Wohnstube mit Küche, großem Esstisch und gemütlicher Leseecke, die in ein großes Fenster in die Fassade integriert wurde.

Die Stube wurde großzügig gestaltet, so dass Bewohner und Besucher die Weite ungestört genießen können. Auch hat der Raum – wie von den Bauherren gewünscht – nicht ausschließlich rechte Winkel, sondern verbreitert sich zum Süden und Südwesten hin, was ihm eine außergewöhnliche Atmosphäre verleiht.

„Die Küche bzw. Kochlandschaft ist in zwei Bereiche unterteilt, den öffentlichen Bereich mit der Kochinsel und der Theke in der Stube selbst und die sogenannte Arbeitsküche mit Kühlschrank, Waschbecken und Vorratsbereich dahinter“, verrät Katharina Hopfensperger. So können Gäste in der Küche bewirtet werden und das Küchenchaos bleibt dennoch außen vor. Von der Stube führt eine Schiebetüre direkt auf die Terrasse und in den großen Garten hinaus, wo das Leben im Sommer weiter verläuft.

Privaträume nach oben

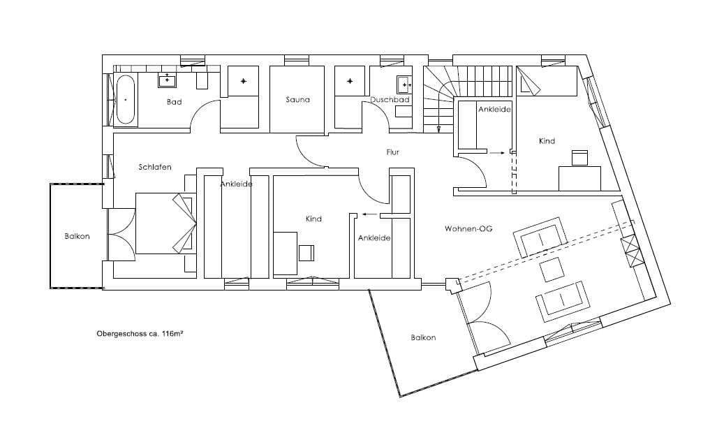
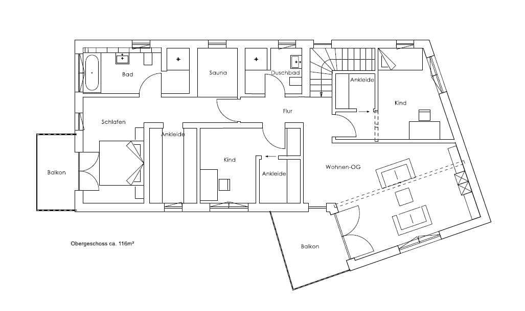
Im oberen Stockwerk ihres neuen Zuhauses ließen sich die Bauherren ein weiteres, privates Wohnzimmer einrichten mit Platz für den Fernseher, die Stereoanlage und eine gemütliche Couchlandschaft davor. Ein großer Balkon erlaubt es, auch auf dieser Ebene ins Freie zu gehen – und dient zudem als Teilüberdachung der Terrasse, sodass die Möbel dort von Wind und Wetter geschützt sind und auch mal bei Regen draußen gegessen werden kann.

Nebenan liegen das Schlafzimmer der Eltern und die großen Kinderzimmer der beiden jugendlichen Söhne. Es gibt ein Duschbad für den Nachwuchs und ein Elternbad mit angrenzender Sauna für die Erwachsenen sowie zwei Ankleideräume für alle vier. Angesichts der bis zu 5 m hohen Räume – mit offenem Dachstuhl – wünschte sich einer der Söhne auch eine Gästegalerie in seinem Zimmer, die den Platz nach oben nun optimal nutzt.

Gearbeitet wird am Hang

Die leichte Hanglage des Grundstücks machte es darüber hinaus möglich, einen Arbeitsraum im Untergeschoss einzurichten, der dank einer Abböschung mit großen Fenstern natürlich belichtet werden kann. Nebenan befindet sich Freizeitzimmer, in dem die Jungs sich mit Freunden treffen können.

Ein weiterer – fensterloser – Raum dient als Musikzimmer. Hier steht das Schlagzeug des Hausherrn, wo er Musik machen kann, wann immer er will –ohne jemanden im und außerhalb des Hauses zu stören. Auch eine Abstell- bzw. Vorratskammer ist im Keller untergebracht, zudem die Technikzentrale des Hauses, in der die Heizung und die Lüftung des Neubaus gesteuert werden. 

Energieeffizient mit harmonischer Architektur

So kombinierte Familie Hopfensperger die Vorzüge seines KfW-Hauses mit dem guten Wohnklima der Regnauer Vitalbauweise und moderner Architektur: Weißer Putz im Erdgeschoss und eine Holzfassade im ersten Stock. Als Dach kam ein Walmdach mit dunklen Ziegeln zum Einsatz, das sich harmonisch in die ruhige Wohnsiedlung einpasst, in der die drei Generationen nun zusammenleben.

Geheizt wird das Holzhaus per Fußbodenheizung mit einer Luft-Wasser-Wärmepumpe. Auf eine Smart-Home-Steuerung verzichteten die Bauherren bewusst: „Wir sind neuen Medien gegenüber durchaus aufgeschlossen“, verrät das Bauherrenpaar, „doch unsere Rollläden bedienen wir gern noch selbst.“

Die Steuerung des Baus gaben die Auftraggeber jedoch freudig außer Haus. „Und wir sind glücklich darüber, dass alles hervorragend geklappt hat“, ziehen Georg und Katharina Hopfensperger nun Bilanz: „Von der Planung bis zum Bau war der Ablauf optimal. Besser könnte es gar nicht gehen.“

Ausführung gemäß aktueller Regnauer Bauleistungs- und Ausstattungsbeschreibung. Weitere Informationen auf www.regnauer.de. Abbildungen können Sonderausstattung zeigen. Wir legen großen Wert darauf, Ihr Vitalhaus ganz nach Ihren persönlichen Wünschen zu gestalten. Gemäß Ihren Wünschen und Ihrer Grundstückssituation ergibt sich dann ein exakter Festpreis für Ihr Traumhaus. Daher beziehen sich die Preise auf eine Vitalausstattung ohne spezifische Sonderausstattung.

Voraussetzung   zur   Erlangung   der   Bundesförderung   für   Effiziente   Gebäude   ist   die Einhaltung   der  diesbezüglichen Förderrichtlinien. So wird hierfür unter anderem  die Ausführung einer förderfähigen Haustechnik sowie die entsprechende Ausführung der bauherrenseitigen Leistungen (z.B. Keller und -ausbau) vorausgesetzt. Die Förderrichtlinien sind  auch  Änderungen unterworfen, sodass die Förderfähigkeit jeweils im Einzelfall geprüft und objektspezifisch durch das Förderinstitut bestätigt werden muss. Auch können einzelne Programme ausgesetzt oder verändert werden. Die Regnauer Hausbau GmbH & Co KG kann keine Finanzierungs- oder Förderberatung durchführen.

Hausdaten

Hausart Icon
HausartZweifamilienhaus
Bauweise Icon
BauweiseHolz-Tafelbau
Anzahl Räume Icon
Anzahl Räume9
Baustil Icon
BaustilKlassische Familienhäuser
Fassade Icon
FassadeMaterialkombination, Putz, Holz
Außenmaße Icon
Außenmaße11.5 m x 7.7 m
Wohnfläche Icon
Wohnfläche239 m²
Dachform Icon
DachformSattel-/Giebeldach
Etagen Icon
Etagen2
Energiestandard Icon
EnergiestandardKFWG-Q
Immobilientyp Icon
ImmobilientypKundenhaus
Dachneigung Icon
Dachneigung20°
Kniestock Icon
Kniestock2.69 m
Mittlerer U-Wert Icon
Mittlerer U-Wert0.14 W/m²K
Hauseigenschaften Icon
HauseigenschaftenEinliegerwohnung, Balkon, Terasse
Hausdämmstoff Icon
HausdämmstoffHolzfaser- und Zellulosedämmstoffe
Heizungsart Icon
HeizungsartWärmepumpe (Luft, Wasser, oder beides)
Pfeil nach unten linksWir schaffen Platz für Ihre Träume

Grundriss

no description
Vitalhaus Starnberg Grundriss (EG)Wohnfläche EG: 123 m²
no description
Vitalhaus Starnberg Grundriss (OG)Wohnfläche OG: 116 m²

Unser Team vor Ort

Regnauer HausbauFachberater*in bei Regnauer Hausbau
Default Avatar
Wir beraten Sie gerne!Arrow Icon

Kataloge

Regnauer: Hauskatalog
Regnauer Hausbau

Regnauer: Hauskatalog


House and TreeParksHouse and PinMusterhausHouse on HandAnbieter