1. AnbieterArrow Icon
  2. Regnauer HausbauArrow Icon
  3. Vitalhaus Sigmaringen
Slide 1
Slide 2
Slide 3
Slide 4
Slide 5
no description
Regnauer HausbauVitalhaus Sigmaringen
homeVillen
livingArea237 m²
energyStandardKFWG-Q
Preis anfragen
Katalog bestellen

Vitalhaus Sigmaringen

Leben und Arbeiten in vitaler Umgebung.

Der Holzhaushersteller Regnauer zeigt mit dem Vitalhaus „Sigmaringen“ beispielhaft, wie sich durch ein modernes architektonisches Konzept das Miteinander der Generationen unter einem Dach verwirklichen lässt. Denn eigentlich besteht das Vitalhaus aus zwei Häusern, in denen drei Generationen genug Platz für ein entspanntes Familienleben finden können.

Klare Formen – An das zweigeschossige Haupthaus schließen sich der einstöckige Anbau sowie eine Garage mit Carport an. Konsequent stehen dabei die einheitliche weiße Fassadengestaltung sowie eine klare und funktionale Linienführung im Mittelpunkt. Der mittels Massivholz-Riegel-Konstruktion erstellte Baukörper umfasst insgesamt 237 Quadratmeter Wohnfläche.

Transparente Gestaltung – Lichtdurchflutet und einladend präsentiert sich das großzügig gestaltete Erdgeschoss: Der Lebensmittelpunkt mit Küche, Essbereich und Wohnzimmer bietet viel Platz für das Familienleben. Weiß ist hier die tonangebende Farbe von Wänden und Mobiliar und steht damit in einem wohltuenden Kontrast zu dem dunklen Holzfußboden. Ergänzt werden die Räumlichkeiten durch einen Abstell- und einen Hauswirtschaftsraum. Die klassische Raumaufteilung im Obergeschoss mit einem Elternschlafzimmer und zwei Kinderzimmern wird durch eine gut durchdachte Badezimmeraufteilung ergänzt: Ohne Umwege gelangt man vom elterlichen Schlafzimmer ins Badezimmer, das über die Dusche mit dem Kinderbadezimmer verbunden ist.

Gemeinsames Wohnen der Generationen Ein Windfang verbindet das Haupthaus mit dem eingeschossigen Anbau, für den vielfältige Nutzungsformen möglich sind. Ausgestattet mit Küche, Wohn- und Essbereich sowie Schlaf- und Badezimmer bietet sich das ebenerdige Gebäude besonders für die ältere Generation an, die nahe bei Kindern und Enkeln und doch eigenständig leben will.  Die kompakte Konzeption erlaubt aber ebenso eine Nutzung als erste eigene Wohnung für den Nachwuchs, als Ferienwohnung oder zur Dauervermietung.

Modernes Leben im Grünen – Durch die großflächige Fenstergestaltung öffnet sich der Wohnbereich nach außen und holt gleichzeitig die Natur ins Hausinnere. Entspannung finden lässt sich auf der breiten Terrasse, dabei dient der Anbau als Windschutz. An zwei Hausseiten entlang verläuft im Obergeschoss der Balkon, zu dem jedes Schlafzimmer einen Zugang hat.

Ausführung gemäß aktueller Regnauer Bauleistungs- und Ausstattungsbeschreibung. Weitere Informationen auf www.regnauer.de. Abbildungen können Sonderausstattung zeigen. Wir legen großen Wert darauf, Ihr Vitalhaus ganz nach Ihren persönlichen Wünschen zu gestalten. Gemäß Ihren Wünschen und Ihrer Grundstückssituation ergibt sich dann ein exakter Festpreis für Ihr Traumhaus. Daher beziehen sich die Preise auf eine Vitalausstattung ohne spezifische Sonderausstattung.

Voraussetzung   zur   Erlangung   der   Bundesförderung   für   Effiziente   Gebäude   ist   die Einhaltung   der  diesbezüglichen Förderrichtlinien. So wird hierfür unter anderem  die Ausführung einer förderfähigen Haustechnik sowie die entsprechende Ausführung der bauherrenseitigen Leistungen (z.B. Keller und -ausbau) vorausgesetzt. Die Förderrichtlinien sind  auch  Änderungen unterworfen, sodass die Förderfähigkeit jeweils im Einzelfall geprüft und objektspezifisch durch das Förderinstitut bestätigt werden muss. Auch können einzelne Programme ausgesetzt oder verändert werden. Die Regnauer Hausbau GmbH & Co KG kann keine Finanzierungs- oder Förderberatung durchführen.

Hausdaten

Hausart Icon
HausartZweifamilienhaus
Bauweise Icon
BauweiseHolz-Tafelbau
Anzahl Räume Icon
Anzahl Räume7
Baustil Icon
BaustilVillen
Fassade Icon
FassadePutz
Außenmaße Icon
Außenmaße11.48 m x 9.2 m
Wohnfläche Icon
Wohnfläche237 m²
Dachform Icon
DachformFlachdach
Etagen Icon
Etagen2
Energiestandard Icon
EnergiestandardKFWG-Q
Immobilientyp Icon
ImmobilientypKundenhaus
Dachneigung Icon
Dachneigung
Kniestock Icon
Kniestock2.51 m
Mittlerer U-Wert Icon
Mittlerer U-Wert0.14 W/m²K
Hauseigenschaften Icon
HauseigenschaftenGästezimmer, Einliegerwohnung, Balkon
Hausdämmstoff Icon
HausdämmstoffHolzfaser- und Zellulosedämmstoffe
Heizungsart Icon
HeizungsartWärmepumpe (Luft, Wasser, oder beides)
Pfeil nach unten linksWir schaffen Platz für Ihre Träume

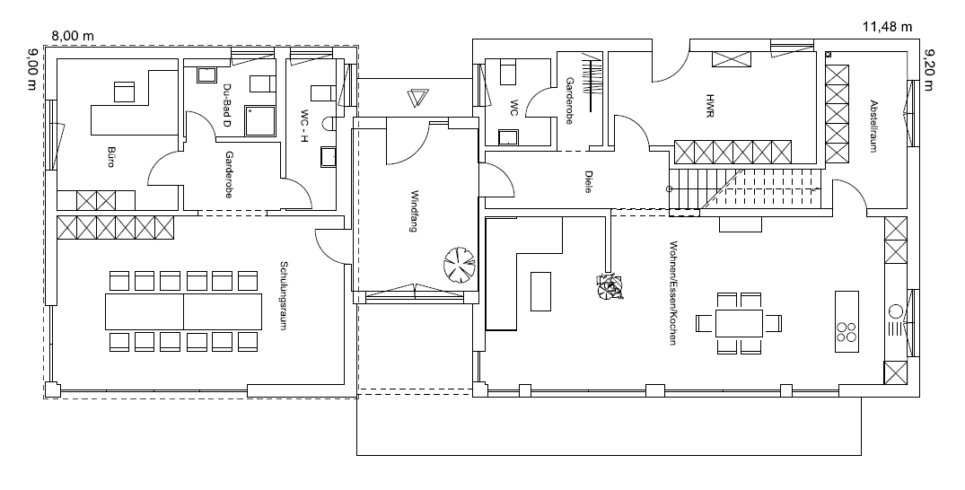
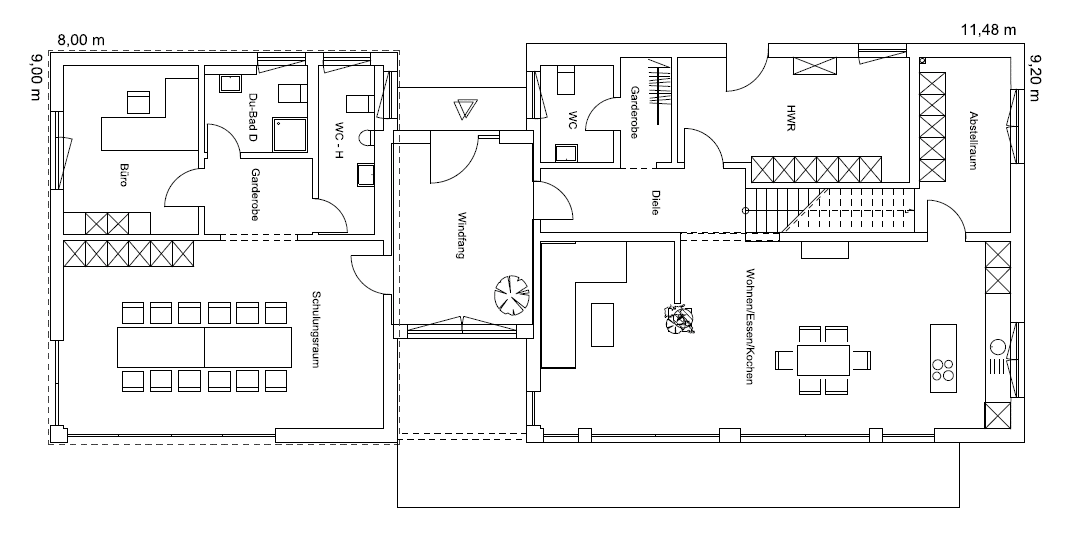
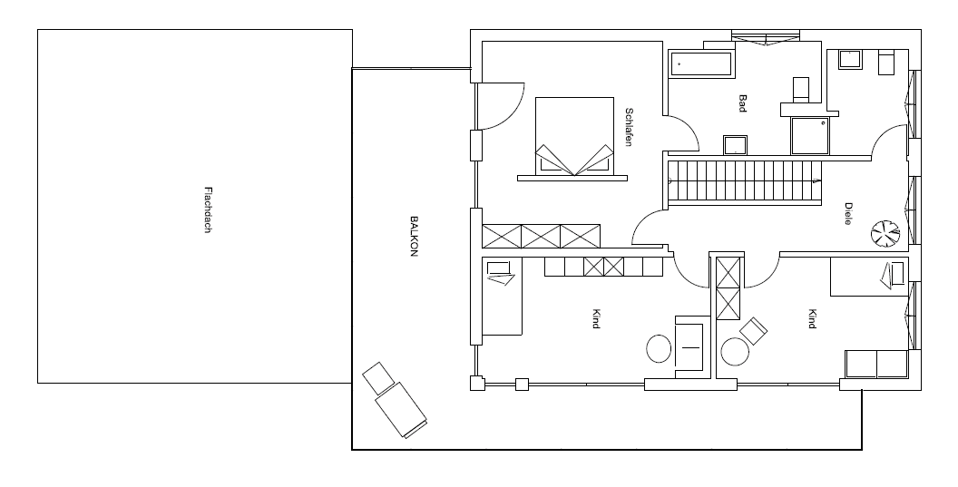
Grundriss

no description
Vitalhaus Sigmaringen Grundriss (EG)Wohnfläche EG: 154 m²
no description
Vitalhaus Sigmaringen Grundriss (DG)Wohnfläche DG: 83 m²

Unser Team vor Ort

Regnauer HausbauFachberater*in bei Regnauer Hausbau
Default Avatar
Wir beraten Sie gerne!Arrow Icon

Kataloge

Regnauer: Hauskatalog
Regnauer Hausbau

Regnauer: Hauskatalog


House and TreeParksHouse and PinMusterhausHouse on HandAnbieter