1. AnbieterArrow Icon
  2. Regnauer HausbauArrow Icon
  3. Vitalhaus Schwabach
Slide 1
Slide 2
Slide 3
Slide 4
Slide 5
Slide 6
Slide 7
Slide 8
Slide 9
no description
Regnauer HausbauVitalhaus Schwabach
homeKubushäuser im Bauhausstil
livingArea202 m²
energyStandardKFWG-Q
Preis anfragen
Katalog bestellen

Vitalhaus Schwabach

Einmal im Leben ein Haus zu bauen – diesen Traum haben viele. Familie Mahl hat ihn sich erfüllt. Zwar ist es nicht das Häuschen im Toskana-Stil geworden, dass das Ehepaar ursprünglich wollte, und das aufgrund des Bebauungsplans nicht erlaubt wurde. Doch in dem bewusst reduzierten Neubau mit Flachdach im Bauhausstil, den die Familie alternativ wählte, fühlen sich Andreas und Katrin nebst Söhnchen Tobias mindestens genauso wohl.

Weißer Putz, anthrazitfarbene Fassadenplatten und gleichfarbige Fensterrahmen sowie silberne Rollos an der Nordfassade und ähnlich getönte Jalousien und Raffstores im Süden verleihen dem Anwesen modernes Flair. Große Glasfronten leiten viel Tageslicht in die Räume, und dank des guten sommerlichen Hitzeschutzes der Regnauer Vitalwand mit Holzfaserdämmung sowie der im Gebäude integrierten Smart-Home-Technik ist auch die Verschattung so gut geregelt, dass es selbst an heißen Sommertagen immer angenehm kühl in den Räumen ist.

Im Mittelpunkt: die große Kochzone

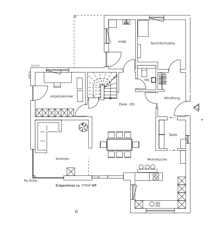
Gut 200 Quadratmeter Wohnfläche stehen den drei Bewohnern zur Verfügung, 115 Quadratmeter im Erdgeschoss, 85 Quadratmeter im ersten Stock. Auf einen Keller haben die Erwachsenen bewusst verzichtet. Die Haustechnik findet in einem Nebenraum im Erdgeschoss Platz. Ein kleines Büro und ein Gäste WC sowie ein Hauswirtschaftsraum sind ebenfalls auf dieser direkt von der angrenzenden Garage erschlossenen Ebene untergebracht.

Die Hauptrolle aber spielt die große offene Küche, die fließend in einen Ess- und Wohnbereich übergeht. „Wir kochen beide sehr gerne und genießen es sehr, zuhause neue Gerichte auszuprobieren“, verrät Andreas Mahl. Die Zutaten dafür lagern im angrenzenden Vorratsraum, der sowohl von der Diele als auch von der Küche aus begehbar ist.

Einmal pro Woche ist Saunaabend

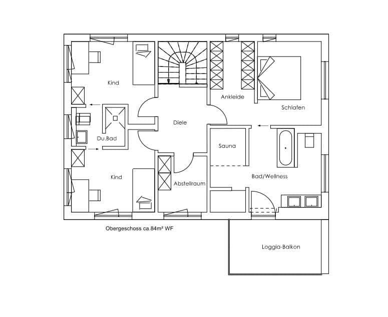
Das Obergeschoss haben die drei demokratisch aufgegliedert. Das Zimmer von Tobias grenzt an das Kinderbad an, das sich dieser mit eventuellen Gästen im angrenzenden Raum teilt. Direkt an den Treppenraum grenzt zudem ein kleiner Abstellraum an, den der Hausherr momentan als zusätzliches Büro nutzt.

Den Eltern steht neben dem Schlafzimmer noch eine kleine Ankleide zur Verfügung und nicht zuletzt ein Masterbad mit Wellnessbereich und eigener Sauna. Mindestens einmal die Woche ist ausgiebiger Wellnessabend. Dann bringt ein Elternteil den Sohn ins Bett, während der andere die finnische Sauna vorbereitet. Als Ruheraum dient der Balkon, auf dem zwei Liegen zum Relaxen einladen. „Neben diesem wöchentlichen Ritual nutzen wir auch das integrierte Infrarotelement in der Sauna regelmäßig, um abends einfach zu entspannen“, lächelt Mahl.

Entspannt bauen – mit einem Fertighausanbieter

Weil das Ehepaar schon den Hausbau möglichst entspannt angehen wollte, fiel die Wahl frühzeitig auf ein Fertighaus. „Wir wollten einfach keine unvorhersehbare Kosten haben und waren uns nicht sicher, was uns bei einem vollkommen frei geplanten Haus in dieser Hinsicht erwarten würde“, erzählt Katrin Mahl. Über Fertighauszeitschriften und Kataloge tasteten sich die beiden Bauherren gezielt an ihr Wunschobjekt heran.

„Sechs Firmen haben wir dann mit einer Art Leistungsverzeichnis angeschrieben und daraus unseren Favoriten gewählt“, fährt Katrin Mahl fort. Mit Hilfe eines einfachen CAD-Programms legte ihr Ehemann im Vorfeld der Gespräche zudem ein erstes Raumprogramm fest – und präsentierte dieses schließlich dem Kundenberater des Wunschfertighausherstellers Regnauer. „Der hat sich viel Mühe gegeben und so einige Abende mit uns verbracht, um unser Traumhaus zu kreieren“, erinnert sich die Hausherrin.

Umso schneller verliefen die restlichen Schritte von der Bemusterung über die Planung bis zum fertigen Traumhaus. „Alles war – auch im Hinblick auf die Kosten – sehr gut vorbereitet, sodass wir zügig vorangekommen sind“, denkt Andreas Mahl zurück. Schon ein Jahr nach Vertragsunterzeichnung konnte die Familie in ihr neues Zuhause einziehen.

Ein Muss: energiesparend bauen

Dass dieses sowohl energetisch als auch in punkto Haussteuerung eine Vorreiterrolle einnehmen sollte, stand für den Bauherrn von vornherein fest. Schließlich ist Andreas Mahl selbst in der Elektrobranche tätig, hat eine Handelsvertretung für elektrotechnische Medien und kennt sich mit daher bestens mit diesen Themen aus. Erste Wahl war daher ein Vitalhaus mit kontrollierter Wohnraumlüftung, das mit einer Wärmepumpe geheizt und – im Sommer – gekühlt wird. Eine Photovoltaikanlage ist ebenfalls eingeplant und vorgerichtet. Sobald Mahl Zeit dazu findet, möchte er sie selbst installieren.

Als Ingenieur hat Mahl die notwendigen Kenntnisse dazu. „Daher habe ich auch meine Smart Home Steuerung selbst projektiert und zusammen mit einem befreundeten Elektromeister eingebaut und programmiert“, lächelt er. „Obwohl ich aus heutiger Sicht eine im Markt angebotene Home Pilot Steuerung wählen würde. Doch zum Zeitpunkt des Hausbaus gab es diese Technik noch nicht.“

Smart Home: Bereit für die Zukunft

Die im Hause Mahl installierte zentrale Steuerung ist sowohl über den PC als auch über das iPad bedienbar und regelt neben der Heizung die Jalousien. In jedem Zimmer sind Temperaturfühler und kontrollierte Einzelraumsteuerungen installiert, die automatisch geregelt werden. Wird die Heizung zur Hauskühlung genutzt, stellt die Automatik ebenfalls auf Kühlbetrieb um. „Wir haben das einmal eingestellt und seither nichts verändert. Es funktioniert einfach von selbst“, erzählt der Hausherr.

Die elektrischen Rollläden und Jalousien werden zum einen zeitabhängig und zum anderen abhängig von der Außenhelligkeit bzw. Außentemperatur gesteuert. Zu festgelegten Zeiten fahren die Rollläden hoch und runter, an Wochentagen um sechs und um 22 Uhr, am Wochenende um acht und um 22 Uhr. „Zusätzlich beeinflussen die Jahreszeiten die Steuerung. Wenn es draußen noch dunkel ist, bleiben die Rollläden unten. Und auch der Sonnenstand, also die Lichtintensität und die Außentemperaturen fließen in die Steuerung ein.

Ebenfalls mit der Smart Home Steuerung verbunden sind die in den einzelnen Räumen installierten Rauchmelder. Im Brandfall würden sämtliche Rollläden automatisch hochfahren, sämtliche Lichter angehen und die Sirene losheulen, sodass sich die Bewohner rechtzeitig retten könnten und die Feuerwehr sofort alarmiert wäre.

Die  Beleuchtung im Flur und im WC wird mit Präsenzmeldern gesteuert. Die Videokamera an der Haustüre lässt sich über die Telefonanlage bedienen. Und auch der Einbruchsschutz respektive die Innenraumüberwachung regelt Familie Mahl mit Hilfe der Smart-Home-Anlage und mit Präsenzmeldern. In jedem Zimmer sind zudem Netzwerk- und Antennensteckdosen installiert, sodass auch künftige Ansprüche an die Haustechnik problemlos erfüllt werden können. „Ein Smart Home muss automatisch funktionieren, ohne dass ich selbst etwas mache“, lächelt der Bauherr. Auch diesen Traum hat er sich bereits erfüllt.

Mehr Infos auf regnauer.de.

Ausführung gemäß aktueller Regnauer Bauleistungs- und Ausstattungsbeschreibung. Weitere Informationen auf www.regnauer.de. Abbildungen können Sonderausstattung zeigen. Wir legen großen Wert darauf, Ihr Vitalhaus ganz nach Ihren persönlichen Wünschen zu gestalten. Gemäß Ihren Wünschen und Ihrer Grundstückssituation ergibt sich dann ein exakter Festpreis für Ihr Traumhaus. Daher beziehen sich die Preise auf eine Vitalausstattung ohne spezifische Sonderausstattung.

Voraussetzung   zur   Erlangung   der   Bundesförderung   für   Effiziente   Gebäude   ist   die Einhaltung   der  diesbezüglichen Förderrichtlinien. So wird hierfür unter anderem  die Ausführung einer förderfähigen Haustechnik sowie die entsprechende Ausführung der bauherrenseitigen Leistungen (z.B. Keller und -ausbau) vorausgesetzt. Die Förderrichtlinien sind  auch  Änderungen unterworfen, sodass die Förderfähigkeit jeweils im Einzelfall geprüft und objektspezifisch durch das Förderinstitut bestätigt werden muss. Auch können einzelne Programme ausgesetzt oder verändert werden. Die Regnauer Hausbau GmbH & Co KG kann keine Finanzierungs- oder Förderberatung durchführen.

Hausdaten

Hausart Icon
HausartEinfamilienhaus
Bauweise Icon
BauweiseHolz-Tafelbau
Anzahl Räume Icon
Anzahl Räume6
Baustil Icon
BaustilKubushäuser im Bauhausstil
Fassade Icon
FassadePutz
Außenmaße Icon
Außenmaße12.15 m x 8.5 m
Wohnfläche Icon
Wohnfläche202 m²
Dachform Icon
DachformFlachdach
Etagen Icon
Etagen2
Energiestandard Icon
EnergiestandardKFWG-Q
Immobilientyp Icon
ImmobilientypKundenhaus
Dachneigung Icon
Dachneigung
Mittlerer U-Wert Icon
Mittlerer U-Wert0.14 W/m²K
Hauseigenschaften Icon
HauseigenschaftenTerasse
Hausdämmstoff Icon
HausdämmstoffHolzfaser- und Zellulosedämmstoffe
Heizungsart Icon
HeizungsartWärmepumpe (Luft, Wasser, oder beides)
Pfeil nach unten linksWir schaffen Platz für Ihre Träume

Grundriss

eg_schwabach.png
Vitalhaus Schwabach Grundriss (EG)Wohnfläche EG: 118 m²
no description
Vitalhaus Schwabach Grundriss (OG)

Unser Team vor Ort

Regnauer HausbauFachberater*in bei Regnauer Hausbau
Default Avatar
Wir beraten Sie gerne!Arrow Icon

Kataloge

Regnauer: Hauskatalog
Regnauer Hausbau

Regnauer: Hauskatalog


House and TreeParksHouse and PinMusterhausHouse on HandAnbieter