1. AnbieterArrow Icon
  2. Regnauer HausbauArrow Icon
  3. Vitalhaus San Bertolomeo
Slide 1
Slide 2
Slide 3
Slide 4
Slide 5
Slide 6
Slide 7
Slide 8
Slide 9
no description
Regnauer HausbauVitalhaus San Bertolomeo
homeKubushäuser im Bauhausstil
livingArea229 m²
energyStandardKFWG-Q
Preis anfragen
Katalog bestellen

Vitalhaus San Bertolomeo

Made in Germany: In der Provinz Bergamo hat eine italienische Familie auf ein Haus von Regnauer Hausbau gesetzt. 

Im traditionellen, modern übersetzten Stil der Umgebung erbaut, überzeugt das Anwesen mit deutscher Qualität.

Am Horizont die Berge, in Blickweite Wiesen und Felder, zum Greifen nah ein kleines Wäldchen: Eine idyllischere Umgebung hätte sich Familie Bertolazzi kaum wünschen können. So ist es kein Wunder, dass das Paar das eigene Zuhause so harmonisch wie möglich in die Natur eingliedern wollte. Die beiden wünschten sich traditionelle, in der Gegend beheimatete Materialien für ihr Eigenheim – Bruchstein und Holz – und träumten von einem Anwesen, das Ruhe und Gemütlichkeit ausstrahlt. Ein Haus mit traditionellem Charakter sollte es werden, und doch sollte es nicht altmodisch wirken, sondern modern und zeitgemäß. Auch Energieeffizienz war den Bauherren wichtig, ebenso ein hervorragendes Raumklima, ein gut gegliederter Grundriss und nicht zuletzt großzügige, lichtdurchflutete Räumlichkeiten. Dabei legte die Familie Wert auf höchste Bauqualität und eine zügige Realisierung. Für ihr Traumhaus beauftragte sie daher kein einheimisches Bauunternehmen, sondern ließ das Gebäude nach dem Entwurf des italienischen Architekturbüros Ar. Tech Architettingegneri S.R.L von Regnauer Hausbau in Fertigbauweise erstellen. Während die Fundamente in Italien gegossen wurden, wurde der Bungalow selbst am Chiemsee in
Deutschland produziert und die einzelnen Elemente mit dem Laster gen Süden transportiert, wo sie binnen wenigen Tagen aufgestellt wurden.

Repräsentativ und großzügig
Mit rund 230 qm Wohnfläche hat das Anwesen eine repräsentative Größe erhalten. An der Fassade lassen Holz und verputzte Flächen ein interessantes Wechselspiel entstehen. Dazwischen nehmen mit Bruchsteinen bekleidete Wandflächen Bezug auf dieses in der Gegend traditionell vorherrschende Baumaterial. Auch die Farbtönung – grau und weiß – erinnert an die historischen Palazzi von Bergamo. Demgegenüber steht die moderne Gebäudeform in Gestalt eines Bungalows mit Flachdach und einzelnen Pultdachelementen.
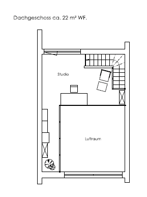
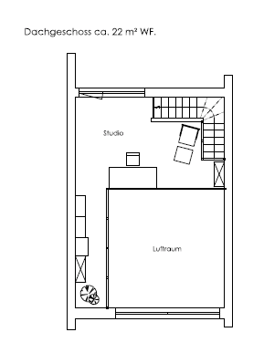
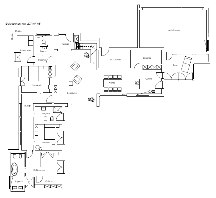
Drinnen überrascht der Neubau durch seine durchdachte, großflächige Grundrisskonzeption: Im Zentrum des L-förmigen Bauwerks steht der Richtung Süden gewandte Aufenthaltsraum mit der angrenzenden Koch- und Esszone und den zugehörigen Nebenräumen sowie einem eigenen Fitness- und Relaxbereich im Ostflügel. Im Norden befindet sich der Hauswirtschaftsraum. Den Westflügel nehmen die Schlafräume mit den zugehörigen Bädern ein. Die Fenster des Elternschlafzimmers und eines Kinderzimmers weisen Richtung Osten, sodass die Bewohner die Morgensonne genießen können. Oberhalb des Wohnbereichs erhielt das Anwesen eine zweite Ebene: Eine umlaufende Galerie erschließt ein geräumiges Studio, das bei Bedarf mit dem darunter liegenden Bereich zu einer separaten Einliegerwohnung kombiniert werden kann.

Ökologischer Vorbildcharakter
Die helle Holzbalkendecke in Kombination mit dem hellen Holzfußboden verleiht den ansonsten weiß gehaltenen Räumlichkeiten italienischen Charme. Geheizt wird mit einer Sole-Wasser-Wärmepumpe in Kombination mit Geothermie. An warmen Sommertagen wird das Gebäude auf diese Weise vorgekühlt, im kühlen Winter wird es vorgewärmt, sodass angesichts der hochwertig mit Holzfaserdämmung ausgestatteten Passivhauswände nur sehr wenig Energie für die Temperierung der Räume benötigt wird. Die in allen Räumen verlegte Fußbodenheizung sorgt im Winter für warme Füße. Der offene Kamin im Wohnraum garantiert sichtbare Gemütlichkeit. Eine Photovoltaikanlage mit 3 kW Peak Leistung liefert Strom. Eine Zisterne sammelt das Wasser, das im Sommer für die Bewässerung des Gartens benötigt wird. Energetisch fällt das Gebäude in die italienische „Classe A“ und entspricht damit der höchsten Energieeffizienzklasse des Landes. Ökologisch betrachtet, wird es durch den Baustoff Holz geprägt., dem laut Signora Bertolazzi „besten Naturmaterial“. Und auch im Vergleich mit den Häusern der Umgebung schneidet der Neubau hervorragend ab. „Ein traditionelles Haus fühlt sich kälter und feuchter an“, erklärt die Bauherrin. Ein Haus aus Holz entspreche hingegen einer völlig anderen Art zu leben. Dolce Vita in Italien.

Weitere Infos auf regnauer.de.

Ausführung gemäß aktueller Regnauer Bauleistungs- und Ausstattungsbeschreibung. Weitere Informationen auf www.regnauer.de. Abbildungen können Sonderausstattung zeigen. Wir legen großen Wert darauf, Ihr Vitalhaus ganz nach Ihren persönlichen Wünschen zu gestalten. Gemäß Ihren Wünschen und Ihrer Grundstückssituation ergibt sich dann ein exakter Festpreis für Ihr Traumhaus. Daher beziehen sich die Preise auf eine Vitalausstattung ohne spezifische Sonderausstattung.

Voraussetzung   zur   Erlangung   der   Bundesförderung   für   Effiziente   Gebäude   ist   die Einhaltung   der  diesbezüglichen Förderrichtlinien. So wird hierfür unter anderem  die Ausführung einer förderfähigen Haustechnik sowie die entsprechende Ausführung der bauherrenseitigen Leistungen (z.B. Keller und -ausbau) vorausgesetzt. Die Förderrichtlinien sind  auch  Änderungen unterworfen, sodass die Förderfähigkeit jeweils im Einzelfall geprüft und objektspezifisch durch das Förderinstitut bestätigt werden muss. Auch können einzelne Programme ausgesetzt oder verändert werden. Die Regnauer Hausbau GmbH & Co KG kann keine Finanzierungs- oder Förderberatung durchführen.

Hausdaten

Hausart Icon
HausartEinfamilienhaus
Bauweise Icon
BauweiseHolz-Tafelbau
Anzahl Räume Icon
Anzahl Räume7
Baustil Icon
BaustilKubushäuser im Bauhausstil
Fassade Icon
FassadePutz, Klinker
Außenmaße Icon
Außenmaße21.45 m x 20 m
Wohnfläche Icon
Wohnfläche229 m²
Dachform Icon
DachformFlachdach
Etagen Icon
Etagen1
Energiestandard Icon
EnergiestandardKFWG-Q
Immobilientyp Icon
ImmobilientypKundenhaus
Dachneigung Icon
Dachneigung16°
Kniestock Icon
Kniestock2.7 m
Mittlerer U-Wert Icon
Mittlerer U-Wert0.14 W/m²K
Hauseigenschaften Icon
HauseigenschaftenViel Glas, Gästezimmer, Turm, Terasse
Hausdämmstoff Icon
HausdämmstoffHolzfaser- und Zellulosedämmstoffe
Heizungsart Icon
HeizungsartWärmepumpe (Luft, Wasser, oder beides)
Pfeil nach unten linksWir schaffen Platz für Ihre Träume

Grundriss

no description
Vitalhaus San Bertolomeo Grundriss (EG)Wohnfläche EG: 207 m²
no description
Vitalhaus San Bertolomeo Grundriss (OG)Wohnfläche OG: 22 m²

Unser Team vor Ort

Regnauer HausbauFachberater*in bei Regnauer Hausbau
Default Avatar
Wir beraten Sie gerne!Arrow Icon

Kataloge

Regnauer: Hauskatalog
Regnauer Hausbau

Regnauer: Hauskatalog


House and TreeParksHouse and PinMusterhausHouse on HandAnbieter