1. AnbieterArrow Icon
  2. Regnauer HausbauArrow Icon
  3. Vitalhaus Reutlingen
Slide 1
Slide 2
Slide 3
Slide 4
Slide 5
Slide 6
Slide 7
Slide 8
no description
Regnauer HausbauVitalhaus Reutlingen
homeLandhäuser
livingArea160 m²
energyStandardKFWG-Q
Preis anfragen
Katalog bestellen

Vitalhaus Reutlingen

Individueller Raum für jeden, Platz für die Arbeit und Treffpunkte für gemeinsam genossene Stunden: So sah das Konzept eines Neubaus in Reutlingen aus.

Schmale Fensterbänder zur Straße hin, großflächige Verglasung auf der Sonnenseite des Hauses: Maximale Energieeffizienz war ein wichtiger Gesichtspunkt für Familie Huber, den Bauherren eines Einfamilienhauses in Reutlingen, der sich in der Außenhaut des Neubaus auch optisch niederschlägt.

Eine Photovoltaikanlage auf dem Dach des Hauses versorgt das KfW-Haus mit Strom. Geheizt wird mit Hilfe einer Luft-Wasser-Wärmepumpe. Die Verteilung der Wärme erfolgt über eine Fußbodenheizung, nicht nur in den oberen Etagen, sondern auch im Hobbyraum und im Büro im Untergeschoss. Die Vitalwand garantiert durch ihre natürliche Holzfaserdämmung ganzjährig ein angenehmes Raumklima. So bewirkt der Wandaufbau dank der damit verbundenen Phasenverschiebung, dass die sommerliche Mittagshitze die Bauteile so langsam durchwandert, dass sie die Innenräume erst in den kühleren Abend- und Nachtstunden erreicht. Dann jedoch sind die Temperaturen draußen bereits wieder so weit gesunken, sodass die Räume ihr wohltuend kühles Raumklima behalten. Im Winter hingegen sorgt die hohe Dämmqualität für niedrige Heizkosten. Auch auf das Thema Sicherheit wurde bei der Konstruktion geachtet: Weil Reutlingen in einem durch Erdbeben gefährdeten Gebiet liegt, wurde das Tragwerk des Neubaus nochmals verstärkt respektive das Gebäude zusätzlich verankert, um jeglichen Risiken vorzubeugen.

Zur Straße hin zurückhaltend, offenherzig Richtung Garten
Optisch ist von diesen Maßnahmen von außen nichts zu sehen. Die weiße Putzfassade mit den anthrazitgrauen Fenstern unter dem markanten Pultdach vermittelt Ruhe und schlichte Gemütlichkeit, während partiell eingesetzte rote Holzverschalung fröhliche Akzente ins Spiel bringt. An der Straßenfront beweist das Gebäude mit Hilfe einer weitgehend geschlossenen Fassade Zurückhaltung der Öffentlichkeit gegenüber. Im privaten Umfeld respektive auf der Gartenseite versprüht es heitere Lebensfreude. Hier lädt ein weit vorgezogenes Pultdach zum genussvollen Aufenthalt auf dem darunter entstandenen Balkon bzw. der Terrasse ein. Die Freifläche im Erdgeschoss nutzt die Familie gemeinsam, die Balkone dürfen die beiden Söhne ausschließlich für sich beanspruchen. So wird bei Treffen mit Freunden keiner gestört.

Wer das Haus erstmals betritt, ist verblüfft, wie weitläufig der Eingangsbereich wirkt. Zu verdanken ist dies nicht nur der aus Stahlwangen und Trittstufen aus Holz bestehenden leichten Treppenkonstruktion, sondern auch einem hohen Glasfenster, das sich über zwei Stockwerke erstreckt und entsprechend viel Licht in die Diele einfallen lässt. Rechter Hand bietet der Grundriss Raum für ein Arbeitszimmer. Falls gewünscht, kann das Büro im Erdgeschoss irgendwann auch in ein kleines Schlafzimmer verwandelt werden, sodass diese Ebene im Alter barrierearm bewohnt werden kann. Gerade aus geht es in den Wohn-, Ess- und Kochbereich. Glastüren führen sowohl aus der Küche, als auch aus dem Wohnraum auf die im Sommer gern genutzte vorgelagerte Terrasse. Im Winter sorgt der offene Kamin im Zentrum dieses Zimmers für Gemütlichkeit. Das Obergeschoss teilen sich die Eltern gemeinsam mit den Söhnen. Das große Badezimmer nutzen alle gemeinsam. Das Ehepaar gönnte sich zudem noch einen Ankleideraum. Und jeder – die Söhne auf der einen
Hausseite, die Eltern auf der anderen – erhielt im Zuge der Planung sogar noch einen Balkon. Im Untergeschoss sind der Technikraum und ein Vorratsbereich untergebracht. Daneben war hier noch Platz für einen Hobbyraum sowie ein zweites Büro. Dies macht es möglich, dass die beiden Erwachsenen jeweils einen eigenen Arbeitsbereich für sich beanspruchen können – und ungestört vom Rest der Familie der beruflichen Tätigkeit nachgehen, während das Zentrum des Neubaus im Mittelpunkt gemeinsam verlebter fröhlicher Stunden stehen darf.

Weitere Inspirationen finden Sie auf regnauer.de.

Ausführung gemäß aktueller Regnauer Bauleistungs- und Ausstattungsbeschreibung. Weitere Informationen auf www.regnauer.de. Abbildungen können Sonderausstattung zeigen. Wir legen großen Wert darauf, Ihr Vitalhaus ganz nach Ihren persönlichen Wünschen zu gestalten. Gemäß Ihren Wünschen und Ihrer Grundstückssituation ergibt sich dann ein exakter Festpreis für Ihr Traumhaus. Daher beziehen sich die Preise auf eine Vitalausstattung ohne spezifische Sonderausstattung.

Voraussetzung   zur   Erlangung   der   Bundesförderung   für   Effiziente   Gebäude   ist   die Einhaltung   der  diesbezüglichen Förderrichtlinien. So wird hierfür unter anderem  die Ausführung einer förderfähigen Haustechnik sowie die entsprechende Ausführung der bauherrenseitigen Leistungen (z.B. Keller und -ausbau) vorausgesetzt. Die Förderrichtlinien sind  auch  Änderungen unterworfen, sodass die Förderfähigkeit jeweils im Einzelfall geprüft und objektspezifisch durch das Förderinstitut bestätigt werden muss. Auch können einzelne Programme ausgesetzt oder verändert werden. Die Regnauer Hausbau GmbH & Co KG kann keine Finanzierungs- oder Förderberatung durchführen.

Hausdaten

Hausart Icon
HausartEinfamilienhaus
Bauweise Icon
BauweiseHolz-Tafelbau
Anzahl Räume Icon
Anzahl Räume5
Baustil Icon
BaustilLandhäuser
Fassade Icon
FassadeHolz, Putz, Materialkombination
Außenmaße Icon
Außenmaße10.3 m x 7.7 m
Wohnfläche Icon
Wohnfläche160 m²
Dachform Icon
DachformPultdach
Etagen Icon
Etagen2
Energiestandard Icon
EnergiestandardKFWG-Q
Pfeil nach unten linksWir schaffen Platz für Ihre Träume

Grundriss

no description
Vitalhaus Reutlingen Grundriss (EG)
no description
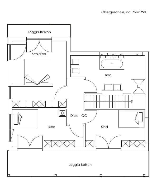
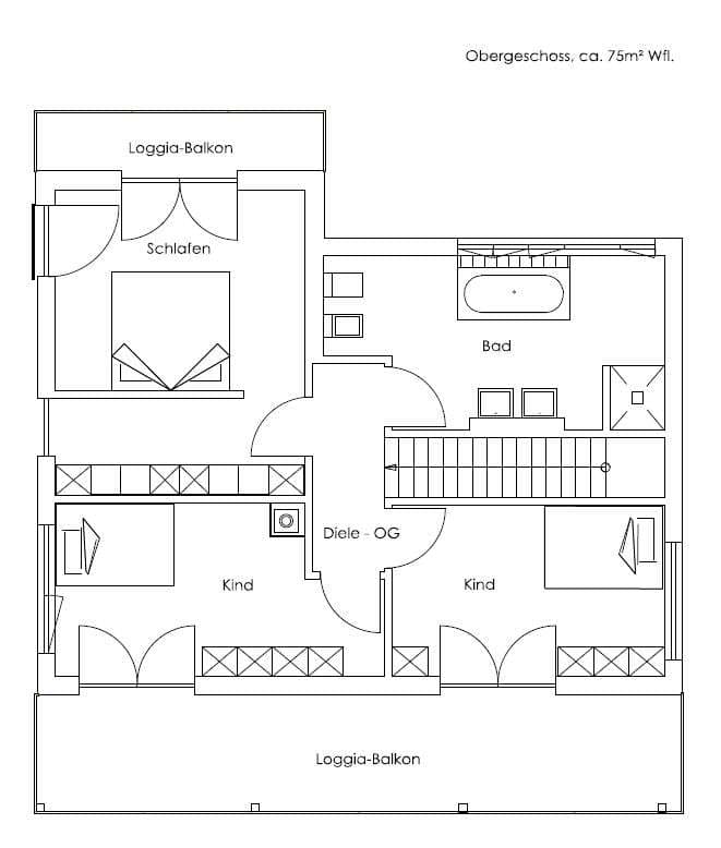
Vitalhaus Reutlingen Grundriss (DG)

Unser Team vor Ort

Regnauer HausbauFachberater*in bei Regnauer Hausbau
Default Avatar
Wir beraten Sie gerne!Arrow Icon

Kataloge

Regnauer: Hauskatalog
Regnauer Hausbau

Regnauer: Hauskatalog


House and TreeParksHouse and PinHäuser liveHouse on HandAnbieter