1. AnbieterArrow Icon
  2. Regnauer HausbauArrow Icon
  3. Vitalhaus Rauschberg
Slide 1
Slide 2
Slide 3
Slide 4
Slide 5
Slide 6
no description
Regnauer HausbauVitalhaus Rauschberg
homeBungalow
livingArea108 m²
energyStandardKFWG-Q
Preis anfragen
Katalog bestellen

Vitalhaus Rauschberg

Haus Rauschberg ist beides: ein Traumhaus und ein kompakter Bungalow.

Wer im Alter nochmals baut, baut anders als in jüngeren Jahren. Eine Bauherrin aus Prien am Chiemsee setzte dabei auf einen Bungalow. Der steht im Garten ihrer Mutter und ist zum Mittelpunkt einer Familie mit vier Generationen geworden.

Manchmal bevölkern zwei Generationen den Bungalow von Rosi Schatz, manchmal sind es drei oder gar vier, doch eigentlich hat sie ihn ganz für sich alleine gebaut. Es ist ein Zuhause für die dritte Lebensphase, komplett barrierefrei und energetisch auf dem neuesten Stand. „Die Barrierefreiheit habe ich auch gleich ausgetestet“, lacht die Besitzerin. Bald nach ihrem Einzug brach sie sich ein Bein und durfte sechs Wochen lang nicht laufen. Stattdessen rollte sie in einem Rollstuhl durch die Räume, von der Küche bis ins Bad und hinein in die bodengleiche Dusche. „Das Haus hat perfekt funktioniert“, erzählt sie, „genau so, wie ein altersgerechtes Haus eben funktionieren sollte.“

Das ist umso wichtiger, als ihre 88-jährige Mutter zu den täglichen Gästen der Bauherrin gehört. Sie war es auch, die den in Holzfertigbauweise errichteten Neubau initiierte. Seit vielen Jahren wohnte die Seniorin alleine in einem Anwesen in Prien am Chiemsee, doch allmählich benötigte sie in bestimmten Lebensbereichen Betreuung. „Um sie besser unterstützen zu können, hatten wir beide anfänglich überlegt, dass ich zu ihr ziehe, doch in diesem Fall hätte meine Mutter sich sehr einschränken müssen. Also schlug sie vor, dass ich in ihrem Garten ein zweites Haus baue und mich dort niederlasse“, erklärt Schatz. Platz für die Verdichtung war zum Glück genügend da, und auch jetzt ist noch genügend Freifläche vorhanden, um den Garten genießen zu können.

Trotzdem kann Uroma Schatz schwellenlos und direkt von ihrem Wohnzimmer in den Eingangsbereich ihrer Tochter gehen – und hier hält sie sich auch gerne zum Frühstück auf und genießt den Kontakt zur Tochter. Das sei ihr sogar lieber als in den eigenen vier Wänden betreut zu werden, lässt diese wissen. Die Enkelin von Rosi Schatz wiederum hat im Neubau sogar ein eigenes Zimmer, direkt neben dem Schlafzimmer der Hausherrin. Dort wohnt sie immer dann, wenn ihre Eltern einmal länger arbeiten müssen und Oma Schatz zur Kinderbetreuung einspringt. Auch ein kleines Büro, ein Abstellraum und ein Bad sowie ein Gäste-WC finden in dem Bungalow Platz. Am liebsten aber halten sich alle gemeinsam im großen Koch-, Ess- und Wohnraum auf.

Gebaut für die Zukunft: klimaneutral und effizient

Wenn es kalt ist, heizt die Bauherrin den Ofen an. Viel Brennstoff braucht sie dafür nicht, denn das mit einer Lüftungsanlage mit Wärmerückgewinnung ausgestattete Holzhaus ist so gut gedämmt, dass es auch im Winter kaum beheizt werden muss. „Ich habe in meinem früheren Zuhause ebenfalls mit Holz geheizt. Vier Ster Holz habe ich im Schnitt jährlich verbraucht, im neuen Haus reichte im letzten Winter ein Ster Holz aus. Und dabei habe ich aufgrund des Beinbruchs jeden Tag daheim verbracht“, berichtet Schatz. Um möglichst autark zu sein, hat sie sich zudem eine Photovoltaikanlage mit 7,5 m2 Fläche auf das nach Süden ausgerichtete Dach montieren lassen. Der Jahresertrag beträgt rund 795 kWh. Das ist mehr als genug, um die Nebenkosten des Gebäudes auf ein Minimum schrumpfen zu lassen.

Dabei bewohnt die Hausherrin insgesamt 104 m2 ebenerdige Fläche. Auf einen Keller hat sie verzichtet. Als Lagerfläche genügt der Abstellraum und die gesamte Technik findet im HA-Raum direkt neben den Eingang Platz. „Das passt perfekt. Selbst wenn man mit dem Rollstuhl unterwegs ist“, schmunzelt sie. Ihr Haus ist genau so geworden, wie sie es sich gewünscht hat: ein individuelles Fertighaus.

Vom ersten Gedanken an jenen Hausbau bis zum Einzug dauerte es nur zwölf Monate, erinnert sich Schatz. Dazwischen lagen einige Besuche in verschiedenen Musterhausparks, die Entscheidung für das Holzhaus von Regnauer und die Gespräche mit den dortigen Beratern. „Weil meine Söhne beruflich stark eingespannt ist und ich selbst nicht mehr die Jüngste bin, stand die Entscheidung für ein Fertighaus von Anfang an fest“, betont sie. Dass dieses aus Holz errichtet werden sollte, war ebenfalls schnell klar. Dafür sprach schon das angenehme Wohnklima, das sich mit diesem Material erzielen lässt.

„Mein Ansprechpartner bei Regnauer hat sehr viele gute Vorschläge gemacht und mir zum Beispiel zur Holzfassade geraten“, erzählt sie. Zum Glück. Heute erntet die Hausherrin von allen Seiten Lob für genau diese Fassade. „Viele Menschen finden sie schön und ich bin daher froh, dass ich diesem Vorschlag gefolgt bin“, fährt sie fort. „Denn wenn das Wetter gut ist, sitze ich abends am liebsten auf meiner Terrasse vor jener Holzfassade und schaue in den Garten und freue mich über ein Zuhause, das genau so geworden ist, wie ich es wollte.“

Weitere Infos auf regnauer.de.

Ausführung gemäß aktueller Regnauer Bauleistungs- und Ausstattungsbeschreibung. Weitere Informationen auf www.regnauer.de. Abbildungen können Sonderausstattung zeigen. Wir legen großen Wert darauf, Ihr Vitalhaus ganz nach Ihren persönlichen Wünschen zu gestalten. Gemäß Ihren Wünschen und Ihrer Grundstückssituation ergibt sich dann ein exakter Festpreis für Ihr Traumhaus. Daher beziehen sich die Preise auf eine Vitalausstattung ohne spezifische Sonderausstattung.

Voraussetzung   zur   Erlangung   der   Bundesförderung   für   Effiziente   Gebäude   ist   die Einhaltung   der  diesbezüglichen Förderrichtlinien. So wird hierfür unter anderem  die Ausführung einer förderfähigen Haustechnik sowie die entsprechende Ausführung der bauherrenseitigen Leistungen (z.B. Keller und -ausbau) vorausgesetzt. Die Förderrichtlinien sind  auch  Änderungen unterworfen, sodass die Förderfähigkeit jeweils im Einzelfall geprüft und objektspezifisch durch das Förderinstitut bestätigt werden muss. Auch können einzelne Programme ausgesetzt oder verändert werden. Die Regnauer Hausbau GmbH & Co KG kann keine Finanzierungs- oder Förderberatung durchführen.

Hausdaten

Hausart Icon
HausartEinfamilienhaus
Bauweise Icon
BauweiseHolz-Tafelbau
Anzahl Räume Icon
Anzahl Räume4
Baustil Icon
BaustilBungalow
Fassade Icon
FassadeHolz, Putz, Materialkombination
Außenmaße Icon
Außenmaße14.36 m x 9.01 m
Wohnfläche Icon
Wohnfläche108 m²
Dachform Icon
DachformSattel-/Giebeldach
Etagen Icon
Etagen1
Energiestandard Icon
EnergiestandardKFWG-Q
Immobilientyp Icon
ImmobilientypKundenhaus
Dachneigung Icon
Dachneigung18°
Kniestock Icon
Kniestock2.5 m
Mittlerer U-Wert Icon
Mittlerer U-Wert0.14 W/m²K
Hauseigenschaften Icon
HauseigenschaftenTerasse, Gästezimmer
Hausdämmstoff Icon
HausdämmstoffHolzfaser- und Zellulosedämmstoffe
Heizungsart Icon
HeizungsartWärmepumpe (Luft, Wasser, oder beides)
Pfeil nach unten linksWir schaffen Platz für Ihre Träume

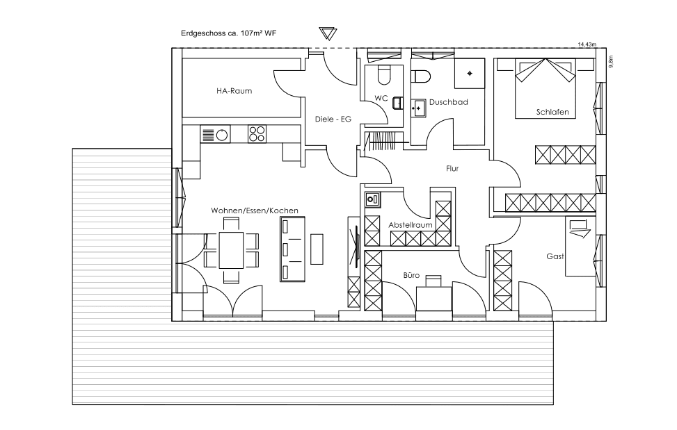
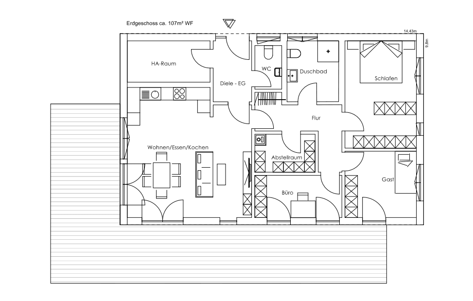
Grundriss

eg_rauschberg.png
Vitalhaus Rauschberg Grundriss (EG)Wohnfläche EG: 108 m²

Unser Team vor Ort

Regnauer HausbauFachberater*in bei Regnauer Hausbau
Default Avatar
Wir beraten Sie gerne!Arrow Icon

Kataloge

Regnauer: Hauskatalog
Regnauer Hausbau

Regnauer: Hauskatalog


House and TreeParksHouse and PinMusterhausHouse on HandAnbieter