1. AnbieterArrow Icon
  2. Regnauer HausbauArrow Icon
  3. Vitalhaus Pasing
Slide 1
Slide 2
Slide 3
Slide 4
Slide 5
Slide 6
Slide 7
Slide 8
no description
Regnauer HausbauVitalhaus Pasing
homeKubushäuser im Bauhausstil
livingArea186 m²
energyStandardKFWG-Q
Preis anfragen
Katalog bestellen

Vitalhaus Pasing

Dieses Vitalhaus in schnörkellosem Design besticht durch seine cleveren Raum- und Detaillösungen.

Warum sollen wir weiter eine hohe Miete zahlen, wenn der Zinsspiegel für Baugeld so niedrig ist? Sollten wir nicht besser in ein Eigenheim investieren? Als Andreas Eckner sich diese Fragen stellte, hatte er lange – und gerne – in einer luxuriösen Wohnung in München gewohnt. Aber irgendwann war der Zeitpunkt gekommen, an dem der Familienvater sich in einem eigenen Zuhause wiederfinden wollte. Zumal sich bereits ein passendes Grundstück am Stadtrand im Familienbesitz befand. Es eignete sich perfekt für den Bau eines Einfamilienhauses im kubistischen Stil, genauso, wie es sich der Bauherr vorstellte.

Noch besser: Ein Paar aus dem Freundeskreis hatte gerade am Tegernsee gebaut. Die beiden hatten auf Holz gesetzt und Regnauer Hausbau mit dem Bau beauftragt. Sie waren zufrieden. Und Eckner gefielen die Qualität des Fertighauses, dessen individuelle Planung und die Herangehensweise des Unternehmens an das Bauprojekt. Erste Gespräche mit den Verkaufsberatern von Regnauer fanden statt. „Und damit war die Hürde gefallen“, lächelt der Bauherr.

Die Zukunft im Blick
„Ich hatte eine genaue Vorstellung, wie ich das Haus gestalten wollte, und viele Ideen. Die konnte ich problemlos in die Planung einbringen“, erzählt er weiter. Ganz wichtig war ihm die Möglichkeit, zwei Einheiten in dem Gebäude unterzubringen, die wahlweise zusammen geschalten oder getrennt werden können. „Ich genieße den Platz, den wir als fünfköpfige Familie nun im gesamten Haus haben. Aber wenn wir älter werden, die Kinder ausziehen oder wir möglicherweise wegziehen, sollte das Anwesen die Möglichkeit der Vermietung bieten. Da sind womöglich zwei kleinere Wohnungen besser als eine riesengroße mit über 200 m2 Wohnfläche“, erklärt er diese Entscheidung. Vor dem Hintergrund der bestmöglichen Nutzbarkeit heute und der möglichen Vermietung in der Zukunft ließ Eckner daher sein Eigenheim individuell gestalten.

Ein kubischer Baukörper mit Flachdach und großem Balkon im ersten Stock: Mit seiner weiß verputzten Fassade und der klaren Gliederung erinnert der Neubau ein wenig an die Architektur des Bauhausstils. Die anthrazitfarbenen Fenster reichen bis zur Decke. Große Terrassentüren lassen intensive Blickbeziehungen zwischen drinnen und draußen zu. Auf der Sonnenterrasse setzt sich der im Innenraum gewählte Eichenholzboden in Form eines ähnlich getönten Holzbelags fort und erweckt so den Eindruck großzügiger Weite.

Die energieeffiziente Bauweise des Neubaus mit seinen hochwertig gedämmten Wänden, einer Luft-Wasser-Wärmepumpe mit Fußbodenheizung sowie einer zentralen Lüftungsanlage und Wärmerückgewinnung sorgt für eine stets angenehm temperierte Umgebung bei niedrigen Verbrauchskosten. Die Jalousien sind elektrisch gesteuert, die Beleuchtung mittlerweile auch. „Zum Zeitpunkt der Planung war die Smart-Home-Technik noch nicht so weit gediehen wie heute. Daher haben wir sie damals nicht integriert. Aber nun rüsten wir nach“, erzählt der Hausherr.

Wohnoase dank Split-Level-Einteilung
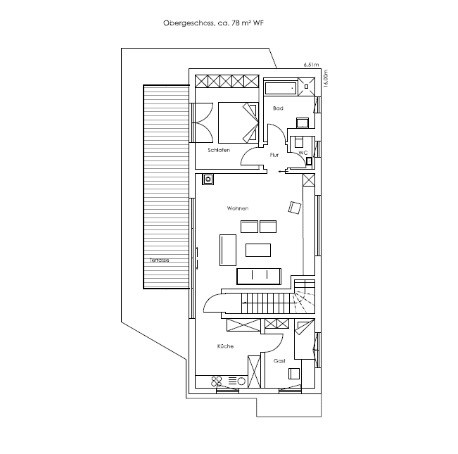
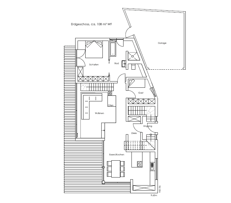
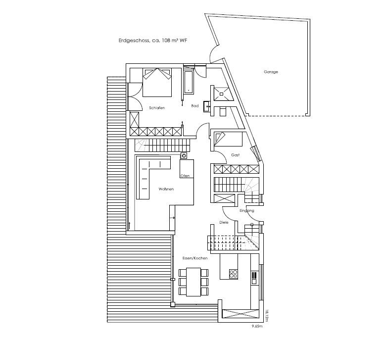
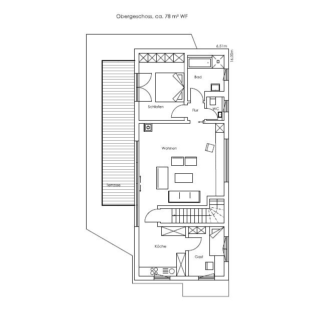
Direkt hinter dem Eingang im Erdgeschoss befindet sich ein kleiner Flur, von dem aus zwei Treppen in das Untergeschoss bzw. in das Obergeschoss führen. Eine weitere Türe öffnet sich zur eigentlichen Diele und den dahinter angeordneten Wohntrakt. Sie könnte gegebenenfalls in eine Haustüre umgewandelt werden und damit der obere Bereich des Hauses separat erschlossen. Während die Kochzone und der Essplatz sowie das Gästezimmer und das Elternschlafzimmer mit Masterbad schwellenlos erreichbar sind, liegt der Wohnbereich ein paar Treppenstufen tiefer. Diese Split-Level-Lösung verleiht der Aufenthaltszone mit dem hier platzierten offenen Kamin einen individuellen Rahmen und verwandelt sie in eine kleine Wohnoase mit hohen Decken und herrschaftlichem Flair. Direkt vom Wohnraum aus führt eine weitere Treppe in das Untergeschoss, das ebenso wie die anderen Stockwerke in Wohnqualität ausgebaut ist. Hier sind die Räume des Au-Pair-Mädchens und Gästezimmer untergebracht. Im Obergeschoss finden zwei weitere Schlafräume, ein
Bad sowie ein WC, eine zusätzliche Küche und ein Wohnraum Platz.

„Wir haben das Grundstück bestmöglich ausgenutzt und so die Größe des Hauses optimiert“, informiert der Bauherr, und Regnauer habe sogar nochmals umgeplant, um eine höhere Ausnutzung zu ermöglichen. Ausgesuchte Bodenbeläge – Dielen und Fliesen, hohe Türen, vom Schreiner gefertigte Einbauschränke und Küchenmöbel runden das luxuriöse Konzept des Neubaus ab. Und machen ihn zu dem Heim, in dem die junge Familie aus München nun gerne angekommen ist.

Ausführung gemäß aktueller Regnauer Bauleistungs- und Ausstattungsbeschreibung. Weitere Informationen auf www.regnauer.de. Abbildungen können Sonderausstattung zeigen. Wir legen großen Wert darauf, Ihr Vitalhaus ganz nach Ihren persönlichen Wünschen zu gestalten. Gemäß Ihren Wünschen und Ihrer Grundstückssituation ergibt sich dann ein exakter Festpreis für Ihr Traumhaus. Daher beziehen sich die Preise auf eine Vitalausstattung ohne spezifische Sonderausstattung.

Voraussetzung   zur   Erlangung   der   Bundesförderung   für   Effiziente   Gebäude   ist   die Einhaltung   der  diesbezüglichen Förderrichtlinien. So wird hierfür unter anderem  die Ausführung einer förderfähigen Haustechnik sowie die entsprechende Ausführung der bauherrenseitigen Leistungen (z.B. Keller und -ausbau) vorausgesetzt. Die Förderrichtlinien sind  auch  Änderungen unterworfen, sodass die Förderfähigkeit jeweils im Einzelfall geprüft und objektspezifisch durch das Förderinstitut bestätigt werden muss. Auch können einzelne Programme ausgesetzt oder verändert werden. Die Regnauer Hausbau GmbH & Co KG kann keine Finanzierungs- oder Förderberatung durchführen.

Hausdaten

Hausart Icon
HausartZweifamilienhaus
Bauweise Icon
BauweiseHolz-Tafelbau
Anzahl Räume Icon
Anzahl Räume5
Baustil Icon
BaustilKubushäuser im Bauhausstil
Fassade Icon
FassadePutz
Außenmaße Icon
Außenmaße17 m x 9.65 m
Wohnfläche Icon
Wohnfläche186 m²
Dachform Icon
DachformFlachdach
Etagen Icon
Etagen2
Energiestandard Icon
EnergiestandardKFWG-Q
Immobilientyp Icon
ImmobilientypKundenhaus
Dachneigung Icon
Dachneigung
Kniestock Icon
Kniestock2.51 m
Mittlerer U-Wert Icon
Mittlerer U-Wert0.14 W/m²K
Hauseigenschaften Icon
HauseigenschaftenBalkon, Terasse, Einliegerwohnung, Gästezimmer
Hausdämmstoff Icon
HausdämmstoffHolzfaser- und Zellulosedämmstoffe
Heizungsart Icon
HeizungsartWärmepumpe (Luft, Wasser, oder beides)
Pfeil nach unten linksWir schaffen Platz für Ihre Träume

Grundriss

no description
Vitalhaus Pasing Grundriss (EG)Wohnfläche EG: 125 m²
no description
Vitalhaus Pasing Grundriss (DG)Wohnfläche DG: 61 m²

Unser Team vor Ort

Regnauer HausbauFachberater*in bei Regnauer Hausbau
Default Avatar
Wir beraten Sie gerne!Arrow Icon

Kataloge

Regnauer: Hauskatalog
Regnauer Hausbau

Regnauer: Hauskatalog


House and TreeParksHouse and PinMusterhausHouse on HandAnbieter