1. AnbieterArrow Icon
  2. Regnauer HausbauArrow Icon
  3. Vitalhaus Oranienburg
Slide 1
Slide 2
Slide 3
Slide 4
Slide 5
Slide 6
Slide 7
no description
Regnauer HausbauVitalhaus Oranienburg
homeKlassische Familienhäuser
livingArea156 m²
energyStandardKFWG-Q
Preis anfragen
Katalog bestellen

Vitalhaus Oranienburg

Nur zehn Monate: So wenig Zeit blieb einem im Umkreis von Berlin wohnenden Ehepaar, um nach der unerwarteten Eigenbedarfskündigung ihres Vermieters ein eigenes Haus zu bauen. Zehn Monate, um dieses zu planen, genehmigen und realisieren zu lassen. Zehn Monate vom ersten Gedanken an einen Umzug bis zum Auspacken des letzten Kartons im neuen Heim.

Zum Glück hatte Fotograf Michael Kugler schon vor Jahren ein rund 900 m2 großes Grundstück direkt neben dem Einfamilienhaus gekauft, das das Paar gemietet hatte. Trotzdem war klar: Ein derartig schneller Neubau würde sich nur in Holzfertigbauweise realisieren lassen. Und auch hier spielte Fortuna eine große Rolle: Die Ehegatten entdeckten bei der Recherche im Internet auf Anhieb einen Fertighaustypen im Angebot von Regnauer Hausbau, der beiden rundum gefiel – und der sich hervorragend an ihre individuellen Wünsche anpassen ließ. Die Genehmigungsbehörde reihte sich in den knappen Terminplan ein, auf dem Bau lief alles wie am Schnürchen. Und beim Aushub, der Gartenbewässerung – und im Gartenbau – fanden die beiden ebenfalls Lösungen, um die eigenen Wünsche schnell und kostengünstig zu realisieren. 

„Wir wollten ein Gebäude im Landhausstil, mit einem Balkon im Obergeschoss, grauer Schalung, und einer überdachten Terrasse“, erzählt Kugler. Ein großzügig wirkendes helles Zuhause, das an die herrschaftlichen Güter der Gründerzeit im Norden Deutschlands erinnert – und das auf das lange Grundstück passt, das sich in eine schmale Lücke zwischen zwei bebauten Nachbargrundstücken schmiegt. Ein Haus für zwei, barrierearm und altersgerecht, damit der Bauherr und seine Partnerin es noch lange genießen können.

Optische Weite dank Glaswand im Flur

Mit wenigen Änderungen – grauer statt naturfarbener Holzschalung, zusätzlichen innenliegenden Sprossen und breiteren Fensterbrettern – repräsentierte der gewählte Haustyp genau den Stil, den Familie Kugler anstrebte. Nur 50 cm kürzer als das Vorbild ist das Gebäude geworden, „dafür der Dachüberstand 50 cm größer“, lacht der Bauherr und erklärt: „Die bei uns gültige Bauordnung bezieht den Dachüberstand in die erlaubte bebaubare Grundfläche mit ein. In unserem Fall durften wir maximal 125 m2 bebauen. Aber die großzügige überdachte Terrasse war uns einfach zu wichtig. Daher sind wir im Innenraum ein wenig zusammengerückt.“

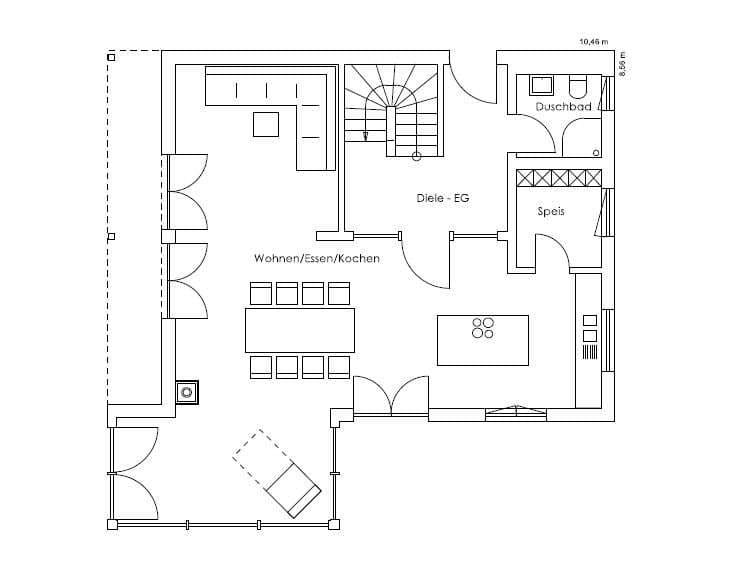
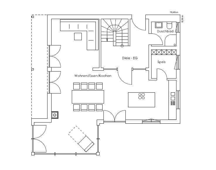
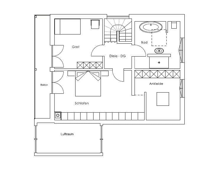
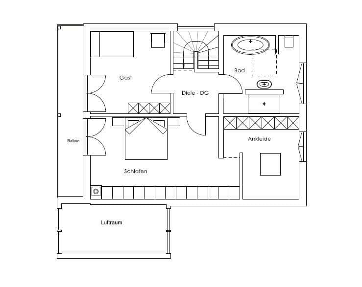
Eine Glaswand zwischen Wohnraum und Diele verleiht dem Erdgeschoss des neuen Heims die gewünschte optische Großzügigkeit. Der Wohnbereich geht nahtlos in die im Landhausstil gehaltene Küche und den angrenzenden Essplatz über. Die an die Küche grenzende Speisekammer nimmt die Vorräte auf. Ein Kaminofen sorgt im Wohnzimmer für angenehme Gemütlichkeit an kalten Tagen. Das Gäste-WC ließ das Paar mit einer Dusche ergänzen, um das Erdgeschoss auch als komplett eigenständige Einheit nutzen zu können. Die Hälfte des Obergeschosses teilt sich das Schlafzimmer des Paares mit der begehbaren Ankleide. Der Rest der Fläche entfällt auf ein Gästezimmer und ein geräumiges Bad. Die Holzbalkendecke blieb in allen Räumen sichtbar und trägt – weiß gestrichen – zum weitläufigen Eindruck der Räume bei.

Beim Wachsen zusehen

Die Haustechnik fand im Kellergeschoss Platz. Neben dem Hauswirtschaftsraum ließ sich der Hausherr ein kleines Büro einbauen. Nebenan ist der Starkstromanschluss für eine Sauna vorinstalliert, die das Ehepaar irgendwann noch einbauen möchte. Auf dem Dach des Neubaus sind zudem Anschlüsse für eine Photovoltaikanlage vorgerichtet, die ebenfalls irgendwann nachgerüstet werden soll. Geheizt wird das neue Zuhause für zwei mit einer Luft—Wasser-Wärmepumpe in Verbindung mit einer Fußbodenheizung.

„Weil wir ja direkt nebenan gewohnt haben, konnten wir unserem neuen Zuhause regelrecht beim Wachsen zusehen“, erinnert sich Kugler an die Bauzeit. Nachdem er im Februar die ersten Gespräche mit dem Kundenberater von Regnauer geführt hatte, ging es mit großen Schritten vorwärts. Den Aushub – reiner Sandboden – nahm ein Pferdehof aus der Umgebung zum Transportpreis ab. Den Tipp für diese kostengünstige Lösung hatte das Ehepaar von einer Bekannten erhalten.

Schon wenige Wochen später – im August – stellte die Fertigbaufirma den Rohbau auf. Und während die restlichen Innenausbauarbeiten noch voranschritten, pflanzten Fachkräfte aus der Umgebung schon die rund 500 Büsche, die seither den Garten begrünen. Sie verlegten Schieferplatten auf der Terrasse, rollten den Rasen aus, schütteten die Einfahrt mit Kieselsteinen auf und bauten den Carport neben dem Haus. Und wenig später war es dann soweit: Michael Kugler und seine Frau zogen nach nebenan. Gerade einmal zehn Monate nach dem ersten Gedanken daran.

Ausführung gemäß aktueller Regnauer Bauleistungs- und Ausstattungsbeschreibung. Weitere Informationen auf www.regnauer.de. Abbildungen können Sonderausstattung zeigen. Wir legen großen Wert darauf, Ihr Vitalhaus ganz nach Ihren persönlichen Wünschen zu gestalten. Gemäß Ihren Wünschen und Ihrer Grundstückssituation ergibt sich dann ein exakter Festpreis für Ihr Traumhaus. Daher beziehen sich die Preise auf eine Vitalausstattung ohne spezifische Sonderausstattung.

Voraussetzung   zur   Erlangung   der   Bundesförderung   für   Effiziente   Gebäude   ist   die Einhaltung   der  diesbezüglichen Förderrichtlinien. So wird hierfür unter anderem  die Ausführung einer förderfähigen Haustechnik sowie die entsprechende Ausführung der bauherrenseitigen Leistungen (z.B. Keller und -ausbau) vorausgesetzt. Die Förderrichtlinien sind  auch  Änderungen unterworfen, sodass die Förderfähigkeit jeweils im Einzelfall geprüft und objektspezifisch durch das Förderinstitut bestätigt werden muss. Auch können einzelne Programme ausgesetzt oder verändert werden. Die Regnauer Hausbau GmbH & Co KG kann keine Finanzierungs- oder Förderberatung durchführen.

Hausdaten

Hausart Icon
HausartEinfamilienhaus
Bauweise Icon
BauweiseHolz-Tafelbau
Anzahl Räume Icon
Anzahl Räume5
Baustil Icon
BaustilKlassische Familienhäuser
Fassade Icon
FassadeMaterialkombination, Holz, Putz
Außenmaße Icon
Außenmaße8.56 m x 7.23 m
Wohnfläche Icon
Wohnfläche156 m²
Dachform Icon
DachformSattel-/Giebeldach
Etagen Icon
Etagen2
Energiestandard Icon
EnergiestandardKFWG-Q
Immobilientyp Icon
ImmobilientypKundenhaus
Dachneigung Icon
Dachneigung27°
Kniestock Icon
Kniestock1.45 m
Mittlerer U-Wert Icon
Mittlerer U-Wert0.14 W/m²K
Hauseigenschaften Icon
HauseigenschaftenBalkon, Gästezimmer, Terasse
Hausdämmstoff Icon
HausdämmstoffHolzfaser- und Zellulosedämmstoffe
Heizungsart Icon
HeizungsartWärmepumpe (Luft, Wasser, oder beides)
Pfeil nach unten linksWir schaffen Platz für Ihre Träume

Grundriss

no description
Vitalhaus Oranienburg Grundriss (EG)Wohnfläche EG: 89 m²
no description
Vitalhaus Oranienburg Grundriss (DG)Wohnfläche DG: 67 m²

Unser Team vor Ort

Regnauer HausbauFachberater*in bei Regnauer Hausbau
Default Avatar
Wir beraten Sie gerne!Arrow Icon

Kataloge

Regnauer: Hauskatalog
Regnauer Hausbau

Regnauer: Hauskatalog


House and TreeParksHouse and PinMusterhausHouse on HandAnbieter