1. AnbieterArrow Icon
  2. Regnauer HausbauArrow Icon
  3. Vitalhaus Oberpframmern
Slide 1
Slide 2
Slide 3
Slide 4
Slide 5
Slide 6
no description
Regnauer HausbauVitalhaus Oberpframmern
homeLandhäuser
livingArea169 m²
energyStandardKFWG-Q
Preis anfragen
Katalog bestellen

Vitalhaus Oberpframmern

Vitales Wohnen mit viel Glas für Sonne und Licht.

Die Kinder gehen ihre eigenen Wege und plötzlich ist das Haus zu groß: Diese Erfahrung machen viele Eigenheimbesitzer und versuchen dann, sich mit der Veränderung zu arrangieren. Das  Bauherrenpaar des Regnauer-Hauses Oberpframmern hingegen wagte einen Neuanfang und beschloss, ein auf ihre Bedürfnisse maßgeschneidertes Haus zu bauen, das einem neuen Lebensabschnitt auch seinen eigenen Raum schenkt.

Transparenz im schlichten Design - Hell und großzügig sollte das neue Eigenheim werden, so der Wunsch des Bauherrenpaars. Schon der erste Eindruck überzeugt durch die schlichte, zeitlose Fassadengestaltung: Über dem weiß verputzten Erdgeschoss setzen die Rhombusleisten aus Lärchenholz einen warmen  Akzent und korrespondieren mit den klaren Linien der beiden Balkone. Eine klare Linienführung zeigt sich auch bei der Anordnung der Fenster und dem zentralen Glaselement an der Südseite des Hauses. Jeweils zwei Fenstertüren im Erd- und im Obergeschoss lassen  an der Westseite Tageslicht bis in den späten Abend herein. Im Nordbereich wird ganz auf Fenster verzichtet. Das  Satteldach des in Massivholz-Riegel-Konstruktion und mit Regnauer Vitalwand erstellten Hauses wurde mit Tondachziegeln eingedeckt.

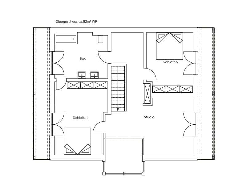
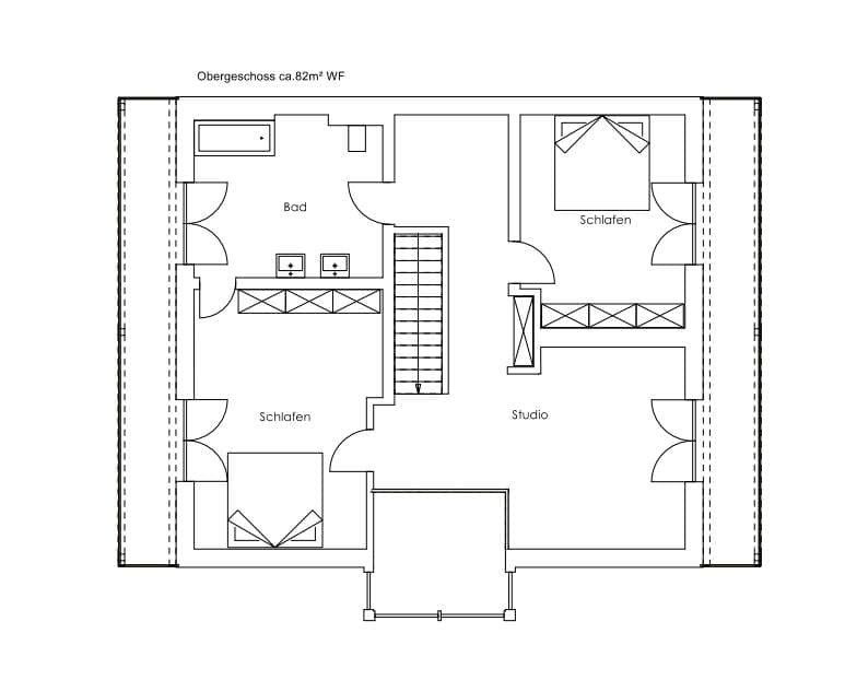
Viel Licht im Haus - Der Zugang zum Erdgeschoss erfolgt von der nördlich angrenzenden Garage. Gegenüberliegend öffnet sich dann der großzügig gestaltete, 46 Quadratmeter große Wohn-, Koch und Essbereich als Lebensmittelpunkt im Haus und gibt den Blick frei auf den Garten. Als raffiniertes Detail verleiht der Luftraum im Wohnbereich zusätzliche Weite und einen lichtdurchfluteten Raum. Rollos sorgen nach Wunsch für eine optimale Beschattung. Für Besucher steht ein Gästezimmer zur Verfügung, das dank der ebenerdigen Türe viel Tageslicht erhält. Die Restfläche im rund 92 Quadratmeter umfassenden Erdgeschoss teilen sich eine geräumige Diele und ein Duschbad sowie die an die Küche angrenzende Speisekammer und ein praktischer Hauswirtschaftsraum. Weitläufig präsentiert sich auch das Obergeschoss mit rund 76 Quadratmetern: Zwei Schlafzimmer, von denen eines direkt mit dem Badezimmer verbunden ist, nehmen hier den Großteil der Fläche ein. Raum für individuelle Gestaltung und Nutzung lässt das offen mit der Diele verbundene Studio. 

Wohnen im Alter  - Der Wunsch, bis ins hohe Alter in den eigenen vier Wänden zu wohnen und sich selbst versorgen zu können, steht mit an erster Stelle, wenn sich die Deutschen Gedanken über ihre Lebensplanung machen. Leider verhindern die baulichen Voraussetzungen häufig die Umsetzung dieses Wunsches  oder lassen sich nur mit hohen Kosten realisieren. Beim Haus Oberpframmern setzte sich das Bauherrenpaar bereits beim Bau mit dem Thema Älterwerden auseinander. Mittels einer durchdachten Raumaufteilung genügt bei Bedarf das Erdgeschoss als alleinige Wohnfläche. Das derzeitige Gästezimmer lässt sich  in ein ausreichend großes Schlafzimmer umwandeln, ein Duschbad ist bereits vorhanden.  Mit den zwei Schlafzimmern und dem Bad sowie dem Studio im Obergeschoss bleibt immer noch genug Platz für Besuche von Kindern und Enkeln.

Gut kalkuliert – Beruflich sind die Bauherren beide als Selbständige tätig und legten besonderen Wert auf eine solide und transparente Planung in allen Bereichen. Mit seinem Konzept des schlüsselfertigen Bauens zum Fixtermin und Festpreis erwies sich das Seebrucker Unternehmen während der gesamten Planungs- und Bauphase als kompetenter und zuverlässiger Partner. Dem neuen Lebensabschnitt im neuen Haus steht nun nichts mehr entgegen.

Ausführung gemäß aktueller Regnauer Bauleistungs- und Ausstattungsbeschreibung. Weitere Informationen auf www.regnauer.de. Abbildungen können Sonderausstattung zeigen. Wir legen großen Wert darauf, Ihr Vitalhaus ganz nach Ihren persönlichen Wünschen zu gestalten. Gemäß Ihren Wünschen und Ihrer Grundstückssituation ergibt sich dann ein exakter Festpreis für Ihr Traumhaus. Daher beziehen sich die Preise auf eine Vitalausstattung ohne spezifische Sonderausstattung.

Voraussetzung   zur   Erlangung   der   Bundesförderung   für   Effiziente   Gebäude   ist   die Einhaltung   der  diesbezüglichen Förderrichtlinien. So wird hierfür unter anderem  die Ausführung einer förderfähigen Haustechnik sowie die entsprechende Ausführung der bauherrenseitigen Leistungen (z.B. Keller und -ausbau) vorausgesetzt. Die Förderrichtlinien sind  auch  Änderungen unterworfen, sodass die Förderfähigkeit jeweils im Einzelfall geprüft und objektspezifisch durch das Förderinstitut bestätigt werden muss. Auch können einzelne Programme ausgesetzt oder verändert werden. Die Regnauer Hausbau GmbH & Co KG kann keine Finanzierungs- oder Förderberatung durchführen.

Hausdaten

Hausart Icon
HausartEinfamilienhaus
Bauweise Icon
BauweiseHolz-Tafelbau
Anzahl Räume Icon
Anzahl Räume4
Baustil Icon
BaustilLandhäuser
Fassade Icon
FassadePutz, Holz, Materialkombination
Außenmaße Icon
Außenmaße11 m x 9.8 m
Wohnfläche Icon
Wohnfläche169 m²
Dachform Icon
DachformSattel-/Giebeldach
Etagen Icon
Etagen2
Energiestandard Icon
EnergiestandardKFWG-Q
Pfeil nach unten linksWir schaffen Platz für Ihre Träume

Grundriss

eg_oberpframmern.png
Vitalhaus Oberpframmern Grundriss (EG)
no description
Vitalhaus Oberpframmern Grundriss (OG)

Unser Team vor Ort

Regnauer HausbauFachberater*in bei Regnauer Hausbau
Default Avatar
Wir beraten Sie gerne!Arrow Icon

Kataloge

Regnauer: Hauskatalog
Regnauer Hausbau

Regnauer: Hauskatalog


House and TreeParksHouse and PinHäuser liveHouse on HandAnbieter