1. AnbieterArrow Icon
  2. Regnauer HausbauArrow Icon
  3. Vitalhaus Kufstein Duo
Slide 1
Slide 2
Slide 3
Slide 4
Slide 5
Slide 6
no description
Regnauer HausbauVitalhaus Kufstein Duo
homeLandhäuser
livingArea236 m²
energyStandardKFWG-Q
Preis anfragen
Katalog bestellen

Vitalhaus Kufstein Duo

Perfekte Entfaltungsmöglichkeiten für die moderne Großfamilie.

Viel Platz im Haus zum Spielen für die Kinder,  ruhige Lage, weiter Blick in die Natur, der ein Gefühl von Freiheit vermittelt: Das Landleben ist der ideale Lebensentwurf für eine fünfköpfige Familie aus Kufstein in Tirol. Ursprünglich wollte sie auf ihrem großen Grundstück den bestehenden Altbau renovieren, doch dann entschied sie sich für den Abriss und einen Neubau, realisiert mit dem oberbayerischen Holzhaushersteller Regnauer. Er setzte die Vorstellungen der Bauherren vom Familienwohnen auf dem Land in ein großzügiges Gebäude um, das die Landschaft bewusst in das architektonische Konzept „eingebaut“ hat.

233 Quadratmeter Wohnfläche haben die Bauherren in ihrem Vitalhaus unter dem Walmdach geschaffen – genügend Platz für einen großzügigen offen gestalteten Wohnbereich mit angeschlossenem Büro im Erdgeschoss, drei Kinderzimmer, zwei Bäder und eine Ankleide im Obergeschoss. Der Neubau verfügt außerdem über eine Einliegerwohnung mit separatem Eingang und eine Unterkellerung mit viel Platz für die Ausrüstung einer sportlich-aktiven Familie.

 Elegante Fassadengestaltung

Dass sich das Gebäude der Natur vor der Haustür harmonisch unterordnet, liegt unter anderem an der eleganten Fassade. Sie wird im Obergeschoss von einem schmalen Fensterband symmetrisch gegliedert. Zum Strukturputz im Erdgeschoss gesellt sich unter dem Dach eine schmale waagerechte Holzschalung, die das Gebäude optisch in die Länge streckt. Zum Garten öffnet sich das Haus mit einem Freisitz, der sich über die ganze Frontseite zieht, in die Landschaft. Die Holzschalung nimmt die Terrassenüberdachung wieder auf, sodass Haus und Veranda zu verschmelzen scheinen. Der Wohnbereich wird durch die Öffnung nach außen mit viel Licht durchflutet.

Holz – das Multitalent

Angenehm ausgeglichene Raumtemperaturen garantiert trotz großer Glasflächen Richtung Garten im Sommer der Baustoff Holz, der auch im Innern optisch Akzente setzt. In Kombination mit der Farbe weiß, die im Innern den Ton angibt, wird eine Wohlfühlatmosphäre für eine Familie geschaffen, die hier eine Oase im oft hektischen Alltag gefunden hat. Der Neubau verbindet die Architektur eines modernen Holzhauses mit praktischen Vorzügen, die ebenfalls im nachwachsenden Baustoff begründet sind: Die Regnauer-Vitalwände sparen durch ihre hohen Dämmeigenschaften Energie. Die Holz-Alu-Fenster, die serienmäßig in jedem Regnauer-Haus eingebaut werden, sind nahezu wartungsfrei. Das Multitalent Holz ermöglicht flexible Raumaufteilungen, die garantieren, dass das Familienhaus sich den Bedürfnissen der Bewohner anpasst. Holz garantiert ihnen ein gesundes Raumklima.

Weitere Infos auf regnauer.de.

Ausführung gemäß aktueller Regnauer Bauleistungs- und Ausstattungsbeschreibung. Weitere Informationen auf www.regnauer.de. Abbildungen können Sonderausstattung zeigen. Wir legen großen Wert darauf, Ihr Vitalhaus ganz nach Ihren persönlichen Wünschen zu gestalten. Gemäß Ihren Wünschen und Ihrer Grundstückssituation ergibt sich dann ein exakter Festpreis für Ihr Traumhaus. Daher beziehen sich die Preise auf eine Vitalausstattung ohne spezifische Sonderausstattung.

Voraussetzung   zur   Erlangung   der   Bundesförderung   für   Effiziente   Gebäude   ist   die Einhaltung   der  diesbezüglichen Förderrichtlinien. So wird hierfür unter anderem  die Ausführung einer förderfähigen Haustechnik sowie die entsprechende Ausführung der bauherrenseitigen Leistungen (z.B. Keller und -ausbau) vorausgesetzt. Die Förderrichtlinien sind  auch  Änderungen unterworfen, sodass die Förderfähigkeit jeweils im Einzelfall geprüft und objektspezifisch durch das Förderinstitut bestätigt werden muss. Auch können einzelne Programme ausgesetzt oder verändert werden. Die Regnauer Hausbau GmbH & Co KG kann keine Finanzierungs- oder Förderberatung durchführen.

Hausdaten

Hausart Icon
HausartZweifamilienhaus
Bauweise Icon
BauweiseHolz-Tafelbau
Anzahl Räume Icon
Anzahl Räume7
Baustil Icon
BaustilLandhäuser
Fassade Icon
FassadeMaterialkombination, Holz, Putz
Außenmaße Icon
Außenmaße13.4 m x 11.1 m
Wohnfläche Icon
Wohnfläche236 m²
Dachform Icon
DachformWalm-/Zeltdach
Etagen Icon
Etagen2
Energiestandard Icon
EnergiestandardKFWG-Q
Immobilientyp Icon
ImmobilientypKundenhaus
Dachneigung Icon
Dachneigung16°
Kniestock Icon
Kniestock2.5 m
Mittlerer U-Wert Icon
Mittlerer U-Wert0.14 W/m²K
Hauseigenschaften Icon
HauseigenschaftenEinliegerwohnung, Terasse
Hausdämmstoff Icon
HausdämmstoffHolzfaser- und Zellulosedämmstoffe
Heizungsart Icon
HeizungsartWärmepumpe (Luft, Wasser, oder beides)
Pfeil nach unten linksWir schaffen Platz für Ihre Träume

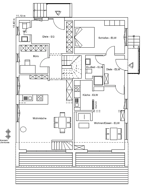
Grundriss

no description
Vitalhaus Kufstein Duo Grundriss (EG)Wohnfläche EG: 124 m²
no description
Vitalhaus Kufstein Duo Grundriss (OG)Wohnfläche OG: 112 m²

Unser Team vor Ort

Regnauer HausbauFachberater*in bei Regnauer Hausbau
Default Avatar
Wir beraten Sie gerne!Arrow Icon

Kataloge

Regnauer: Hauskatalog
Regnauer Hausbau

Regnauer: Hauskatalog


House and TreeParksHouse and PinMusterhausHouse on HandAnbieter